Bank akzeptiert Eigenleistung nicht

4,80 Stern(e) 4 Votes
Zuletzt aktualisiert 18.11.2025
Sie befinden sich auf der Seite 21 der Diskussion zum Thema: Bank akzeptiert Eigenleistung nicht
>> Zum 1. Beitrag <<

D

DerHäuslebauer

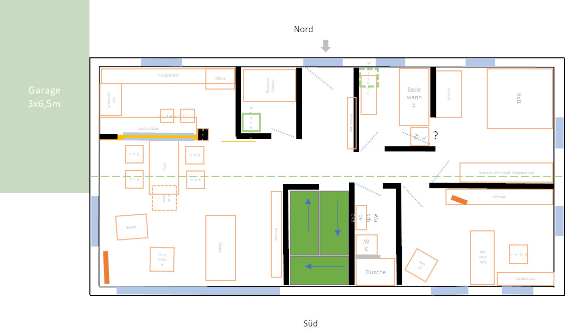
Wenn du schon alles so genau ausgerechnet hast wie das Maximalgewicht eines Balken, gibt es doch sicherlich einen Grundriss bzw. eine Art Bauleistungsbeschreibung oder?
Wäre zwecks Übersicht ganz interessant wenn du das hier auch einstellst.

Wie willst du große Fenster oder soagr eine Hebe-Schiebetür installieren? Da wiegt meine alleine schon zig hundert Kilo
Ein sehr grober Grundriss ist mal im Anhang (mir ist klar, dass es kein richtiger Grundriss ist).


Grundriss einer Garage (3x6,5 m) mit Arbeits- und Lagerbereich, Möbeln.

Grundriss eines Innenraums: Galerie/Abstellkammer links, grüner Aufzugsschacht, Nord-Süd.


Das mit dem Fenster ist ein guter Hinweis. Es gibt ein Wohnzimmer-Fenster, was nicht alleine zu bewerkstelligen ist. Da muss der Fensterbauer ran.
 
Zuletzt bearbeitet:
Winniefred

Winniefred

Nein, wenn das so rüberkommt, dann entschuldige ich mich. Ich glaube nicht, dass ich es besser machen kann oder schneller. Ich bin nur davon überzeugt, dass man es ausreichend hinbekommt und viel auf dem Weg lernen muss und wird.

Tatsächlich haben wir in letzten Jahren viel Ärger mit Handwerksfirmen gehabt, die einfach nicht kommen trotz Terminen, deren Rechnungen sich in 5 Jahren fast verdoppelt haben und so weiter. Es gibt nicht nur schlechte - keineswegs, aber hatte das Glück bei manchen Themen erst mit dem 3. Handwerker, der die Arbeiten der Vorgänger beseitigte, einen guten gefunden zu haben.

Mich stört das Warten, Hinterhertelefonieren, Verschieben...dann nehme ich den Hammer lieber selbst in die Hand
Genauso geht es uns auch mittlerweise. Würden wir nochmal sanieren, mit dem heutigen Wissen, dem heutigen Können, würden wir wohl außer Elektriker und Fliesenleger gar keinen Handwerker mehr anrufen und bei ersterem haben wir einen im Bekanntenkreis, der das machen würde. Wir hatten mit nahezu allen Gewerken die o.g. Probleme, teilweise wurde noch rumgepfuscht, alles ortsansässige Fachfirmen, die wir nie wieder anrufen würden. Allerdings komplett alleine bauen würde ich nicht, dafür würden unsere Kenntnisse nicht reichen und auch die Zeit nicht.

Zum Projekt...das ist schon sehr sportlich. Ihr habt aber keinen Zeitdruck, keine Miete. Ich würde nur an eurer Stelle Plan B bereit haben, falls ihr auf halber Strecke merkt, dass es doch so nichts wird, dass ihr dann noch umorgansieren könnt auf Fremdfirmen. Euch muss eben bewusst sein, dass es evtl so nicht klappt. Da muss man ja nur krank werden oder sich was im persönlichen Leben ändern und es funktioniert so nicht mehr. Wenn ihr aber einen Backup-Plan habt, warum nicht. Und den solltet ihr auch für den Fall haben, dass es trotz massig EL doch viel teurer wird als geplant. Einige Zahlen scheinen mir auch zu niedrig.
 
D

DerHäuslebauer

Du willst die Bank also vorsätzlich bescheißen? Na Prost Mahlzeit...
Bescheissen wäre es doch nur, wenn es irgendwo in den Kreditbedingungen steht, dass man es nicht darf. Das würde ich natürlich nicht. Daher war ja auch zuvor meine Frage, ob die Bank sich daran orientiert, was sie aber anscheinend nicht tut. Wenn es nur nach Bauabschnitten geht, sollte das passen.
Es werden doch sowieso bei Kreditvergabe nur Angebote der Handwerker sein und keine vergebenen Aufträge, so dass man doch auch immer noch den Handwerker wechseln kann.
 
A

Alessandro

wenn dir die Bank einen Kredit von 400.000,- gewährt für den Bau eines Einfamilienhaus, dann erwartet sie auch ein Haus im Wert von 400.000,-
Bei einer EL von 120.000,- wirst du den Zustand als Laie allerdings nie so herstellen können, dass die Bank das so bewerten wird.
Noch dazu wenn du nur 280.000,- abrufst.
 
D

DerHäuslebauer

wenn dir die Bank einen Kredit von 400.000,- gewährt für den Bau eines Einfamilienhaus, dann erwartet sie auch ein Haus im Wert von 400.000,-
Bei einer EL von 120.000,- wirst du den Zustand als Laie allerdings nie so herstellen können, dass die Bank das so bewerten wird.
Noch dazu wenn du nur 280.000,- abrufst.
OK. Aber was würde dann passieren? Wie soll denn die Bank sehen, dass es nicht 400.000 EUR wert ist, wenn Architekt und Bauabnahme OK sind?
 
D

DerHäuslebauer

Genauso geht es uns auch mittlerweise. Würden wir nochmal sanieren, mit dem heutigen Wissen, dem heutigen Können, würden wir wohl außer Elektriker und Fliesenleger gar keinen Handwerker mehr anrufen und bei ersterem haben wir einen im Bekanntenkreis, der das machen würde. Wir hatten mit nahezu allen Gewerken die o.g. Probleme, teilweise wurde noch rumgepfuscht, alles ortsansässige Fachfirmen, die wir nie wieder anrufen würden. Allerdings komplett alleine bauen würde ich nicht, dafür würden unsere Kenntnisse nicht reichen und auch die Zeit nicht.

Zum Projekt...das ist schon sehr sportlich. Ihr habt aber keinen Zeitdruck, keine Miete. Ich würde nur an eurer Stelle Plan B bereit haben, falls ihr auf halber Strecke merkt, dass es doch so nichts wird, dass ihr dann noch umorgansieren könnt auf Fremdfirmen. Euch muss eben bewusst sein, dass es evtl so nicht klappt. Da muss man ja nur krank werden oder sich was im persönlichen Leben ändern und es funktioniert so nicht mehr. Wenn ihr aber einen Backup-Plan habt, warum nicht. Und den solltet ihr auch für den Fall haben, dass es trotz massig EL doch viel teurer wird als geplant. Einige Zahlen scheinen mir auch zu niedrig.
Danke für den Erfahrungsbericht!

Plan B: Kredit in der Höhe beantragen, wie der Hausbau mit Fachfirmen kostet. Im schlimmsten Fall (Krankheit, etc.) kann man dann für restliche Gewerke die echten Handwerker nutzen
 
Zuletzt aktualisiert 18.11.2025
Im Forum Liquiditätsplanung / Finanzplanung / Zinsen gibt es 3218 Themen mit insgesamt 71153 Beiträgen


Ähnliche Themen zu Bank akzeptiert Eigenleistung nicht
Nr.ErgebnisBeiträge
1Grundriss Einfamilienhaus geplant, Fenster gefallen uns 43
2Grundriss Neubau Einfamilienhaus: Fenster/Türen/Innenwände Größe/Anordnung ok? 20
3Bungalow 135qm: Grundriss + Fenster - Seite 7104
4Grundriss die IV! :-) - Seite 318
5Eure Meinung zum Grundriss für das EG 28
6Meinung zum Grundriss eines geplanten Bauhauses 23
7Meinungen zu Grundriss "Haus am Hang" erbeten - Seite 231
8Grundriss Einfamilienhaus. Eure Anregungen sind gefragt. - Seite 317
9Grundriss für Einfamilienhaus 12
10Grundriss Einfamilienhaus mit Wohnkeller am Hang ? - Seite 538
11Eure Meinungen zu unserem Grundriss und Angebot 22
12Grundriss Einfamilienhaus Stadtvilla - Seite 337
13Grundriss Stadtvilla / Feedback Statik, Anordnung - Seite 328
14Entwurf Grundriss Bungalow Meinungen - Seite 322
15Welchen Bad Grundriss? - Seite 322
16Terrassenüberdachung in Grundriss einplanen? - Seite 218
17Grundriss zu Einfamilienhaus erwünscht (versetztes Pultdach) 14
18Unser Grundriss-Entwurf, eure Meinungen 20
19Meinung zu Grundriss versetztes Pultdach Einfamilienhaus - Versuch 2 13
20Meinungen und Tipps zu unserem Grundriss 12

Oben