ᐅ Grundriss Einfamilienhaus. Eure Anregungen sind gefragt.
Erstellt am: 18.08.13 00:45
S
Somersualt18.08.13 00:45Hallo miteinander,
wir möchten in naher Zukunft ein Einfamilienhaus bauen und würden uns über eure Anregungen zu unserem Grundriss sehr freuen.
Zu den Anforderungen:
Vorab schon mal vielen Dank und liebe Grüße
Somersault


wir möchten in naher Zukunft ein Einfamilienhaus bauen und würden uns über eure Anregungen zu unserem Grundriss sehr freuen.
Zu den Anforderungen:
- Bewohner sind zwei Erwachsene und zwei Kinder (in Planung 🙂)
- Kein Keller, aber Bau neben Eltern mit 4-Seithof (größerer Stauraum ist also bei Bedarf vorhanden)
- Heizung über Fußboden mit Luft-Wärme-Pumpe oder Erdwärme und zusätzlichen Schwedenofen
- Wohnen und Essen soll ein Raum, aber vom Wohnzimmer getrennt sein
- Wir möchten helle Räume, aber nicht direkt im Glashaus wohnen
- Carport grenzt an Technikraum an (Pultdach über Technikraum, welches dann auch Carport überspannt)
- Etwas weiter rechts von planoben ist Norden (ca. 2 Uhr)
- Wir möchten keine Dachfenster und das Haus soll einfach geschnitten sein
- Wir möchten zwei Vollgeschosse und eine abgehängte Decke für das OG, kein Sichtdachstuhl
Vorab schon mal vielen Dank und liebe Grüße
Somersault
Hi,
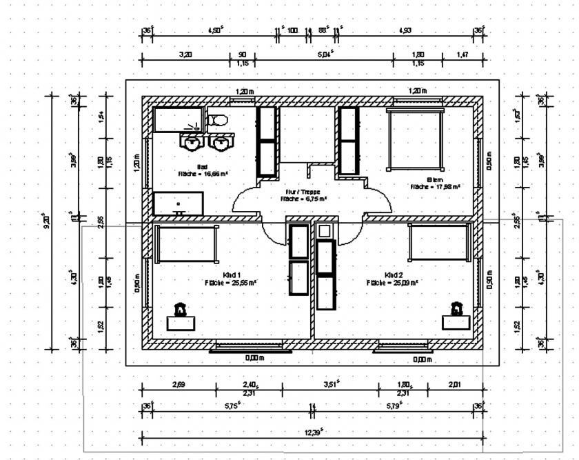
solider Plan dank größzügier Zimmer. Was mir fehlen würde, wäre ein Raum/Platz für die Eltern, wo man seinen Bürokram o.ä. erledigt. Der Technikraum ist dagegen monströs, allerdings hat sich mir die Technikraum / Carport-Sache noch nicht gänzlich erschlossen. Kannst mal das Auto einmalen?
Die Anordnung im WC unten find ich fenstertechnisch nicht so gelungen. Dieses winzige Guckloch macht kaum natürliches Licht und dann auch noch nur in der Ecke vorn. Da würde ich versuchen ein etwas größeres zentrales Fenster zu planen. Man kann da ja Riffel-Glas nehmen, damit von draußen nicht gucken kann.
Das gigantische Bad oben finde ich beneidenswert. Aber da ist keine Dusche eingmalt. Fehlt die jetzt bloß hinter den Waschbecken oder wollt Ihr nur die Wann in die Ecke setzen? Das fände ich total schade. Da würd ich mir nen Wasserfall bauen, wo ich drunter tanzen kann. 😉
Ich bin zwar kein Verfechter des Symmetrie-Zwangs, aber die 2 Fenster und Terrassentüren (?) auf der Südseite in EG und OG würde ich doch gleichgroß machen. Ist aber auch so ok.
solider Plan dank größzügier Zimmer. Was mir fehlen würde, wäre ein Raum/Platz für die Eltern, wo man seinen Bürokram o.ä. erledigt. Der Technikraum ist dagegen monströs, allerdings hat sich mir die Technikraum / Carport-Sache noch nicht gänzlich erschlossen. Kannst mal das Auto einmalen?
Die Anordnung im WC unten find ich fenstertechnisch nicht so gelungen. Dieses winzige Guckloch macht kaum natürliches Licht und dann auch noch nur in der Ecke vorn. Da würde ich versuchen ein etwas größeres zentrales Fenster zu planen. Man kann da ja Riffel-Glas nehmen, damit von draußen nicht gucken kann.
Das gigantische Bad oben finde ich beneidenswert. Aber da ist keine Dusche eingmalt. Fehlt die jetzt bloß hinter den Waschbecken oder wollt Ihr nur die Wann in die Ecke setzen? Das fände ich total schade. Da würd ich mir nen Wasserfall bauen, wo ich drunter tanzen kann. 😉
Ich bin zwar kein Verfechter des Symmetrie-Zwangs, aber die 2 Fenster und Terrassentüren (?) auf der Südseite in EG und OG würde ich doch gleichgroß machen. Ist aber auch so ok.
S
Somersualt18.08.13 11:54Hallo kaho674,
vielen Dank für deine schnelle Antwort.
Wir erledigen unseren Bürokram bis jetzt immer auf dem Esstisch. Dank Laptop ist man da nicht mehr so auf einen extra Raum angewiesen. Den Papierkram werden wir denke ich im Technikraum in entsprechenden Regalen unterbringen. Allerdings fehlt hier das wichtigste, nämlich die Technik noch. Also ganz so viel Platz wird dann nicht mehr übrigbleiben.
Im Bad im OG kommt in die Ecke planlinksoben ein bodenebene Dusche. Ist nur noch nicht ordnungsgemäß eingezeichnet. Auf die freu ich mich vor allem deshalb, weil ich dann keine blöden Duschwände mit fitzligen kleinen Ecken mehr putzen muss. 🙂
Die Fenster sind eigentlich untereinander. Anbei schicke ich mal die Ansichten. Evtl. wird dann das mit dem Carport auch klarer. Die Westansicht folgt einen Beitrag später, weil ich die evtl. wegen der Dateigrößenbegrenzung nicht hochladen kann.
Mit dem Fenster für das Bad im EG hast du Recht. Da müssen wir uns noch was überlegen. Das Schwierige ist, dass es dann in der Nordansicht weiterhin harmonisch aussieht.
Das Dach stimmt noch nicht ganz, der Querbalken und die Auflieger passen nicht. Dies also bitte ignorieren. Das gleiche gilt für das Dach von Technikraum und Carport.
Liebe Grüße
Somersault



vielen Dank für deine schnelle Antwort.
Wir erledigen unseren Bürokram bis jetzt immer auf dem Esstisch. Dank Laptop ist man da nicht mehr so auf einen extra Raum angewiesen. Den Papierkram werden wir denke ich im Technikraum in entsprechenden Regalen unterbringen. Allerdings fehlt hier das wichtigste, nämlich die Technik noch. Also ganz so viel Platz wird dann nicht mehr übrigbleiben.
Im Bad im OG kommt in die Ecke planlinksoben ein bodenebene Dusche. Ist nur noch nicht ordnungsgemäß eingezeichnet. Auf die freu ich mich vor allem deshalb, weil ich dann keine blöden Duschwände mit fitzligen kleinen Ecken mehr putzen muss. 🙂
Die Fenster sind eigentlich untereinander. Anbei schicke ich mal die Ansichten. Evtl. wird dann das mit dem Carport auch klarer. Die Westansicht folgt einen Beitrag später, weil ich die evtl. wegen der Dateigrößenbegrenzung nicht hochladen kann.
Mit dem Fenster für das Bad im EG hast du Recht. Da müssen wir uns noch was überlegen. Das Schwierige ist, dass es dann in der Nordansicht weiterhin harmonisch aussieht.
Das Dach stimmt noch nicht ganz, der Querbalken und die Auflieger passen nicht. Dies also bitte ignorieren. Das gleiche gilt für das Dach von Technikraum und Carport.
Liebe Grüße
Somersault
S
Somersualt18.08.13 11:55S
Somersualt18.08.13 11:59Somersualt schrieb:
Wir erledigen unseren Bürokram bis jetzt immer auf dem Esstisch. Ihr habt doch so eine großzügige Planung. Da würde ich versuchen, irgendwo eine Schreibtischecke zu planen. Mich persönlich nervt es ziemlich, wenn ich jedes Mal das Laptop meines Mannes mit sämtlichem Zubehör vom Tisch räumen muss. 🙄 Das will ich im neuen Haus nicht mehr.Somersualt schrieb:
Den Papierkram werden wir denke ich im Technikraum in entsprechenden Regalen unterbringen. Allerdings fehlt hier das wichtigste, nämlich die Technik noch. Also ganz so viel Platz wird dann nicht mehr übrigbleiben. Was hast Du geplant? Wir haben auch Erdwärme, nen Pufferspeicher, Elektrik und, und, und im Technikraum. Aber wir kommen mit 8m² aus. Bei Dir sinds über 22m²? Willst da nicht lieber noch ein Büro planen?Ähnliche Themen