12x9,6m 2 Vollgeschosse, Keller, DG, 4 Kinderzimmer

4,30 Stern(e) 3 Votes
Zuletzt aktualisiert 19.11.2025
Sie befinden sich auf der Seite 7 der Diskussion zum Thema: 12x9,6m 2 Vollgeschosse, Keller, DG, 4 Kinderzimmer
>> Zum 1. Beitrag <<

J

Johannes L

Hallo noch mal,

das Baukindergeld soll noch dieses Jahr kommen und da wir noch unsere Planung konkretisieren und in ner guten Woche erst mal den Notartermin fürs Grundstück haben, warten wir erst mal ab. Es sind 12.000 pro Kind über 10 Jahre gestückelt. Bei uns sind es bei 4 Kinder demnach 48.000. Wir dürften 75.000 + 4x 15.000 also 135.000 im Jahr verdienen. Da liegen wir spürbar drunter.

Was mir an Katjas Grundriss nicht gefällt ist das fehlende natürliche Licht im Flur des OG und vor allem das EZ nach vorne. Das Grundstück liegt nicht an einer Schnellstraße aber es fahren insbesondere morgens und abends doch einige Autos aus dem dahinter liegenden Wohngebiet daran vorbei.

Bei unseren Entwurf ist sowohl im EG als auch im OG natürliches Licht im Flur. Vielleicht ist das nicht ganz deutlich geworden aber neben der Treppe sind sowohl oben als auch unten bodentiefe Fenster (unten feststehend) durch die vor allem Nachmittags und Abends das Licht sehr schön in den Flur scheinen würde.

Vom größten möglichen Baufenster bin ich ausgegangen, da es halt auch den entsprechenden Platzbedarf gibt und bei der Grundstücksauswahl haben wir ohnehin schon mega Glück gehabt. Es gab nur drei Grundstücke in der Größe, alles andere war kleiner, und wir reden hier von einer hohen dreistelligen Bewerberzahl.

Ich überlege ehrlichgesagt bei unserem Grundriss die Treppe wie bei Katjas Vorschlag an die Seite zu legen (Quasi Tausch mit Büro), aber dann haben wir wieder das Problem mit dem fehlenden Licht im oberen Flur. Auch überlege ich, ob man das EZ vom Wohnbereich einfach nur durch einen Trockenbauwand abtrennen könnte die man, falls man sich doch noch entscheidet ins DG zu ziehen weglassen könnte. Das würde aber bedeuten, dass man mit 6 Personen im OG ins Bad müsste, und das wäre sicher nicht optimal. Ein weiteres Bad im DG ist aber dann wieder noch teurer...

Also, vielen Ideen, noch keine Lösung, aber wir arbeiten dran

Danke an alle die dabei mit guten Ideen mitwirken!

Gruß
Johannes
 
J

Johannes L

Hallo noch mal,

bzgl. der Treppe ins DG von der Seite aus habe ich mir noch ein paar Gedanken gemacht.
Folgende Rahmenbedingungen bestehen.
Max. Gebäudehöhe ist 10m
Bei einem minimalen Neigungswinkel von 42 Grad geht das Dach von der Dachspitze bis zur Außenwand auf 4,32m runter (halbe Wandbreite (4,8 Meter) x 0,9 (Steigung pro Meter bei 42 Grad).
Es bleibt eine Oberkanntenaußenhöhe von 10m-4,32m = 5,68m

Die Oberkante Fertigfußboden muss 30cm über dem Referenzwert liegen.
5,68m - 0,3m = 5,38m
Je Geschoss wäre eine Raumhöhe von 2,5 m wünschenswert
5,38m - 2x2,5m = 0,38cm
es bleiben also 38cm für die Zwischendecke (eingezeichnet sind nur 30cm - wenn die Kontrollierte-Wohnraumlüftung Rohre in der Decke liegen ist das aber wohl zu wenig) welche wir glaube ich auch benötigen.
Da es sich bei dem oben genannten Wert (5,68m) um die Oberkannte des Daches an der Außenkante handelt geht vom OG ggf. noch was an Höhe runter (so viel wie das Dach halt dick ist)

Auf 3m Treppenlänge müssen ca. 2,8m Höhe überwunden werden (2,5m Raumhöhe + Deckenstärke der OG Decke 0,3m).
Das darüber liegende Dach beginnt bei 5,68m und läuft dann über 3,5m (da Außenwand 50cm dick ist) auf 5,68 + 3,5*0,9 hoch. Ergibt ca. 8,83m Dachhöhe (Außenwert) über dem Treppenausgang minus die Dachdicke.
Wenn ich jetzt zusammenrechne komme ich auf 0,3 (Oberkante Fertigfußboden) + 2,5 + 0,38 (Deckenstärke EG/DG) + 2,5 + 0,3 (Deckenstärke DG/OG) = 5,98

8,83m - 5,98m = 2,85m
davon ist noch mal die Deckendicke ab zu ziehen.

Jetzt die Fragen:
Wie dick ist normalerweise so eine Decke?
Reicht die Resthöhe um aufrecht die Treppe zu nutzen?

Freu mich auf eure Einschätzungen.

Gruß
Johannes​
 
kaho674

kaho674

Also ohne jetzt all Deine Zahlen nachzuvollziehen, so eine Decke liegt oft bei ca. 30cm bis 35cm inkl. Fußbodenaufbau. Unsere ist z.B. 32 cm, wenn ich nicht irre.
 
J

Johannes L

Hallo Katja, vielen dank. Ich habe mich unklar ausgedrückt. Ich meinte die Dicke des Dachs, nicht der Zwischendecke.
 
J

Johannes L

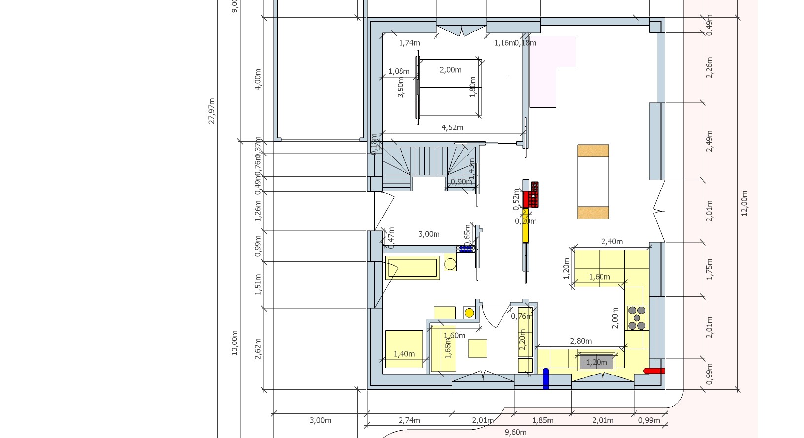
Guten Morgen,

habe mal das Treppenhaus umgelegt und dabei gleich auch Bad und Arbeitszimmer angepasst (erst mal nur im EG). Was meint ihr?

Gruß
Johannes

Grundriss eines Hauses mit Küche, Essbereich, Treppe und Möbeln sowie Maßangaben.
 
Zuletzt aktualisiert 19.11.2025
Im Forum Grundrissplanung / Grundstücksplanung gibt es 2536 Themen mit insgesamt 87975 Beiträgen


Ähnliche Themen zu 12x9,6m 2 Vollgeschosse, Keller, DG, 4 Kinderzimmer
Nr.ErgebnisBeiträge
1Frage zu Grundriss, insbesondere Treppe 13
2Einfamilienhaus 150m2 Grundriss + Planung auf dem Grundstück 24
3Treppe Grundriss Planung, Auftritt und Unterzug 21
4Grundriss Einfamilienhaus mit Flachdach auf 600m² Grundstück - Seite 419
5Außenwand verschieben im Grundriss? 33
6Oberkante Fertigfußboden und Strassenausbauhöhe: schlecht geplant? - Seite 321
7Wie findet ihr unseren Grundriss??? 21
8Grundriss Einfamilienhaus Satteldach 1 Vollgeschoss 140qm - Seite 345
9Bitte um Mitdenken bei Grundriss Einfamilienhaus - Seite 211
10Unser Grundriss-Entwurf für ein günstiges Haus - Seite 50348
11Grundriss für 200qm Stadtvilla - Wünsche umsetzbar? - Seite 498
12Entwurf Grundriss Einfamilienhaus (als Zweifamilienhaus im Alter möglich) in Hanglage - Seite 753
13Bungalow Grundriss 3 Personen, 130qm, bitte Meinungen… - Seite 12167
14Grundriss Einfamilienhaus / Feedback, Kritik und Anregungen - Seite 428
15Grundriss Einfamilienhaus für Zwei - Meinungen erwünscht 51
16Grundriss nach erstem Planungsgespräch, 140m2 1,5-geschossig - Seite 963
17Grundriss - Auf der Suche nach Tipps und Ideen von Experten - Seite 211
18Grundriss Meinungen Einfamilienhaus 140qm 2 Vollgeschosse - Seite 892
19Grundriss ca. 170 m² Einfamilienhaus, ohne Keller mit Carport - Seite 589
20Treppe im Flur, Grundriss steht eigentlich schon :o( - Seite 320

Oben