12x9,6m 2 Vollgeschosse, Keller, DG, 4 Kinderzimmer

4,30 Stern(e) 3 Votes
Zuletzt aktualisiert 11.10.2025
Sie befinden sich auf der Seite 22 der Diskussion zum Thema: 12x9,6m 2 Vollgeschosse, Keller, DG, 4 Kinderzimmer
>> Zum 1. Beitrag <<

J

Johannes L

Hallo Katja, wir müssen es nicht, aber in meinem Alter war meine Mutter auch noch keine Rollstuhlfahrerin. Du weisst also nie was passiert und altersgerechtes Bauen heisst für mich halt auch solche Dinge zu berücksichtigen. Daher ja auch das Schlafzimmer im EG. Wenn ich die Dusche in eine 1m Nische lege, fehlt mir im Bedarfsfall der Platz. Das Gäste-WC ist gedanklich auch so angelegt, dass man es bei Bedarf einfach entfernen kann damit das Bad im EG noch mehr Platz bietet.
 
H

haydee

Wenn behinderten gerecht, dann nach DIN-Norm. Alles andere sind doch Kompromisse. Machbar, aber nicht schön.
Auch auf einen Schwellenlosen Eingang achten.
 
H

haydee

Nein man weiß nie wann es einen trifft.
Vater mit 63 Schlaganfall Halbseitenlähmung
Freundin mit 32 MS sitzt immer wieder im Rollstuhl
Kumpel mit 30 Schlaganfall läuft wieder, jedoch macht jede Stufe Probleme.

Wir haben die Treppe an einer tragenden Wand um einen Treppenlift einbauen zu können. Nicht jede Behinderung heißt gleich ab Kinn nach unten Bewegungsunfähig.
 
kaho674

kaho674

Also meine Omi ist 97 und bis vor 2 Jahren noch ihre steile Treppe ins OG gekrabbelt. Jetzt schläft sie zwar auch unten, aber vom Rollstuhl ist sie weit entfernt. Wir haben niemanden bei Verwandten und im Freundeskreis, der im Alter einen Rollstuhl braucht. Die meisten sterben vorher an Krebs.
 
J

Johannes L

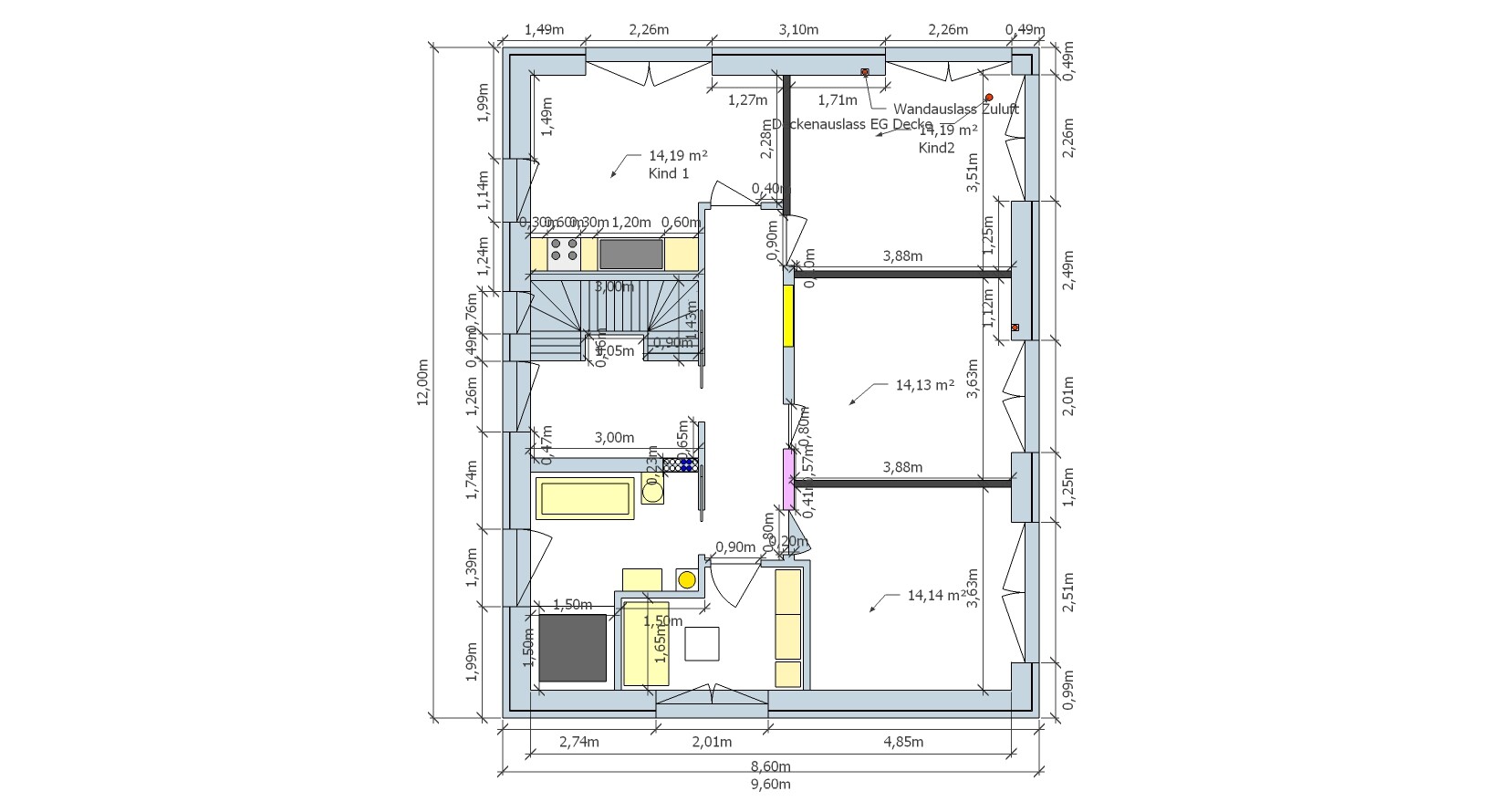
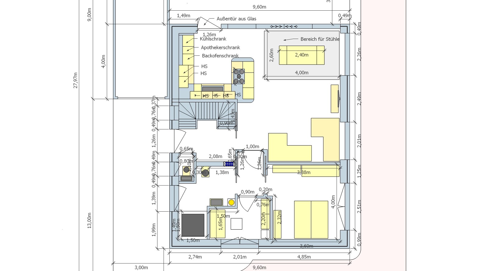
Hoffen wir mal alle bis ins hohe Alter gesund zu bleiben...aber für den Fall dass es nicht so ist, habe ich mal die Dusche auf 150x150 erweitert...und das Fenster in Gäste-WC einzeichnet.

Grundriss eines Wohnhauses: Küche, Wohnzimmer, Flur, Treppenhaus, mehrere Zimmer, Maße eingezeichnet


Frontansicht eines zweistöckigen Einfamilienhauses mit Ziegelmauerwerk und Dachfenstern


Grundriss eines Wohn-/Küchenbereichs mit Küche, Sitzbereich, Treppe und Maßangaben.
 
Y

ypg

Also, das finde ich jetzt aber auch etwas übertrieben.
Man kann nicht alle Eventualitäten „für später“ einplanen.

Dann sollte man eher über einen Hauswechsel nachdenken, so mal über eine spätere Trennung der Etagen schon nachgedacht wird.

Letztendlich könnte dann ja auch der Keller mit dem Hauswirtschaftsraum etc nicht mehr begangen werden.
Ich bin jung, 50, und weiß, dass durch OP etc nicht immer alles rund und über 2 Etagen läuft. Deshalb unsere plane Dusche im EG. Die kann ich zur Not auch mit schmalen Rolli befahren. Aber es führt zu weit, wenn ich mich jetzt schon mit Behinderungen, die ggf gar nicht auftreten, jetzt schon im Alltag konfrontieren muss. Dann müsst ihr jetzt einen Bungalow bauen. Punkt.

Sorry, aber es ist, wie es ist... und nicht, wie es _eventuell_ mal kommen _könnte_. Dafür ist das Schlafzimmer zu klein, das Büro zu verwinkelt, etc.

Das ist einfach nicht durchdacht.
 
Zuletzt aktualisiert 11.10.2025
Im Forum Grundrissplanung / Grundstücksplanung gibt es 2513 Themen mit insgesamt 87242 Beiträgen


Ähnliche Themen zu 12x9,6m 2 Vollgeschosse, Keller, DG, 4 Kinderzimmer
Nr.ErgebnisBeiträge
1Planung Gäste-WC im Neubau - Wie groß muss es sein? (DIN?) - Seite 5107
2Lichtanschluss falsche Stelle Gäste-WC - Seite 529
3Ankleide/Schlafzimmer Problem - Grundrissdiskussion 25
4Unser Grundriss, bitte um Kritik 18
5Haus am Hang - ca. 200qm Wohnfläche - Seite 240
6WC-Fenster Gäste-WC neben der Eingangstür - inzwischen nogo? 44
7Gäste-WC: Decke abhängen oder Rohr verkleiden? - Seite 216
8Bungalow 148m² Grundstücksplanung / Grundrissplanung - Seite 46280
9Beispiel Kaltwasserhahn für Gäste-WC 12
10Lage Gäste-WC - Eingangsbereich? 28
11Gäste-WC (1,65qm) und Bad (4,88qm) Sanierung 21
12Grundrissplanung UG-EG - Hanggrundstück - Seite 250
13Gäste-WC Anordnung - Tipps? 19
14Einfamilienhaus Staffelgeschoss Fertigbauweise - Seite 226
15Fenster im Gäste-WC/Gästezimmer trotz Garage möglich? - Seite 333
16Rollladen im Gäste-WC ja oder nein? 35
17Planung Gäste-WC, brauche eure Tipps 17
18Entwürfe Gestaltung Fliesen Bad / Gäste-WC - Seite 319
19Ablaufrinne Bodenebene Dusche mit Fußbodenheizung - Seite 544
20Stadtvilla mit gerader Treppe, offene moderne Bauweise, 140m² 18

Oben