12x9,6m 2 Vollgeschosse, Keller, DG, 4 Kinderzimmer

4,30 Stern(e) 3 Votes
Zuletzt aktualisiert 22.12.2025
Sie befinden sich auf der Seite 9 der Diskussion zum Thema: 12x9,6m 2 Vollgeschosse, Keller, DG, 4 Kinderzimmer
>> Zum 1. Beitrag <<

H

haydee

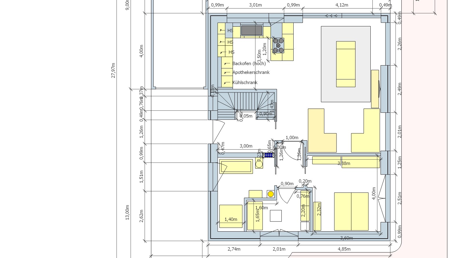
Schaue dir mal den Grundriss von Arifas an. Arifas Grundriss hat 5 Kinderzimmer, einen schönen separaten Elternteil auf der Wohnebene.
 
J

Johannes L

Moin, mit G spiegeln meinst du vermutlich die Küche. Find ich gut, überleg mir später mal wie das konkret aussehen könnte.

Hab erst mal noch das Schlafzimmerfenster umgelegt. Jetzt zeigt es nach Süden und nicht mehr zur Straße, sollte daher "ruhiger" sein.

Büro und Bad finden wir so wie sie jetzt angeordnet sind richtig gut. In der großen Dusche kann man noch eine Bank einbauen unter der dann die Kontrollierte-Wohnraumlüftung Rohre für Fort- und Zuluft durch die Hauswand geführt werden. Find ich schöner als so einen Rüssel vor oder neben dem Haus aus dem Boden schauen zu haben, zumal man den mit dem Auto auch gerne mal versehentlich um/anfährt

Grundriss eines Hauses mit offener Küche (Insel, Ofen, Kühlschrank) sowie Treppe und Wohn-/Essbereich.
 
H

haydee

Kläre das erst mal ab ob die so knapp über der Erde rausschauen dürfen. Die Dinger haben einen ganz schön großen Durchmesser

Rohbauzimmer mit isolierter Luftleitung, Rohren und Fenster während der Bauarbeiten.


Baustelle mit Holzrahmen, sichtbare Luftkanäle und Sanitärleitungen im Innenbereich
 
Y

ypg

Irgendwie fehlt doch ein Gäste-WC Stelle mir gerade einen Haufen Pubertiere Samstags Abends im Wohnzimmer vor und ich möchte leicht bekleidet auf‘s Stille Örtchen oder ein Bad nehmen ...
Ziehst Du dort auch ein?
Kleiner Scherz von mir... aber ich bin mit Deiner Meinung ganz bei Dir.
 
11ant

11ant

Stelle mir gerade einen Haufen Pubertiere Samstags Abends im Wohnzimmer vor und ich möchte leicht bekleidet auf‘s Stille Örtchen oder ein Bad nehmen ...
Nun gönn´ ihnen das doch, die Zeit der feuchten Träume geht so rasch vorbei

Moin, mit G spiegeln meinst du vermutlich die Küche. Find ich gut, überleg mir später mal wie das konkret aussehen könnte.
Auf die Gefahr, mich zu wiederholen: ich sehe den Entwurf noch nicht in der Feinschliff-Phase.
 
Zuletzt aktualisiert 22.12.2025
Im Forum Grundrissplanung / Grundstücksplanung gibt es 2554 Themen mit insgesamt 88554 Beiträgen


Ähnliche Themen zu 12x9,6m 2 Vollgeschosse, Keller, DG, 4 Kinderzimmer
Nr.ErgebnisBeiträge
1Grundriss - Haus mit Einliegerwohnung 23
2Wie findet ihr diesen Grundriss? - Seite 211
3Bitte um ehrliche Meinung zu unserem Grundriss!! 29
4Grobe Kostenrechnung anhand Grundriss 13
5Grundriss die IV! :-) 18
6Meinungen zum Grundriss EG 10
7Grundriss über 200qm - Was haltet die Experten davon? 13
8Einfamilienhaus, geschätzte Kosten und Anregungen Grundriss - Seite 649
9Eure Meinung zum Grundriss für das EG - Seite 528
10Meinung zum Grundriss eines geplanten Bauhauses 23
11Was sagt ihr zu unserem Grundriss? 15
12Grundriss Einfamilienhaus. Eure Anregungen sind gefragt. - Seite 317
13Grundriss, Wohnbereich zu eng, Ideen / Vorschläge 17
14Hilfe beim Grundriss des Hauses, Verbesserungsvorschläge? 28
15Grundriss, Ideen zur räumlichen Trennung innerhalb der Küche - Seite 223
16Stadtvilla -> Eure Meinung zum Grundriss, Vorschläge - Seite 321
17Grundriss erster Entwurf - Meinungen erwünscht 21
18Grundriss Bungalow, sucht wertvolle Tipps / Bemerkungen 24
19Unser Grundriss von 120qm auf 469qm Grundstück - Seite 1073
20Grundriss Einfamilienhaus mit Doppelgarage und Terrasse - Seite 219

Oben