12x9,6m 2 Vollgeschosse, Keller, DG, 4 Kinderzimmer

4,30 Stern(e) 3 Votes
Zuletzt aktualisiert 07.01.2026
Sie befinden sich auf der Seite 15 der Diskussion zum Thema: 12x9,6m 2 Vollgeschosse, Keller, DG, 4 Kinderzimmer
>> Zum 1. Beitrag <<

J

Johannes L

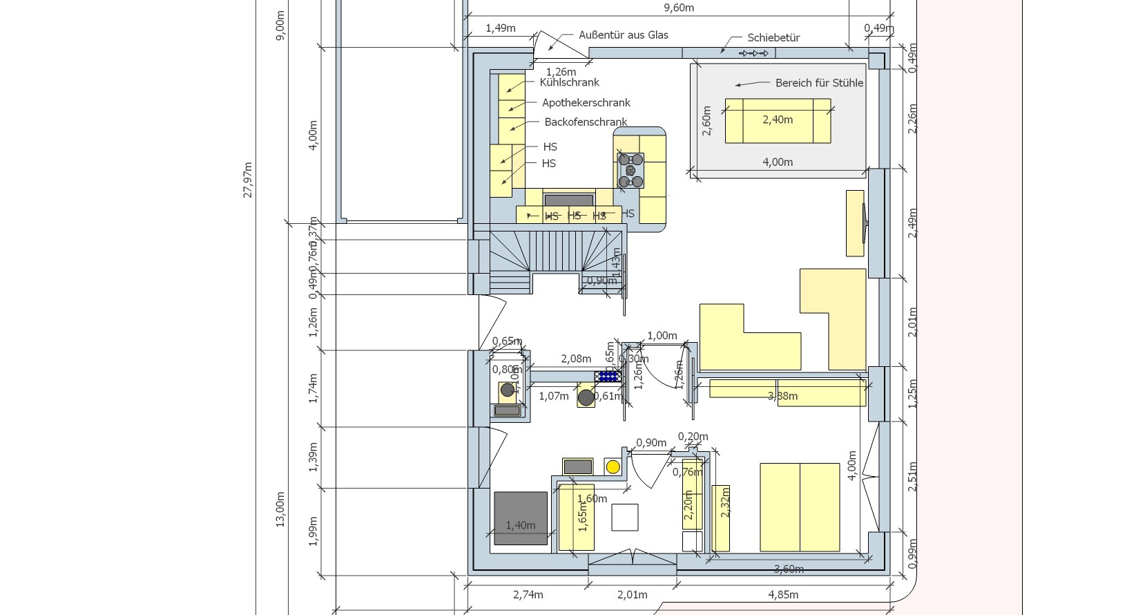
@katja: Danke für deinen zweiten Entwurf. Der gefällt mir auch ganz gut, aber der 1. bzw. das was ich daraus übernommen habe (ist ja das meiste ) passt glaube ich noch besser für unsere Bedürfnisse.
Die Kochinsel mag meine Frau aktuell noch nicht. Daher habe ich das noch mal umgebaut.
@Escroda: vielen Dank für deine Hinweise. Der Wohnwagen steht nicht auf einem Stellplatz sondern auf dem Rasen. ggf. packe ich da noch zwei Platten drunter, mehr aber nicht. Die Garage sollte dann aber schon gepflastert werden.
Das mit der Terrasse ist ein guter Hinweis. Wg. der bodentiefen Fenster und langen Schiebetür wäre es aber glaube ich ganz schlau, die Terrasse direkt mit zu gießen um nachher keine Höhenunterschiede (ggf. auch durch Absacken nach Jahren) zu haben und eine entwässerungsrinne zwischen Terrasse und Haus direkt mit einzubetonieren.

Grundriss eines Wohn- und Küchenbereichs mit Insel, Schränken, Stühlen und Treppe.
 
kaho674

kaho674

Bei der Küche würde man da nicht eher so etwas erwarten? Ansonsten rennst Du mit den Einkaufstüten ja immer im Kreis um diese mächtige Insel.


Grundriss eines Wohnhauses mit Zimmern: SZ (Schlafzimmer), Büro, Dusche, Flur und Allraum.
 
11ant

11ant

Wg. der bodentiefen Fenster und langen Schiebetür wäre es aber glaube ich ganz schlau, die Terrasse direkt mit zu gießen um nachher keine Höhenunterschiede (ggf. auch durch Absacken nach Jahren) zu haben und eine entwässerungsrinne zwischen Terrasse und Haus direkt mit einzubetonieren.
Schon wegen der thermischen Trennung wäre es das gewiß nicht.

Im übrigen sehe ich hier stets den selben Grundriss, nur auf der vierten oder viereinhalbten Nachkommastelle variiert. Hinweise, daß die vermeintliche Feinschliffreife noch um Lichtjahre entfernt ist, scheinen Dich nicht zu erreichen.

Ich bin dann ´mal (nicht auf dem Jakobsweg, aber) weg.
 
kaho674

kaho674

Hinweise, daß die vermeintliche Feinschliffreife noch um Lichtjahre entfernt ist, scheinen Dich nicht zu erreichen.
@Thies: Du sagst das jetzt schon so oft. Aber ich sehe auch nicht, wie man mit 4 Kindern und 2 Büros nicht die vollen 12x9,6 ausnutzen müsste. Ich glaube auch nicht, dass es günstiger wird, das Haus zu verkleinern und dafür das Dach auszubauen. Wohnen auf 3 Ebenen ist auch nicht unbedingt erstrebenswert, finde ich. Außerdem spielt die Teilbarkeit keine unwesentliche Rolle und ist bei 4 Kindern nicht ganz von der Hand zu weisen.

Also was genau meinst Du? Was schwebt Dir da alternativ vor? Ich fürchte, der TE+Familie (und ich auch) sind weniger starrsinnig, wir können Dir einfach nur nicht folgen.
 
Zuletzt aktualisiert 07.01.2026
Im Forum Grundrissplanung / Grundstücksplanung gibt es 2565 Themen mit insgesamt 88779 Beiträgen


Ähnliche Themen zu 12x9,6m 2 Vollgeschosse, Keller, DG, 4 Kinderzimmer
Nr.ErgebnisBeiträge
1Grundriss Einfamilienhaus mit Doppelgarage und Terrasse - Seite 219
2Grundriss Halboffene Küche mit großem Essbereich - Detailfragen 12
3Esstisch in einer kleinen Küche 49
4Küche: geschlossen oder offen? Welche Raumaufteilung? - Seite 286
5Schuhe an der Terrasse; wohin damit? Wäre ein Schrank die Lösung? - Seite 228
6Planung Außenanlage - Terrasse positionieren 78
7Wohn-/Essbereich und Küche - Sinnvolle Aufteilung - Seite 236
8Innenliegende Terrasse zu Wohnraum umbauen? 15
9Offene Küche bereut oder doch das Non plus Ultra? - Seite 10104
10Ist die Größe der Terrasse ausreichend? 4x4.5m - Seite 213
11Stufen zwischen Küche/Esszimmer und Wohnzimmer 52
12Winkelbungalow, Terrasse ganz oder halb überdachen? - Seite 457
13Terrasse mit Plenera Dielen 32
14Begehbare Garage (Terrasse) - Seite 211
15Terrasse mit Platten über Eck (L-Form). Realisierung Gefälle 12
16Terrasse erstellen lassen 11
17Terrasse auf Flachdach - Aufbau - Belag 12
18Fundament/Untergrund WPC Terrasse 36
19Terrasse und Auffahrt 55
20Terrasse auf Garage wird nur zum teil genehmigt 11

Oben