Grundriss ca. 170 m² Einfamilienhaus, ohne Keller mit Carport

4,90 Stern(e) 8 Votes
Zuletzt aktualisiert 19.11.2025
Sie befinden sich auf der Seite 5 der Diskussion zum Thema: Grundriss ca. 170 m² Einfamilienhaus, ohne Keller mit Carport
>> Zum 1. Beitrag <<

Y

ypg

Wir können allerdings überhaupt nicht einschätzen, wie groß bzw. lang der Schatten des Hauses im Norden wirklich sein wird.
hm.., deshalb habe ich ja unsere Nordeinfahrt als Bild eingestellt. Ok, das Dach ist jetzt anders als bei Euch. Ich hätte mal das Haus der Nachbarn fotografieren sollen :cool: Du musst bedenken, dass die Sonne im 13 Uhr sehr, sehr hoch im Sommer steht. Da gibt es kaum Schatten, steht also auch überm 2-Geschosser überm First. Dann wandert sie und der Schatten im Norden bewegt sich am Haus „kleiner“.
Das sieht auch nicht schlecht aus... Die Kubatur wäre ähnlich zu der vom jetzigen Grundriss oder?
Nee, egal… anderes Haus, anderer Grundriss ;)
Im Endeffekt würden wir bei der Anordnung Gartenfläche im Norden gegen einen Sonnenhof im Süden tauschen. Seh ich das richtig?
Nein, eigentlich nicht. Ich habe ja beides eingezeichnet, also hätte beides Platz.
Die ü5 Meter Breite im Norden sind meines Erachtens zu schade, einfach als Restfläche nicht zu nutzen bzw. keinen Austritt dort zu planen. Und im Hochsommer, wenn die Luft warm ist, wird auch die Nordterrasse prima sein.
Während halt die Südsonne auf Terrasse im „kühlen“ Sommer wichtiger ist. Für die dunkle Jahreszeit spielen dann eher die Südfenster eine Rolle, damit man Sonne/Licht im Haus hat.
Allerdings müsste man den Terrassenbereich, dort wo du Pflanzen eingezeichnet hast, vermutlich umzäunen. Sonst schaut man von der Terrasse direkt auf die Zufahrt.
Stopp! Gedankenfehler! Hecken schützen vor unliebsamen Blicken und Anblicke. Ein Zaun schützt vor fremdes Begehen. Katja hat Dir eine Hecke gezeichnet als natürliche Abgrenzung zw Terra und Auffahrt.
Ich finde den Grundriss von Katja sehr schön, würde aber vom Garten/Austritte eher zu meinen tendieren. Könnte man auch kombinieren. Aber warte jetzt mal den Entwurf von der Architektin ab.
 
K a t j a

K a t j a

Das Teil zwischen Carport und Haus wäre dann der Abstellraum mit 3x6 Meter oder?
Ja.
Sonst schaut man von der Terrasse direkt auf die Zufahrt.
Nein, man schaut auf die Hecke, die ich da "gepflanzt" habe. ;)
Wie groß ist die Terrasse auf deinem Bild geplant?
4m x 5,6m
Was denkt ihr dazu?
Nunja, wenn der Stellplatz im Westen ohne Dach und Wände ist möglicherweise.
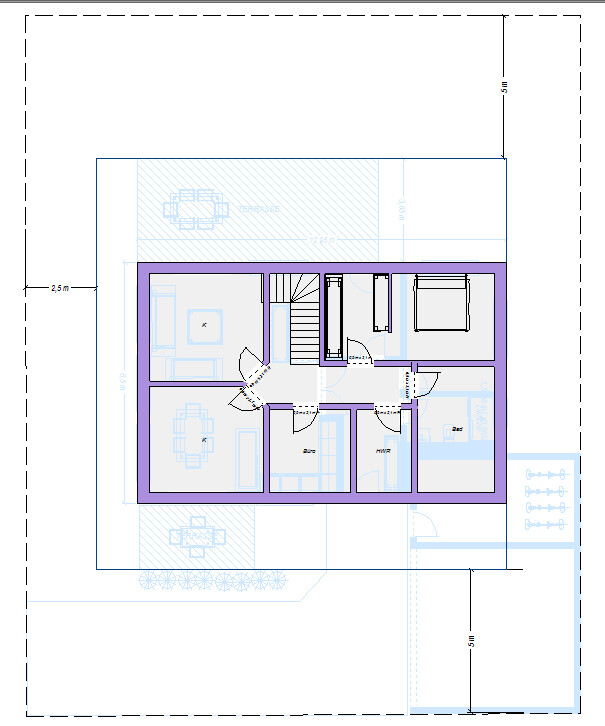
Ich habe auch mal einen mit Nordterrasse versucht:


Grundriss eines Hauses: Terrasse, Wohnzimmer, Küche, Flur, Bad, Garage


Grundriss eines Gebäudes mit Treppe, mehreren Zimmern, Türen und Möbeln; violette Umrandung.

Eine kleine Südterrasse als Ausweichmöglichkeit gibt's trotzdem. So ist im Norden noch ein Stück Grundstück übrig, das man fast schon Garten nennen könnte. ;)
 
S

SandyBlack

Stopp! Gedankenfehler! Hecken schützen vor unliebsamen Blicken und Anblicke. Ein Zaun schützt vor fremdes Begehen. Katja hat Dir eine Hecke gezeichnet als natürliche Abgrenzung zw Terra und Auffahrt.
Okay, aber blöde Frage:
Dauert das nicht ewig bis die Hecke hoch genug ist und wird die wirklich blickdicht?

Ich finde den Grundriss von Katja sehr schön, würde aber vom Garten/Austritte eher zu meinen tendieren. Könnte man auch kombinieren.
Uns gefällt Katjas Idee auch gut. Nur das Wohnzimmer sieht uns zu schmal aus. Da wollen wir schon gerne min. 4 Meter Breite.
Wir haben jetzt aktuell sogar über 5 Meter und das gefällt uns sehr gut.

Aber warte jetzt mal den Entwurf von der Architektin ab.
Das machen wir :)

Hört sich nach einer guten Größe an. :)

Nunja, wenn der Stellplatz im Westen ohne Dach und Wände ist möglicherweise.
Ach, Mist - irgendwas ist doch immer... Ich habe nicht an die zulässige Grenzbebauung gedacht. Aber wenn man den Geräteraum jeweils weg lassen würde müsste es zulässig sein. Vielleicht kann man sich auch von der Grenze 15 m befreien, wenn alle Nachbarn zustimmen?

Ich habe auch mal einen mit Nordterrasse versucht:
Eine kleine Südterrasse als Ausweichmöglichkeit gibt's trotzdem. So ist im Norden noch ein Stück Grundstück übrig, das man fast schon Garten nennen könnte. ;)
Hat auch was :) Aber Wohnzimmer mit der Treppe ist für uns etwas schwer vorstellbar wie dass dann in der Realität aussieht.

Was denkt ihr generell zur Zufahrt - sind 6 Meter Breite ausreichend um mit dem Auto wenden zu können?
 
K a t j a

K a t j a

Y

ypg

Ihr habt doch vor dem Grundstück einen Wendekreis :cool:
ich möchte noch einmal erinnern, dass man mit u500qm nun kein Ich-wünsch-mir-was-Grundstück bekommt. Wenn Du Lust hast und Deine Kinder und Nachbarn es ertragen, kannst Du durch hin und her den Wagen auch mühselig wenden. Oder Du fährst durch die Hecke.
Oder Du lässt sie weg und fährst übern Rasen oder pflasterst vorne alles zu. Parken üben auf 6 Meter kann man Sonntags auf dem Supermarktparkplatz. Das ist ein ernstgemeinter Vorschlag. Ich hätte dazu tatsächlich keine Lust und würde wohl rückwärts reinfahren.

Ich habe mal einiges skizziert, ob mit Katjas oder Deiner Vorlage… das sind doch immer knapp 200qm… da müsstet Ihr eigentlich mal etwas abspecken. Da wird es nämlich langsam eng mit dem Kapital. Auch die gerade Treppe halte ich derzeit für gewagt…
Auch frage ich mich, ob ihr nicht weitere Grenzabstände zu den 2,50 einhalten müsst, wenn ihr in die Höhe baut. Das rechnet sich doch irgendwie „je höher, desto mehr Abstand“?!

noch ein Tipp… beim Skizzieren wieder mal aufgefallen: auf Süd- oder Nordterrasse könntet ihr mit einer Westterrasse verzichten, da der Westen Süd und Nord mit abdeckt.
 
Zuletzt aktualisiert 19.11.2025
Im Forum Grundrissplanung / Grundstücksplanung gibt es 2536 Themen mit insgesamt 87971 Beiträgen


Ähnliche Themen zu Grundriss ca. 170 m² Einfamilienhaus, ohne Keller mit Carport
Nr.ErgebnisBeiträge
1Unser Grundriss-Entwurf für ein günstiges Haus - Seite 42348
2Grundriss Bauvorhaben Stadtvilla mit Walmdach 15
3Grundriss - Auf der Suche nach Tipps und Ideen von Experten - Seite 211
4Grundriss Einfamilienhaus, leichte Hanglage, NW-Ausrichtung - Seite 1069
5Grundriss Einfamilienhaus mit Flachdach auf 600m² Grundstück - Seite 419
6Einfamilienhaus 150m2 Grundriss + Planung auf dem Grundstück 24
7Grundriss mit Garage auf Grundstück realisierbar? - Seite 429
8Grundriss-Entwurf: Einfamilienhaus mit Keller; 560qm Grundstück - Seite 765
9Grundriss-Planung und Platzierung - Einfamilienhaus ca. 200qm auf 900qm Grundstück - Seite 255
10Grundriss Bungalow 125qm konisches Grundstück - Seite 739
11Grundriss für 150qm Einfamilienhaus mit Wohnzimmer nach Norden 21
12Treppe im Flur, Grundriss steht eigentlich schon :o( 20
13Platzierung der Möbel im Wohnzimmer im Grundriss 10
14Grundriss Mehrgenerationenhaus 15
15Grundriss für 200qm Stadtvilla - Wünsche umsetzbar? - Seite 498
16Einfamilienhaus 220qm mit Keller auf 700qm Grundstück 41
17Grundriss: Doppelhaushälfte 8x12m Meinungen und kreative Ideen erwünscht :-) 123
18Grundriss Fails Sammelthread - Grundrisse die keiner wollte - Seite 225
19Bitte schaut kritisch über unseren Grundriss-Entwurf 13
20Gestaltung Grundriss. Was sind eure Meinungen / Vorschläge? 15

Oben