12x9,6m 2 Vollgeschosse, Keller, DG, 4 Kinderzimmer

4,30 Stern(e) 3 Votes
Zuletzt aktualisiert 05.10.2025
Sie befinden sich auf der Seite 18 der Diskussion zum Thema: 12x9,6m 2 Vollgeschosse, Keller, DG, 4 Kinderzimmer
>> Zum 1. Beitrag <<

H

haydee

Kommt doch auch auf die Größe an. In dem Fall ist der Allraum größer als manche Wohnung für 2-3 Personen. Da gibt es immer noch Platz für Küche, Essen, Wohnen. Ohne das der Klapptisch ans Bett gerückt werden muss zum Essen.

Oder ihr verkauft später das Haus. Die Lage ist ja richtig gut. Schwiegereltern haben 3 Kinder, keines wohnt im Haus. Vermieten wollen sie nicht trotz Teilbarkeit. Sie wollen ihre Ruhe haben
 
H

haydee

Ist im Bad oben ein Doppelwaschbecken? Ein normales finde ich für 4 die fast gleichzeitig morgens fertig werden zu wenig
 
kaho674

kaho674

Ausgebautes DG wäre natürlich die Lösung aller Platzprobleme. Nur mal angedeutet mit 9,6x10,5. Wer sich da rein kniet, kann die Grundfläche bestimmt noch stärker minimieren, ohne Verlust an Lebensqualität:


Grundriss eines Stockwerks: zentraler Flur, Türen zu K1, K2, K3, K4 und KiBa; Treppe.

Grundriss: Flur mit zwei Büros (Büro 1, Büro 2), Schlafzimmer (SZ), Bad, Abstellen, Treppe.

Grundriss einer Wohnung: Küche/Essen links, Flur unten, Dusche rechts, Schlafzimmer oben rechts.


Dient nur zur Ideenfindung. Die Entwässerung des Kibas ist völlig fraglich. Ich weiß bloss nicht, ob das letztendlich günstiger wäre. Dazu müsste es noch erheblich schrumpfen, denke ich. Umbauter Raum vs. ausgebauter m² - ich seh da schwarz gegenüber der 12m-Variante ohne Dachausbau.
 
J

Johannes L

Denkbar im DG ist auch eine Einliegerwohnung. Bis 50qm ist erlaubt und es gibt ja viele Schrägen. Die könnte man die ersten Jahre sicher gut vermieten.
 
C

Curly

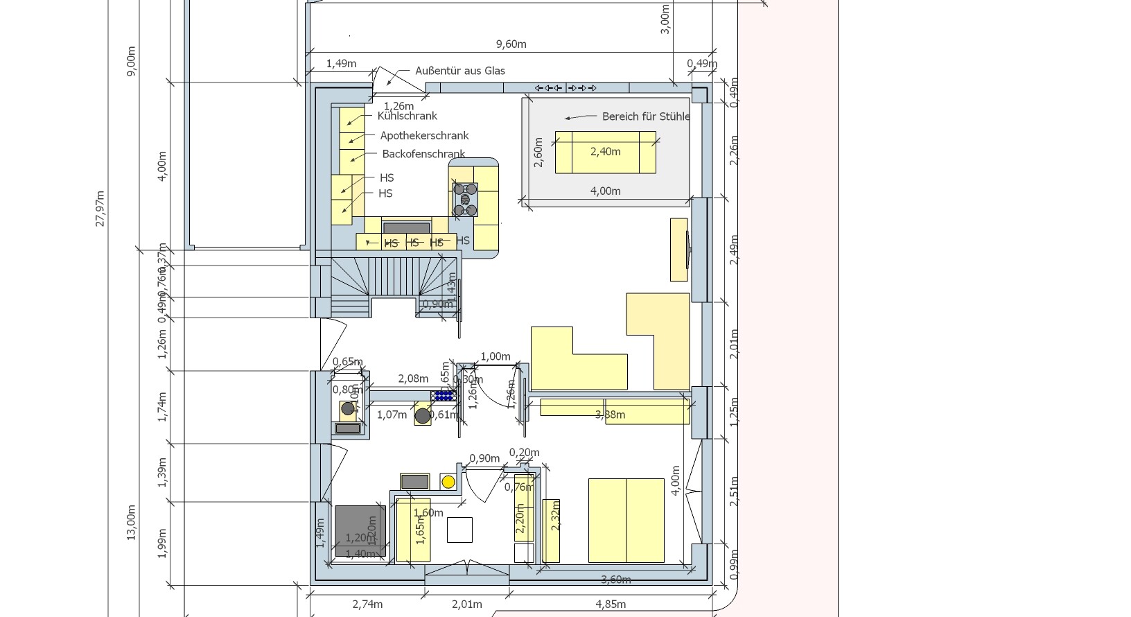
so wie ihr euer Wohnzimmer geplant habt, wird das aber keine "Entspannungszone". Ihr habt vier Kinder die momentan noch klein sind und bestimmt nicht abends allein zum Kühlschrank laufen. Wenn die Kinder älter werden, dann wird ständig abends eines der Kinder (im Laufe des Abends bestimmt jedes Kind dreimal) in die Küche kommen und durch euren Wohnbereich laufen... Licht an, Türe wird offengelassen usw., auf dem Sofa etwas dösen könnt ihr dann vergessen. Ich würde meinen Wohnbereich wenigstens so planen, dass ich dort auch ein wenig Ruhe am Abend habe und nicht gerade einen Durchgangsraum plane, durch den Abends dann auch noch die Freunde meiner Kinder zur Küche laufen. Wie wollt ihr eigentlich fernsehen, stehend vor dem Fernseher?

LG
Sabine
 
J

Johannes L

Moin Sabine,

TV ist für uns wie gesagt nicht so wichtig aber du hast natürlich recht, dass ein "ruhiges" Wohnzimmer seine Vorteile hätte. Die Küche zum Garten und hat für uns aber größere Prio. Wann und wie die Kinder in die Küche laufen bleibt abzuwarten.
Die Sofas lassen sich bei dem aktuellen Grundriss außerdem prima nebeneinander vor den TV schieben und ausziehen. dann hat man eine riesige Liegefläche auf der auch mehr als 6 Personen Platz finden würden.
Abgesehen davon habe ich die Seitenansichten mal aktualisiert.

Gruß
Johannes

Grundriss eines Raumes mit Treppenaufgang links; Außenmaß 9,60 m, Innenmaß 3,00 m.


2D-Grundriss eines Hauses mit Küche, Wohnzimmer, Treppen und Maßen


Lageplan eines Grundstücks mit Gebäudefläche, Dachformen und Maßangaben


Grundriss eines Gebäudeteils mit Werken und Co Lager, Technik, Wäsche; Treppen und Trockenbauwände.


Außenansicht eines zweistöckigen Backsteinhauses mit Dachziegeln und Fenstern


Grundriss eines Hauses mit Küche, Wohnzimmer, drei Kinderzimmern und Treppenhaus, inkl. Maßangaben.


Frontansicht eines roten Backstein-Hauses mit Satteldach und großen Fenstern


Backsteinfassade mit großen Fenstern und Ziegeldach, Architekten-Elevation eines Hauses


Frontansicht eines mehrstöckigen Ziegelhauses mit Dach und Maßlinien
 
Zuletzt aktualisiert 05.10.2025
Im Forum Grundrissplanung / Grundstücksplanung gibt es 2510 Themen mit insgesamt 87161 Beiträgen


Ähnliche Themen zu 12x9,6m 2 Vollgeschosse, Keller, DG, 4 Kinderzimmer
Nr.ErgebnisBeiträge
1Kombination Fliesen und Parkett im Wohnzimmer mit offener Küche - Seite 330
2Grundrissplanung Wohnzimmer-Küche 18
3Planung Wohnraum & Küche eines Doppelhaushälfte in Nürnberg 13
4LED-Einbaulampen in Allraum Küche, Wohn- und Essbereich 17
5Wohnbereich im UG - Süd Hanglage 22
6Grundriss: Offenes Wohnzimmer inkl. Kamin - Feedback 11
7Wohnbereich Grundriss einplanen - Seite 462
8Einrichtung Wohnzimmer evtl. Durchbruch Erweiterung - Seite 328
9Wohnen/Essen/Küche: Wie wohnt ihr oder werdet ihr wohnen? 52
10Wohnzimmer Grundrissplanungs-Ideen? - Seite 239
11Probleme bei der aufteilung Küche, Essen , Wohnen 16
12Grundriss Halboffene Küche mit großem Essbereich - Detailfragen 12
13Esstisch in einer kleinen Küche 49
14Wohnzimmer: Wie Sofa, TV und Schränke stellen? 32
15Einfamilienhaus - Stadtvilla: Wohnzimmer L oder I Form? 25
16Echtholz in Neubau Essen, Wohnen, Küche und Flur 10
17Grundriss für 150qm Einfamilienhaus mit Wohnzimmer nach Norden 21
18Küche: geschlossen oder offen? Welche Raumaufteilung? 86
19Reihenmittelhaus KfW 55 Standard kaufen und später vermieten - Seite 227
20Grobe Schnitzer im Grundriss? Küche zu klein? 39

Oben