Grundriss Einfamilienhaus mit Flachdach auf 600m² Grundstück

4,60 Stern(e) 7 Votes
Zuletzt aktualisiert 22.11.2025
Sie befinden sich auf der Seite 4 der Diskussion zum Thema: Grundriss Einfamilienhaus mit Flachdach auf 600m² Grundstück
>> Zum 1. Beitrag <<

Y

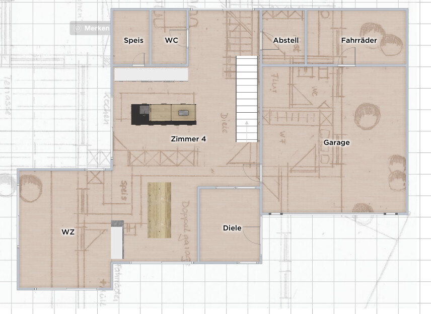
ypg

Ich habe mal versucht, das umzusetzen, was ich kritisiert habe. Es kommt natürlich durch allerlei Schieberei ein anderer Grundriss raus. Ausserdem kommen bei mir die Maße nicht hin... nehme ich die Hochschränke als Referenz, dann passt das hinten und vorn nicht. Ist halt eine Handzeichnung :D Und das Grundstück ist ja auch nicht ermessen, sondern engt wohl eher noch ein durch die Schrägen.
Aber dennoch möchte ich das Ergebnis zeigen. Vlt ist ja eine Anregung dabei. P.s. Treppe habe ich auf 1 x 4 Meter gezogen, Tisch ist 2,20 lang

Grundriss eines Hauses: Zimmer 4, Diele, WZ, Speis, WC, Abstell, Fahrräder, Garage.
 
U

UJS-Nord

Mhm, das ist ein wirklich kniffliges Grundstück.
Vorabbemerkung:
der Grundriss, @Jan2806, hat bei nicht wenigen (mich eingeschlossen), spontane Begeisterung erweckt. Dafür gibt es ganz konkrete Ursachen im Grundriss, und die muß man sich bewusst machen, damit sie nicht verloren gehen, für mich sind es diese: der „Flow“ von Küche über Esszimmer zum abgesenkten Wohnzimmer im hinteren, ruhigen Teil des Hauses - mMn perfekt! Vom WZ kein Blick auf Kochtöpfe, eine starke Verbindung WZ/EZ, und gleichzeitig wurde das WZ durch die Absenkung (unbedingt beibehalten) überhaupt erst zum eigenständigen, wahrnehmbaren Raum etabliert - toll. Ohne Absenkung kein so exzellentes WZ-Raumgefühl. Tolle Terrassensituation, die gerade Treppe passt perfekt und kostet HIER auch endlich einmal keinen unangemessenen Raum, sondern spart im EG sogar. Kein 20m2-Sinnlos-Entree. Sehr harmonische Verknüpfung EG zu OG, Kinder im Süden. Mit Dachterrasse durch Garage, Eltern durch WZ ebenso. WZ im abfallenden Teil des Grundstücks, Absenkung dort vermutlich ohnehin sinnvoll.
All das empfinde ich als erstklassig, es weckt „dort-wohnen-wollen“. Unbedingt bewahren.

Warum also ich überhaupt schreibe?
Wegen der beiden Punkte von @ypg: Garage als Willkommensgruß und Lichtbehinderer, und EZ mit Nordlicht. Ich kann nicht einschätzen, ob und wie genau man das ändern kann, ohne die Vorzüge zu verlieren, aber wegen der beiden Punkte würde ich auf jeden Fall nochmals mit der Architektin die Optionen durchspielen, eine hattest du selbst genannt mit der Verschmalerung der Garage, hilft ein wenig, aber nicht wirklich ursächlich.

Ein möglicher Ansatz, in Worten skizziert:
1. gedanklich das WZ abschneiden, das EZ mit dem Rest des Hauses gleitet am WZ um ca 1,8-2,5m nach unten. Die Überlappung WZ/EZ bleibt, aber auf die Hälfte reduziert. Dadurch gibt es eine neue Terrassentür für das EZ mit eigenem Licht.
2. wenn es möglich wäre, dann auch noch den rechten Versorgungsteil des Hauses (Abstell/WC) in den neuen Freiraum nördlich des EZ = östlich des WZ zu legen, dann wäre östlich des Hauses/planrechts Platz für eine Garage (wie groß, ist schwer einzuschätzen, da keine Maße vorhanden)

Eine grobe Ausschneideübung als Foto, WZ und Terrasse sind an alter Stelle, Eingang mit Garderobe im SO muss noch drangesetzt werden...

Architekten-Grundriss eines Hauses mit Küche, Treppen und roten Markierungen.
 
Zuletzt aktualisiert 22.11.2025
Im Forum Grundrissplanung / Grundstücksplanung gibt es 2535 Themen mit insgesamt 87982 Beiträgen


Ähnliche Themen zu Grundriss Einfamilienhaus mit Flachdach auf 600m² Grundstück
Nr.ErgebnisBeiträge
1Grundriss Einfamilienhaus ca. 135 m³, Grundriss. Garage, 1,5 Geschossig, 4 Personen 11
2Grundriss Einfamilienhaus (ca. 170 qm) mit Garage - Hanglage 35
3Haus, Garage / Carport auf dem Grundstück platzieren 93
4Grundriss 140 m2 Einfamilienhaus mit Garage - Hausausrichtung ok? - Seite 218
5Erster Grundriss Einfamilienhaus - Eure Ideen auch zum Grundstück - Seite 333
6Einfamilienhaus 150m2 Grundriss + Planung auf dem Grundstück 24
7Grundriss-Planung und Platzierung - Einfamilienhaus ca. 200qm auf 900qm Grundstück - Seite 255
8Grundriss Einfamilienhaus, 2 Vollgeschosse ca. 180qm, 600qm Grundstück - Seite 756
9Grundriss Einfamilienhaus 133qm Grundstück 850qm - Seite 216
10Grundriss Einfamilienhaus mit Keller und Garage - Seite 250
11Grundriss-Entwurf: Einfamilienhaus mit Keller; 560qm Grundstück - Seite 765
12Grundriss Stadtvilla 160qm - Bitte um Tipps! - Seite 7284
13Grundriss Stadtvilla 155qm - eure Meinung ist gefragt - Seite 247
14Grundstück mit Einschnitt Stromstation / L-Form- Ideensuche - Seite 444
15Grundriss: Doppelhaushälfte 8x12m Meinungen und kreative Ideen erwünscht :-) 123
16Grundriss Einfamilienhaus für Zwei - Meinungen erwünscht 51
17Grundriss Einfamilienhaus ca. 190qm mit Keller auf Millimeterpapier 78
18Grundriss-Planung, 2 Vollgeschosse, ca. 130-140 qm ohne Keller - Seite 21192
19Grundriss-Verbesserungsvorschläge für Einfamilienhaus an Südhang - Seite 763
20Grundrissoptimierung Einfamilienhaus 140m2 auf schmalem Grundstück - Seite 261

Oben