ᐅ 12x9,6m 2 Vollgeschosse, Keller, DG, 4 Kinderzimmer
Erstellt am: 26.04.18 22:24
Johannes L26.04.18 22:24
Hallo zusammen,
in Kürze dürfen wir nach über 6 Jahren Suche endlich ein Grundstück erwerben, Zeit die Planung mal etwas voran zu treiben.
Da wir zur Zeit noch unsicher sind ob wir mit einem Architekten oder einem Bauträger bauen, haben wir erst mal selbst gezeichnet und ganz fleißig Internetforen wie dieses hier durchstöbert. Herausgekommen sind die unten aufgeführten Grundrisse, Sketchup sein dank
Ich hoffe das unser Verständnis von der Geschossflächenzahl korrekt ist, d.h. der Keller nicht mit berücksichtigt wird. Ansonsten haben wir ein Problem...
Bebauungsplan/Einschränkungen
Größe des Grundstücks 15,6 x 29,95 = 436 qm
Hang nein
Grundflächenzahl 0,4 = 174,4
Geschossflächenzahl 0,8 = 348,8
Baufenster, Baulinie und -grenze 12m tiefe
Randbebauung 3m rechts und links
Anzahl Stellplatz nur vor der Garage geplant
Geschossigkeit 2 Vollgeschosse
Dachform Satteldach 42 Grad
Stilrichtung Klinker + Wienerberger Poroton T7 P 36,5
Ausrichtung Garten in Ost-Nord-Ost
Maximale Höhen/Begrenzungen 10 m hoch
weitere Vorgaben Oberkante Fertigfußboden minimal 30cm über Referenzmarke
Anforderungen der Bauherren
Stilrichtung, Dachform, Gebäudetyp Satteldach ist vorgegeben
Keller, Geschosse ja, 2 voll
Anzahl der Personen, Alter 6 (37,36,6,4,2,0)
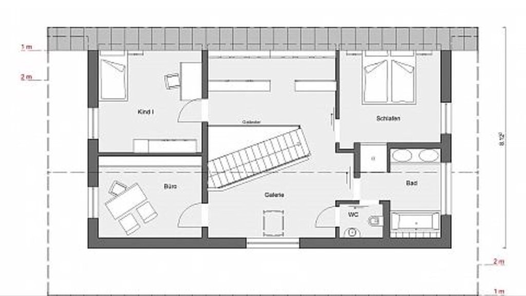
Raumbedarf im EG, OG (siehe plan)
Büro: Familiennutzung oder Homeoffice? beides
Schlafgäste pro Jahr Im DG ist genug Platz
offene oder geschlossene Architektur
konservativ oder moderne Bauweise es soll ein Smart Home werden mit KNX, Photovoltaikanlage, Wärmepumpe, ggf. Speicher...
offene Küche, Kochinsel offene Küche
Anzahl Essplätze 6
Kamin nein
Musik/Stereowand ich dachte an Multiroomaudio, d.h. 1 Lautsprecher pro Raum in der Decke
Balkon, Dachterrasse nein
Garage, Carport Garage
Nutzgarten, Treibhaus später
weitere Wünsche/Besonderheiten/Tagesablauf, gern auch Begründungen, warum dieses oder das nicht sein soll Haus soll in 25 Jahren teilbar sein, daher das Treppenhaus an der Stelle. im OG ist eine Küche eingezeichnet, die ist aber erst in 25 Jahren relevant. Die Lüftungsanlage habe ich mal grob eingezeichnet, also zumindest die Stellen wo Deckenauslässe bzw. Wandauslässe sein könnten und wo die Rohre ins jeweils höhere Stockwerk geführt werden. Die zwei Arbeitszimmer sind wichtig. Das Elternschlafzimmer im EG ist zukunftsorientiert. Jeder wird mal alt!
Hausentwurf
Von wem stammt die Planung: uns Laien
Was gefällt besonders? Warum? vier gleichgroße Kinderzimmer
Was gefällt nicht? Warum? Der Flur oben ist ggf. etwas dunkel
Preisschätzung lt Architekt/Planer: wenn wir das wüssten
Persönliches Preislimit fürs Haus, inkl Ausstattung: 400 + Baukindergeld
favorisierte Heiztechnik: Sole Wärmepumpe
Wenn Ihr verzichten müsst, auf welche Details/Ausbauten
-könnt Ihr verzichten: ich hoffe wir müssen nicht
-könnt Ihr nicht verzichten: die Grundmaße wollen wir auf jeden Fall nutzen und auch der Keller ist Pflicht, aber ggf. müssen wir an den Komponenten sparen.
Warum ist der Entwurf so geworden, wie er jetzt ist? 4 Kinderzimmer, zwei Arbeitszimmer, Elternschlafzimmer im EG, Teilbarkeit in 25 Jahren...
Was macht ihn in Euren Augen besonders gut oder schlecht? Das wollen wir von euch wissen
Was ist die wichtigste/grundlegende Frage zum Grundriss in 130 Zeichen zusammengefasst?
Was würdet ihr anders machen und warum?
in Kürze dürfen wir nach über 6 Jahren Suche endlich ein Grundstück erwerben, Zeit die Planung mal etwas voran zu treiben.
Da wir zur Zeit noch unsicher sind ob wir mit einem Architekten oder einem Bauträger bauen, haben wir erst mal selbst gezeichnet und ganz fleißig Internetforen wie dieses hier durchstöbert. Herausgekommen sind die unten aufgeführten Grundrisse, Sketchup sein dank
Ich hoffe das unser Verständnis von der Geschossflächenzahl korrekt ist, d.h. der Keller nicht mit berücksichtigt wird. Ansonsten haben wir ein Problem...
Bebauungsplan/Einschränkungen
Größe des Grundstücks 15,6 x 29,95 = 436 qm
Hang nein
Grundflächenzahl 0,4 = 174,4
Geschossflächenzahl 0,8 = 348,8
Baufenster, Baulinie und -grenze 12m tiefe
Randbebauung 3m rechts und links
Anzahl Stellplatz nur vor der Garage geplant
Geschossigkeit 2 Vollgeschosse
Dachform Satteldach 42 Grad
Stilrichtung Klinker + Wienerberger Poroton T7 P 36,5
Ausrichtung Garten in Ost-Nord-Ost
Maximale Höhen/Begrenzungen 10 m hoch
weitere Vorgaben Oberkante Fertigfußboden minimal 30cm über Referenzmarke
Anforderungen der Bauherren
Stilrichtung, Dachform, Gebäudetyp Satteldach ist vorgegeben
Keller, Geschosse ja, 2 voll
Anzahl der Personen, Alter 6 (37,36,6,4,2,0)
Raumbedarf im EG, OG (siehe plan)
Büro: Familiennutzung oder Homeoffice? beides
Schlafgäste pro Jahr Im DG ist genug Platz
offene oder geschlossene Architektur
konservativ oder moderne Bauweise es soll ein Smart Home werden mit KNX, Photovoltaikanlage, Wärmepumpe, ggf. Speicher...
offene Küche, Kochinsel offene Küche
Anzahl Essplätze 6
Kamin nein
Musik/Stereowand ich dachte an Multiroomaudio, d.h. 1 Lautsprecher pro Raum in der Decke
Balkon, Dachterrasse nein
Garage, Carport Garage
Nutzgarten, Treibhaus später
weitere Wünsche/Besonderheiten/Tagesablauf, gern auch Begründungen, warum dieses oder das nicht sein soll Haus soll in 25 Jahren teilbar sein, daher das Treppenhaus an der Stelle. im OG ist eine Küche eingezeichnet, die ist aber erst in 25 Jahren relevant. Die Lüftungsanlage habe ich mal grob eingezeichnet, also zumindest die Stellen wo Deckenauslässe bzw. Wandauslässe sein könnten und wo die Rohre ins jeweils höhere Stockwerk geführt werden. Die zwei Arbeitszimmer sind wichtig. Das Elternschlafzimmer im EG ist zukunftsorientiert. Jeder wird mal alt!
Hausentwurf
Von wem stammt die Planung: uns Laien
Was gefällt besonders? Warum? vier gleichgroße Kinderzimmer
Was gefällt nicht? Warum? Der Flur oben ist ggf. etwas dunkel
Preisschätzung lt Architekt/Planer: wenn wir das wüssten
Persönliches Preislimit fürs Haus, inkl Ausstattung: 400 + Baukindergeld
favorisierte Heiztechnik: Sole Wärmepumpe
Wenn Ihr verzichten müsst, auf welche Details/Ausbauten
-könnt Ihr verzichten: ich hoffe wir müssen nicht
-könnt Ihr nicht verzichten: die Grundmaße wollen wir auf jeden Fall nutzen und auch der Keller ist Pflicht, aber ggf. müssen wir an den Komponenten sparen.
Warum ist der Entwurf so geworden, wie er jetzt ist? 4 Kinderzimmer, zwei Arbeitszimmer, Elternschlafzimmer im EG, Teilbarkeit in 25 Jahren...
Was macht ihn in Euren Augen besonders gut oder schlecht? Das wollen wir von euch wissen
Was ist die wichtigste/grundlegende Frage zum Grundriss in 130 Zeichen zusammengefasst?
Was würdet ihr anders machen und warum?
11ant27.04.18 02:50
Johannes L schrieb:
Was würdet ihr anders machen und warum?Antworten gibt´s auf Bilder - die PDF´s sind selbst mir als Desktop-Diskussionsteilnehmer umständlicher, und von Mobilusern werden sie wohl weitgehend als Hürde empfunden. Daher bitte jpg / png einstellen.Johannes L27.04.18 08:25
kaho67427.04.18 08:45
Für 6 Personen wäre mir der Wohnbereich schlicht zu klein. Ihr habt einen langen Flur, weil Ihr zur Giebelseite eintretet. Den könnt Ihr Euch eigentlich nicht leisten. Hier zählt jeder Zentimeter, würde ich sagen - da das Budget m.E. viel zu knapp sein dürfte.
Vielleicht stellt Ihr zusätzlich den Lageplan ein, damit man den Grund erfährt, warum Ihr unbedingt zur Giebelseite rein wollt. Mein erstes Ziel wäre es dann, diesen langen Flur weg zu bekommen und dem Wohnraum zuzuschlagen.
Vielleicht stellt Ihr zusätzlich den Lageplan ein, damit man den Grund erfährt, warum Ihr unbedingt zur Giebelseite rein wollt. Mein erstes Ziel wäre es dann, diesen langen Flur weg zu bekommen und dem Wohnraum zuzuschlagen.
Curly27.04.18 08:52
Ohne mal auf euren Grundriss einzugehen, kommt mir euer Budget für das große Haus (inkl. Keller und Dachgeschoss) etwas gering vor. Ihr wollt doch auch Klinker, Treppe ins Dachgeschoss, zwei große Bäder, KNX, Lüftungsanlage, Photovoltaik und Sole-Wärmepumpe. Würde mir das mal genau ausrechnen lassen.
LG
Sabine
LG
Sabine
Johannes L27.04.18 09:03
Hallo Katja, hallo Sabine,
danke für eure Antworten. Anbei der Lageplan. Bzgl. Budget ist der Plan Keller und DG noch nicht auszubauen, außer halt die Fenster und Treppe im DG...aber unabhängig vom Budget ist ja erst mal die Frage, wie der Grundriss ggf. verbessert werden könnte. Die Idee mit dem seitlichen Eingang finde ich grundsätzlich nicht schlecht, aber bekomme ich dann auch so gut die möglich Trennung der Stockwerke hin? Ein zweiter Punkt ist, dass wir auf der einen Seite die Garage und auf der anderen Seite unseren Wohnwagen haben. So richtig viel Platz ist dadurch dann weder rechts noch links wenn man ein Auto bzw. den Wohnwagen dort stehen hat. Wie würdet ihr denn das EG gestalten damit das mit dem seitlichen Eingang passt? Spricht außer dem "langen" Flur noch etwas gegen unseren Grundriss?
Beste Grüße
Johannes

danke für eure Antworten. Anbei der Lageplan. Bzgl. Budget ist der Plan Keller und DG noch nicht auszubauen, außer halt die Fenster und Treppe im DG...aber unabhängig vom Budget ist ja erst mal die Frage, wie der Grundriss ggf. verbessert werden könnte. Die Idee mit dem seitlichen Eingang finde ich grundsätzlich nicht schlecht, aber bekomme ich dann auch so gut die möglich Trennung der Stockwerke hin? Ein zweiter Punkt ist, dass wir auf der einen Seite die Garage und auf der anderen Seite unseren Wohnwagen haben. So richtig viel Platz ist dadurch dann weder rechts noch links wenn man ein Auto bzw. den Wohnwagen dort stehen hat. Wie würdet ihr denn das EG gestalten damit das mit dem seitlichen Eingang passt? Spricht außer dem "langen" Flur noch etwas gegen unseren Grundriss?
Beste Grüße
Johannes
Ähnliche Themen