Grundstücksplanung / Grundrissplanung

4,90 Stern(e) 11 Votes
Zuletzt aktualisiert 21.11.2025
Sie befinden sich auf der Seite 11 der Diskussion zum Thema: Grundstücksplanung / Grundrissplanung
>> Zum 1. Beitrag <<

Y

ypg

Hast Du Tipps für einen GU, welcher auf Dich einen besseren Eindruck macht?
Ich würde schon KFW40+ haben wollen - einfach weil ich mir denke, dass das langfristig nicht falsch sein dürfte. Wandaufbau und Baumaterial sind mir "egal", was wahrscheinlich daran liegen dürfte, dass mir die Unterschiede nicht klar sind. Muss mich also weitaus mehr informieren. Könnt Ihr gute Literatur empfehlen für einen angehenden Bauherren?
Das ist doch prima.
Du hast 2 Prios, denen Du folgen kannst.
1. Kfw 40+, damit fallen viele schon raus.
2. Hochwertige Materialien, damit fällt die andere Hälfte raus
Naja.. ok... ein paar bleiben noch übrig ;)

Allerdings würde ich mich nicht zu sehr auf 40+ versteifen, sondern auch 40 oder 55 in die Waagschale legen, wenn sonst alles stimmt.

Dann würde ich mir 4-5 der größten Kfw40-Häuslebauer heraussuchen und mir Kataloge und die Bauleistungsbeschreibung schicken lassen. Zusätzlich in der Region umschauen, womit Deine „Nachbarn“ gebaut haben. Geht an den Wochenenden spazieren und kommt mit den Grundstücksbesitzern über den Gartenzaun ins Gespräch. Das geht auch mit Corona. Schaut Euch Baustellen an - da gibt es Schilder, auch Bauschilder der Bauherrn mit Telefonnummer ;)
Kataloge: Lass Dich von Wandphilosophien etc nicht verwirren.
Wichtig ist erstmal in der Bauleistungsbeschreibung (ohne auf Preis Leistung zu achten), was die für Qualitäten in der Ausstattung haben: Tondachpfannen, Holz- statt Kunststofftür, gute Sanitärprodukte, Markennamen, Ggf. auch innovativ.
Ich bin der Typ: Ich möchte was hochwertiges
siehe oben.
Die Bauleistungsbeschreibung kann man übrigens mit allem und überall aufwerten.
Allerdings sind die teureren Häuslebauer auchnur deshalb teurer, weil sie eben hochwertiger bauen. Meistens.
Ich werde mir nun auch nochmal grundlegende Gedanken zum Grundriss machen.
Grundrisse sind ja fast alle ähnlich und in wenigen Schemata aufteilbar. Das ist erstmal unwichtig.
Bett ist noch das simpelste (Wasserbett 2,40 x 2,20).
Raumprogramm, genau! Und Dein Bett sprengt doch wieder die meisten Durchsvhnittssvhlafzimmer...
wenn es ihr nach ihr geht 500 :)
Das ist doch dann ein Ziel: gleich ein kleines Zimmer mehr im Programm. Viebrockhaus ködert übrigens genau diese Frauen mit ihrem Jette-Haus und dem Taschen-Schuheraum. Der Grundriss ist der bescheidenste, den ich vom Fach je gesehen habe. Aber dieser Raum ist Gold wert :)
 
Y

ypg

Ach so...
Buchtipp: Ich glaube, der Fliesenleger ist tot von Julia Karnick
Filmtipp: Einmal im Leben, Familie Semmeling (gibt es nicht
 
S

SaschaL

Vielen Dank! Den toten Fliesenleger habe ich bereits vor einem Jahr gelesen! Danach war mir im ersten Moment gar nicht mehr nach bauen ;)

Habe mir nun noch Kataloge von anderen Anbietern hier in der Region schicken lassen. Die werden sich ja dann auch alle bei mir melden.

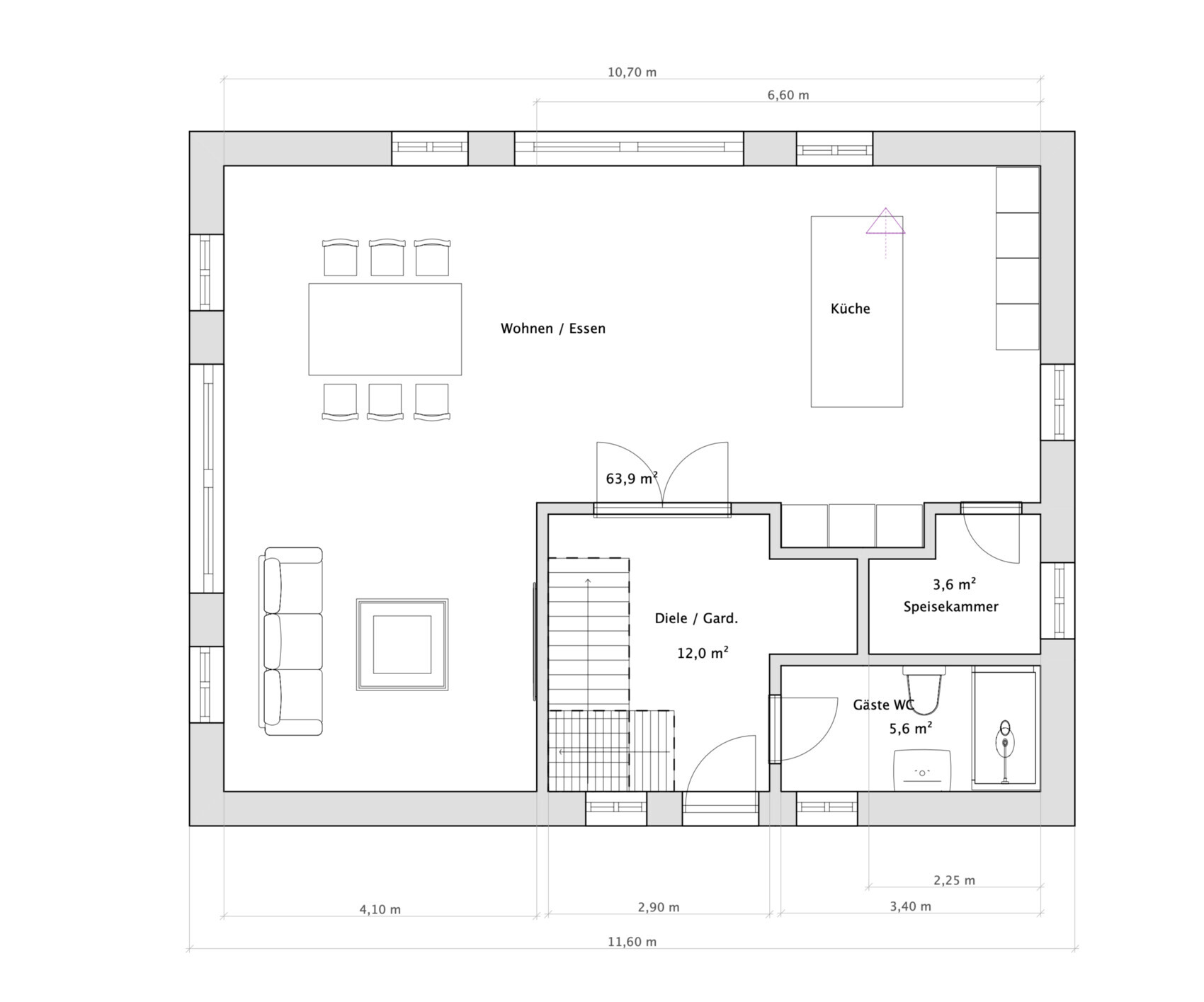
Wir sind hier nochmal in Gedanken alle "Wunschzimmer" durchgegangen und haben uns überlegt, wie groß die unserer Vorstellung nach wohl sein sollten, wie viele wir wirklich brauchen und wie das alles ca. aussehen soll, so daß wir uns wohlfühlen. Am Ende dann die "Bruttogrundfläche" zusammengerechnet und erkannt, dass wir brutto wohl gar keine 180qm brauchen - schon gar nicht, wenn der Keller noch dazu kommt. Wir kamen so auf 150qm... was dann wahrscheinlich round about 130-140 Wohnfläche werden. Hausbreite bliebe wegen des Grundstücks bei ca 9,10m - es würde dann aber kürzer werden, was wieder mehr Garten ergäbe...

Wir haben dann mal Grundriss gemalt (ich weiß, alles noch nicht so wichtig, aber wir haben da ja auch einfach Lust zu :))... als Grundlage diente uns weiterhin der Grundriss vom E430 bei Viebrockhaus, weil wir auch nach mehrmaligem Durchdenken Gefallen an dem fanden... aber wir haben dann eben etwas kleinere Zimmer, ein Meter gespart in der Hauslänge, eine (wie ich finde) bessere Lösung für die Ankleide, keine Backup-Küche...

Wenn ihr da nun einen Blick drauf werft - immer dran denken: Ich bin Laie, aber ich will mir Mühe geben :)

Was sagt ihr? Totaler Mist? :D

Was mir noch nicht gefällt:
- keine Ahnung, ob das mit der Treppe überhaupt so passt
- das Bad ist sicherlich nicht ideal geplant
- weiterhin oben "dunkler Flur", aber so selten sind Flure oben ohne Fenster nun auch nicht, oder macht man das nicht mehr?

Oh und... Nordpfeil vergessen, aber den kennt ihr ja inzwischen... Richtung Küche ist Norden ca.


Grundriss eines Hauses: offenes Wohnen/Essen mit Küche, Diele, Gäste-WC, Speisekammer.


Grundriss eines Wohnhauses mit Zimmern, Büro, Schlafen, Ankleide und Bad.
 
11ant

11ant

Habe mir nun noch Kataloge von anderen Anbietern hier in der Region schicken lassen.
Wer einen (ibs. auch: Print) Katalog hat, ist in der Regel kein regionaler Anbieter, auch wenn er seinen Sitz zufällig in der Region des Grundstückes haben mag !
Wir haben dann mal Grundriss gemalt [...] als Grundlage diente uns weiterhin der Grundriss vom E430 bei Viebrockhaus
Sind Eure Malprogramme eigentlich alle bloß schwarzweiß ? - wenn da wo ein Kataloggrundriss variiert wird, die Abweichungen andersfarbig gemalt wären, würden sich die Variationen viel schneller prüfen lassen.
 
WilderSueden

WilderSueden

Beim Bad würde ich auf jeden Fall Toilette und Dusche tauschen. Auf die Toilette geht man mehr als einmal am Tag. Und dann kann man die Handtücher auch irgendwo zwischen Dusche und Wanne aufhängen.
Ein Punkt der mir sofort auffällt ist das Büro. Machst du da wieder eine Gaube? Wie wird das Büro mit Licht versorgt?
Ein anderer Punkt ist die Dachschräge, Kniestock und Dachneigung. Wo läuft die 2m Linie etwa lang? Im Viebrockhaus geht die doch ein gutes Stück ins Haus rein und im Bad tu ich mir gerade schwer damit einzuschätzen ob die Laufwege auch passen oder ob man sich den Kopf stösst.
In der Ankleide würde ich noch ein Fenster setzen.
 
Zuletzt aktualisiert 21.11.2025
Im Forum Grundrissplanung / Grundstücksplanung gibt es 2535 Themen mit insgesamt 87982 Beiträgen


Ähnliche Themen zu Grundstücksplanung / Grundrissplanung
Nr.ErgebnisBeiträge
1Grundriss mit KG auf Hanggrundstück - Seite 332
2Grundrissplanung: Badezimmer Dusche 47
3Grundriss Einfamilienhaus geplant, Fenster gefallen uns 43
4Grundriss Neubau Einfamilienhaus: Fenster/Türen/Innenwände Größe/Anordnung ok? 20
5Bungalow 135qm: Grundriss + Fenster - Seite 7104
6Grundrissplanung EG Stadtvilla 150qm - Seite 222
7Dusche direkt am Fenster - kompatibel oder inkompatibel? - Seite 422
8Grundriss 185qm Stadtvilla Tipps - Seite 322
9Eure Meinungen zu unserem Grundriss und Angebot - Seite 322
10Findet ihr den Grundriss unserer Stadtvilla so Ok? 46
11Gestaltung Grundriss. Was sind eure Meinungen / Vorschläge? 15
12Ideen zum Grundriss und evtl. noch Tipps? 45
13Grundriss. Meinungen, Ideen und konstruktive Kritiken. - Seite 424
14Grundriss für Familie. Hinweise, Kritik Verbesserungsvorschläge 22
15Einfamilienhaus in Hanglage, Grundriss: Holzständerbau und Betonfertigkeller 38
16Grundriss 200qm mit integriertem Wintergarten und Galerie - Seite 332
17 Küchenplanung mit tiefen Fenster 43
18Bitte um Meinung zum Grundriss 12
19Standard-Grundriss für Stadtvilla mit 130qm - Seite 425
20Grundriss im Villenstil - Seite 221

Oben