Grundstücksplanung / Grundrissplanung

4,90 Stern(e) 11 Votes
Zuletzt aktualisiert 05.10.2025
Sie befinden sich auf der Seite 6 der Diskussion zum Thema: Grundstücksplanung / Grundrissplanung
>> Zum 1. Beitrag <<

11ant

11ant

"Das macht man am besten auf Karopapier"... ohne Argumente wüsste ich nicht, was gegen den PC spricht!?
Ein Laie und Anfänger bleibt auch mit Planungssoftware ein Laie und Anfänger. Was die Software nicht kann, ist: ihn über Nacht zum erfahrenen Planer zu machen. Was die Software aber leider gut kann, ist: relativ flott das Planen "eigentlich ziemlich easy" und die Ergebnisse "schon recht professionell" aussehen zu lassen. Du wirst hier bestimmt schon einige "gütige Göttin, das klappt ja an allen Ecken und Enden nicht" Entwürfe gesehen haben, die der jeweilige Laienplaner als "semifinal" bezeichnet hat. Profis benutzen CAD nie schon für die ersten Brainstorming-Krakeleien - sondern immer erst, wenn der Entwurf schon in erste Reifestadien vorgedrungen ist. Es sind eigentlich nur die Laien - und genauer gesagt, bei denen dann auch noch mal speziell die Anfänger - die über Karopapier verächtlich die Nase rümpfen und/oder meinen, das sei doch ein Werkzeug für "Opfer", die den digitalen Zug verpaßt hätten. Übrigens: wenn man nicht weiter kommt und die Schwarmintelligenz der Community anzapfen will, bindet ein Foto von einer Handkritzelei die Mitdenkenden nicht schlechter ein als ein Screenshot aus "Klickibunti Hausplanerlehrling 3D". Einen wirklichen Vorteil hätte eine Software hier nur, wenn sie Ausgabeformate erzeugen würde, die die Mitdenkenden importieren und weiterbearbeiten könnten - idealerweise mit einem Logfile für die Bearbeitungskommentare. Aber wir sind hier eben "nur" in einem Forum und nicht in einer Groupware App.
 
S

SaschaL

So.... weiter im Text....

@ypg : Ich habe mir die letzten Seiten nochmal durchgelesen und verstehe, warum man mich "hier und dort" falsch verstanden haben könnte. Meine Wortwahl war nicht immer glücklich. Ich will weder Klugscheißer sein (ich hab ja vom Hausbau keine Ahnung), noch beratungsresistent - ich will es nur verstehen und dazu brauche ich Argumente. Fühlte mich zudem durch das "Dir geht die Kohle vor dem ersten Spatenstich aus" auf den Schlips getreten. Und auch wenn ich hier heute wieder mit 3D-PC-Kram komme (ich mag das), habe ich Millimeterpapier, Bleistifte und Geodreieck bestellt ;)

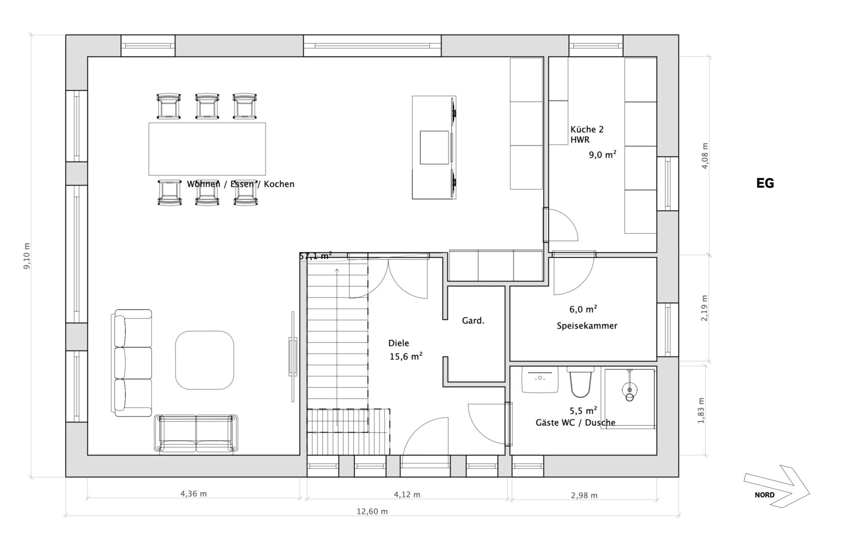
@alle : Grundstück ist nun reserviert. Ich habe zu zwei Architekten Kontakt aufgenommen und warte bei einem auf Antwort, der zweite war nicht direkt symphatisch... ich plane dennoch erstmal weiter mit einem Viebrockhaus-Haus um Erfahrungen zu sammeln... habe aber nun das Modell gewechselt - von den Abmessungen her sollte (beispielsweise) das "Edition 430" besser passen (9,10m x 12,60m)... den Grundriss habe ich "nachgebaut", weil ich hier keine originale von Viebrockhaus einfügen wollte - sicher ist sicher....

Also erstmal der Fragebogen:

Bebauungsplan/Einschränkungen
Größe des Grundstücks: 606qm
Hang: nein
Grundflächenzahl: 0,35
Geschossflächenzahl: /
Baufenster, Baulinie und -grenze: Siehe Bebauungsplan Seite 1
Randbebauung:
Anzahl Stellplatz: 2
Geschossigkeit: 1
Dachform: "geneigte Dächer mit einer Dachneigung von 15 - 51 Grad sowie Mansarddächer zugelassen"
Stilrichtung: /
Ausrichtung: /
Maximale Höhen/Begrenzungen: 4,50m Traufhöhe / 10m gesamt
weitere Vorgaben: 10 Meter tiefer Pflanzschutzstreifen in welchem Bäume und Sträucher erhalten werden müssen (im Süden des Grundstücks)

Anforderungen der Bauherren
Stilrichtung, Dachform, Gebäudetyp: Satteldach, klassisch
Keller, Geschosse: 1,5 Geschosse + Keller (wird nach Kosten entschieden / wenn ohne Keller, dann wird "Speisekammer" zu "Technik" / so ist es von Viebrockhaus vorgesehen)

Anzahl der Personen, Alter: aktuell zwei Personen / 40 (m) und 32 (w)
Raumbedarf im EG, OG: Ein Kind geplant, haben aber lieber ein Zimmer zu viel als zu wenig
Büro: Familiennutzung oder Homeoffice? Homeofficebüro erwünscht
Schlafgäste pro Jahr: maximal 10 Übernachtungen durch einen Gast
offene oder geschlossene Architektur: ?
konservativ oder moderne Bauweise: eher modern
offene Küche, Kochinsel: gerne offene Küche. Die hier von Viebrockhaus eingefügte "Schmutzküche" wird mir immer symphatischer, weil ich mir erhoffe, Vor- und Nachteile zu kombinieren (offene Küche und dennoch einen Ort wo schmutziges Geschirr etc. nicht direkt ins Auge fällt)
Anzahl Essplätze: 6
Kamin: aktuell nicht geplant, aber nicht final entschieden
Musik/Stereowand: nein
Balkon, Dachterrasse: nein
Garage, Carport: Grundstück ist noch nicht vermessen, soll aber 18,15m breit dann - dann müsste (siehe meine Skizze) eine Doppelgarage passen?!
Nutzgarten, Treibhaus: nein


Hausentwurf
Von wem stammt die Planung: Viebrockhaus
Was gefällt besonders? Warum? Uns gefällt die große Küche, das große Bad, die großen Fenster. Die Idee der "Schmutzküche" findet hier immer mehr Anklang (wie gesagt)... Dusche im Gäste-WC (haben einen kleinen Hund)
Was gefällt nicht? Warum? Aktuell wäre der Erker (eingezeichnet als "Büro") auf der Seite des Grundstücks, wo bereits in 3m Entfernung das Nachbarhausgrundstück steht... da hier eine große Fensterfront und volle Raumhöhe besteht, wäre der "Ausblick" wohl nicht so toll... darüber hinaus ist bei dem Grundriss das Schlafzimmer zur Straße ausgerichtet. Eventueller Tausch mit Gästezimmer? Dann wäre die Ankleide aber fehl am Platz (welche für ein größeres Bad auch gestrichen werden könnte)
Preisschätzung lt Architekt/Planer: noch nicht vorhanden
Persönliches Preislimit fürs Haus, inkl Ausstattung: Wie gesagt, eigentlich inkl. Keller zwischen 700k und 800k - ich wäre aber bereit das Budget zu erweitern, wenn es notwendig wird - ne Million muss es dann aber auch nicht werden. Das wäre es mir nicht wert - daher denke ich: maximal 900k
favorisierte Heiztechnik: da fehlt mir die Erfahrung - die aktuell (gemietete) Gastherme finde ich nicht so toll (zu laut, ist aber auch ungünstig montiert), grundsätzlich für alles offen

Wenn Ihr verzichten müsst, auf welche Details/Ausbauten
-könnt Ihr verzichten: Der Keller wird sicher eine Preis-/Leistungsabwägung... bei diesem Grundriss hätte man ohne Keller keinen "vernünftigen" Hauswirtschaftsraum - der wäre dann in der Schmutzküche integriert. Wo soll man dann Wäsche trocknen?
-könnt Ihr nicht verzichten: Wir hätten wirklich gerne ein "größeres" Bad... hier wäre noch denkbar die Ankleide zu entfernen und das Bad entsprechend zu vergößern (freistehende Wanne wäre zum Beispiel etwas, das uns gefallen würde), ebenso eine "große" Küche.

Warum ist der Entwurf so geworden, wie er jetzt ist? ZB
Standardentwurf von Viebrockhaus, der uns aber so doch zusagt... im OG haben wir bisher lediglich aus dem Büro ein Zimmer gemacht - im Original ist hier keine Wand, sondern ein offener Bereich... aber da hier (auch von Viebrockhaus) ein Arbeitsplatz geplant ist, ist offen im "Flur" wahrscheinlich nicht wirklich ideal...


Was ist die wichtigste/grundlegende Frage zum Grundriss in 130 Zeichen zusammengefasst?
Schlafzimmer ist so richtung Norden zur Straße, weil das Haus bei uns mit der Giebelseite zur Straße stehen müsste. Erker "verschwendet" weil Blick nur zum Nachbarhaus?


Lageplan eines Gebäudekomplexes: Grundriss, Maßlinien, Nachbargrundstücke, Nordrichtung.


Grundriss EG: offener Wohn-/Ess-/Kochbereich, Küche 2, Speisekammer, Gäste-WC, Diele.


DG-Grundriss: Gäste-, Büro-, Schlaf-, Kind 1, Bad/WC, Ankleide; Treppenhaus.


Isometrisches Modell eines modernen Hauses mit Satteldach, Glasfronten, Einfahrt und Baumreihe.


3D-Modell eines Hauses mit Satteldach, Anbau-Garage, Hof und Baumreihe am Grundstückrand


3D-Render: modernes Haus mit Satteldach, großen Fenstern, Anbau und Bäumen im Garten



Lageplan eines Baugebiets mit Planstraße B, farbigen Parzellen und Maßangaben.
 
S

SaschaL

Ach... sehe gerade, ich habe eine Frage falsch verstanden: Das Budget bezieht sich auf das gesamte Vorhaben "all-inkl." - das Grundstück liegt bei 160k
 
WilderSueden

WilderSueden

Meiner persönlichen Meinung nach ist eine Zweitküche nur sinnvoll wenn man Personal hat das einen unauffällig bekochen soll wenn Gäste da sind. Nur um schmutziges Geschirr abzustellen würde ich keine zweite Küche ins Haus machen, vor allem nicht 2 Meter von der richtigen Küche entfernt. Die Küche kostet dich überschlagen (da du ja einen gewissen Standard willst) 3000€*9qm + Küchenausstattung locker 35 000€. Da kannst du jahrelang das benutzte Geschirr in die Tonne werfen. Lieber 5 Minuten investieren und alles in die Spülmaschine räumen. Dann bekommst du eine große Hauswirtschaftsraum/Speisekammer-Kombination.

Ansonsten, wo genau wollt ihr die Terrasse platzieren? Durch welche Tür wollt ihr da raus gehen?
Durch diese extra Wand fürs Büro werden der Flur und die Treppe sicherlich sehr dunkel. Wollt ihr das? Der Flur wirkt auch ein bisschen knapp. Von der Offenheit im originalen Entwurf bleibt da nicht viel übrig, aber da war das "Büro" auch nur geeignet um mal Sonntagnachmittag die Rechnungen zu überweisen.
 
Zuletzt aktualisiert 05.10.2025
Im Forum Grundrissplanung / Grundstücksplanung gibt es 2510 Themen mit insgesamt 87154 Beiträgen


Ähnliche Themen zu Grundstücksplanung / Grundrissplanung
Nr.ErgebnisBeiträge
1Grundriss-Entwurf Einfamilienhaus in Hanglage, Einliegerwohnung, Doppelgarage - Seite 271
2Grundriss Einfamilienhaus ca. 190qm mit Keller auf Millimeterpapier 78
3Grundriss Einfamilienhaus mit Keller und Garage 50
4Grundriss-Entwurf: Einfamilienhaus mit Keller; 560qm Grundstück - Seite 365
5Massivhaus Anbieter in Hamburg Alternative zu Viebrockhaus? 19
6Erster Grundriss-Versuch für Kettenhaus auf kleinem Grundstück 94
7Erster Grundriss Einfamilienhaus - Eure Ideen auch zum Grundstück - Seite 333
8Grundrissoptimierung Einfamilienhaus mit Keller auf kleinem Grundstück - Seite 3178
9Grundriss für Einfamilienhaus 210 m² + Keller - Eure Meinungen 16
10Einfamilienhaus 220qm mit Keller auf 700qm Grundstück 41
11Grundriss Bungalow 160-170qm mit Keller - Seite 4175
12Grundriss-Planung und Platzierung - Einfamilienhaus ca. 200qm auf 900qm Grundstück - Seite 255
13Grundriss Einfamilienhaus 133qm Grundstück 850qm 16
14Grundriss Entwurf Neubau Einfamilienhaus - Grundstück 610qm - Meinungen erwünscht - Seite 850
15Grundriss für Einfamilienhaus mit 200m² mit Einliegerwohnung 75 +Keller 140m² +Garage 56m² - Seite 659
16Grundriss Einfamilienhaus ~165m² plus Keller - Seite 6165
17Grundriss Einfamilienhaus in Hanglage mit Keller - Seite 351
18Grundriss Einfamilienhaus 155m², ohne Keller, 3 Kinderzimmer, 1 Büro 38
19Unser Grundriss-Entwurf für ein günstiges Haus - Seite 4348
20Einfamilienhaus 150m2 Grundriss + Planung auf dem Grundstück 24

Oben