Grundriss 200qm mit integriertem Wintergarten und Galerie

4,30 Stern(e) 4 Votes
Zuletzt aktualisiert 24.11.2025
Sie befinden sich auf der Seite 3 der Diskussion zum Thema: Grundriss 200qm mit integriertem Wintergarten und Galerie
>> Zum 1. Beitrag <<

Y

ypg

Ich würd auch mal die Treppe überprüfen. Eure Treppe entspricht jetzt ungefähr den "Raumspartreppen" in Reihenhäusern - sie wird wohl dem Haus nicht gerecht werden.
 
M

merlin83


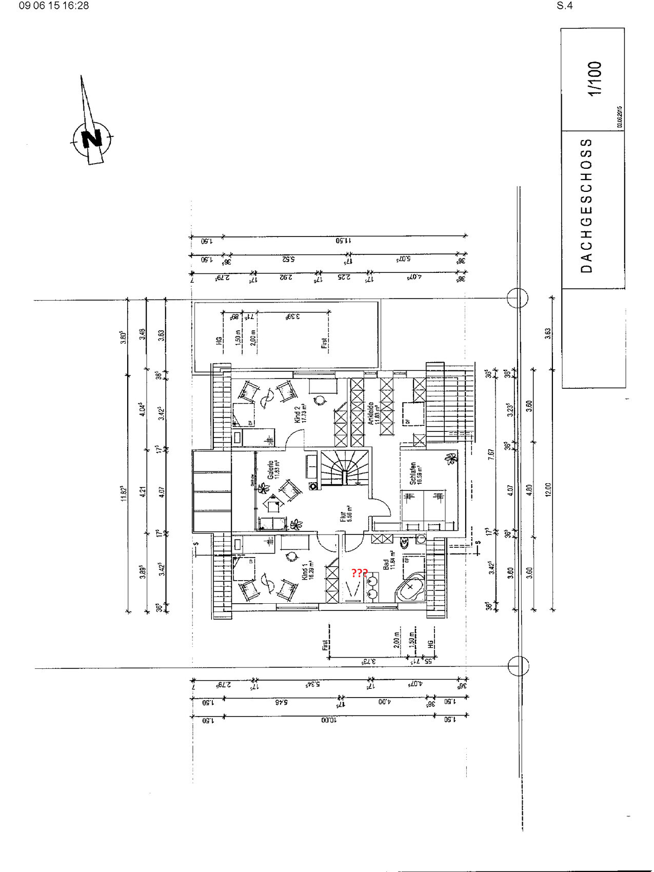
Schonmal in einem Haus mit Galerie gewohnt?
Leider nein; es sieht jedoch mE natürlich toll aus, wenn man im EG und OG ein lichtdurchflutetes Haus hat. Ich selbst habe auch bedenken, es könnte später störend sein, wenn es hellhörig ist. Meine Frau ist jedoch nicht sehr begeistert, wenn ich die Galerie in die Diskussion bringe (bzw. ihr wegnehmen will).

Privatsphäre gibt es da nicht. Gerade mit Kinder. Essensgerüche, Gespräche, TV-Geräusche, Kindergeschrei, Kindermusik usw. werden 1a von unten nach oben und umgekehrt getragen. nicht zu vergessen, ihr sitzt gerade mit Gästen gemütlich im Wintergarten trinkt nen Schluck Wein und das evtl. pubertierende Kind muss dann im Schlafanzug, Shirt, mit Handtuch ganz schnell an der Galerie vorbei um ins Bad (oder andersrum) zu kommen.
Ich würde auf die Galerie verzichten und stattdessen irgendwie noch ein Kinderbad einplanen. Galerie mit Kinder ist verschwendeter Platz - meine Meinung.


Ob man die Galerie vom EG aus so gut einsehen kann...hmm.... gute Frage?!

Ich würde den Architekten mal eine alternative aufzeigen lassen, bei der ein Kinderbad und ein zurückgezogener TV Bereich dabei ist. Was
Hallo Manu

Danke für Deinen Beitrag. Ich habe deinen Beitrag im Zitat (siehe oben) beantwortet.

Schöne Grüße
 
M

merlin83

Ich würd auch mal die Treppe überprüfen. Eure Treppe entspricht jetzt ungefähr den "Raumspartreppen" in Reihenhäusern - sie wird wohl dem Haus nicht gerecht werden.
Ja, die Treppe wird in eine Podesttreppe umgewandelt - haben wir bei der letzten Besprechung vereinbart.
 
M

merlin83

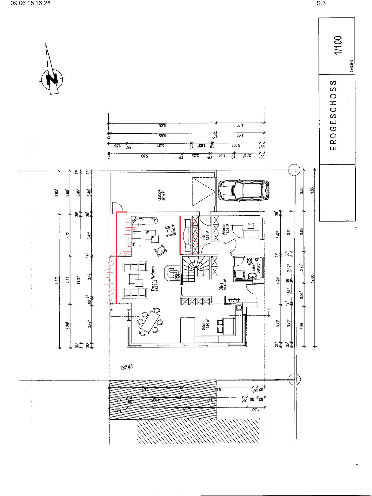
Also wir haben 187 m² und 4 vollwertige (~16m²) Zimmer im OG und ein Elternschlafzimmer mit Bad-en-Suite (schreibt man das so? auf jeden fall mit kleinem separatem Duschbad nur aus dem Schlafzimmer zugänglich) im EG. Wohn-Ess-Kochbereich haben bei uns 55 m² (irgendwo muss man ja qm einsparen ). Wir haben sowohl im EG als auch im OG noch jeweils einen etwa 8 m² großen Hauswirtschaftsraum. Das Bad im OG ist bei uns allerdings kleiner.

Wenn das euren Ansprüchen entspricht und ihr das Geld dafür habt, finde ich den Grundriss schön. Ändern würde ich noch Ankleide und Schlafzimmer - lieber das Schlafzimmer als gefangenen Raum und die Ankleide als "Brücke" zum Bad. Das Ablauf Ankleide - Bad - Ankleide - Bad etc. wird öfter vorkommen als dass man noch mal ins Schlafzimmer muss. Darüber hinaus stört man dann auch nicht den, der noch im Schlafzimmer nächtigt, während einer sich fertig macht.
Thema is ggf. noch Laufwege Küche - wieso stehen denn da zweimal Stühle am Tresen? Macht das Ganze nicht funktionaler.
Hallo BeHaEIJa,

Ja das mit dem Schlafzimmer ist auch so ein Thema. Ich würde das Bett auch lieber in die jetzige Ankleide stellen und aus dem Schlafzimmer eine Ankleide und Elternbad machen. Die Frau will aber keine Schrägen im Schlafzimmer. Ich glaube unser Kniestock würde irgendwo bei 1,30 Meter liegen und recht früh die 2 Meter Linie m Schlafzimmer erreichen.
 
Y

ypg

Ja, die Treppe wird in eine Podesttreppe umgewandelt - haben wir bei der letzten Besprechung vereinbart.
Die verbraucht allerdings mehr Platz. Ich glaube nicht, dass dann die Großzügigkeit in den Flurbereichen noch vorhanden ist, sodass ihr euch darauf einstellen solltet, dass ein ganz anderer Grundriss bei euren Vorgaben an den Architekten herauskommt. Allerdings habe ich das Gefühl, dass ihr euer Raumprogramm noch nicht so ganz kennt, sondern eurem Architekten den K.-Grundriss vorgegeben habt, sodass ihr alsbald nicht zum Ziel eurer wünsche gelangt (nämlich ein zufriedenstellender Entwurf), sondern immer eine schlechte Kopie dieses Hauses heraus kommt, wo später improvisiert werden muss.
Verlieben tut man sich oft und viel! Ob man auch definitiv alles verbauen muss, ist eine Frage, da muss man mal selbst ins Gericht.
 
M

merlin83

Hallo zusammen,

ich möchte Euch nochmals zu den aktuellen Entwürfen um Eure Meinung (Verbesserungsvorschläge) bitten:

Vorneweg möchte ich folgende Informationen zufügen:

Küche im Südosten ist für meine Frau ein muss, weil sie gerne morgens Sonne in der Küche haben möchte und den Blick auf die Straße haben möchte (die im Osten liegt).

Zu dem Hinweis mit Tausch der Ankleide und dem Schlafzimmer von BeHaElJa: Meine Frau möchte unbedingt in einem Raum ohne Schrägen schlafen und mit bodentiefem Fenster.

Kinderbad: Wollen wir es bei der Dusche im EG belassen, die Frau will kein 3. Bad putzen und im Keller soll noch ein Wasch- Duschraum später hinzukommen.

Keller: Weiße Wanne ist Pflicht und der Aushub teuer im Stuttgart Raum... daher hat der Architekt eine Teilunterkellerung vorgeschlagen. Ich denke mehr Fläche braucht das Haus auch nicht. Budget Grenze ist langsam aber sicher erreicht.

Momentane Änderungsgedanken: Siehe meine Korrekturen in Rot. Ich würde gerne nochmals den Vorschlag von Yvonne beherzigen und das Wohnzimmer etwas begradigen, sodass auch die Terrasse weniger Ecken hat - zudem würde sich dadurch auch die Abstellkammer (Flur) etwas vergrößern.

Beim Bad würde ich mich über Anordungsvorschläge freuen. Dusche und Waschbecken sollen großzügig werden. Die Momentane Anordnung der Einrichtung / sanitären Anlagen gefällt mir weniger.

Wie seht ihr das Arbeitszimmer, funktioniert die Möblierung so ... es soll uA auch für den eher seltenen Empfang von Kunden dienen.

Nord- und Ostansicht eines Hauses mit Garage, Architektenzeichnung im Maßstab 1:100

Architektonische Zeichnung: Süd- und Westansicht eines Hauses mit Dach, Fenstern und Fundamenten.

Grundriss eines Einfamilienhauses mit Wohnzimmer, Küche, Esszimmer, Treppe, Garage und Garten.

Untergeschoss-Grundriss mit Kellerräumen, Hobbyraum, Flur, Technik, Treppe; Orientierung nach Norden.

Technischer Grundriss des Dachgeschosses mit Räumen, Treppen, Möbeln und Maßlinien.


Schnitt durch ein zweigeschossiges Haus mit Keller; zeigt Räume: Wohnen, Küche, Bad, Kind 1, Hobby.
 
Zuletzt aktualisiert 24.11.2025
Im Forum Grundrissplanung / Grundstücksplanung gibt es 2536 Themen mit insgesamt 88009 Beiträgen


Ähnliche Themen zu Grundriss 200qm mit integriertem Wintergarten und Galerie
Nr.ErgebnisBeiträge
1Grundriss Einfamilienhaus ca. 190qm mit Keller auf Millimeterpapier 78
2Vorplanung mit dem Architekten - eigener Grundriss sinnvoll? 18
3Grundriss Stadtvilla 11.00x11.00m - Seite 219
4Grundriss - Auf der Suche nach Tipps und Ideen von Experten 11
5Ideenfindung für Grundriss 120m2 Einfamilienhaus 12
6Treppe Grundriss Planung, Auftritt und Unterzug - Seite 221
7Einfamilienhaus ohne Keller - Diskussion Grundriss 19
8Kritik an Einfamilienhaus-Grundriss erwünscht (~175m2/0,9m Kniestock/Keller) 16
9Grundriss Bungalow 160-170qm mit Keller - Seite 5175
10Grundriss Einfamilienhaus barrierefrei fürs Alter mit Eltern-Schlafzimmer im EG - Seite 744
11Grundriss Einfamilienhaus 155m², ohne Keller, 3 Kinderzimmer, 1 Büro 38
12Grundriss Einfamilienhaus mit Keller 19
13Grundriss Stadtvilla 180m², Keller, 3 Kinder - Eure Meinungen dazu? - Seite 351
14Grundriss 165 m² mit Keller eure Meinung - Seite 352
15Grundriss Einfamilienhaus ohne Keller, 3 Kinderzimmer und Büro 18
16Grundriss Einfamilienhaus Hanglage mit Keller 19
17Besonderer Grundriss oder langweilig mit Keller? - Seite 220
18Wie findet ihr diesen Grundriss? - Seite 211
19Meinung zum Grundriss eines geplanten Bauhauses 23
20Anregung - Kritik Grundriss Einfamilienhaus 320qm 29

Oben