Grundstücksplanung / Grundrissplanung

4,90 Stern(e) 11 Votes
Zuletzt aktualisiert 21.11.2025
Sie befinden sich auf der Seite 17 der Diskussion zum Thema: Grundstücksplanung / Grundrissplanung
>> Zum 1. Beitrag <<

M

Michilo

Das würde es für mich nicht leichter machen und ich tendiere dann tatsächlich zu Einzel-Carport mit zwei Stellplätzen hintereinander (das ginge sagte er)... gegenüber von meinem Haus entsteht eine Parkbucht, so daß dies vielleicht eine Option wäre. Mal schauen...
Weniger Stellplätze zu bauen, als man Autos hat, finde ich fahrlässig. Es geht in heutigen Wohngebieten eh schon eng zu und dann einen öffentlichen Parkplatz dauerhaft für sich zu beanspruchen...
 
S

SaschaL

Viel besser Optionen fallen mir aber auch nicht ein. Nun also eher 4m zum Nachbarn, mindestens 6m Carport, blieben 8m für das Haus, bei welchem ich ja durch die Bäume und Sträucher in der Länge ebenfalls limitiert wäre.

Um zwei Autos nebeneinander zu parken auf so viel Breite zu verzichten... irgendwie auch nicht gut. Am Ende wird viel davon abhängen, wie breit das Grundstück tatsächlich wird und wie weit ich wirklich vom Nachbarn weg sein muss...

Läuft es richtig gut, hat das Grundstück 18,30m und der Abstand zum Nachbarn beträgt 3,50m: Dann ergäbe sich ein Platz von 5,20-5,80 für zwei Stellplätze (je nach Haus) - eng aber machbar.

Läuft es richtig schlecht, hat das Grundstück nur 17,70m und der Abstand zum Nachbarn muss bei 4m liegen, dann blieben gerade mal 4,10-4,60

Wir werden sehen - es wird in jedem Fall eine Lösung geben. Mir wäre es auch lieber, es wäre 22 Meter breit, aber so ist es halt nicht. Wird sich lösen lassen.

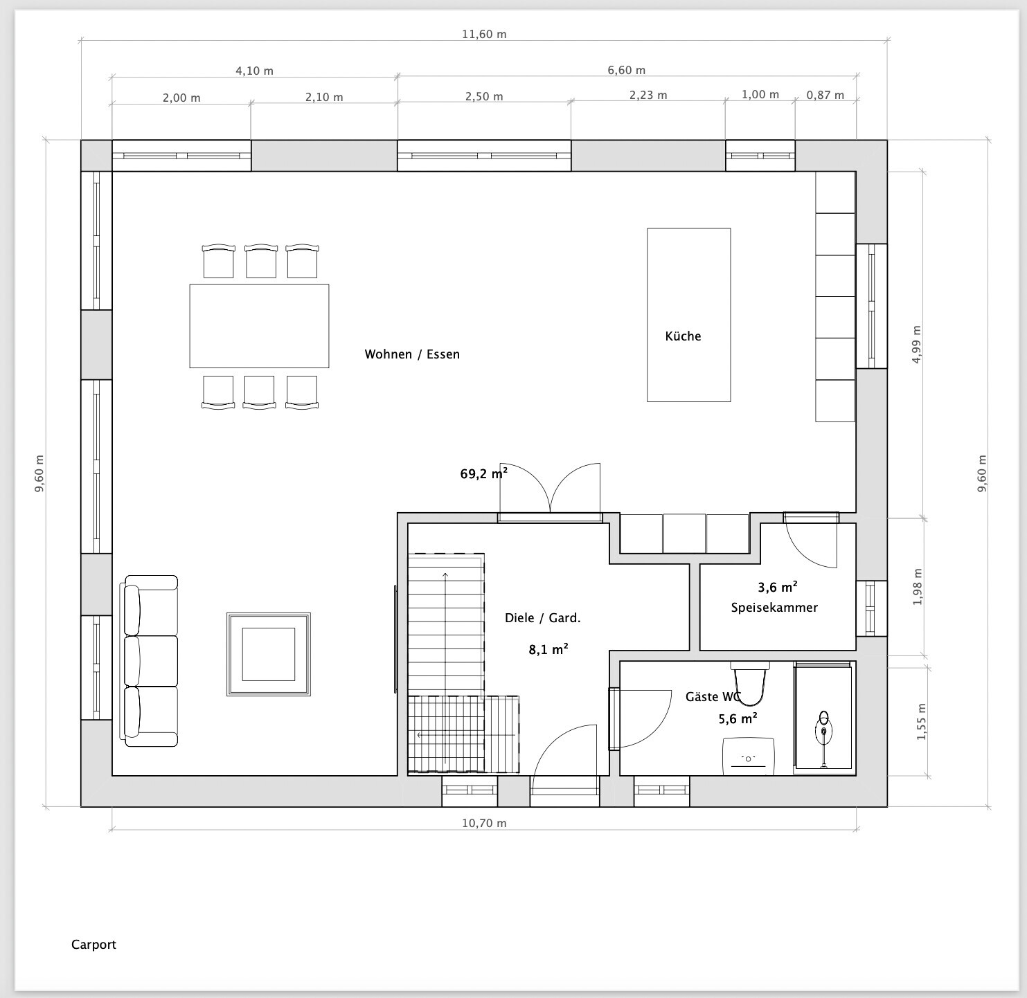
Mal schauen... bei 11,60 Hauslänge könnte man das Haus vielleicht auch mit 4m Abstand zur Straße stellen - dann könnte man vielleicht vor dem Haus noch einen Stellplatz quer erreichen - ohne jegliche Überbauung. Werde ich auch mal prüfen.
 
S

SaschaL

Ja, wie gesagt, das prüfe ich... aber 3 Meter reichen da wahrscheinlich nicht, oder? Bei 4 Meter verliere ich halt nach hinten wieder Garten / Terrasse, welches eh bereits nicht sehr üppig ausfällt... mal schauen.

In jedem Fall macht mir das alles bisher (noch) einen Heidenspaß! :D
 
S

SaschaL

Hier mal das kleine Update:

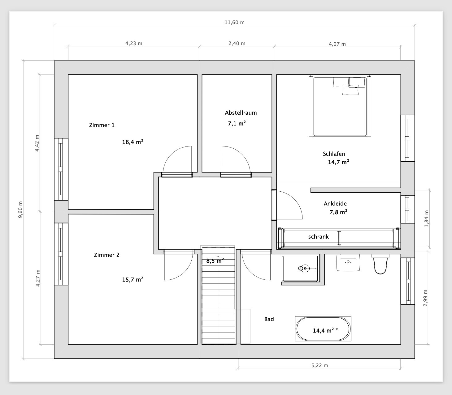
- nun 9,60 breit, das ist gerade im OG sehr hilfreich, Bad müsste so passen mit 2 Meter Linie etc.
- aufs Büro oben verzichtet. Wir sind aktuell zu zweit und haben daher genug Zimmer. Selbst wenn sich das deutlicher ändern sollte, als erwartet (;)), bietet der Keller genug Platz und hier tendiere ich stark zu 2,33 Raumhöhe, was dann auch gut nutzbar ist
- Statt Büro oben eine Abstellkammer (vielleicht noch zu groß? Löst das Problem mit Lichteinfall und irgendwo muss der Staubsauger ja auch hin...
- Fenster sind im Plan alles andere als final - bisher mehr oder weniger Platzhalter, ohne exakte Maße zu kennen - ergo auch noch unpassende Abstände zueinander etc
- Speisekammer meint hier eigentlich auch eher eine Abstellkammer für alles mögliche...

Grundriss eines Wohnhauses: Wohnzimmer mit Esstisch, Küche, Diele, Speisekammer, Gäste-WC, Carport.


Grundriss eines Wohnhauses mit Zimmer 1, Zimmer 2, Schlafen, Ankleide, Abstellraum und Bad.


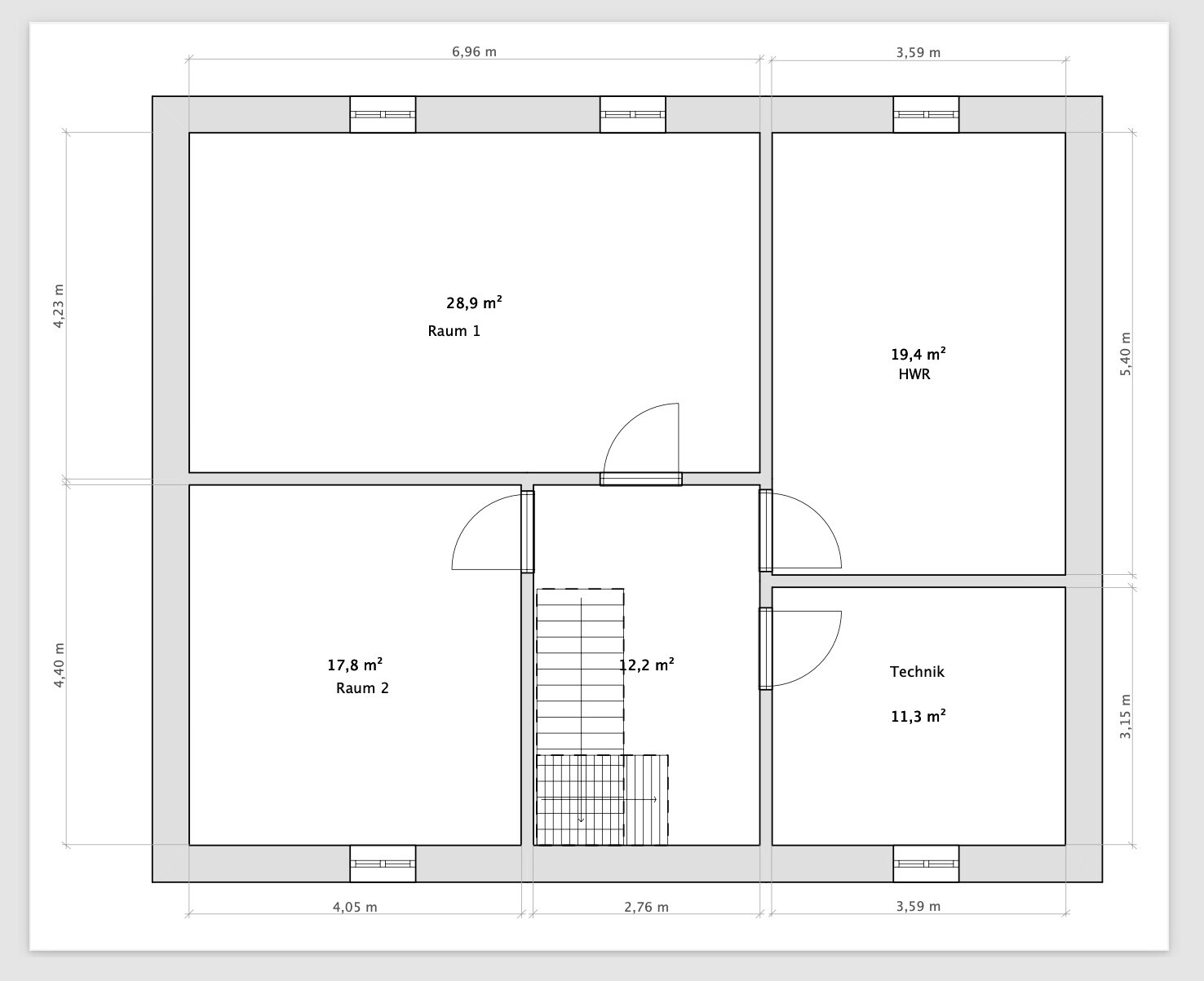
Grundriss eines Gebäudes mit vier Räumen (Raum 1, Raum 2, HWR, Technik) und Treppenhaus.
 
Y

ypg

Die Treppe ist zu kurz. Aber da geht ja noch was. Dann wird halt der Flur oben eingerückt.
Wo ist Norden?
Ich persönlich würde eine Treppe mit Absatz des Eingangsbereiches, der oft sandig ist, vermeiden., wenn man die Möglichkeiten hat (also mehr Platz als 55/60qm auf jeder Ebene)
 
Zuletzt aktualisiert 21.11.2025
Im Forum Grundrissplanung / Grundstücksplanung gibt es 2535 Themen mit insgesamt 87980 Beiträgen


Ähnliche Themen zu Grundstücksplanung / Grundrissplanung
Nr.ErgebnisBeiträge
1langes, schmales Grundstück teilen 12
2Grundrissoptimierung Einfamilienhaus mit Keller auf kleinem Grundstück - Seite 14178
3Lage Stadtvilla oder Einfamilienhaus auf 500 m2 Grundstück-Rechteck 586
4Planung 130 qm Einfamilienhaus auf 500 qm Grundstück - Seite 424
5Alle erforderlichen Stellplätze bauen, auch wenn diese nicht benötigt? - Seite 656
6Zu Wenig Stellplätze für Baugenehmigung 20
7Grundrisse Einfamilienhaus mit Einliegerwohnung 280 m2 auf 320m2 sympathisch kleinen Grundstück - Seite 286
8Grundriss-Grundstück Einfamilienhaus, leichte Hanglage ca. 175m² - Seite 367
9Grundstück Aktionshäuser Erfahrungen? - Seite 434
10Einfamilienhaus 160qm erste Überlegung zur Lage auf dem Grundstück 22
11Suche nach Ideen für Grundstück mit Hanglage 28
12Neue Planversion zu meinem Grundstück 22
13Ausrichtung der Räume bei Nord-Ost Grundstück - Seite 322
14Kleines Grundstück und Winkelbungalow - Seite 226
15Grundrissplanung für schmales Grundstück - Seite 216
16Stellplatz / Zufahrt Problem bei Hanglage (v. Straße ansteigend) 12
17Grundrissplanung mit enger werdendem Grundstück - Seite 223
18Grundstück die Zweite - Bitte um Beurteilung - Seite 544
19Langes schmales Grundstück 170-190 qm 50
20Haus passend zum Grundstück? Größe vom Grundstück ausreichend? 22

Oben