Grundstücksplanung / Grundrissplanung

4,90 Stern(e) 11 Votes
Zuletzt aktualisiert 21.11.2025
Sie befinden sich auf der Seite 19 der Diskussion zum Thema: Grundstücksplanung / Grundrissplanung
>> Zum 1. Beitrag <<

S

SaschaL

Danke für Eure Beiträge!

Gibt es denn bei Euch kein Geoportal? Da stimmen die Grundstuecksgroessen eigentlich. Wenn das Gruenstueck vor dem Kauf vermessen wird auf jeden Fall.
Die Abweichungen sind eher im 1% als im 10% Bereich.
Doch, aber es gibt die einzelnen Grundstücke noch nicht - bisher ist das ein großes Areal.

Ich würde die Ankleide soweit Richtung Schlafzimmer erweitern, das eine zweite Schrankwand reinpasst. Eine Schiebetür zwischen Ankleide und Schlafzimmer würde ermöglichen, das Schlafzimmer bei Bedarf abzukoppeln, ohne im Alltag zu stören.
Ja, über die Wand haben wir auch nachgedacht - zwei Schrankreihen sind natürlich auch nett, wir mögen aber auch sehr gerne etwas Platz vor dem Bett. Unser aktuelles Schlafzimmer ist ca. 4x4 Meter und das mögen wir sehr gerne, zumal unser Bett Sondermaße hat (Wasserbett) und 20cm länger ist als die meisten betten. Aber ich schaue mir das nochmal an. Mehr Schrankmeter schaden nicht.

Bad ist auch schlecht möbliert: Zw Dusche und Wanne ist es zu eng... Dusche ist zu kurz... das muss man auch mit definierten Fenstern planen.
Ja, das stimmt - mit dem Bad bin ich so auch nicht glücklich - da fehlen wir auch Erfahrungswerte, wie weit die Abstände sein sollten, aber da kann ich mich ja auch an Muster-Grundrissen etwas orientieren. Schaue ich mir an und versuche es nochmal zu verbessern.

Die Treppen funktionieren so wirklich nicht. Du überbaust mit dem Bad mindestens 2 Stufen, da stößt du dir den Kopf. 1 Stufe ist bei normaler Deckenhöhe ok.......Die Kellertreppe funktioniert so momentan gar nicht, ....
Ja, zugegeben: Treppen sind mir als Laie ein Graus, weil ich nicht weiß wie groß die sein müssen und wie es dann alles passt. Da erhoffe ich mir dann Hilfe von dem, der dann den "bautauglichen" Plan erstellt - soll so ja nur meine Idee / Wunsch visualisieren. Ich hatte mir hier extra "mögliche Treppen-Grundrisse" mit den Maßen rausgesucht, mir aber schon gedacht, dass das so nix wird.

Abstellraum in der Größe sehe ich im OG nicht, ihr habt doch einen riesigen Keller und ein Stausauger braucht keine 7 qm. Würde da entweder doch ein kleines Büro reinplanen (zumindest ein großes Dachflächenfenster rein, damit es später ein kuschliges Büro werden kann) oder den Hauswirtschaftsraum mit Waschmaschine da rein. Im Keller mit Lichtschächten arbeitet man ja jetzt nicht so gerne.
Hauswirtschaftsraum oben wollen wir in keinem Fall. Kleines Büro hatte ich da erst, aber das wird wirklich klein und dann sitze ich glaube ich lieber im Keller. Mal schauen... 7qm ist wahrscheinlich wirklich etwas doll, insbesondere haben wir ja - wie du richtig sagst - noch den Keller.

Feuchtraum sehe ich dort auch nicht. Ist schließlich darunter ein offener Wohnbereich mit Glas...
Ich würde da wohl noch etwas arbeiten und Tetris spielen... schon allein wegen der Treppe (wenn man denn wüsste, wie rum es jetzt sein soll, das Haus... :rolleyes:)
Ich würd dort wohl Doppelflügelfenster und eine kleine Galerie (Leseecke oder dergleichen) planen, also offen zum Flur, dann bekommt auch er etwas Licht ab.
Sorry, Du hast natürlich recht - ich vergesse immer Norden einzuzeichnen. Mach ich beim nächsten Entwurf - versprochen. Norden ist ziemlich genau da wo das Bad im OG ist.

Also zum Tetris: Ich bin für jeden konkreten Vorschlag sehr dankbar! Gerade das mit der Treppe packe ich als Laie nicht vernünftig fürchte ich. Den Bereich der Abstellkammer oben offen zu lassen, habe ich überlegt... könnte auch ne Option sein, macht das alles ja etwas luftiger und lässt etwas licht rein. Ist für mich aber ansonsten toter Raum, weil ich weiß, dass da keiner von uns jemals sitzen würde zum Lesen etc...
 
S

SaschaL

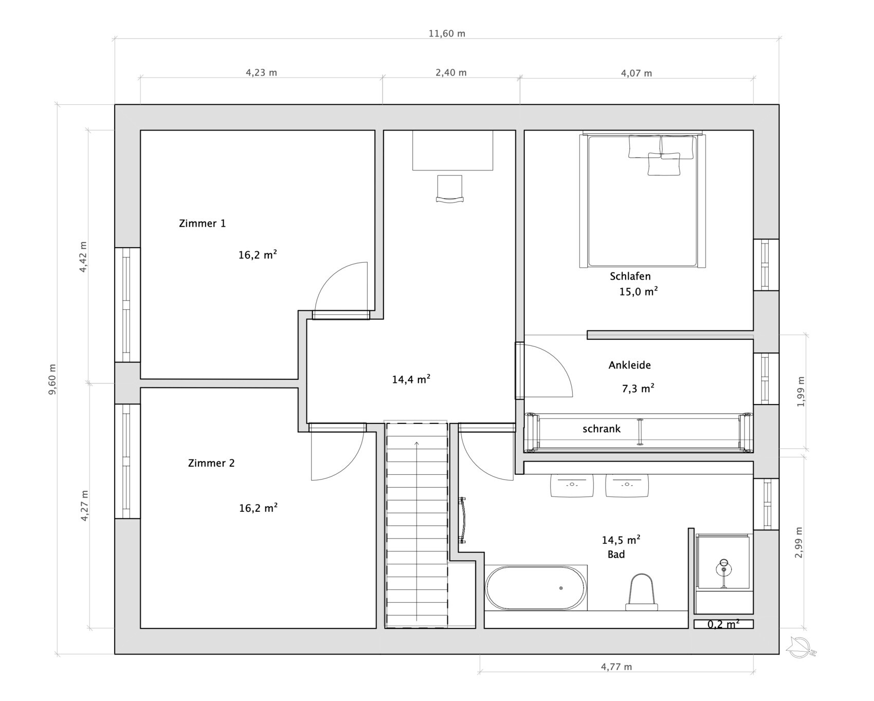
Update OG - habe versucht Eure Hinweise umzusetzen:

- breitere Ankleide wird schwierig - habe unser Bett nun einmal in korrekter Größe eingezeichnet (2,40 lang, 2,20 breit)... wenn man die Wand so weit verschiebt, dass ein zweiter schrank passt, dann wird es vor dem Bett sehr eng
- Abstellkammer ist nun offener Raum - da müsste dann ein Dachflächenfenster hin
- Treppe habe ich versucht anzupassen - und die Wände entsprechend verlängert... im Bad eine Ecke integriert, so daß man sich nicht mehr die Birne stößt, wenn man vom EG ins OG will :) So habe ich das doch richtig verstanden, oder?
- Bad umgeplant... so im Ansatz besser? Dafür sind die Fenster schmaler geworden, weil die Dusche so sonst vor dem Fenster stünde...
- Norden eingezeichnet ;)


Grundriss eines Obergeschosses mit Zimmer 1, Zimmer 2, Schlafen, Ankleide und Bad.
 
Zuletzt bearbeitet:
S

SaschaL

Puh, ich dachte ich bekomme ein Lob ;) Treppe wenigstens besser?

Ich gebe mir Mühe - wirklich! Danke für die Tipps... und wenn man Toi und Dusche einfach tauscht, mit weiterer Zwischenwand?

Edit: sehe gerade, dann wird es schon eng alles... ich grübel mal weiter.
 
Zuletzt aktualisiert 21.11.2025
Im Forum Grundrissplanung / Grundstücksplanung gibt es 2535 Themen mit insgesamt 87980 Beiträgen


Ähnliche Themen zu Grundstücksplanung / Grundrissplanung
Nr.ErgebnisBeiträge
1Dusche direkt am Fenster - kompatibel oder inkompatibel? - Seite 422
2Bodengleiche Dusche mit Fenster in der Nähe 13
3Preisdifferenz Bodenplatte zu Keller. Kann man das abschätzen? - Seite 532
4Einfamilienhaus (2Etagen+Wohn-Keller+ausgebautes Dach) etwa 200qm -Änderungen - Seite 13162
5Werkplanung Einfamilienhaus 180qm Flachdach mit Keller & Doppelgarage - Seite 2142
6Einfamilienhaus ohne Keller - Diskussion Grundriss 19
7Grundrissplanung: Badezimmer Dusche - Seite 347
8200m2 Einfamilienhaus für 4-5 Personen ohne Keller auf schmalem Grundstück - Seite 1067
9Ideen zu Entwurf für Einfamilienhaus mit Keller - Seite 647
10Grundriss Einfamilienhaus mit Keller 19
11Einfamilienhaus Grundriss mit Keller, Version 2 23
12Grundriss 180qm plus Keller - 12,40mx9,04m 21
13Tipps für Sauna im Keller & Tipps für Fitnessstudio im Keller? - Seite 216
14Grundrissplanung Einfamilienhaus in L-Form - Seite 468
15Mit oder ohne Keller Bauen - Erfahrungen - Seite 549
16Grundriss Stadtvilla 180m², Keller, 3 Kinder - Eure Meinungen dazu? - Seite 251
17Fenster im Gäste-WC/Gästezimmer trotz Garage möglich? - Seite 333
18Entwurf EFH, 2 Vollgeschosse, Satteldach, kein Keller, Doppelgarage - Seite 231
19Umbau Kinderzimmer - Fenster in zwei Fenster aufteilen? 20
20Grundriss Stadtvilla / Anordnung Fenster, Feedback erwünscht - Seite 216

Oben