Grundriss mit KG auf Hanggrundstück

4,80 Stern(e) 5 Votes
Zuletzt aktualisiert 22.11.2025
Sie befinden sich auf der Seite 3 der Diskussion zum Thema: Grundriss mit KG auf Hanggrundstück
>> Zum 1. Beitrag <<

WildThing

WildThing

In der Küche würde ich die Speis lieber weglassen. Dafür aber überlegen wo z. B. ein Staubsauger und das Putzzeug im EG unterkommt. Vielleicht in einem schrank in der Garderobe?

Das EG gefällt mir ansonsten aber sehr gut. Gut, die Dusche mit dem Bad ist arg klein, aber das wolltet ihr ja vermutlich ohne Dusche machen.

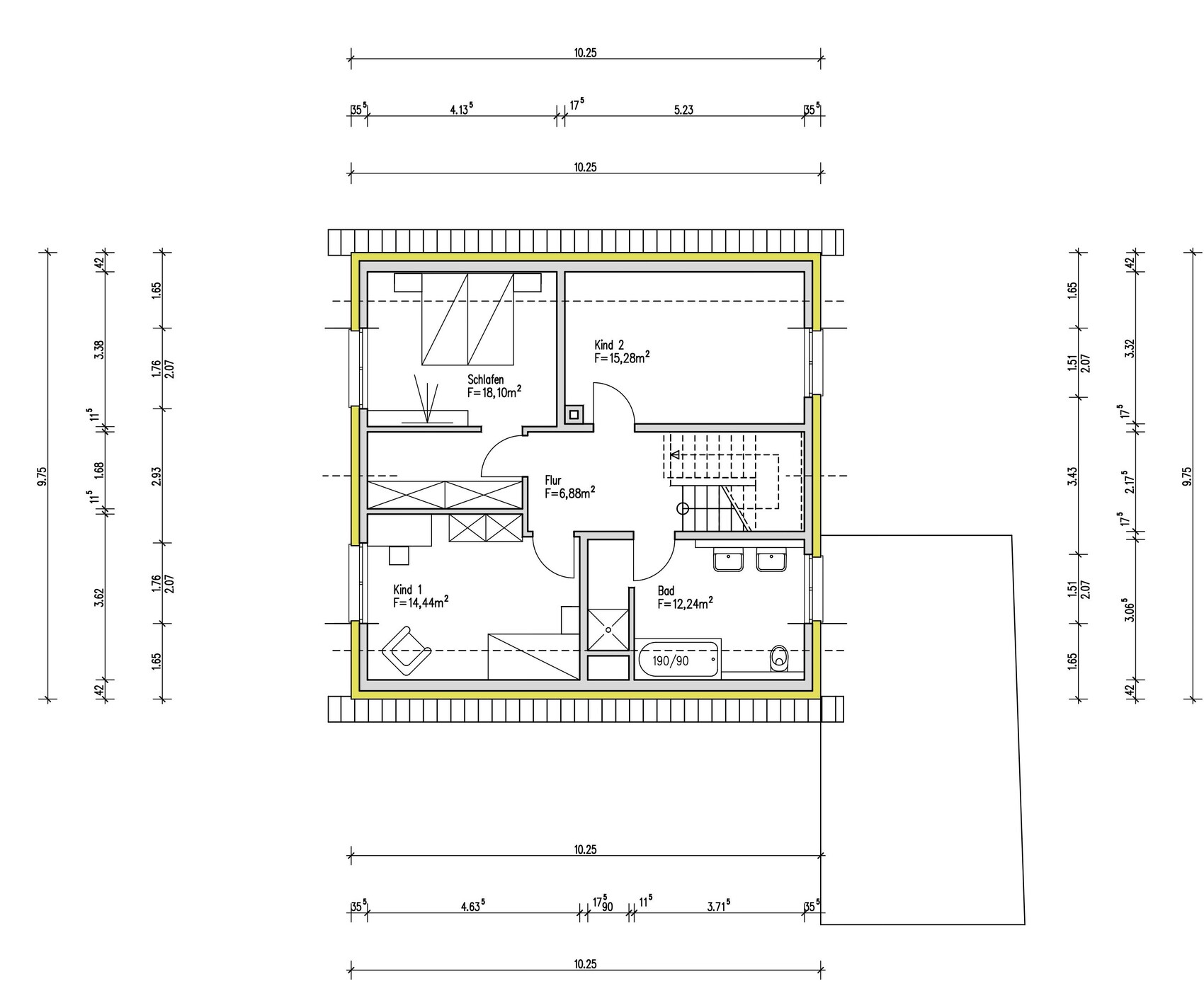
Ob die Kinderzimmer im Norden vom Licht so glücklich werden? Ihr kennt euer Grundstück, wie ist es mit dem Lichtverhältnissen. Kann man da noch Hausaufgaben machen oder ist es ggfs .im Winter schon sehr dunkel mit dem Fenster auf der einen Seite ?

Das OG ist auch soweit ganz schön, klare Linien und gute Raumaufteilung.
Allerdings bin ich mir nicht sicher ob euch die Ankleide tatsächlich soviel Stauraum bringt? Sieht recht klein aus und die drei Schränke und dann die Schräge? Ich würde mir das vielleicht nochmal möblieren und überlegen ob ihr da alles unterbekommt.

Außerdem find ich die Dusche im Bad auch nicht so gut platziert, aber durch das Fenster geht auch kaum etwas anderes. Ist das Fenster Bodentief im Bad?
 
Y

ypg

Yvonne, der Balkon ist doch von der Küche und vom Esszimmer aus erschlossen. Es handelt sich wohl um ein Hanghaus.
Yvonne klatscht sich gerade mit der Hand an den Kopf oder mit dem Kopf an die Wand :confused:
Si si, ich versteh :)
Allerdings sollten, wie Du ja auch sagst, die Kinderzimmer gen SW geplant werden. Denn auch hier gilt der Lärmeffekt vom Balkon zum Geschoss darüber.

Standardgrundriss ja so ist das leider meistens wenn man nicht über Architekt plant. Daher ja die Frage was man ändern sollte das können wir dann weiter geben.
Bei drei Geschossen und Hang würde ich an Eurer Stelle prüfen, ob es sich besser anbietet, wenn man die Ebenen anders aufteilt.
Das geht auch mit einem BU-Standard-Entwurf. Es ist schon etwas mehr Lebensqualität, wenn man beim schönen Wetter raus in den Garten und wieder rein kann. Ich bin irgendwie ständig von der Küche zu den Beeten am Pendeln. Da wäre die Treppe etwas mühsam.
Aber das muss man an seinen eigenen Typ festmachen.
 
W

Watcher78

Danke das mit der Ankleide ist ein guter Punkt denn man nochmal überdenken sollte. mh habt ihr Ideen zwecks Badeinteilung. Man sieht ja manchmal auch so Trennwände wo dann das Bad oder Toilette dran hängen.
Die Einteilung gefällt uns so ganz gut und war auch unsere Vorgabe. Also sprich Gästezimmer und Büro Keller. Schlafen komplett im OG
 
W

Watcher78

Wir sind ein bisschen verunsichert wg. der Aufteilung der Räume im EG. Momentan planen wir das Whz. nach vorne zur Straße Richtung SüdWest. Den schönen weitläufigen Blick gibt Richtung NO da wo der Balkon geplant ist. Daher die Frage Küche mit Whz. wie momentan gezeichnet tauschen oder so lassen damit das Whz immer schön Licht von Süden bekommt ?!
 
W

Watcher78

Moin zusammen, wir haben den Grundriss nochmal ein wenig verändert. Jetzt haben wir das Haus quer zur Straße gestellt, weil wir so eine schönere Ansicht für den Balkon im Garten erreichen können. Balkon auf Stelzen an Giebelseite sieht irgendwie komisch aus.
Neu im Grundriss ist eine Podesttreppe. EG gefällt ganz gut nur der Durchgangstür zur Garage passt irgendwie nicht, dadurch ist in dem Raum zu wenig Platz. Raum dient für Staubsauger, Putzzeug etc.
Das OG gefällt noch nicht wirklich, finde die Zimmer nun ein wenig schlauchig oder bilde ich mir das nur ein ? Schlafzimmer und Ankleide auch nicht optimal. Evtl. würde ich Bad mit Kind 2 tauschen.
Nachteil an dem Grundriss wäre das die Kinderz immer Fenster nach OS und NW haben, evtl. könnte man in den Kinderzimmern noch jeweils ein Dachflächenfenster Richtung SW machen ?

Grundriss eines Obergeschosses mit Schlafzimmern, Flur und Bad in Architektenplan


Grundriss eines Hauses mit offener Küche, Essbereich, Wohnzimmer und Balkon


Grundriss eines Obergeschosses mit Balkon, zwei Räumen, Dusche/WC und Diele
 
Zuletzt aktualisiert 22.11.2025
Im Forum Grundrissplanung / Grundstücksplanung gibt es 2535 Themen mit insgesamt 87984 Beiträgen


Ähnliche Themen zu Grundriss mit KG auf Hanggrundstück
Nr.ErgebnisBeiträge
1Grundriss. Meinungen, Ideen und konstruktive Kritiken. - Seite 424
2Bitte um Meinung zum Grundriss 12
3Grundriss Einfamilienhaus mit offener Bauweise 11
4Grundrissplanung: Badezimmer Dusche 47
5Grundriss: Doppelhaushälfte 8x12m Meinungen und kreative Ideen erwünscht :-) - Seite 6123
6Grundriss-Optimierung | Doppelhaushälfte am Hang mit 192m² Wohnfläche - Seite 1387
7Grundriss Neubau Satteldachhaus 145 qm, 9 x 11,5 m, kurz vor Bauantrag - Seite 332
8Grundriss Bungalow Meinungen 31
9Grundriss-Planung und Platzierung - Einfamilienhaus ca. 200qm auf 900qm Grundstück 55
10Haus am Hang Grundriss-Feinschliff - Seite 592
11Bungalow Grundriss 3 Personen, 130qm, bitte Meinungen… - Seite 2167
12Grundriss Einfamilienhaus geplant, Fenster gefallen uns 43
13Grundriss Neubau Einfamilienhaus: Fenster/Türen/Innenwände Größe/Anordnung ok? 20
14Bungalow 135qm: Grundriss + Fenster - Seite 7104
15Doppelhaushälfte 144qm Bitte um Verbesserungsvorschläge - Seite 320
16Dusche direkt am Fenster - kompatibel oder inkompatibel? - Seite 422
17Grundriss Einfamilienhaus ohne Keller, 3 Kinderzimmer und Büro 18
18Grundriss Einfamilienhaus 155m², ohne Keller, 3 Kinderzimmer, 1 Büro 38
19Meinung zum Grundriss eines geplanten Bauhauses 23
20Eure Meinungen zu unserem Grundriss und Angebot - Seite 322

Oben