Grundrissoptimierung Stadtvilla + Aufschüttüberlegung

4,70 Stern(e) 21 Votes
Zuletzt aktualisiert 21.11.2025
Sie befinden sich auf der Seite 86 der Diskussion zum Thema: Grundrissoptimierung Stadtvilla + Aufschüttüberlegung
>> Zum 1. Beitrag <<

Status
Für weitere Antworten geschlossen.
C

Crossy

1,2 m für eine Doppektür erscheint mit zu klein. Da würde ich eher eine normale 1m Tür mit kleinem feststehendem Glaselement daneben nehmen.
Geht da nicht vielleicht auch eine große Glasschiebetür, die parallel in den Küchenbereich geschoben wird. Dann hättest du das Problem mit der Tür im Weg nicht. Wir bekommen sowas ähnliches. Allerdings mit feststehendem Glasseitenteil. Griffwerk Planeo Loft
 
A

Alessandro

mach das Gästezimmer/Büro vom WZ aus zugänglich, dann kannst du die komplette Wand im Flur mit Schränken zupflastern bzw. eine Nische für die Garderobe aus dem Gästezimmer/Büro wegnehmen
 
C

chrisw81

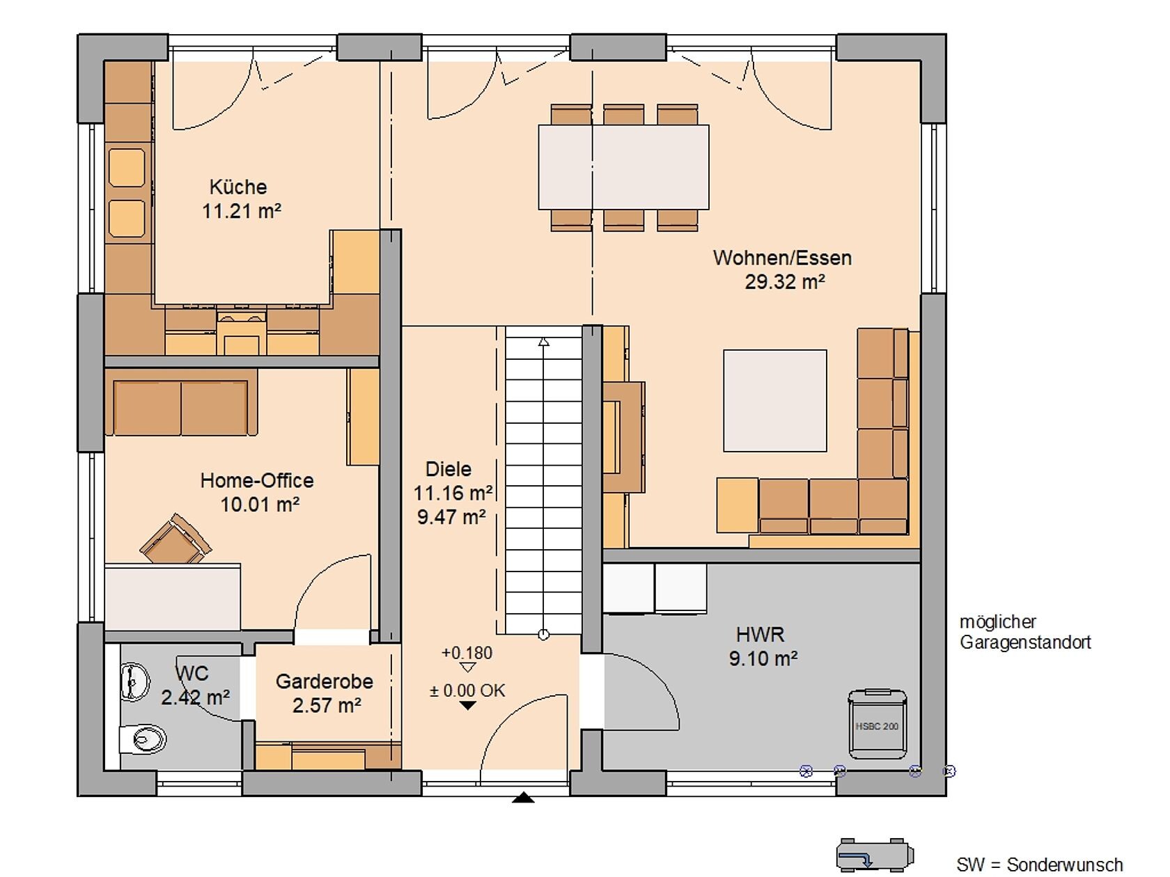
Ich werfe mal einen ganz neuen Grundriss in den Raum:
Der hier ähnelt eurem Wohnbereich, nur die anderen Räume sind anders angeordnet. Und eine Garderobe ist auch dabei!!


Grundriss EG: Küche, Wohnen/Essen, Diele, Home-Office, WC, Garderobe, HWR, Garagenstandort
 
11ant

11ant

ich sehe leider falsche Prioritäten beim Entwurf.
Der TE genügt leider nicht, falsche Prioritäten zu haben - sie muß sie auch noch wie die Unterhosen wechseln
Ich wusste Nicht, dass man den treppenabstellraum vielleicht von der Küche begehbar machen kann
ist nicht dein ernst (???)
Wir bekommen sowas ähnliches. Allerdings mit feststehendem Glasseitenteil. Griffwerk Planeo Loft
Das klingt interessant - zeig´ mal (in Deinem Thread)
Ich werfe mal einen ganz neuen Grundriss in den Raum:
Nee, nicht neu. Den hatten wir letzte Woche schon - da habe ich gesagt, daß da auch ohne Anpassung auf die hier größere Haustiefe im Flur "genug" Platz für Dein Klavier und Schnutes Nähmaschine sei.
 
Status
Für weitere Antworten geschlossen.
Zuletzt aktualisiert 21.11.2025
Im Forum Grundrissplanung / Grundstücksplanung gibt es 2535 Themen mit insgesamt 87978 Beiträgen


Ähnliche Themen zu Grundrissoptimierung Stadtvilla + Aufschüttüberlegung
Nr.ErgebnisBeiträge
1Hauseingang mit Flur oder ohne 15
2Finanzierung Hausbauangebot 138qm Einfamilienhaus 2 Vollgeschosse + Keller - Seite 332
3Treppe im Flur, Grundriss steht eigentlich schon :o( - Seite 320
4Welcher Bodenbelag im Eingang/Flur? Wer hat Erfahrungen? Bilder? 14
5Grundrissplanung: Flur im EG breit genug? 57
6Probleme bei der Flur-Möblierung, wer hat Ideen? - Seite 443
7Parkett von Flur in Zimmer durchlegen - Seite 217
8Einrichtung Ankleidezimmer Tür zum Badezimmer - Seite 234
9Fenster / Türen / Garderobe 13
10Flur-Grundriss vergrößern REH von 1921: Tipps? - Seite 227
11Anschlagrichtung und Position Tür im Bad OG 14
12Tür Haus/Garage: Nebeneingangstür als Brandschutztür? - Seite 327
13Abdichtung Terrassenaustritt / -Tür bei zweischaligem Mauerwerk 10
14Besta-Regal mit Tür und Schublade Inreda/IKEA, brauche Hilfe 11
15Schalter für Rollläden am Fenster oder an der Tür? 38
16Ausbesserung der Tür machte es noch "schlimmer" - Seite 225
17Tür Schiebeeinrichtung falschherum - Seite 221
18Hörmann T30 Tür zwischen Wohnhaus & Garage - U-Wert - Seite 211
19Tür nach innen oder außen aufgehend? Was ist normal? - Seite 432
20Pflastern bis an die Tür - wie Abschluss? 15

Oben