ᐅ Stadtvilla mit 165qm - erste Ideen?
Erstellt am: 02.05.20 22:19
Hallo zusammen,
kurz vorweg: Wir stehen noch ganz am Anfang der Planung, und sind hier auch totale Anfänger... möchten aber gut vorbereitet in die ersten Gespräche gehen und es geht für uns vor allem darum erst einmal herauszufinden ob "wir auf dem richtigen Weg sind" und unsere Planung überhaupt grob passt. Die Möbel sind nur sporadisch reingesetzt
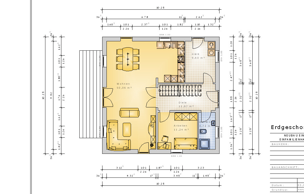
Wir möchten eine Stadtvilla mit ca. 165qm bauen - wichtig sind uns dabei im EG ein Gästezimmer, das idealerweise später als Elternschlafzimmer genutzt werden kann sowie ein Gäste-WC mit Dusche.
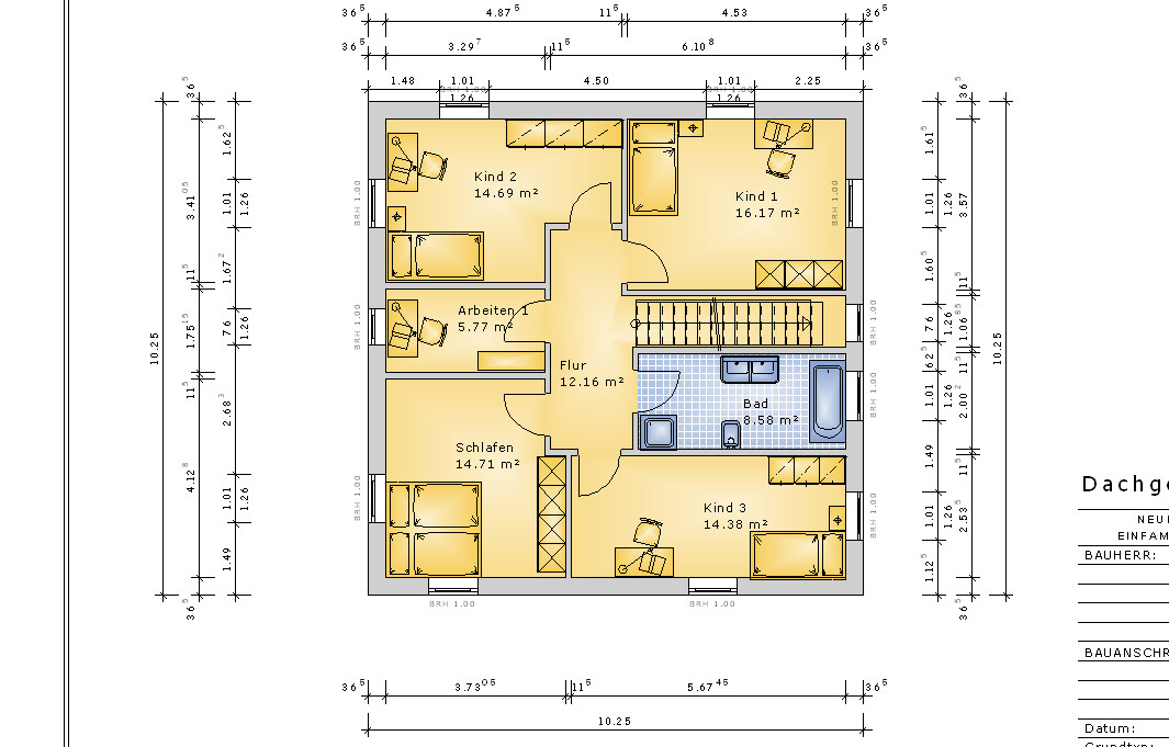
Im OG drei Kinderzimmer plus Elternschlafzimmer sowie ein kleines "Arbeitszimmer" für Nähmaschine, Staubsauger, nachtaktive Meerschweinchen
Größe des Grundstücks 1.100qm, NO-Lage, Haus wird mittig auf dem Grundstück ausgerichtet, Auffahrt und Stellplätze rechts davon mit Durchgang durch den Hauswirtschaftsraum
Hang nein
Grundflächenzahl 0,3
Geschossflächenzahl ?
Baufenster, Baulinie und -grenze ?
Randbebauung ?
Anzahl Stellplatz 2
Geschossigkeit 2
Dachform Zeltdach 25 Grad
Stilrichtung Stadtvilla modern
Ausrichtung Hauseingang Südwest
Maximale Höhen/Begrenzungen 10m
weitere Vorgaben ?
Anforderungen der Bauherren
Stilrichtung, Dachform, Gebäudetyp
Moderne Stadtvilla Zeltdach 25 Grad
Keller, Geschosse 2 Vollgeschossen ohne Keller
Anzahl der Personen 5
Hausentwurf
Von wem stammt die Planung?
Selbst erstellt
Was gefällt besonders? Warum?
Drei relativ gleich große Kinderzimmer, offener Ess-/Wohnbereich im EG
Was gefällt nicht? Warum?
Gästezimmer relativ klein, schwierig als Elternschlafzimmer später nutzbar
Elternschlafzimmer im OG klein
Badezimmer im OG über dem Wohnzimmer (evtl. Dämmung der Fallrohre?)
Warum ist der Entwurf so geworden, wie er jetzt ist?
Erster Ansatz von uns als "Laien" der erst einmal alle für uns relevanten Räume enthält, aber sicherlich noch optimiert werden kann


kurz vorweg: Wir stehen noch ganz am Anfang der Planung, und sind hier auch totale Anfänger... möchten aber gut vorbereitet in die ersten Gespräche gehen und es geht für uns vor allem darum erst einmal herauszufinden ob "wir auf dem richtigen Weg sind" und unsere Planung überhaupt grob passt. Die Möbel sind nur sporadisch reingesetzt
Wir möchten eine Stadtvilla mit ca. 165qm bauen - wichtig sind uns dabei im EG ein Gästezimmer, das idealerweise später als Elternschlafzimmer genutzt werden kann sowie ein Gäste-WC mit Dusche.
Im OG drei Kinderzimmer plus Elternschlafzimmer sowie ein kleines "Arbeitszimmer" für Nähmaschine, Staubsauger, nachtaktive Meerschweinchen
Größe des Grundstücks 1.100qm, NO-Lage, Haus wird mittig auf dem Grundstück ausgerichtet, Auffahrt und Stellplätze rechts davon mit Durchgang durch den Hauswirtschaftsraum
Hang nein
Grundflächenzahl 0,3
Geschossflächenzahl ?
Baufenster, Baulinie und -grenze ?
Randbebauung ?
Anzahl Stellplatz 2
Geschossigkeit 2
Dachform Zeltdach 25 Grad
Stilrichtung Stadtvilla modern
Ausrichtung Hauseingang Südwest
Maximale Höhen/Begrenzungen 10m
weitere Vorgaben ?
Anforderungen der Bauherren
Stilrichtung, Dachform, Gebäudetyp
Moderne Stadtvilla Zeltdach 25 Grad
Keller, Geschosse 2 Vollgeschossen ohne Keller
Anzahl der Personen 5
Hausentwurf
Von wem stammt die Planung?
Selbst erstellt
Was gefällt besonders? Warum?
Drei relativ gleich große Kinderzimmer, offener Ess-/Wohnbereich im EG
Was gefällt nicht? Warum?
Gästezimmer relativ klein, schwierig als Elternschlafzimmer später nutzbar
Elternschlafzimmer im OG klein
Badezimmer im OG über dem Wohnzimmer (evtl. Dämmung der Fallrohre?)
Warum ist der Entwurf so geworden, wie er jetzt ist?
Erster Ansatz von uns als "Laien" der erst einmal alle für uns relevanten Räume enthält, aber sicherlich noch optimiert werden kann
S
saralina8702.05.20 23:51Ich finde den Grundriss im Ansatz nicht verkehrt - aber die Küche wird so nicht funktionieren. Je nachdem ob euch eine Insel wichtig ist muss das anders gelöst werden.
Was mir im OG auffällt ist dass da extrem viel Platz für Flur vergeudet wird, da würde ich die Aufteilung noch mal überdenken. Für fünf Personen ist das Bad möglicherweise auch ein bisschen zu klein, wobei das ja sehr subjektiv ist.
Mir würde bei solchen bzw. ähnlichen Maßen sowas sehr gut gefallen (nur mal als Inspiration):


Was mir im OG auffällt ist dass da extrem viel Platz für Flur vergeudet wird, da würde ich die Aufteilung noch mal überdenken. Für fünf Personen ist das Bad möglicherweise auch ein bisschen zu klein, wobei das ja sehr subjektiv ist.
Mir würde bei solchen bzw. ähnlichen Maßen sowas sehr gut gefallen (nur mal als Inspiration):
P
Pinky030103.05.20 07:38CinkiNI schrieb:
im EG ein Gästezimmer, das idealerweise später als Elternschlafzimmer genutzt werdenWieso?Danke für Eure ganzen Anregungen, mein Mann hat noch mal ein wenig getüftelt Badezimmer haben wir jetzt aktuell unter 7qm - größer wäre natürlich toll, uns sind aber die Kinderzimmer da wichtiger.
Fällt Euch zu dieser groben Anordnung noch etwas ein?


Fällt Euch zu dieser groben Anordnung noch etwas ein?
Pinky0301 schrieb:Wir möchten gerne dass die Kinder (jetzt alle noch recht klein) wenn sie etwas älter sind oben ihre "Kinder-Etage" bekommen darum auch unbedingt die Dusche unten im Gäste-WC, somit ist das (recht kleine) Bad im OG dann effektiv doch nur für die Kinder
Wieso?
Ähnliche Themen