ᐅ Grundrissoptimierung Stadtvilla + Aufschüttüberlegung
Erstellt am: 31.01.20 13:29
Shiny8631.01.20 13:29
Größe des Grundstücks 492qm
Hang ja
Grundflächenzahl ?
Geschossflächenzahl ?
Baufenster, Baulinie und -grenze ?
Randbebauung ?
Anzahl Stellplatz 2
Geschossigkeit 2
Dachform Zeltdach 25 Grad
Stilrichtung Stadtvilla modern
Ausrichtung Hauseingang Norden
Maximale Höhen/Begrenzungen
weitere Vorgaben ?
Anforderungen der Bauherren
Stilrichtung, Dachform, Gebäudetyp
Moderne Stadtvilla Zeltdach 25 Grad
Keller, Geschosse 2 Vollgeschossen ohne Keller
Anzahl der Personen 4
offene Küche, Kochinsel
Anzahl 8-10
Garage
Hausentwurf
Von wem stammt die Planung?
-Architekt
Was gefällt besonders? Warum?
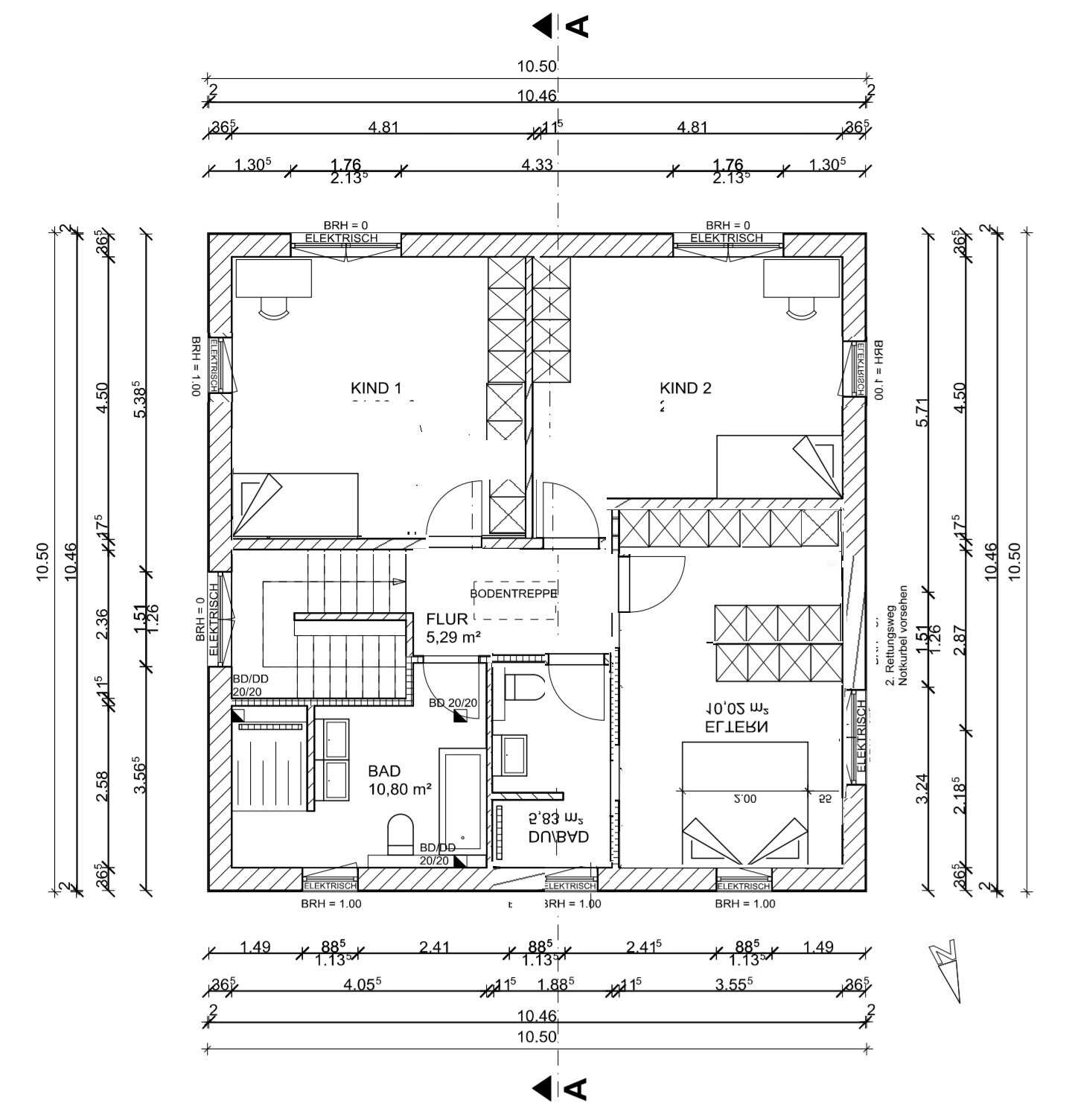
Großer Wohnbereich, Elternbad
Was gefällt nicht? Warum?
Hauswirtschaftsraum recht klein und Elternschlafzimmer klein, Kinderzimmer etwas zu groß
Warum ist der Entwurf so geworden, wie er jetzt ist?
Entsprechende Wünsche wurden vom Architekten umgesetzt
Was macht ihn in Euren Augen besonders gut oder schlecht?
Gut: Großer Wohnbereich
Ich bin mir unsicher bzgl. der halbhohen Fenstergrößen und Aufschlagsrichtung der Türen
Was ist die wichtigste/grundlegende Frage zum Grundriss in 130 Zeichen zusammengefasst?
Was meint ihr zu den Grundrissen?




Hang ja
Grundflächenzahl ?
Geschossflächenzahl ?
Baufenster, Baulinie und -grenze ?
Randbebauung ?
Anzahl Stellplatz 2
Geschossigkeit 2
Dachform Zeltdach 25 Grad
Stilrichtung Stadtvilla modern
Ausrichtung Hauseingang Norden
Maximale Höhen/Begrenzungen
weitere Vorgaben ?
Anforderungen der Bauherren
Stilrichtung, Dachform, Gebäudetyp
Moderne Stadtvilla Zeltdach 25 Grad
Keller, Geschosse 2 Vollgeschossen ohne Keller
Anzahl der Personen 4
offene Küche, Kochinsel
Anzahl 8-10
Garage
Hausentwurf
Von wem stammt die Planung?
-Architekt
Was gefällt besonders? Warum?
Großer Wohnbereich, Elternbad
Was gefällt nicht? Warum?
Hauswirtschaftsraum recht klein und Elternschlafzimmer klein, Kinderzimmer etwas zu groß
Warum ist der Entwurf so geworden, wie er jetzt ist?
Entsprechende Wünsche wurden vom Architekten umgesetzt
Was macht ihn in Euren Augen besonders gut oder schlecht?
Gut: Großer Wohnbereich
Ich bin mir unsicher bzgl. der halbhohen Fenstergrößen und Aufschlagsrichtung der Türen
Was ist die wichtigste/grundlegende Frage zum Grundriss in 130 Zeichen zusammengefasst?
- An welchen Stellen kann man noch optimieren? Würdet ihr andere Fenstermaße oder Brüstungshöhen empfehlen?
- Was findet ihr schlecht/würdet anders machen?
- Im Ankleideraum kommt noch eine Trennwand hin. Dann könnte man theoretisch vom Bett aus auch TV schauen. Ich denke an eine Leichtbauwand. Ich plane ein 211cm Pax-Kombi in die Ankleide reinzustellen. Die Ankleide ist mit 218cm Breite im Rohmaß geplant. Meint ihr die 218 reichen für den Pax, wenn die Wände noch verputzt werden oder wie breit sollten die Rohbaumaße besser sein?
- Ist der Flur im EG zu schmal?
- Würdet ihr aufschütten? Haus wäre 40cm unter Straßenniveau. Bin Terrasse in den Garten wären es dann 1m. Man könnte nur für das Haus aufschütten. Dann wären es von der Terrasse in den Garten ca. 1,6 m Unterschied. Ich kenne bislang niemanden der unter Straßenniveau im Haus lebt. Garten aufschütten ginge wohl ohne Genehmigungen nicht. Die würden uns die betroffenen Nachbarn sicher auch nicht geben. Rechts und links vom Haus zu den Nachbarn hin darf man wohl nur bis zu gewissen Grenzen aufschütten. Bin da etwas überfordert mit der Entscheidung.
- Habt ihr eine Idee wie man das Sofa anders stellen könnte und den TV sinnvoll aufstellen könnte? Mein Mann will kein Fenster mit dem Sofarücken zustellen. Daran das Sofa mitten in den Raum zu stellen muss ich mich noch gewöhnen
- Küchengröße ausreichend für schöne Küche mit Kochinsel?
Was meint ihr zu den Grundrissen?
opalau31.01.20 13:36
Zeig doch mal einen Lageplan. Die Ausrichtung kommt mir maximal ungeschickt vor. Da ist ja mutwillig nach Norden ausgerichtet was vom Süden profitieren würde (Wohnräume, Kinderzimmer)
Shiny8631.01.20 13:45
Ich schaue mal nach dem Plan. Der Wohnbereich und Kinderzimmer sind nach Süden ausgerichtet.
opalau31.01.20 14:31
Ja, entschuldige, ich habe den kreative Nordpfeil falsch gelesen.
Tamstar31.01.20 14:49
Auf die Schnelle:
Ein Vorteil einer Ankleide und daran angeschlossenem Bad ist ja, dass man den Partner nicht weckt, wenn man früher aufsteht. Funktioniert bei euch nicht. Daher würde ich den Zugang zum Bad vom Flur lassen und Ankleide und Bett tauschen.
Und ich würde mein Bett eh nicht an der Kinderzimmerwand stehen haben wollen, das hätte sich damit dann auch erledigt.
Den Elternbereich würde ich außerdem tiefer machen, also Wand von Kind 2 höher schieben, Wand zw. K1 und K2 dann so verschieben, dass die Räume wieder gleich groß sind. An der Schmalheit des Raums ändert das leider nichts, ich finde den Platz ums Bett zu knapp.
Darüber hinaus finde einen Abstellraum absolut notwendig bei euch, denn ihr habt nur die unbequem zu nutzende Bodentreppe zum bei Zeltdach vmtl. überschaubaren Dachboden und einen nicht gerade riesigen Hauswirtschaftsraum.
Hab ich aber auf die Schnelle nicht untergebracht, da haben andere sicherlich noch eine Idee.
Die Dusche im Kinderbad ist cool. Ist die "übrig" gewesen oder wolltet ihr das so? Ich würde mir die ja ins elterliche Bad bauen, bzw. würde bei meinem Vorschlag eh das große Bad in Beschlag nehmen. Kinder brauchen jetzt nicht unbedingt ein doppelwaschbecken.
Ansichten unberücksichtigt hab ich im OG noch Fenster in Kinderzimmer und Ankleide ergänzt.
EG finde ich aufgeräumt, aber wenig Garderobenfläche.

Ein Vorteil einer Ankleide und daran angeschlossenem Bad ist ja, dass man den Partner nicht weckt, wenn man früher aufsteht. Funktioniert bei euch nicht. Daher würde ich den Zugang zum Bad vom Flur lassen und Ankleide und Bett tauschen.
Und ich würde mein Bett eh nicht an der Kinderzimmerwand stehen haben wollen, das hätte sich damit dann auch erledigt.
Den Elternbereich würde ich außerdem tiefer machen, also Wand von Kind 2 höher schieben, Wand zw. K1 und K2 dann so verschieben, dass die Räume wieder gleich groß sind. An der Schmalheit des Raums ändert das leider nichts, ich finde den Platz ums Bett zu knapp.
Darüber hinaus finde einen Abstellraum absolut notwendig bei euch, denn ihr habt nur die unbequem zu nutzende Bodentreppe zum bei Zeltdach vmtl. überschaubaren Dachboden und einen nicht gerade riesigen Hauswirtschaftsraum.
Hab ich aber auf die Schnelle nicht untergebracht, da haben andere sicherlich noch eine Idee.
Die Dusche im Kinderbad ist cool. Ist die "übrig" gewesen oder wolltet ihr das so? Ich würde mir die ja ins elterliche Bad bauen, bzw. würde bei meinem Vorschlag eh das große Bad in Beschlag nehmen. Kinder brauchen jetzt nicht unbedingt ein doppelwaschbecken.
Ansichten unberücksichtigt hab ich im OG noch Fenster in Kinderzimmer und Ankleide ergänzt.
EG finde ich aufgeräumt, aber wenig Garderobenfläche.
matte31.01.20 15:22
Es ehrt euch ja, die Kinderzimmer so groß machen zu wollen, aber das Schlafzimmer geht gar nicht.
55cm Rohbaumaß neben dem Bett sind ja wohl ein schlechtere Scherz...
55cm Rohbaumaß neben dem Bett sind ja wohl ein schlechtere Scherz...
Ähnliche Themen