ᐅ Grundrissplanung Stadtvilla, flachgeneigtes Dach
Erstellt am: 04.11.22 16:08
Hallo in die Runde,
so langsam aber sicher verzweifeln wir ein bisschen bei der Grundrissplanung und brauchen da mal ein paar andere Meinungen/ Ideen.
Nun zu den wichtigsten Details:
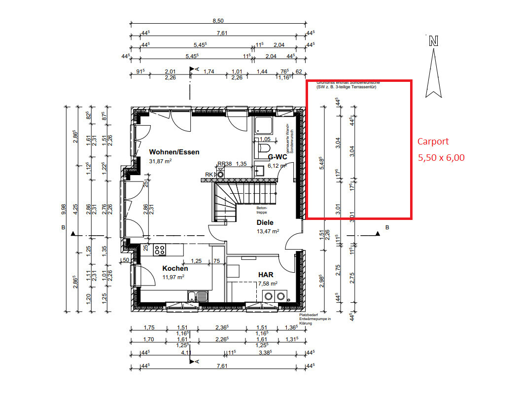
Im Anhang seht Ihr schon den x.ten Entwurf unserer möglichen Baufirma.
Stadtvilla, Flachdach bzw flachgeneigtes Dach max 10 Grad Dachneigung und Gründach , welches wir als Walmdach ausführen lassen wollen.
Aufgrund des Baufensters kann unser Haus max. 8,50 m breit werden. 130-135 m2 Wohnfläche sollen erreicht werden.
Bedingungen EG:
- Seiteneingang auf der Ostseite mit angrenzendem Carport ggf. auch Südseite
- kleine Diele (verschenkter Raum)
- Hauswirtschaftsraum sollte mindestens 9 m2 groß sein
- Treppe gerne wie eingezeichnet oder halb gewendelt (vllt. mit Abstellraum)
- Gäste Bad mit Dusche
- Garderobennische
- die Küche sollte schon so, so ähnlich aufgeteilt sein, wie auf dem Grundriss
- Kamin ist leider falsch angeordnet. Da soll eigentlich die Couch hin. Laut Baufirma aber wohl nicht anders machbar bei der Stadtvilla.
Zur Nord-/und Westseite haben wir ein schönes Feld gelegen und dementsprechend auf den Seiten auch die Fenster.
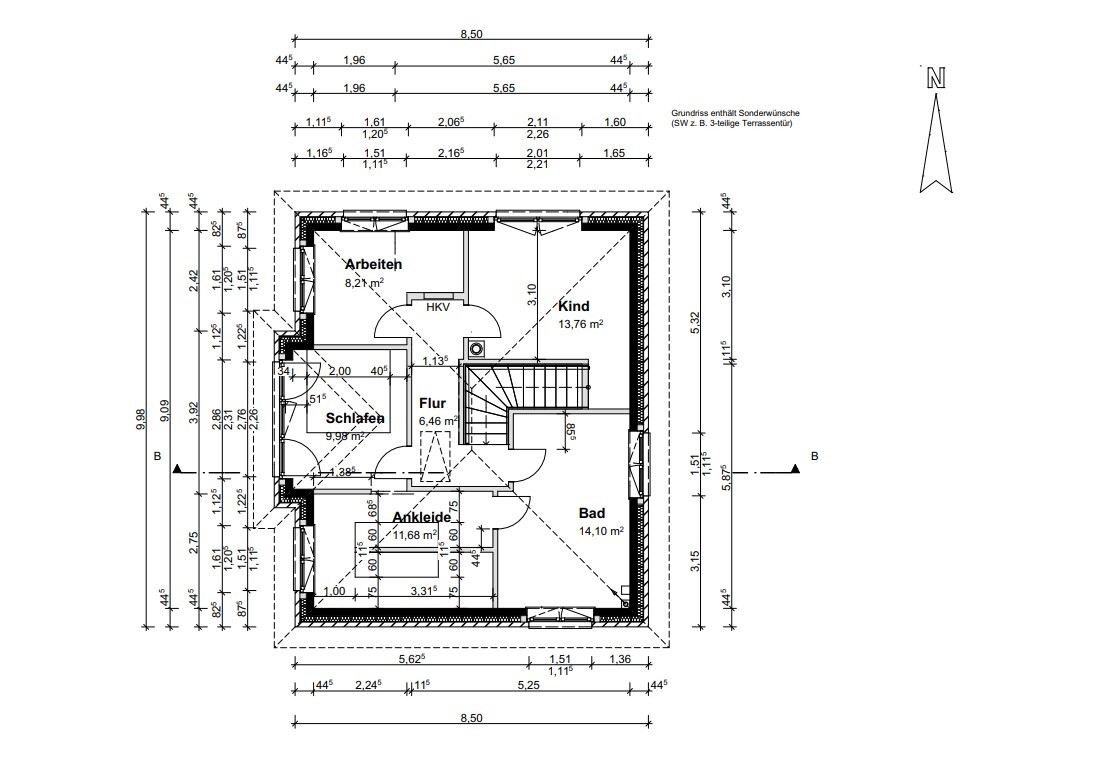
Bedingungen OG:
- Rundgang Schlafen/Ankleide/ Badezimmer wobei das Badezimmer aber zusätzlich über den Flur erreichbar sein muss
- Für das Bett brauchen wir mindestens 3,80 m Platz und wir haben ungefähr 6 Meter Kleiderschrank (Ikea Pax) die untergebracht werden müssen
- Arbeitszimmer
- Kinderzimmer
Vielleicht habt Ihr ja noch ein paar Ideen, wie man diesen Grundriss optimieren könnte. Wir sind gespannt auf Eure Ideen.
Viel Glück
M & T


so langsam aber sicher verzweifeln wir ein bisschen bei der Grundrissplanung und brauchen da mal ein paar andere Meinungen/ Ideen.
Nun zu den wichtigsten Details:
Im Anhang seht Ihr schon den x.ten Entwurf unserer möglichen Baufirma.
Stadtvilla, Flachdach bzw flachgeneigtes Dach max 10 Grad Dachneigung und Gründach , welches wir als Walmdach ausführen lassen wollen.
Aufgrund des Baufensters kann unser Haus max. 8,50 m breit werden. 130-135 m2 Wohnfläche sollen erreicht werden.
Bedingungen EG:
- Seiteneingang auf der Ostseite mit angrenzendem Carport ggf. auch Südseite
- kleine Diele (verschenkter Raum)
- Hauswirtschaftsraum sollte mindestens 9 m2 groß sein
- Treppe gerne wie eingezeichnet oder halb gewendelt (vllt. mit Abstellraum)
- Gäste Bad mit Dusche
- Garderobennische
- die Küche sollte schon so, so ähnlich aufgeteilt sein, wie auf dem Grundriss
- Kamin ist leider falsch angeordnet. Da soll eigentlich die Couch hin. Laut Baufirma aber wohl nicht anders machbar bei der Stadtvilla.
Zur Nord-/und Westseite haben wir ein schönes Feld gelegen und dementsprechend auf den Seiten auch die Fenster.
Bedingungen OG:
- Rundgang Schlafen/Ankleide/ Badezimmer wobei das Badezimmer aber zusätzlich über den Flur erreichbar sein muss
- Für das Bett brauchen wir mindestens 3,80 m Platz und wir haben ungefähr 6 Meter Kleiderschrank (Ikea Pax) die untergebracht werden müssen
- Arbeitszimmer
- Kinderzimmer
Vielleicht habt Ihr ja noch ein paar Ideen, wie man diesen Grundriss optimieren könnte. Wir sind gespannt auf Eure Ideen.
Viel Glück
M & T
Du solltest https://www.hausbau-forum.de/threads/grundriss-planung-unbedingt-vor-beitrag-erstellung-lesen.11714/ lesen, ist zu Beginn dieses Forumsbereiches angepinnt und deinen Beitrag entsprechend ergänzen.
Bebauungsplan/Einschränkungen
Größe des Grundstücks 500m2
Hang nein
Grundflächenzahl 0,25
Geschossflächenzahl
Baufenster, Baulinie und -grenze
Randbebauung
Anzahl Stellplatz 2
Geschossigkeit 2
Dachform Flachdach, flachgeneigt bis max. 10 Grad
Stilrichtung Stadtvilla, Bauhaus
Ausrichtung Nord
Maximale Höhen/Begrenzungen
weitere Vorgaben verklinkert und Gründach
Anforderungen der Bauherren
Stilrichtung, Dachform, Gebäudetyp siehe oben
Keller, Geschosse
Anzahl der Personen, Alter 2 Erwachsene ein Kind
Raumbedarf im EG, OG
Büro: Familiennutzung oder Homeoffice?
Schlafgäste pro Jahr
offene oder geschlossene Architektur
konservativ oder moderne Bauweise
offene Küche, Kochinsel ja beides
Anzahl Essplätze
Kamin ja
Musik/Stereowand
Balkon, Dachterrasse
Garage, Carport Doppelcarport
Nutzgarten, Treibhaus
Hausentwurf
Von wem stammt die Planung:
-Planer eines Bauunternehmens
favorisierte Heiztechnik: Erdwärmepumpe
Wenn Ihr verzichten müsst, auf welche Details/Ausbauten
-könnt Ihr verzichten: nein
-könnt Ihr nicht verzichten:
Warum ist der Entwurf so geworden, wie er jetzt ist? ZB
Standardentwurf vom Planer? nein, es wird mit freier Planung geworden
Entsprechende/Welche Wünsche wurden vom Architekten umgesetzt? keine, alles wurde fast selber vorgegeben
Ein Gemisch aus vielen Beispielen aus div. Magazinen...
Was macht ihn in Euren Augen besonders gut oder schlecht? keine eigenen Ideen vom Planer
und der Rest steht ja weiter oben..... 🙂
Größe des Grundstücks 500m2
Hang nein
Grundflächenzahl 0,25
Geschossflächenzahl
Baufenster, Baulinie und -grenze
Randbebauung
Anzahl Stellplatz 2
Geschossigkeit 2
Dachform Flachdach, flachgeneigt bis max. 10 Grad
Stilrichtung Stadtvilla, Bauhaus
Ausrichtung Nord
Maximale Höhen/Begrenzungen
weitere Vorgaben verklinkert und Gründach
Anforderungen der Bauherren
Stilrichtung, Dachform, Gebäudetyp siehe oben
Keller, Geschosse
Anzahl der Personen, Alter 2 Erwachsene ein Kind
Raumbedarf im EG, OG
Büro: Familiennutzung oder Homeoffice?
Schlafgäste pro Jahr
offene oder geschlossene Architektur
konservativ oder moderne Bauweise
offene Küche, Kochinsel ja beides
Anzahl Essplätze
Kamin ja
Musik/Stereowand
Balkon, Dachterrasse
Garage, Carport Doppelcarport
Nutzgarten, Treibhaus
Hausentwurf
Von wem stammt die Planung:
-Planer eines Bauunternehmens
favorisierte Heiztechnik: Erdwärmepumpe
Wenn Ihr verzichten müsst, auf welche Details/Ausbauten
-könnt Ihr verzichten: nein
-könnt Ihr nicht verzichten:
Warum ist der Entwurf so geworden, wie er jetzt ist? ZB
Standardentwurf vom Planer? nein, es wird mit freier Planung geworden
Entsprechende/Welche Wünsche wurden vom Architekten umgesetzt? keine, alles wurde fast selber vorgegeben
Ein Gemisch aus vielen Beispielen aus div. Magazinen...
Was macht ihn in Euren Augen besonders gut oder schlecht? keine eigenen Ideen vom Planer
und der Rest steht ja weiter oben..... 🙂
M
Myrna_Loy04.11.22 16:49Die Ankleide finde ich mit gut 15 qm arg verschwenderisch für so einen kompakten Grundriss. Warum nicht die Schränke an die Wand statt als Insel? Dann könnte man in die Mitte noch eine Bank oder so stellen.
P
Pitiglianio04.11.22 17:18Ankleide hat lt Plan 11,7qm.
Aber in einem 130qm Haus würde ich immer ohne Ankleide planen.
Bad im OG auch zu groß für die Hausgröße, zumal im EG ja auch schon ein 6,5qm Duschbad ist.
Und im EG vlt. die Küche an die Nordseite zugunsten des Wohn /Esszimmer dann im helleren Südwesten. Aber ohne Ansicht des Grundstücks schwer zu beurteilen.
Aber in einem 130qm Haus würde ich immer ohne Ankleide planen.
Bad im OG auch zu groß für die Hausgröße, zumal im EG ja auch schon ein 6,5qm Duschbad ist.
Und im EG vlt. die Küche an die Nordseite zugunsten des Wohn /Esszimmer dann im helleren Südwesten. Aber ohne Ansicht des Grundstücks schwer zu beurteilen.
Ähnliche Themen