ᐅ Stadtvilla 190m² mit Einfahrt & Garten zur Südseite
Erstellt am: 25.04.18 16:10
Bebauungsplan/Einschränkungen
Größe des Grundstücks: 598m²
Hang: nein
Grundflächenzahl: 0,4
Geschossflächenzahl: 2
Baufenster, Baulinie und –grenze: Nur im Süden
Randbebauung: nur Garage
Geschossigkeit: 2
Dachform: Walmdach
Stilrichtung: Stadtvilla
Anforderungen der Bauherren
Stilrichtung, Dachform, Gebäudetyp: modern, Walmdach, Stadtvilla
Keller, Geschosse: kein Keller
Anzahl der Personen, Alter: 2 Erw. (24, 27) 1 Kind (2)
Raumbedarf im EG: 95m², OG: 95m²
Büro: Arbeitsplatz
geschlossene Architektur
moderne Bauweise
keine offene Küche, Kochinsel
Anzahl Essplätze im Wohnzimmer: 6 in der Küche keine
Kamin: ja
Musik/Stereowand: nein
Balkon, Dachterrasse: nein
Garage, Carport: Garage (46m², muss auch so groß bleiben)
Nutzgarten, Treibhaus: nein
weitere Wünsche/Besonderheiten/Tagesablauf, gern auch Begründungen, warum dieses oder das nicht sein soll
Hausentwurf
Von wem stammt die Planung:
-Do-it-Yourself
Was gefällt besonders? Warum? Gerade Treppe, AR darunter möglich
Was gefällt nicht? Warum? Küche zu klein, da keine Essplätze in der Küche möglich.
Preisschätzung lt Architekt/Planer:
Persönliches Preislimit fürs Haus, inkl Ausstattung:
favorisierte Heiztechnik:
Wenn Ihr verzichten müsst, auf welche Details/Ausbauten
-könnt Ihr verzichten: Gartenteil im Norden
-könnt Ihr nicht verzichten: Büro
Warum ist der Entwurf so geworden, wie er jetzt ist? ZB
Entwurf wurde selber gestaltet, das Problem daran: Man fährt von der Süd-/Westseite in die Garage d. h. Eingang ist seitlich und jeder kann in den Garten schauen. Dieser ist nämlich genauso auf der Südseite. Norden ist keine Option (da keine Sonne dort hinkommen wird). Westen oder Osten wäre eine Option, ist aber leider nicht möglich, da links und rechts vom Haus bzw. Garage kein Platz mehr ist (3m Abstand zum Nachbarn einhalten).
Da das Haus + Garage schon viel Grundstücksfläche in Anspruch nimmt, ist der Garten auch nicht so groß (ca. 110m² nur vorne bei der Terrasse). Im Norden hätten wir noch einen Teil grün (der ziemlich unnötig erscheint). Nebenan haben wir allerdings einen Spielplatz.
Büro MUSS bleiben, da Selbstständigkeit. Küche könnte auch im Norden sein und etwas größer.
Hauswirtschaftsraum zur Garage ist auch ein Muss.
Ist/War jemand schon mal in der gleichen Situation und könnte ein paar Änderungsvorschläge geben?
Dankeschön schon mal.

Größe des Grundstücks: 598m²
Hang: nein
Grundflächenzahl: 0,4
Geschossflächenzahl: 2
Baufenster, Baulinie und –grenze: Nur im Süden
Randbebauung: nur Garage
Geschossigkeit: 2
Dachform: Walmdach
Stilrichtung: Stadtvilla
Anforderungen der Bauherren
Stilrichtung, Dachform, Gebäudetyp: modern, Walmdach, Stadtvilla
Keller, Geschosse: kein Keller
Anzahl der Personen, Alter: 2 Erw. (24, 27) 1 Kind (2)
Raumbedarf im EG: 95m², OG: 95m²
Büro: Arbeitsplatz
geschlossene Architektur
moderne Bauweise
keine offene Küche, Kochinsel
Anzahl Essplätze im Wohnzimmer: 6 in der Küche keine
Kamin: ja
Musik/Stereowand: nein
Balkon, Dachterrasse: nein
Garage, Carport: Garage (46m², muss auch so groß bleiben)
Nutzgarten, Treibhaus: nein
weitere Wünsche/Besonderheiten/Tagesablauf, gern auch Begründungen, warum dieses oder das nicht sein soll
Hausentwurf
Von wem stammt die Planung:
-Do-it-Yourself
Was gefällt besonders? Warum? Gerade Treppe, AR darunter möglich
Was gefällt nicht? Warum? Küche zu klein, da keine Essplätze in der Küche möglich.
Preisschätzung lt Architekt/Planer:
Persönliches Preislimit fürs Haus, inkl Ausstattung:
favorisierte Heiztechnik:
Wenn Ihr verzichten müsst, auf welche Details/Ausbauten
-könnt Ihr verzichten: Gartenteil im Norden
-könnt Ihr nicht verzichten: Büro
Warum ist der Entwurf so geworden, wie er jetzt ist? ZB
Entwurf wurde selber gestaltet, das Problem daran: Man fährt von der Süd-/Westseite in die Garage d. h. Eingang ist seitlich und jeder kann in den Garten schauen. Dieser ist nämlich genauso auf der Südseite. Norden ist keine Option (da keine Sonne dort hinkommen wird). Westen oder Osten wäre eine Option, ist aber leider nicht möglich, da links und rechts vom Haus bzw. Garage kein Platz mehr ist (3m Abstand zum Nachbarn einhalten).
Da das Haus + Garage schon viel Grundstücksfläche in Anspruch nimmt, ist der Garten auch nicht so groß (ca. 110m² nur vorne bei der Terrasse). Im Norden hätten wir noch einen Teil grün (der ziemlich unnötig erscheint). Nebenan haben wir allerdings einen Spielplatz.
Büro MUSS bleiben, da Selbstständigkeit. Küche könnte auch im Norden sein und etwas größer.
Hauswirtschaftsraum zur Garage ist auch ein Muss.
Ist/War jemand schon mal in der gleichen Situation und könnte ein paar Änderungsvorschläge geben?
Dankeschön schon mal.
Zu den JPGs musst du aber eine Lupe mitliefern. Beschneide die mal um den ganzen weißen Rand .
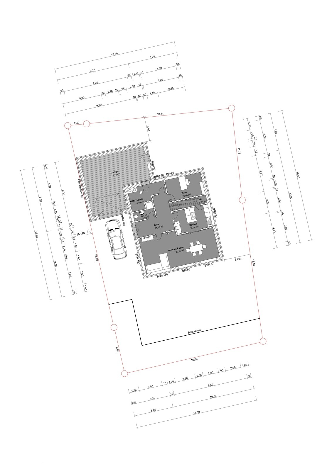
Zum Grundriss:
Zum Grundriss:
- Der Gartenschuppen im Rahmen der Garage ist ja nun weitestmöglichst vom Hauptgarten entfernt
- Warum nicht Kochen/Essen zusammenpacken, wenn Essplatz bei Küche gewünscht?
- Die Türen zu den Zimmern sehen mehr als schmal aus
- Freiraum beim Hochkommen von der Treppe ist doch Max. 1 m - oder?
- Im Bad könnte man Dusche und WC/Bidet? samt Fenster tauschen und das West-Fenster etwas schmaler machen, dann erhält die Dusche auch natürliches Licht.
- Schlafzimmer/Ankleide finde ich ungünstig verteilt. Wenn einer schon aufsteht, muss er immer 2 mal am Bett vorbei. Außerdem hat der Raum die Schokoladenseite, während z. B. das dritte Kinderzimmer nur morgens Sonne hat.
- Es sind wohl noch 2 weitere Kinder geplant? Warum dann so ungleichmäßige Kinderzimmergrößen?
- Gibt es Kundenbesuch im Büro?
kbt09 schrieb:
Freiraum beim Hochkommen von der Treppe ist doch Max. 1 m - oder?Das scheint mir ebenso. Die Rettungswegfenster sehen übrigens im Grundriss aus, als hätten sie Mittelpfosten - das klappt so nicht.https://www.instagram.com/11antgmxde/
https://www.linkedin.com/company/bauen-jetzt/
Wir haben einen Südgarten bei Südzufahrt. Bei einem annähernd quadratischen Grundstück haben wir ein längliches Haus parallel zur Straße gesetzt mit 5 m Abstand zur nördlichen Grenze. Der Garten wird durch eine Hecke von der (sehr ruhigen) Straße abgetrennt werden.
Ihr habt ein eher längliches Grundstück und geht mit eurem Haus mehr oder weniger weitestmöglich nach hinten, oder?
Tipp 1: schaut euch die Nachnarhäuser an. Bei uns werfen die ordentlich Schatten und das Eck, das am schönsten Abendsonne hat, liegt im Nord-Osten des Grundstücks. Denkt also noch mal drüber nach, ob nicht eine 2.Terrasse im Norden sehr sinnvoll sein könnte!
Tipp 2: kurze Auffahrt-> weniger Pflaster -> weniger Kosten! Ist tatsächlich nicht zu verachten, was man da sparen kann.
Zum Grundriss selbst: wenn Publikumsverkehr zum Büro, würde ich die ungern durchs ganze Haus laufen lassen. Wenn ein drittes Kind relativ sicher geplant ist, würde ich lieber drei halbwegs gleichgroße Zimmer einplanen. Wenn Nr. 3 jemals fragt, warum 1 und 2 so große Zimmer haben und seines zu Gunsten einer Sauna mini ist...
Insgesamt denke ich, dass man noch mal über die Positionierung, ggf. auch die Lage der Garage nachdenken sollte und im Innern durch Änderungen am Baukörper noch mal ganz was anderes rauskommen könnte.
Ihr habt ein eher längliches Grundstück und geht mit eurem Haus mehr oder weniger weitestmöglich nach hinten, oder?
Tipp 1: schaut euch die Nachnarhäuser an. Bei uns werfen die ordentlich Schatten und das Eck, das am schönsten Abendsonne hat, liegt im Nord-Osten des Grundstücks. Denkt also noch mal drüber nach, ob nicht eine 2.Terrasse im Norden sehr sinnvoll sein könnte!
Tipp 2: kurze Auffahrt-> weniger Pflaster -> weniger Kosten! Ist tatsächlich nicht zu verachten, was man da sparen kann.
Zum Grundriss selbst: wenn Publikumsverkehr zum Büro, würde ich die ungern durchs ganze Haus laufen lassen. Wenn ein drittes Kind relativ sicher geplant ist, würde ich lieber drei halbwegs gleichgroße Zimmer einplanen. Wenn Nr. 3 jemals fragt, warum 1 und 2 so große Zimmer haben und seines zu Gunsten einer Sauna mini ist...
Insgesamt denke ich, dass man noch mal über die Positionierung, ggf. auch die Lage der Garage nachdenken sollte und im Innern durch Änderungen am Baukörper noch mal ganz was anderes rauskommen könnte.
Ähnliche Themen