Grundrissoptimierung Stadtvilla + Aufschüttüberlegung

4,70 Stern(e) 21 Votes
Zuletzt aktualisiert 21.11.2025
Sie befinden sich auf der Seite 53 der Diskussion zum Thema: Grundrissoptimierung Stadtvilla + Aufschüttüberlegung
>> Zum 1. Beitrag <<

Status
Für weitere Antworten geschlossen.
S

Shiny86

@11ant

Ok das mit dem 10,8x10,8m lass ich.
Das ist ein Haufen Geld mehr für gar nichts. Kein Zugewinn.

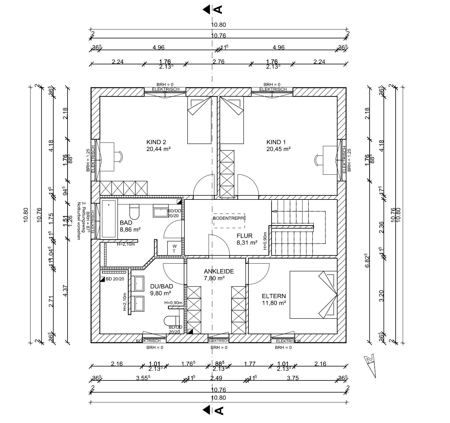
Was bedeutet denn bd/dd 20/20?
Hab ich dann einen 0,2m×0,2m Vorsprung? Also zb im Kleiderschrank oder Dusche der Eltern? Also kann ich da keinen Schrank wie eigentlich eingezeichnet stellen und in der Dusche ist dann so ein Vorsprung?
 
T

Tamstar

BD/DD= Bodendurchbruch/Deckendurchbruch
In der Dusche nur ein Bodendurchbruch, daher kein Vorsprung. In der Ankleide wird die Fallleitung entlüftet (über Dach), daher ist hier schon ein Vorsprung.
Konnte nicht in der Vorwand des WCs verpackt werden, weil es sonst im EG vor dem Fenster des Gästezimmers wäre, nehme ich an. Ob die Entlüftung als Nebenlüftung in die Vorwand verzogen werden könnte, dass du dir wenigstens den Schacht in der Ankleide sparst, weiß ich nicht.
Auch im Wohnzimmer wird ein Schacht sein.
Edith sagt, ich war zu spät.
 
11ant

11ant

Was bedeutet denn bd/dd 20/20?
Hab ich dann einen 0,2m×0,2m Vorsprung? Also zb im Kleiderschrank oder Dusche der Eltern? Also kann ich da keinen Schrank wie eigentlich eingezeichnet stellen und in der Dusche ist dann so ein Vorsprung?
Keine Ahnung - sachma die Beitragsnummer von dem Plan, nach dem Du fragst. Die Abkürzungen wurden ja schon erklärt, aber welche Konsequenzen die haben, ließe sich nur aus dem konkreten Plan spekulieren. Das können einerseits harmlose Durchführungen von Kontrollierte-Wohnraumlüftung-Kanälen oder dergleichen sein - also von etwas, wovon Du auf dem Fertigfußboden garnichts mehr merkst - aber auch Dinge, die sich im Raum evaluieren. Insbesondere wenn BD und DD im selben Raum übereinanderstehen, "darfst" Du den Querschnitt 20/20 als starkes Verdachtsmoment lesen, daß sie mit einem Fallrohr verbunden sein werden. Das ist so eine Energieeinsparverordnung-Folge, Außenwände nicht mehr für Fallrohre zu schlitzen. Wo Schränke stehen sollen, sollte man quasi immer "rot sehen", wo derlei eingezeichnet ist. Bei den heutigen üppigen Rudelduschen wird aus "walk in" nicht gleich "vade retro", wenn hinten in einer Ecke ein Rohr eingekastelt ist - für Symmetriedogmatiker ist es natürlich der Super-GAU: dann sitzt das Chakra der Mischbatterie schief *LOL*
 
S

Shiny86

Ich danke euch.
Hier die aktuellen Pläne.
Könnt ihr spekulieren was es da wohl optisch geben wird?
Und wie man es besser machen kann?

Ich will im begehbaren Kleiderschrank meine Schränke stellen können.
Was soll das an der Küchenhalbinsel sein? Da ist ein Zeichen ohne Beschriftung.
Und das im Wohnzimmer neben der Couch gefällt mir auch nicht. Das nimmt mir 20cm sofa Stellfläche und optisch will ich dieses Stückchen Wand da eigentlich nicht haben.

Grundriss eines Einfamilienhauses: Küche, Essen, Wohnen, Diele, Gast, Abstellraum, HA, WC, Carport.


Grundriss eines Hauses: KIND 1, KIND 2, ELTERN, ANKLEIDE, BAD, DU/BAD, FLUR, TREPPENHAUS.
 
11ant

11ant

Tja, isso. Das Fallrohr vom Kinderbad kommt neben dem Sofa runter. Wenn der Wandstummel dort kein Sturzauflager ist - was bedingt, daß Wohnen / Essen ungeteilt ineinander übergehen - ließe sich dieses Fallrohr in die Wand zu Kind 2 einlassen. Das Fallrohr Dusche / Waschtische des Elternbades kommt neben dem Schrank in Gast runter, und von der Ankleide zum Kopfende des Gästebettes geht vermutlich ein Fallrohr des WC im Elternbad. Auch die Spüle braucht einen Abfluss, da mußt Du Dir "DD" drangeschrieben vorstellen. Solche Trockenbau-Schönheitsflecken sind der Preis für "sozialen Villenbau" mit nicht übereinander stehenden Wänden. Das ist beinahe unausweichlich, wenn man im Format "Kasse" "privat" planen will
Wer das vermeiden will, muß in diesem Segment bereit sein, funktionierende Typengrundrisse zu übernehmen oder "in Statik und Ver- und Entsorgungstechnik" statt in rosaroten Pinterest-Musterhausbildchen denken können bzw. lernen.
 
Status
Für weitere Antworten geschlossen.
Zuletzt aktualisiert 21.11.2025
Im Forum Grundrissplanung / Grundstücksplanung gibt es 2535 Themen mit insgesamt 87980 Beiträgen


Ähnliche Themen zu Grundrissoptimierung Stadtvilla + Aufschüttüberlegung
Nr.ErgebnisBeiträge
1Wohnzimmer: Wie Sofa, TV und Schränke stellen? 32
2Ankleidezimmer mit Kleiderschrank oder ohne 64
3Grundrissplanung: Badezimmer Dusche - Seite 347
4Zusätzliche Baukosten bei Hausbau mit Bauträger - Seite 988
5Fallrohr Fauxpas... - Seite 341
6Nachträglicher Einbau Wanne oder Dusche? - Seite 327
7Badplanung - Wie den Platz für Waschbecken und Schränke nutzen 32
8Wäscheabwurf in Dusche einbauen? - Seite 296
9Durchbruch Bad und Ankleide ohne Türe? 12
10Wohnzimmer Grundrissplanungs-Ideen? - Seite 339
11Pfiffige Schlafzimmer Idee mit Ankleide gesucht 19
12Treppe im Wohnzimmer als Hype - Pro & Contra? - Seite 426
13Grundrissplanung Wohnzimmer und Flur zu schmal? 21
14Einfamilienhaus - Stadtvilla: Wohnzimmer L oder I Form? 25
153. Zimmer im 40qm Wohnzimmer unterkriegen. Ideen 74
16Wohnzimmer Vergrößern / Betondecke verlängern? - Seite 647
17Platzierung der Möbel im Wohnzimmer im Grundriss 10
18Nicht-bodentiefe Fenster im Wohnzimmer unmodern? Welche Vorhänge? - Seite 217
19Einrichtung Wohnzimmer evtl. Durchbruch Erweiterung - Seite 328
20Lösung gesucht: - Fallrohr Laub/Schmutzfilter - Seite 211

Oben