Grundrissoptimierung Stadtvilla + Aufschüttüberlegung

4,70 Stern(e) 21 Votes
Zuletzt aktualisiert 21.11.2025
Sie befinden sich auf der Seite 49 der Diskussion zum Thema: Grundrissoptimierung Stadtvilla + Aufschüttüberlegung
>> Zum 1. Beitrag <<

Status
Für weitere Antworten geschlossen.
S

Shiny86

Danke fürs rege Interesse meines Bauvorhabens. Schön, dass so viele noch dabei sind.

Wir wollen im Wohnbereich nur Bodentiefe Fenster, weil wir vom Stil eine Stadtvilla bauen. Die Terrasse wird nur im Süden sein.
Diese doppelfenstertür im Westen führt auf einen weg, aber nicht Terrasse. Deswegen ist die eher wegen Licht da und wird sicher kaum genutzt. Auch im Süden die Tür ganz rechts hinterm Esstisch ist wegen Licht und Symmetrie da und dient eher nicht dem raus gehen.

Der Vollständigkeit halber hänge ich den aktuellen Entwurf doch schon an. Es wird bald einen aktuelleren Entwurf geben, aber vielleicht habt ihr ja Ideen, die ich doch noch schnell weitergeben kann.

Das aktuelle Hausmaß 10,3x10,8 geht wohl laut Bebauungsplan nicht. Um den Grundriss nicht zu zerschießen gehen wir dann auf 10,8x10,8. Der jetzt zu sehene Flur soll dann im EG breiter werden. Er ist aktuell zu schmal. Er soll 20cm breiter werden. 15cm gehen dann nach links in dem Hauswirtschaftsraum und 15cm gehen dann rechts ins Wohnzimmer.

@kaho674
Mein Mann hat auch Bedenken wegen der dunklen Kuschelecke geäußert. Ich dachte es wird wegen der Fenster in der Umgebung nicht so dunkel. Jetzt mach ich mir da doch Gedanken. Ich will auch nicht im dunklen Loch sitzen.
Reicht es vlt schon das sofa einfach an die Wand gegenüber zu stellen? Dann ist da die doppelfenstertür im Westen in blickrichtung? Oder wäre die Lösung schon tatsächlich ein Fenster im der TV Ecke?
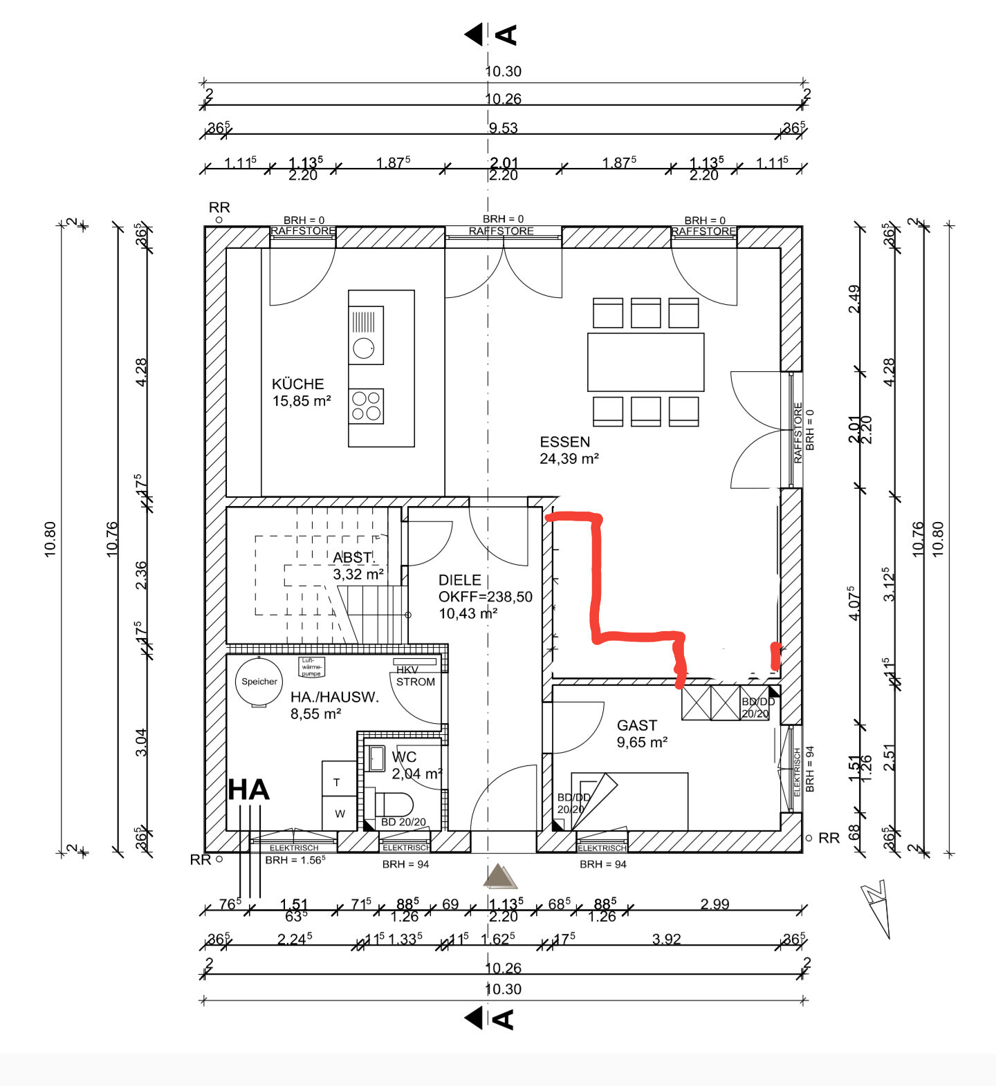
Wie wäre es mit einem schmalen hohen 76x2m festen glaselement in der Fernsehecke wie ich es rot gezeichnet habe. Bringt das wohl genug licht?
Panoramafenster länglich ziemlich weit oben mögen wir nicht gern. Hinterm Sofa mag ich kein Fenster haben. Und tatsächlich, die Nachbarn sind im Osten und Westen nicht weit weg.

Und übrigens: der Grundriss wird noch gespiegelt, damit man besser ins Carport fahren kann. Man hat dann keinen 1meter Unterschied zwischen Carport/Garage mehr und es wird wohl bzgl. Erdarbeiten günstiger. D.h. wir haben im Wohnbereich nur noch Fenster im Süden und Osten. Ich hoffe das wird nicht zu dunkel, wenn wir kein Westfenster mehr haben.

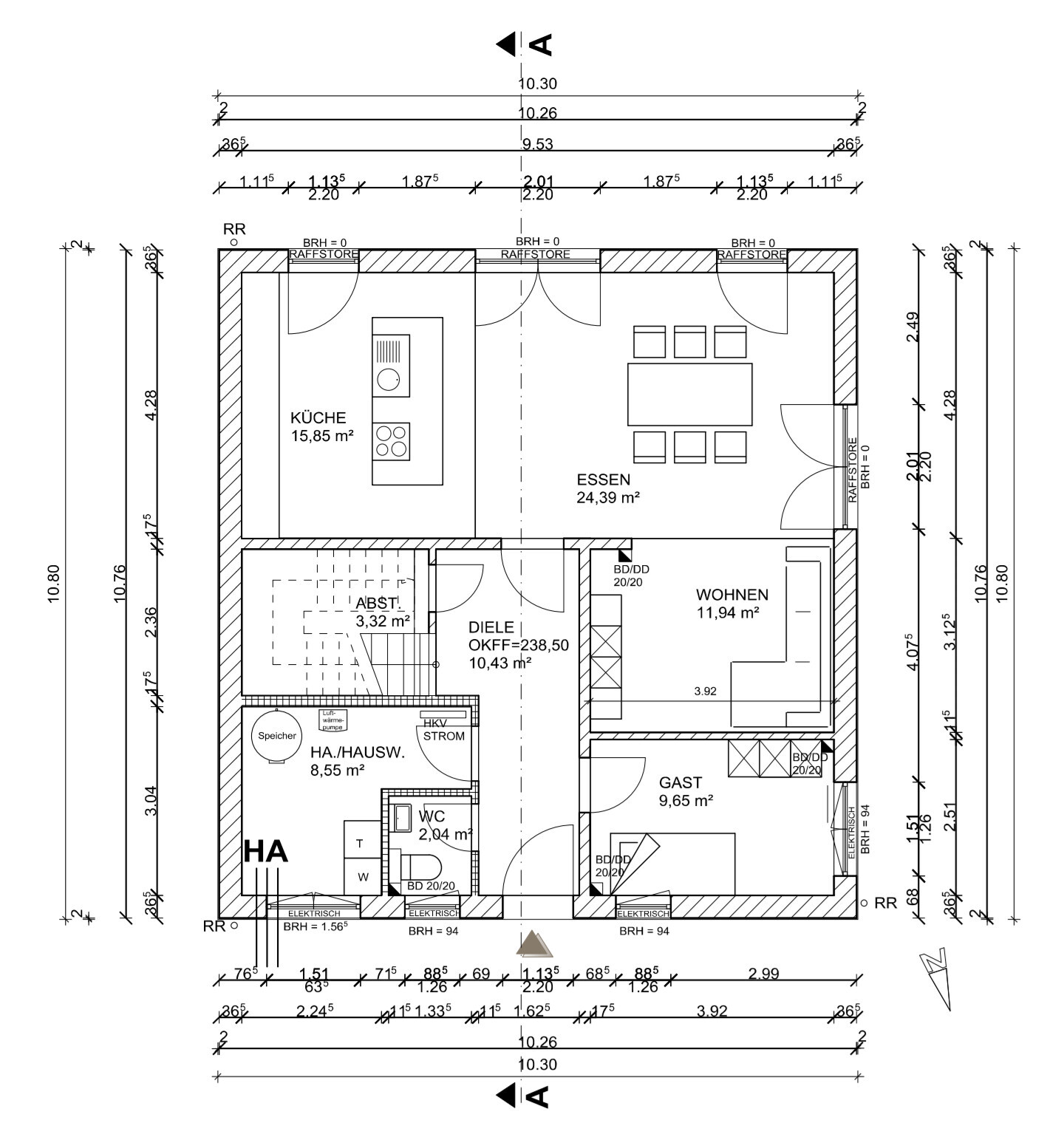
Grundriss eines Hauses: Küche, Essen, Wohnen, Diele, Gast, Abstellraum, WC im Erdgeschoss.


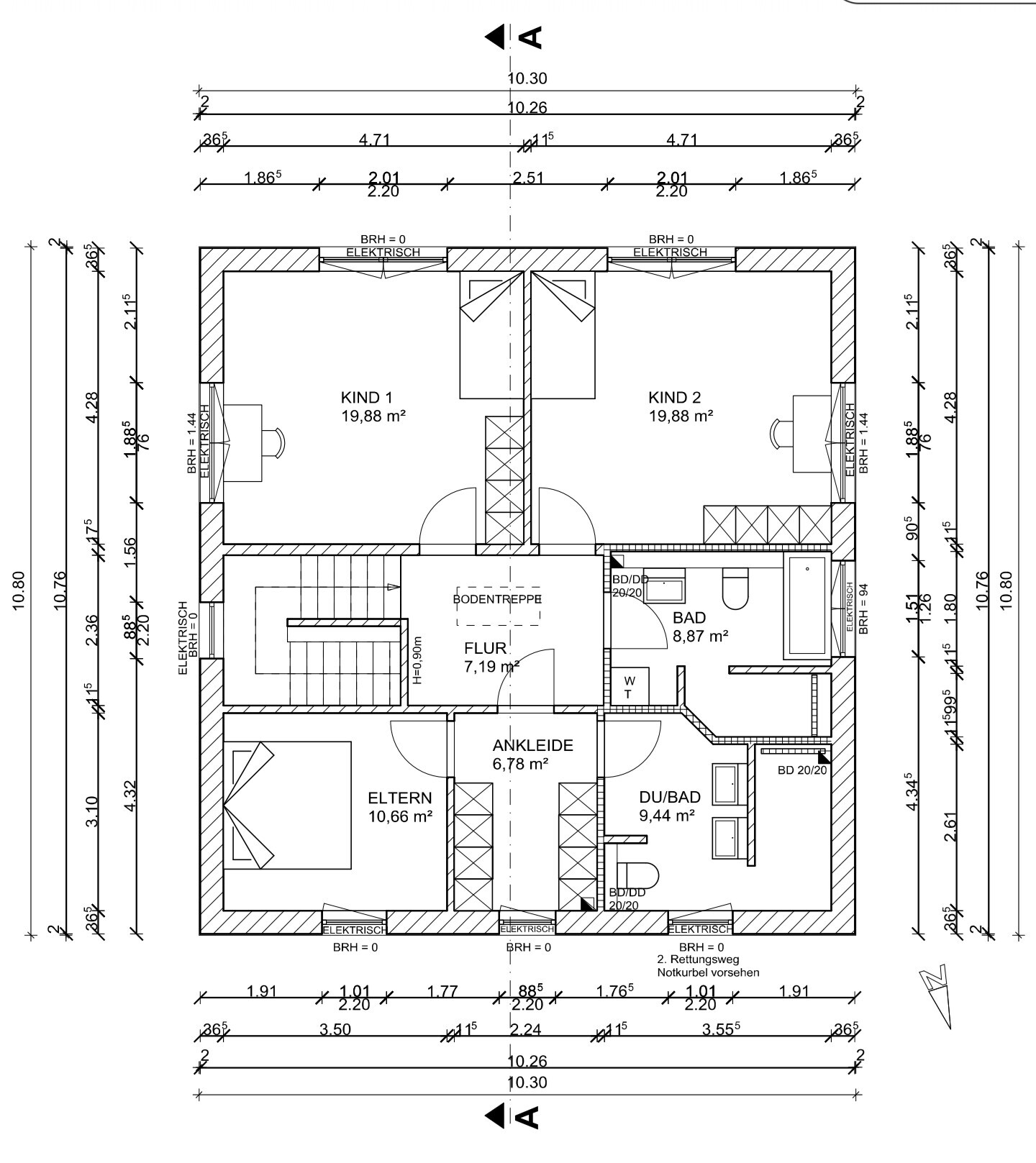
Grundriss eines oberen Stockwerks: zwei Kinderzimmer, Elternschlafzimmer, Ankleide, Flur und Bad.


Grundriss eines Wohnhauses: Küche, Essen, Diele, Gästezimmer; roter Begehungsweg markiert.
 
Zuletzt bearbeitet:
S

Shiny86

Danke! Ich bleibe dir also im Gedächtnis.
Weil uns der Grundriss gefällt. Und die 10,8m brauch ich, weil ich finde eh alles nicht übertrieben großzügig und wüsste nicht wo ich in der Länge komplett cm wegnehmen sollten. Finde weder Büro, noch tv ecke oder Esszimmer zu lang um noch gut was wegzunehmen.
Außerdem ist der Flur zu schmal und in der TV Ecke will ich gern zum TV schauen auf über 4m Abstand kommen.
Also ist 10,8x10,8 logischer als 10,6x10,6.
 
T

Tamstar

Es geht um die firstrichtung, die vorgeschrieben ist
Und die ändert sich, wenn du das Haus quadratisch machst!?

Mein Mann hat auch Bedenken wegen der dunklen Kuschelecke geäußert.
Ich würde an sich die Couch eher auf die andere Seite stellen, so wie du es mit rot eingezeichnet hast. Dann kann man wenigstens ein bisschen herausgucken.

Und die Küche...ist das die fertige Küchenplanung?
Willst du kochfeld und Spüle auf der Insel? Da hast du ja null Arbeitsfläche. Ist die Rückwand durchgehend mit Hochschränken geplant oder ist da noch Arbeitsfläche? Ich würde an der Wand eher eine Übertiefe Arbeitsplatte mit Kochfeld machen und auf der Insel nur Arbeitsfläche mit Spüle. Wie bei opalau
Küchenaufbau Tag 1 absolviert
Und die Insel vielleicht als Halbinsel? Und die planobere Seite an die Wand, wie bei climbee
Und der letzte Rest:
 
Status
Für weitere Antworten geschlossen.
Zuletzt aktualisiert 21.11.2025
Im Forum Grundrissplanung / Grundstücksplanung gibt es 2535 Themen mit insgesamt 87978 Beiträgen


Ähnliche Themen zu Grundrissoptimierung Stadtvilla + Aufschüttüberlegung
Nr.ErgebnisBeiträge
1Wohnbereich Grundriss einplanen - Seite 462
2Grundriss eines barrierefreien Bungalow - Seite 33229
3Grundriss Bungalow 125qm konisches Grundstück - Seite 239
4Grundriss ca. 170 m² Einfamilienhaus, ohne Keller mit Carport - Seite 489
5Entwurf Grundriss Einfamilienhaus (als Zweifamilienhaus im Alter möglich) in Hanglage - Seite 753
6Grundriss-Entwurf für Einfamilienhaus 135 qm - Ideen und Ratschläge gesucht 29
7Grundriss Entwurf Neubau Einfamilienhaus - Grundstück 610qm - Meinungen erwünscht - Seite 850
8Hausbau 2.0 - erster Grundriss-Entwurf 155
9Grundriss-Entwurf: Einfamilienhaus mit 4 Schlafzimmern und Büro, 160qm - Seite 1482
10Kubus Grundriss: letzte Tipps erwünscht 28
11Grundriss-Optimierung 155 qm Einfamilienhaus 44
12Stadtvilla Grundriss - Feedback erwünscht - Seite 397
13Grundriss für 170 qm Einfamilienhaus/Bauhaus auf 520 qm Grundstück in NRW - Seite 214
14Grundriss Bungalow Meinungen 31
15Grundriss Einfamilienhaus für 4 Personen mit Problemen im EG 27
16Grundriss Einfamilienhaus, 200qm, Holzhaus im amerikanischen Stil, Bodenplatte 30
17Grundriss, Hausanordnung EFW 150m2, Keller + Einliegerwohnung - Feedback erwünscht - Seite 967
18Haus-Entwurf Einfamilienhaus - Zukünftig als Zweifamilienhaus trennbar - Seite 772
19Grundriss Stadtvilla mit Walmdach ca. 170 qm - Seite 361
20Grundriss Einfamilienhaus mit ca 150 qm auf Hinterliegergrundstück - Seite 20128

Oben