Grundrissoptimierung Stadtvilla + Aufschüttüberlegung

4,70 Stern(e) 21 Votes
Zuletzt aktualisiert 24.11.2025
Sie befinden sich auf der Seite 4 der Diskussion zum Thema: Grundrissoptimierung Stadtvilla + Aufschüttüberlegung
>> Zum 1. Beitrag <<

Status
Für weitere Antworten geschlossen.
S

Shiny86

Der Vorschlag von Kaho gefällt mir schon.
Allerdings kann ich mir die Treppe nicht mehr vorstellen. Man geht hoch und hat direkt eine Decke über sich, die immer näher kommt? Ist das nicht einengend?
Oben hat man im Flur auch nur Licht durch ein Fenster über der Garage an der Treppe. Wie sieht es mit dem Fenster aus? Reicht das Licht dann noch um den Flur hell genug zu beleuchten?
 
S

Shiny86

Ich versteh das mit der Treppe nicht. Wir haben eine Podesttreppe. Daher ist das Kinderbad auch kleiner.
 
kaho674

kaho674

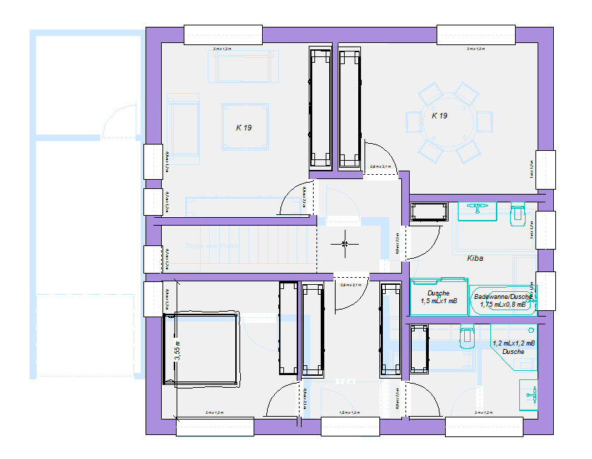
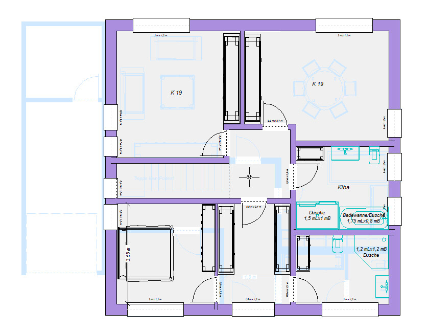
Wo klemmts?
Über der Treppe ist frei bis zur Decke des OGs. Also viel Platz. Das ist immer so, wenn keine Treppe mehr darüber ist. Das Licht dürfte in etwa gleich sein, wie bei dem jetzigen Entwurf oder sogar mehr. Du hast da ja im Augenblick eine Wand vorm halben Fenster im OG. Das hast Du mitbekommen?

Hier, hab Dir mal ein paar Fenster rein gemalt:


Grundriss eines Hauses: Wohnzimmer mit Sofas, Esstisch, Küche, Treppe, HWR, Bad, WC, Schränke.


Grundriss: Etagenplan mit Flur, Treppe, zwei Zimmer (K 19), Essbereich, Küche, Badewanne/Dusche.


Zweistöckiges graues Haus mit vielen Fenstern steht auf grünem Rasen, klare Wolken am Himmel.


Zweistöckiges graues Haus mit Anbau-Garage auf grünem Rasen.


Zweistöckiges graues Haus mit dunklem Dach, offene Türen, Fenster und grüner Rasen.



Hier noch ein Blick die Treppe runter, wobei die Darstellung eine Podesttreppe zeigt, weil mein Programm die andere nicht kann. Die Fenster- und Türrahmen haben alle ne schreckliche Farbe usw. aber für eine Vorstellung hilft es vielleicht?


Holztreppe mit Geländer in einem Flur, Blick durch Fenster auf grünen Rasen draußen.


Jetzt könnte man noch überlegen, ob man das Fenster bodentief macht, damit es größer und schöner ist. Dann sollten die daneben aber auch bodentief sein für die Ansicht, was ja kein Problem wäre.
 
S

Shiny86

Ich kann dir leider nicht folgen oder ich steh auf dem Schlauch. Oder hast du einen Fehler gemacht? Ich Krieg das Elternbad nicht so groß hin wie du, da die Treppe stört. Es kann doch gar nicht so sein wie du es gezeichnet hast?
Kannst du mir bitte noch mal helfen es zu verstehen.
 
Status
Für weitere Antworten geschlossen.
Zuletzt aktualisiert 24.11.2025
Im Forum Grundrissplanung / Grundstücksplanung gibt es 2536 Themen mit insgesamt 88008 Beiträgen


Ähnliche Themen zu Grundrissoptimierung Stadtvilla + Aufschüttüberlegung
Nr.ErgebnisBeiträge
1Grundriss Einfamilienhaus geplant, Fenster gefallen uns - Seite 343
2Grundrissplanung: Flur im EG breit genug? - Seite 357
3Lichtplanung mit LED Spots für Flur 13
4Beton-Podesttreppe, welcher Belag passt zu uns? 16
5 Küchenplanung mit tiefen Fenster - Seite 243
6Fenster / Türen / Garderobe 13
7Neubau einer ca. 8x11 Doppelhaushälfte, Einschätzung Grundriss und Fenster - Seite 235
8Bodentiefe Fenster - Warum bodentiefe Fenster? Vor- Nachteile? - Seite 7112
9OG Stadtville optimieren. Fenster Bodentief 104
10Bodentiefe Fenster oder Doppelflügeltüre mit franz. Balkon? 25
11Kleinstmögliches Fenster für Lüftung Hauswirtschaftsraum 22
12Fenster Brüstungshöhe 130 im Schlafzimmer / Arbeitszimmer? - Seite 893
13Flur-Grundriss vergrößern REH von 1921: Tipps? - Seite 227
14Müssen Heizkörper im Neubau immer unter die Fenster? 41
15Haus von 1988 sanieren - Fenster und Haustüre? 15
16Unser Grundriss steht zur Diskussion - Seite 439
17Grundriss Podesttreppe Varianten 15
18Podesttreppe aus Beton? - Seite 314
19Podesttreppen-Kombination Podesttreppe und halbgewendelte Treppe - Seite 211
20Einbruchsichere Fenster? 33

Oben