Grundrissoptimierung Stadtvilla + Aufschüttüberlegung

4,70 Stern(e) 21 Votes
Zuletzt aktualisiert 22.11.2025
Sie befinden sich auf der Seite 10 der Diskussion zum Thema: Grundrissoptimierung Stadtvilla + Aufschüttüberlegung
>> Zum 1. Beitrag <<

Status
Für weitere Antworten geschlossen.
11ant

11ant

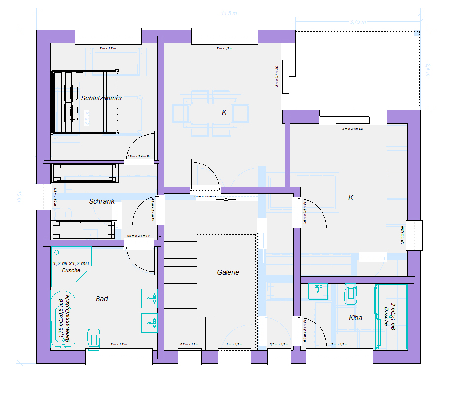
Wenn man EG und Garage mindestens auf Straßenniveau anhebt, wären es hinten schon circa 1,30 m Höhenunterschied vom Wohnzimmerfußboden zum Garten.
Aus meiner Sicht ist das zu viel Konjunktiv: Split Level soll zwischen den Geländehöhen auf verschiedenen Seiten des Hauses vermitteln. Bezug auf eine dritte Größe (hier: die Straße) zu nehmen, macht nur innerhalb der Denkwelt der Verbindungstür-Fraktion Sinn, da sich primär durch diese Verbindung eine Relevanz der Straßenhöhe in das Haus einschleicht.

Die TE hat was von ca. 1,6 m geschrieben
Im Text, mag sein. Ich habe auf die Messwerte der Höhen in der Grundstücksdarstellung geschaut.
 
L

ltenzer

Aus meiner Sicht ist das zu viel Konjunktiv: Split Level soll zwischen den Geländehöhen auf verschiedenen Seiten des Hauses vermitteln. Bezug auf eine dritte Größe (hier: die Straße) zu nehmen, macht nur innerhalb der Denkwelt der Verbindungstür-Fraktion Sinn, da sich primär durch diese Verbindung eine Relevanz der Straßenhöhe in das Haus einschleicht.
Der TE hat im Eröffnungspost explizit danach gefragt, ob er das Haus auf Straßenniveau anheben soll. Hat ja auch etwas mit Fragen der Entwässerung zu tun, bei den meisten mir bekannten Häuser fließt das Regenwasser von der Garagenzufahrt weg in Richtung Straße.
 
M

Mudo1991

@Shiny86 Steht die Garage auf der Grenze? Falls ja und ihr überlegt aufzuschütten könntet ihr auch unter Umständen eine zu hohe Garage bekommen, da deren Höhe meist vom ursprünglichen Gelände gemessen wird. Bitte bedenke auch das.
 
Status
Für weitere Antworten geschlossen.
Zuletzt aktualisiert 22.11.2025
Im Forum Grundrissplanung / Grundstücksplanung gibt es 2535 Themen mit insgesamt 87984 Beiträgen


Ähnliche Themen zu Grundrissoptimierung Stadtvilla + Aufschüttüberlegung
Nr.ErgebnisBeiträge
1Garage direkt an Einfamilienhaus. Fundament ausreichend? 20
2Hausfinanzierung - Haus, Garage und Bodenplatte ca. 290.000 EUR 11
3Technikraum in Garage einbauen? Ist dies möglich? 35
4Beheizung Garage. Was ist die beste / günstigste Lösung? 10
5Wo stellen wir Haus und Garage hin? 10
6Kostenschätzung Einfamilienhaus mit Garage 11
7Bungalow mit 140qm und Garage im Grundriss 13
8Erstes Angebot, 157m2 mit Keller, KFW 70, Garage 14
9Grundrissentwurf eines Passivhauses 170m² mit Garage - Seite 218
10Garage: Gestaltungsmöglichkeit des Daches, Erscheinungsbild 14
11Hausausrichtung / Hauseingang und Garage - Seite 214
12Begehbare Garage (Terrasse) 11
13Planung optimale Anordnung Haus, Garage und Einfahrt 13
14Grundriss mit Garage auf Grundstück realisierbar? 29
15Entwurf Einfamilienhaus mit Garage/Carport - bitte um Bewertung 22
16Wo günstige Garage beziehen? - Seite 211
17Regenspeicher in der Garage? 11
18Einfamilienhaus mit Einliegerwohnung & Garage 14
19Garage - Bauantrag - Verwirrung - Seite 636
20Haus ohne Garage und Keller? Ausbau Dachboden? Fresswarze? - Seite 585

Oben