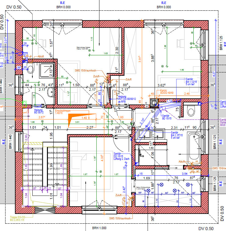
Grundriss-Aufteilung OG - Elternbereich / 2 Kinderzimmer mit Bad

5,00 Stern(e) 4 Votes
T

Tobias579

Hallo zusammen,

ich würde gerne wissen, ob ihr hier noch Optimierungspotenzial im OG seht.

Danke für das Schwarmwissen.

Aufteilung: Kinderbad + 2 Kinderzimmer (14+15 qm) + Elternbereich (Schlafzimmern 11qm+Ankleide 7qm +Bad 10qm)
Detailreicher Grundriss eines Hauses mit Zimmern, Türen, Wänden und Maßangaben.
 
mayglow

mayglow

Schau dir mal den Thread an und füll den Fragebogen aus: https://www.hausbau-forum.de/threads/grundriss-planung-unbedingt-vor-beitrag-erstellung-lesen.11714/

Ansonsten: sieht aus, wie selbst zusammengeschustert bis alle Räume drin waren?

Oben links das Kinderzimmer hat gerade nen Bett direkt mit Kopf neben der Tür eingezeichnet und woanders passts auch gar nicht so richtig hin... Sehr winkelig der Raum...

Kind 2 auch viele Ecken drin, die eher der Notwendigkeit geschuldet sind "irgendwie muss man ja in den Raum kommen..." aber sonst nichts gutes tun.

Bad mit zwei Türen hat immer die Problematik, dass man entweder beide zu machen muss oder halt jederzeit wer reinplatzen kann. Ansonsten Zähneputzen/Schminken etc DIREKT vor der Tür, gefällt mir nicht. Dass man da am Doppelbecken irwie gemeinsam nebeneinander steht und sich fertig macht, seh ich nicht. Keine Ahnung, wie breit der Toilettenplatz genau ist, ich bin generell nicht so der Freund von minikleinen dunklen Toilettennischen, aber das ist ja Geschmackssache... Wir hatten hier neulich auch mal den Fall, dass zu wenig Platz neben der Toilette war und der Mann schon mit den Schultern an der Wand war (und das war da nur eine Seite). Kann ich jetzt nicht sagen, ob das hier so wär oder nicht, aber ist nicht meins.

"Kinderbad", ich würde ja fast überlegen, das umzudenken. Eltern nen kleines Badezimmer geben (ggf auch mit Zugang nur über Schlafzimmer) und größeres Familienbad mit Badewanne etc, aber dann auch nur mit einem Zugang über den Flur.

Ankleide im Rohbau 188 breit und auf beiden Seiten Schränke eingezeichnet... Unser Kleiderschrank hat gerade ne Tiefe von 60cm. Selbst wenn auf die andere Seite nur nen flacheres Regal o.ä. kommt ist das eng. Wenn ihr die Ankleide als größeren Kleiderschrank anseht, dann nimmt die zweite Tür Abstellfläche. Wenn ihr euch darin auch umziehen wollt, ist es irre eng. Die Schiebetüren helfen zwar Schwenkbereich von Türen zu minimieren, aber ansonsten seh ich die eher als Anzeichen für "eigentlich ist nicht genug Platz, also lass uns rumtricksen".

Ich bin kein Grundriss-Bastler hier, insofern kann ich das auch nicht in gut. (Ich hätte vermutlich Standardgrundrisse gewälzt, bis ich was passendes finde, wenn wir selbst frei gebaut hätten)
 
H

hanghaus2023

Das sind doch schon Ausführungspläne was kannst denn da noch ändern? Ich würde versuchen das Kinderbad und das Bad der Eltern zusammen zu legen.
 
H

hanse987

Wenn ich mir eines der beiden Kinderzimmer aussuchen dürfte, dann würde ich nur das rechte nehmen. Schreibtich vor dem Fenster und nicht wie links in Eck gequetscht ohne Fenster. Nicht das blöde Kinderbadeck im Raum.
 
Y

ypg

ob ihr hier noch Optimierungspotenzial im OG seht.
Oh… ja! Da ist noch sehr viel machbar, wenn es schön und funktionell sein soll.
Ansonsten: sieht aus, wie selbst zusammengeschustert bis alle Räume drin waren?
Dem kann ich mich nur anschließen.
Ich bin kein Grundriss-Bastler hier,
Ich ja. Aber ohne EG, was wahrscheinlich ähnliche Defizite aufweist, lohnt es sich nicht, ranzugehen.

Ich zähle Optimierungsmöglichkeiten auf:
- Ankleide hat in der Form wenig Mehrwert.
- 2 Türen im Bad suboptimal bei Familiennutzung
- Bad: Benutzung der Waschtische sperren die Tür zum Flur
-Waschtisch zu weit von dem Fenster entfernt.
- 87cm RBM Breite für die Toi ist nicht ausreichend
- Wanne vor dem Fenster sorgt dafür, dass man zum Öffnen und Reinigen in die Wanne steigen muss.
- Bad höchst wahrscheinlich über einem Wohn-/Aufenthaltsraum, wo dann das Fallrohr durchführen wird
- Dusch-WC würde ich anders anordnen, damit der Waschtisch Licht von der Seite bekommt.
 
Zuletzt aktualisiert 11.12.2025
Im Forum Grundrissplanung / Grundstücksplanung gibt es 2550 Themen mit insgesamt 88439 Beiträgen


Ähnliche Themen zu Grundriss-Aufteilung OG - Elternbereich / 2 Kinderzimmer mit Bad
Nr.ErgebnisBeiträge
1Fenster / Türen / Garderobe 13
2Positionierung von WC und Waschtisch im Kinderbad 22
3 Küchenplanung mit tiefen Fenster - Seite 643
4Badplanung in Neubau (Eltern+Kinderbad) - Seite 635
5Grundrissplanung Stadtvilla - Was meint Ihr dazu? - Seite 428
6Umbau Kinderzimmer - Fenster in zwei Fenster aufteilen? 20
7Grundriss Einfamilienhaus geplant, Fenster gefallen uns 43
8Pfiffige Schlafzimmer Idee mit Ankleide gesucht - Seite 219
9Schallschutz Kinderzimmer 12
10Ankleidezimmer mit Kleiderschrank oder ohne 64
11Treppe "ragt" in Flur hinein: Problematisch? 12
12Grundrissplanung Hanghaus mit 5 Kinderzimmer - Seite 26370
13Kinderzimmer und Schlafzimmer - Welche Größe ist zu empfehlen? - Seite 256
14Neubau einer ca. 8x11 Doppelhaushälfte, Einschätzung Grundriss und Fenster - Seite 635
15Grundrissplanung ca. 200qm (3 Kinderzimmer + Schlafen) - Seite 529
16Entwurf Einfamilienhaus mit 3 Kinderzimmer, Keller und Grenzbebauung 32
17Fenster Brüstungshöhe 130 im Schlafzimmer / Arbeitszimmer? - Seite 893
18Kinderzimmer in Dachgeschoss zu klein geplant? - Seite 633
19Wanddicke Kinderzimmer / Bad 35
20Stumpfeinschlagende Türen - Anschlag links oder rechts!? 32

Oben