Haus von 1988 sanieren - Fenster und Haustüre?

4,80 Stern(e) 6 Votes
E

ElEnrico

Hallo zusammen,

wir sind jetzt in der glücklichen/unglücklichen Situation mein Elternhaus aus von 88/89 zu bekommen. Vermutlich ziehen die Eltern um Dezember in eine Mietwohnung und dann können wir mit Sanierung/Umbaumaßnahmen beginnen. Prinzipiell ist das Haus gut in Schuss und wir erhalten die Tage auch das Kurzgutachten für die Auszahlung der Geschwister.

Wie das so ist, fängt man klein an und es wird dann immer mehr.
Bäder sind 5 Jahre alt, da wird nichts dran gemacht. Gasheizung ist glaube ich von 2013 und auch noch erstmal ausreichend.

Was fest ist:
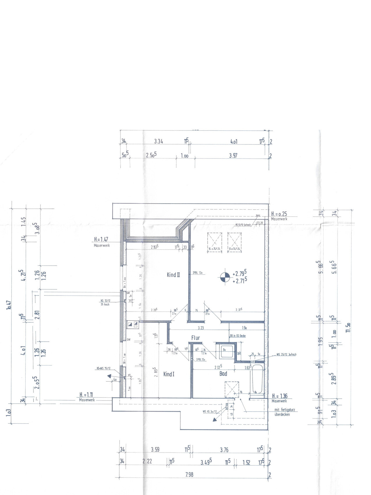
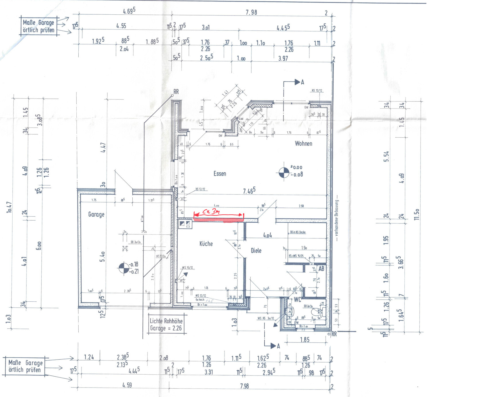
1) Kompletter Fußboden in EG und OG raus und Fußbodenheizung rein. Wir wollten im Wohnzimmer einen Ofenkamin ggf. Wasserführend installieren. Mindestens legen wir hier die Wasserleitungen wenn wir den Boden rausstemmen, damit im Zweifel später nachgerüstet werden kann.
Verteiler 1 kommt in den Flur hinter der Eingangstüre und Verteiler 2 oben in den Flur zwischen die Kinderzimmer.

1.1) Flur, Küche Abstellraum: Fliesen bekomm ich über bekannten recht günstig zusammen mit Fliesenleger

1.2) Wohnzimmer: Parkett, wird noch ausgesucht.

1.3) OG: Vermutlich Kork

1.4) Im Zuge dessen will ich auch vernünftiges Netzwerk legen. Je 2 Dosen in den Kinderzimmern + für einen Access Point , 2x 2 Anschlüsse im Wohnzimmer sowie 4 Stück im Keller1. Dort ist dann auch das zukünftige Arbeitszimmer.

2) Sofern statisch möglich kommt ein Durchbruch von der Küche ins Wohnzimmer. Maximale Breite wird noch vom Statiker bestimmt wird was um die 1.5-2m werden (nicht wie 3m auf den Plan)

3) Alle Türen und Zargen neu. Ggf. kommt eine Schiebetür von der Diele zur Küche rein.

5) Streichen

6) Keller neuer Teppich.

Wo ich noch dran bin und mir über den Umfang der arbeiten unsicher bin (und dann euren Rat benötige)

7) Sämtliche Fenster austauschen. Die sind noch von 1988 Kunststoff-Doppelverglasung. Alle haben eine Helima-Sprosse, wenn ich das richtig im Kopf habe. Die Gefallen uns nicht und wir wollen eigentlich neue. Worauf muss ich genau achten um den Aufwand möglichst gering zu halten? Prinzipiell wollten wir nicht umfangreiche Stemmarbeiten am Mauerwerk durchführen. Weitere/zusätzliche/neue Wandisolierung ist nicht vorgesehen. Stichwort hier Schimmelbildung.
AdHoc hab ich kein besseres Bild zur Hand, Detailbilder reiche ich dann noch nach.

8) Haustüre im gleichen Zuge auch austauschen. Hier dito Punkt 4. Ich kann die arbeiten nicht abschätzen.

9) Zählerschrank muss vermutlich auch angepackt werden ist noch von 1988.

Nice To Have:

10) Neues Treppenhaus, das könnte wenn die Kosten zu hoch werden

11) Trockenbauwand Keller/Treppenhaus wegen "Kältezug" nach oben (laut meiner Frau)

Im Anhang hab ich die Pläne sowie Beschreibung hochgeladen.


Vielen Dank und noch einen schönen Tag.

Architekten-Grundriss eines Hauses mit Küche, Essen, Wohnen und Garage


Grundriss Kellergeschoss mit Keller I, Keller II, Flur, Heizung, Vorrat, Pumpe


Grundriss eines Hauses mit Kind I, Kind II, Bad und Flur


Querschnitt durch ein Haus mit Dachkonstruktion, drei Stockwerken und Maßen.


Baubeschreibung: Seite mit Gliederung von Fundamenten, Wänden, Decken, Dach und Fenster.


Gedrucktes Dokument auf Papier mit Listen zu WC-Sitz, Küche, Keller und Elektroangaben.


Ein zerknittertes DIN-A4-Blatt mit Bau- und Renovierungsliste: Putzarbeiten, Estrich, Fliesen, Türen.


Gedrucktes technisches Dokument zu Heizung und Sanitär; eine Hand hält das Blatt.


Küche mit Spüle, Teller, Flaschen, Kräutertöpfen am Fenster; Blick nach draußen.
 
Zuletzt bearbeitet:
kbt09

kbt09

Mal eine Anregung zum Nachdenken.
Ich persönlich bin Fan von Küche an Terrasse (wg. Sommer, wg. Kindern im Garten usw.) und Küche / Essen gehören zusammen, Wohnen/Sofa kann getrennt sein.

Vielleicht könntet ihr euch auch vorstellen, da ihr ja eh den Boden rausnehmen wollt und einen Keller habt, aus dem jetzigen Wohnbereich einen großzügigen Koch/Essbereich, evtl. sogar noch mit kleiner Sessel-Leseecke zu machen und aus der jetzigen Küche einen Rückzugsbereich Sofa/TV. Man könnte den Durchbruch sein lassen oder mit den 2 Metern gut hinkommen. Dann die Tür zur Diele schließen und dort einen schönen Garderobenplatz zu installieren.
 
11ant

11ant

7) Sämtliche Fenster austauschen. Die sind noch von 1988 Kunststoff-Doppelverglasung. Alle haben eine Helima-Sposse, wenn ich das richtig im Kopf habe. Die Gefallen uns nicht und wir wollen eigentlich neue. Worauf muss ich genau achten um den Aufwand möglichst gering zu halten? Prinzipiell wollten wir nicht umfangreiche Stemmarbeiten am Mauerwerk durchführen. Weitere/zusätzliche/neue Wandisolierung ist nicht vorgesehen. Stichwort hier Schimmelbildung.
AdHoc hab ich kein besseres Bild zur Hand, Detailbilder reiche ich dann noch nach.
Dann reiche mal Bilder nach. Innenliegende Sprossen tauscht man einfach nicht mit, wenn man die nicht mag (was ich an der Straßenseite wegen dem Ensembleanblick mit den Nachbarreihenhäusern aber lassen würde). Werden nur die Scheibenpakete getauscht, entfällt die Stemmarbeiten-Sauerei natürlich ganz.
 
D

dertill

7) Sämtliche Fenster austauschen. Die sind noch von 1988 Kunststoff-Doppelverglasung. Alle haben eine Helima-Sprosse, wenn ich das richtig im Kopf habe. Die Gefallen uns nicht und wir wollen eigentlich neue. Worauf muss ich genau achten um den Aufwand möglichst gering zu halten? Prinzipiell wollten wir nicht umfangreiche Stemmarbeiten am Mauerwerk durchführen. Weitere/zusätzliche/neue Wandisolierung ist nicht vorgesehen. Stichwort hier Schimmelbildung.
Das Haus ist von 1988, also nach der 2. WschVO von 1984 gebaut. Ergo ist der U-Wert der Wand so um ca, 0,5 W/m²K. Auch 3-Fach verglaste Scheiben mit warmer Kante haben einen höheren U-Wert. Feuchtetechnisch also kein Problem.
Zusätzliche Wanddämmung ist eh nicht wirtschaftlich, da nur Einsparungen um eine U-Wert-Verringerung von 0,3 erzielt werden können, was ca. 20 kWh / m² im Jahr entspricht bei wohl um die 200€/m² Kosten.

Bei den Fenstern würde ich 3-Fach verglast mit warmer Kante empfehlen, im Terrassentür-Bereich nicht am Profil sparen, generell lieber 85er nehmen oder auch Aluminium-Terrassentüren. Kein Anthrazit, sondern bleib bei Weiß oder helles Grau. Anthrazit hat jeder.

Wenn ich mir die Bilder in deinem 2. Post ansehe, kannst du die Profile auch lassen, wenn die stabil sind und nicht wabbelig. Dann kannst du nur die Verglasung tauschen und hast keinerlei Stemmarbeiten. Die Sprossen kannst du dann weglassen. Ich finde innenliegende Sprossen auch nicht schön, aber ganz ohne ist auch doof. Ich stehe eher auf echte Sprossen oder mehrflügelige Ausführung - dazu ist aber ein Kompletttausch notwendig.

Allgemein sind festferglaste Teile deutlich günstiger (nicht fester Flügel, sondern einfach fest ohne Flügel). Da kann man bei der Fensteraufteilung auch tolle Effekte erzielen und z.B. bei breiteren Fenstern in der Mitte einen relativ großen Flügel machen und recht und links schmal fest verglast. Ist günstig, man hat eine optische Streckung in der Höhe und zusätzlich Plätze auf der Fensterbank, wo man nicht räumen muss beim Lüften.

Austausch Verglasung sollte so bei 200€ / m² liegen, ganze Fenster wohl eher Faktor 3-4, bei natürlich höherer Energieeinsparung und Lebensdauerverlängerung.
 
11ant

11ant

Bei den Fenstern würde ich 3-Fach verglast mit warmer Kante empfehlen,
Den Bildern ist die Reserve der Glasleisten nicht klar genug anzusehen, eventuell gehen hier wieder nur doppelscheibige Pakete, aber auch da gibt es inzwischen deutliche Verbesserungen. Die warme Kante bringt schon eine solche. Ich empfehle dazu (mitsamt der Anführungszeichen zu ergugeln) "Sind drei Fensterscheiben besser als zwei?" und "Was ist eigentlich eine „warme Kante“?"
 
Zuletzt aktualisiert 11.11.2025
Im Forum Bauplanung gibt es 5069 Themen mit insgesamt 100788 Beiträgen


Ähnliche Themen zu Haus von 1988 sanieren - Fenster und Haustüre?
Nr.ErgebnisBeiträge
1U-Wert der Fenster - Unterschiede 15
2Grundrissplanung Stadtvilla Neubau mit Keller 36
3Grundriss Einfamilienhaus, ca. 200qm ohne Keller - Einschätzung - Seite 19172
4U-Wert Außenwand 0,26 - in Ordnung? 13
5Nicht-bodentiefe Fenster im Wohnzimmer unmodern? Welche Vorhänge? - Seite 217
6Grundriss für 150qm Einfamilienhaus mit Wohnzimmer nach Norden 21
7Grundriss Einfamilienhaus 2 Vollgeschosse +Keller ca. 130m² Wohnfläche 30
8Einfamilienhaus 220qm mit Keller auf 700qm Grundstück 41
9Fenster / Türen / Garderobe 13
10Probleme bei der aufteilung Küche, Essen , Wohnen 16
11Grundrissplanung Stadtvilla Doppelgarage | Keller | KFW40+ | 205m² - Seite 326
12Grundrissentwurf Stadtvilla mit Keller Verbesserungsvorschlag? - Seite 677
13Finanzierung Hausbauangebot 138qm Einfamilienhaus 2 Vollgeschosse + Keller - Seite 232
14Wohnzimmer: Wie Sofa, TV und Schränke stellen? - Seite 432
15Grundrissfrage, Treppe, Fenster, Ausrichtung 12
16Wohnzimmer Grundrissplanungs-Ideen? - Seite 239
17Entwurf / Verbesserung Einfamilienhaus 150-175m² mit Walmdach und Keller 39
18Neubau Einfamilienhaus ca. 190m², Doppelgarage ohne Keller, Erstentwurf 21
19Kalkulation Einfamilienhaus mit 175m² Wohnfläche, Keller und Doppelgarage - Seite 279
20Erster Entwurf Einfamilienhaus 150m² mit Keller 38

Oben