Lage von Haus & Garage im Baufenster planen *Vorplanung*

4,80 Stern(e) 5 Votes
Zuletzt aktualisiert 20.11.2025
Sie befinden sich auf der Seite 10 der Diskussion zum Thema: Lage von Haus & Garage im Baufenster planen *Vorplanung*
>> Zum 1. Beitrag <<

RobsonMKK

RobsonMKK

Wie schon mal erwähnt wurde, ihr mögt es wohl sehr verwinkelt
Ja, damit meine ich die Flure, oben wie unten

Mit Glaselement wäre optisch sicher schön. Wurde nun aufgrund der Verkleinerung von Flur usw. auf 1,50m minimiert. Welches Maß "natürlich nur ca. würde dafür benötigt werden?
Der Flur ist aber gemäß deiner Zeichnung keinen Meter fünfzig breit. Wenn ich den Plan für unser Haus gerade richtig interpretiere sind es schon 112,5 cm lichte Breite nur für die Tür.

Hatte zur Inselgröße das Internet benutzt bzw. mit unserer aktuellen Insel versucht dieses Maßstabsgetreu ein zu zeichnen. Bin mir aber nicht genau sicher, ob die Insel so groß sein muss bzw. sollte (in der Zeichnung ist diese 2,40x1,30 (LxB).
Wie gesagt, der Gang um die Insel ist eher das Problem, nicht die Insel an sich. Das sieht halt nicht so aus als könnte man dort gemütlich herum laufen.
 
Häuslebau3r

Häuslebau3r

Ja, ich versteh schon worauf du hinaus willst.

Zerbrechen uns ja auch die Köpfe was denn mit einer L-förmigen Küchen-, Ess- und Wohnbereich mit Eingang im Westen und Treppenhaus im Osten noch möglich wäre. Ist aber aufgrund solcher Konstellationen dann nicht all zu einfach wie ich finde.

Schaut sicher auch nicht so gut aus, wenn man zur Haustüre reinkommt und am Ende des Ganges auf das Treppenhaus blickt. Hm..

Bezüglich der Haustüre, müsste man dann sicher um die 1,80 einplanen.

Zur Küche selbst haben wir glaube ich ca. 90cm um die Insel herum in der aktuellen Wohnung. Hängt natürlich auch etwas mit der Inselgröße zusammen usw.
 
J

j.bautsch

ich empfehle dir fast zeitgleich zur Grundriss Erstellung deine Küche schon weitestgehend zu planen, nicht das du hinterher feststellst das deine Traumküche gar nicht in dein Haus passt. Typische Inseltiefen sind eher 100 (Vorderseite 60er schränke und hinten 40er) oder 120cm (beidseits 60er schränke) Laufwege um eine Insel herum sollten 90cm keines falls unterschreiten, angenehm sind 100-120. viel mehr sollte es an Abstand zu einer anderen Zeile der praktibilität wegen aber auch nicht werden.
 
Häuslebau3r

Häuslebau3r

@j.bautsch,

danke dir für die maßlichen Hinweise!

Aktuell sind wir noch beim Meilenstein 0 bzw. noch vor der Vorplanung.
Wir versuchen uns eben nun bereits vorab Gedanken über den "Best möglichen Schnitt zu machen, mit welchen wir dann zu unserem gewünschten Planer gehen können.

Im Anschluss möchten wir dann mit der professionell erstellten Vorplanung die ersten Finanzierungsgespräche bei verschiedenen Banken und Finanzvermittler starten.

Aktuell geht es uns darum, einen Best möglichen Schnitt von Haus und Garage (erste Gedanken zum Schnitt der Räume und Zimmer) zu erhalten. Denke das dieser Part mit der schwierigste ist und es wohl keinesfalls schadet, das bereits vor den ersten Gesprächen mit dem Planer zu machen.

Darum hat das nach meinem Verständnis zum aktuellen Zeitpunkt nich nicht ganz prio 1. Werde dies aber auf jeden Fall bei den weiteren Gedanken mit einbeziehen.
 
Zuletzt bearbeitet:
Häuslebau3r

Häuslebau3r

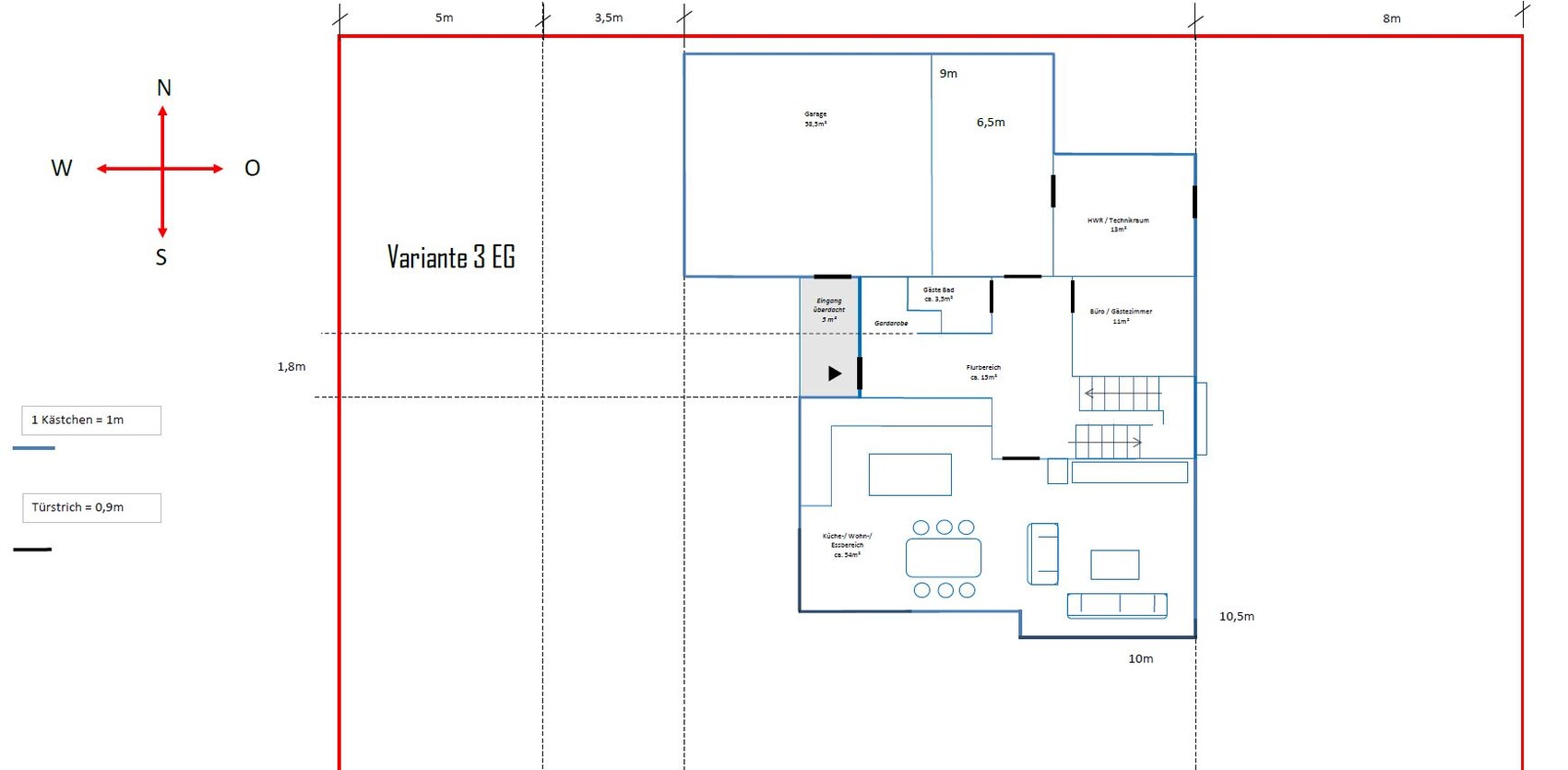
Hab nun nochmals versucht den Eingangsbereich im EG zu Vergrößern.

Des Weiteren wurde die Insel hinsichtlich der Maße nochmals angepasst. Abstand nun 1 Meter zum Tresen. Aufgrund der Änderungen im EG (die Flure anzugleichen / Winkelbeseitigung) sind natürlich die Zimmer Hauswirtschaftsraum und Büro etwas kleiner geworden.

Im OG wurde das WC und der Abstellraum sowie das Badezimmer angepasst.


Grundriss EG Variante 3: Küche/Wohnen/Essbereich, Garage, HWR, Tech., Büro/Gästezimmer.

Grundriss eines OG mit Bad, Flur, Kind 1, Kind 2, Eltern, Ankleide, Abstellkammer; Variante 3 OG
 
RobsonMKK

RobsonMKK

Sieht schon besser

Drei kleine Anmerkung habe ich noch:
1. der Knick im Gästebad, den würde ich weglassen. Du hast jetzt mir der Nische ja einen "Raum" für die Garderobe geschaffen. Bin zwar kein Experte für Garderoben, aber da kann man sicher schon was mit machen.
2. bei der Abstellkammer oben gebe ich nach wie vor zu bedenken, mit der Breite wird es schwer dort gescheit ein Regal zu stellen, das noch mal checken
3. Willst du als Zugang zum Wohnzimmer eine einflügelige Tür? Oder auch eher was mit Seitenteil oder sogar 2 Flügeln? Das würde ich noch versuche zu berücksichtigen.

Ansonsten finde ich es unter sehr viel klarer jetzt
 
Zuletzt aktualisiert 20.11.2025
Im Forum Grundrissplanung / Grundstücksplanung gibt es 2535 Themen mit insgesamt 87978 Beiträgen


Ähnliche Themen zu Lage von Haus & Garage im Baufenster planen *Vorplanung*
Nr.ErgebnisBeiträge
1Grundriss für schmale Doppelhaushälfte - Keller + 2 Viel Glück+ DG ohne Kniestock - Seite 753
2Planung Wohnraum & Küche eines Doppelhaushälfte in Nürnberg - Seite 213
3Wohnzimmer: Wie Sofa, TV und Schränke stellen? 32
4Maße für Küche festlegen - Seite 215
5Küche ohne Griffe bestellen ist mit Aufpreis verbunden - Seite 432
6Ikea Metod Küche Wandschienenproblem, Anleitung erwünscht 11
7Erste Ikea Küche...Jetzt mit Rückwand (S. 7) - Seite 261
8Planungsbeginn neue Küche - Seite 222
9Unsere neue erste Ikea Küche - Planung und Vorbereitung - Seite 869
10Erste Küche geplant - Fragen zum Entwurf 14
11Küchenplanung: U-Form-Küche und Schubladen kollidieren 20
12Nach Umzug: Vermurkste IKEA-Küche in der Wohnung 14
13Aufmaß der Küche im Rohbau nach Fertigstellung Innenputz möglich? 10
14Küche & Preis - Schnelle Einschätzung erwünscht!! - Seite 23165
15Grundriss Bungalow 150qm geschlossene Küche, überdachte Terrasse 40
16Erstentwurf Nolte Küche - Meinungen und Verbesserungsvorschläge - Seite 330
17Grundrissplanung Wohnzimmer-Küche - Seite 418
18Schwierigkeiten TGA Planer, Vorlauftemperatur Fußbodenheizung + Abwasserentlüftung - Seite 19124
19Nobilia Küche Erfahrungen, Preise? - Seite 1179
20Neue Küche: Wasserleitungen auf Putz verlegen - Seite 423

Oben