
Häuslebau3r
Wer ist Oliver? Hab ich mich beim letzten Post schon gefragt.
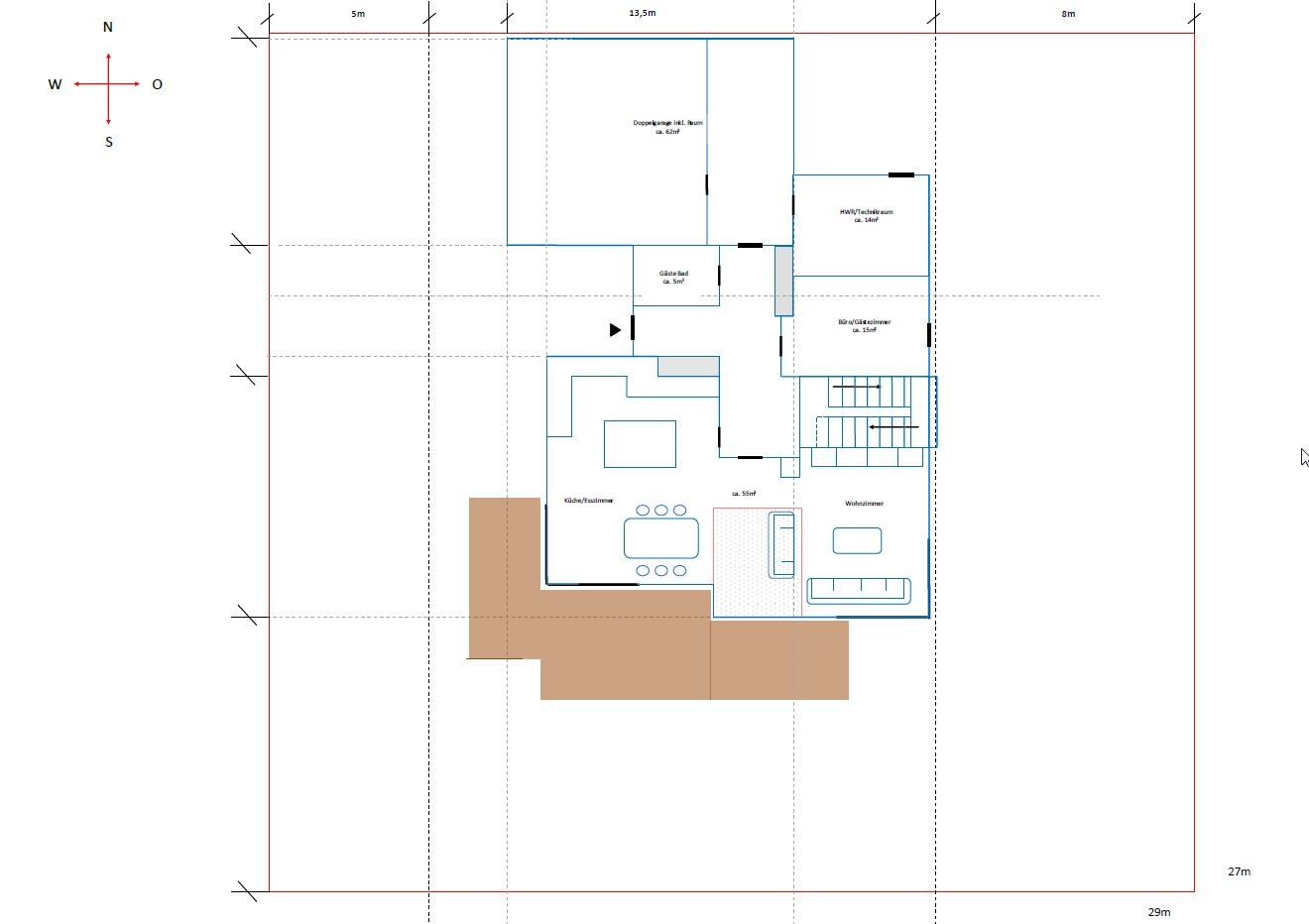
Der Grundrisss wird doch langsam. Noch ein paar Hinweise:
Schande über mein Haupt
EG ist identisch, oder? Zugang zum Schlafzimmer würde ich entweder über die Ankleide, oder über den Flur machen. Nicht beides. Das Bad im OG ist nur über die Ankleide zu erreichen. Wo duschen / baden eure Kinder? Abstellraum, WC oben und Speisekammer sind ziemlich schmal.
Mein Kollege heißt Oliver @Jochen104 ,dabei meinte ich doch dich. Nur hatte dieser immer mit rein gequatscht hier... ach ja, Mann wird halt doch nicht jünger ops: ..sry
Hab nun gerade deine Punkte nochmals gecheckt.
Hab nun gerade deine Punkte nochmals gecheckt.
- EG ist beide male fast identisch. Im Grundriss beim Wohnzimmer ändert sich aufgrund evtl. Fensterfront der Galerie etwas. (bis auf die Speisekammer die ich nicht richtig untergebracht hatte)
- Das Schlafzimmer der Eltern wäre nur über die Ankleide zu erreichen.
- Von der Ankleide aus geht es ins Bad. Vom Gang außen auch direkt ins Bad.
- WC sehe ich oben "eigentlich" nicht als notwendig. Denke hier wird es entweder ein WC oder ein Abstellraum werden.
Also mit der Speisekammer wirst du überhaupt nichts machen können. Wenn ich das richtig deute ist die irgendwas zwischen 80 und 100 cm. Steht also ein Regal drin kommt niemand mehr durch. Und der "Knick" ist auch nicht so hilfreich.
Wie bei Jochen erwähnt, konnte ich die Speiß nun nicht so wirklich unter bringen, weshalb ich Sie nun auch bei den nochmals kurz optimierten Versionen herausgelassen habe. Kenne es nur aus dem Elternhaus, Speisekammer mit Schiebetür Maße ca. 1.50 Meter auf 4-5 Meter. Für den Zweck eigentlich ausreichend. Aber müsste nochmals überdacht werden.
Habe nun wie geschrieben die Speisekammer nochmals raus und wie von Yvonne angemerkt nochmals mit und ohne Galerie erstellt.
Zuletzt bearbeitet: