Grundrissplanung Stadtvilla 145

4,80 Stern(e) 4 Votes
I

icarus123

Hallo liebe Forummitglieder.

Ich bin schon länger stiller Mitleser und möchte nun die Chance ergreifen, einige Tipps und Ratschläge abzustauben. Wir sind momentan bei der Planung unseres Häuschens und möchten gerne unsere ersten Entwürfe mit euch teilen.

Wir sind generell völlig frei in der Planung. und möchten ein funktionales Heim für 4 Personen.
Wichtig sind uns Kücheninsel, Kamin, Ebenerdige Dusche.

Wir würden uns über Tipps und Anregungen freuen, da wir noch nie ein Haus geplant geschweige denn gebaut haben.

Lieben Dank im Voraus.

Bebauungsplan/Einschränkungen
Größe des Grundstücks 774qm
Hang nein
Grundflächenzahl 0,25
Geschossflächenzahl
Baufenster, Baulinie und -grenze 12 m breit
Randbebauung: nein
Anzahl Stellplatz: 2
Geschossigkeit: 2
Dachform: Walmdach
Stilrichtung: Stadtvilla
Ausrichtung: Gartenterrasse Süd/Westen
Maximale Höhen/Begrenzungen 8,5m First
Knickschutzstreifen beachten inklusive Knick 6,8m

Anforderungen der Bauherren
Stilrichtung, Dachform, Gebäudetyp: mediterran
Stadtvilla 2 Vollgeschosse
Anzahl der Personen, Alter : 4 Personen, 28,32,3,1
Raumbedarf im EG, OG
Büro: Homeoffice teilweise
offene Küche, Kochinsel ja
Anzahl Essplätze 6
Kamin: ja
Garage: ja

Hausentwurf
Von wem stammt die Planung: GU
Was gefällt besonders? Warum?
Was gefällt nicht? Bad OG noch nicht final, Fallleitung ärgerlich.
Persönliches Preislimit fürs Haus, inkl Ausstattung:Festpreis mit Puffer vorhanden
favorisierte Heiztechnik: LWWP

Wenn Ihr verzichten müsst, auf welche Details/Ausbauten
-könnt Ihr verzichten: auf vieles außer unten
-könnt Ihr nicht verzichten: Kamin, Kücheninsel, ebenerdige Dusche

Warum ist der Entwurf so geworden, wie er jetzt ist?

Entwurf durch Planer GU nach Skizze.


Zweistöckiges Haus mit Garage links, zwei Fensterfronten und zwei Personen vor dem Eingang


Detaillierter Grundriss eines Hauses mit Küche, Wohn-/Essbereich, Diele, WC und Treppen.


Grundriss eines Hauses: Schlafzimmer, zwei Kinderzimmer, Arbeitszimmer, Bad, Flur und Treppe.


Schnitt A-A durch ein zweigeschossiges Haus; Querschnitt mit Treppe, Dachkonstruktion und Höhenangaben.


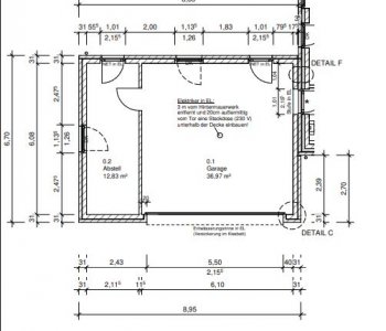
Grundriss einer Garage mit Abstellraum, Türen und Maßangaben.


Lageplan eines Grundstücks mit Umfassungsmauern, Zufahrten und Bauflächen
 
I

icarus123

Eine Alternative für das Bad hatten wir uns schon überlegt. Wenn man die Treppe spiegelt könnte die Dusche in den Flur reinragen. Ich habe versucht das mal darzustellen, bin darin aber nicht besonders geschickt.


Badezimmer-Grundriss mit Badewanne, Waschbecken und Toilette, Maße in cm.
 
S

SoL

Die Treppe ist da massiv ungünstig platziert, weil sie oben den großen Flur bedingt.
Ich würde sie weiter planoben schieben, ggf. mit Gäste-WC tauschen.
Oben ist die 5m² Arbeitsrumpelkammer sehr irritierend. Das werdet ihr bereuen, da kaum nutzbar.
Für den Flur unten würde ich schonmal Tanzstunden buchen.
 
I

icarus123

Hallo SoL.
Danke für die schnelle Rückmeldung.
Unser Schlafzimmer ist momentan mit ca. 15 qm geplant. Wir wollten dort vllt. noch eine kleine Leichtbauwand einziehen für einen begehbaren Kleiderschrank. Die Arbeitskammer soll eigentlich nur im Bedarfsfall genutzt werden, da spontanes Mobiles Arbeiten für uns beide möglich ist und einer sich zurückziehen könnte. Die ist aber in der Tat recht klein. Alternativen sind uns aber nicht eingefallen(vllt. doch ins Schlafzimmer integrieren). Die Kinderzimmer sollten für uns um die 13 qm behalten.

Der Flur und Treppenbereich mit den Bädern bereitet uns auch Kopfzerbrechen, nur wissen wir nicht, wie wir hier groß was ändern könnten. Der WZ/EZ/Küche Bereich gefällt uns nämlich so sehr gut...
 
P

Pacmansh

Der WZ/EZ/Küche Bereich gefällt uns nämlich so sehr gut...
Wie wollt ihr das denn möblieren, so wie im Entwurf mit dem Esstisch neben dem Sofa? Ich würde bei so einem Grundriss ja erwarten, dass der Esstisch in den freien Bereich linksoben kommt. Der ist aber in diesem Entwurf zu klein für einen Esstisch.
 
I

icarus123

Wir wollten den Esstisch eigentlich so belassen. Die Fläche vor der Kücheninsel soll den Kindern zum Spielen dienen, wenn wir kochen und wir fanden es schön den Bereich frei zu lassen, da wir den Laufweg durch die Schiebeterrassentür auf unsere Terrasse wohl recht häufig nutzen werden.
 
Zuletzt aktualisiert 20.11.2025
Im Forum Grundrissplanung / Grundstücksplanung gibt es 2535 Themen mit insgesamt 87978 Beiträgen


Ähnliche Themen zu Grundrissplanung Stadtvilla 145
Nr.ErgebnisBeiträge
1Entwurf - alle Richtungen bei Neubau vom Einfamilienhaus 91
2Neubau Einfamilienhaus ca.220qm, 2. Entwurf Stadtvilla - Seite 459
3Kücheninsel und Esstisch - Welchen Grundriss wählen? 21
4Grundrissplanung Satteldachhaus (Kniestock 2,20m) ca. 170qm - Seite 742
5Grundriss-Entwurf Stadtvilla Feedback - Seite 213
6Haus-Entwurf Einfamilienhaus - Zukünftig als Zweifamilienhaus trennbar - Seite 572
7Grundrissplanung / Entwurf Einfamilienhaus Flachdach mit Doppelgarage 87
8Eigener Grundrissentwurf Stadtvilla 180qm mit Doppelgarage Feedback - Seite 762
9Entwurf EFH, 2 Vollgeschosse, Satteldach, kein Keller, Doppelgarage - Seite 331
10Grundriss Entwurf Einfamilienhaus mit 10% Südhang. Hauseingang Podesttreppe - Seite 754
11Planung unseres Einfamilienhaus - Was meint ihr zum Entwurf? - Seite 656
12Grundrissplanung für Stadtvilla mit 168 qm - Wer hat Ideen? 47
13Idee Schlafzimmer - Bett / Schrank Anordnung 32
14Grundriss für 200qm Stadtvilla - Wünsche umsetzbar? 98
15Grundrissfrage: Tausch gerader Treppe durch L-Treppe 31
16 2 Vollgeschosse, Durchgang Garage, Hauswirtschaftsraum unter Treppe 25
17Jetzt der finale Grundriss - 189qm ohne Keller; Stadtvilla - Seite 424
18Treppe im Flur, Grundriss steht eigentlich schon :o( - Seite 320
19Grundriss erster Entwurf - Meinungen erwünscht - Seite 321
20Einfamilienhaus-Grundriss Entwurf - Seite 223

Oben