ᐅ Einfamilienhaus-Grundriss Entwurf
Erstellt am: 19.02.14 02:35
Hallo,
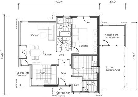
nach einigen Tagen des Einlesens möchte ich nun Eure Hilfe in Anspruch nehmen. Wir haben den Wunsch zeitnah zu bauen. Dies ist abhängig vom fehlenden Grundstück. Unsere Gemeinde, in der wir bauen möchten, hat kaum Grundstücke im Angebot. Die wenigen, die jedoch angeboten werden, sind leider Bauträger gebunden. Ein Bauunternehmer fällt raus, weil viel zu teuer, daher bleibt uns nur noch das andere Unternehmen, für das wir gerade einen Grundriss entwerfen. Und genau hier möchte ich um Eure Unterstützung/Meinung bitten.
Für das Grundstück werden für unsere ländliche Gegend bereits an die 100k (inkl. sämtlicher Nebenkosten) fällig und da beim Bau die Herausnahme einzelner Arbeiten in Eigenleistung sich nahezu nicht lohnen dürfte, haben wir nun vor aus Kostengründen den Dachboden in etwa drei bis fünf Jahren in Eigenregie auszubauen. Das Erdgeschoss mit max. 160 m² wird uns für die nächste Zeit ausreichen (Familie mit 2 Kindern). Das Haus soll ein Bungalow mit (vermutlich) einem Pultdach werden. Falls noch weitere Infos benötigt werden, dann fragt bitte.
Ich freue mich auf Eure Kommentare.
P.S. Es ist nur ein Entwurf.

nach einigen Tagen des Einlesens möchte ich nun Eure Hilfe in Anspruch nehmen. Wir haben den Wunsch zeitnah zu bauen. Dies ist abhängig vom fehlenden Grundstück. Unsere Gemeinde, in der wir bauen möchten, hat kaum Grundstücke im Angebot. Die wenigen, die jedoch angeboten werden, sind leider Bauträger gebunden. Ein Bauunternehmer fällt raus, weil viel zu teuer, daher bleibt uns nur noch das andere Unternehmen, für das wir gerade einen Grundriss entwerfen. Und genau hier möchte ich um Eure Unterstützung/Meinung bitten.
Für das Grundstück werden für unsere ländliche Gegend bereits an die 100k (inkl. sämtlicher Nebenkosten) fällig und da beim Bau die Herausnahme einzelner Arbeiten in Eigenleistung sich nahezu nicht lohnen dürfte, haben wir nun vor aus Kostengründen den Dachboden in etwa drei bis fünf Jahren in Eigenregie auszubauen. Das Erdgeschoss mit max. 160 m² wird uns für die nächste Zeit ausreichen (Familie mit 2 Kindern). Das Haus soll ein Bungalow mit (vermutlich) einem Pultdach werden. Falls noch weitere Infos benötigt werden, dann fragt bitte.
Ich freue mich auf Eure Kommentare.
P.S. Es ist nur ein Entwurf.
Also ich bin zwar nicht von Fach, aber ein Bungalow kommt i.d.R. teurer als ein gleich großes 1 1/2 geschossiges Haus. Ist euch das bewusst? Ist Bungalow gewollt?
Was mir am Entwurf nicht gefällt ist, dass die Kinder das Gäste-WC als Hauptbad nutzen sollen. Man sollte den Grundriss (bei einem Bungalow) so einteilen, dass alle das große Bad nutzen können und das Gäste-WC auch Gäste-WC bleibt - evtl. mit gelegentlicher Nutzung der Dusche. Was allerdings wohl sehr sehr selten passieren wird!
Das Elternschlafzimmer ist gewöhnungsbedürftig und das Esszimmer scheint mir zu eng zu sein.
Ist das euer selbstgezeichneter Entwurf? Lasst euch vom Bauträger mal was vorlegen/anbieten. Wichtig ist die Trennung von privat und öffentlich.
Viel Glück
milkie
Was mir am Entwurf nicht gefällt ist, dass die Kinder das Gäste-WC als Hauptbad nutzen sollen. Man sollte den Grundriss (bei einem Bungalow) so einteilen, dass alle das große Bad nutzen können und das Gäste-WC auch Gäste-WC bleibt - evtl. mit gelegentlicher Nutzung der Dusche. Was allerdings wohl sehr sehr selten passieren wird!
Das Elternschlafzimmer ist gewöhnungsbedürftig und das Esszimmer scheint mir zu eng zu sein.
Ist das euer selbstgezeichneter Entwurf? Lasst euch vom Bauträger mal was vorlegen/anbieten. Wichtig ist die Trennung von privat und öffentlich.
Viel Glück
milkie
Vielen Dank für die Antworten. Der private Bereich ist definitiv noch verbesserungswürdig. Nur weiß ich nicht, wie man es besser gestalten könnte. Für den Schlafbereich brauchen wir nur Platz für das Bett. Man sollte natürlich trotzdem normal lang gehen können. Ich habe Gestaltungsschwierigkeiten wenn ich das Bad und dss Schlafzimmer tauschen würde.
Das mit den Bädern ist der ausdringliche Wunsch meiner Frau. Letztendlich haben die Kids ihr WC und wir unseres. Und wenn mal jemand kommen sollte (was eigentlich viel seltener vorkommt als uns lieb ist), dann wird es "geteilt".
Wir haben uns an einem anderen Entwurf zwecks Orientierung (u.a. wegen den Größen) gehalten. Ansonsten wurde so ziemlich alles neu kreiert/verändert
Das mit den Bädern ist der ausdringliche Wunsch meiner Frau. Letztendlich haben die Kids ihr WC und wir unseres. Und wenn mal jemand kommen sollte (was eigentlich viel seltener vorkommt als uns lieb ist), dann wird es "geteilt".
Wir haben uns an einem anderen Entwurf zwecks Orientierung (u.a. wegen den Größen) gehalten. Ansonsten wurde so ziemlich alles neu kreiert/verändert
L
laien.haft19.02.14 13:12milkie schrieb:
Also ich bin zwar nicht von Fach, aber ein Bungalow kommt i.d.R. teurer als ein gleich großes 1 1/2 geschossiges Haus. Ist euch das bewusst? Ist Bungalow gewollt?... solltest dazu sagen, weshalb ein Bungalow teurer wird!
Uns ist bewusst, dass ein 1 1/2 geschossiges Haus günstiger ist, wenn man die 160m² auf zwei Ebenen aufteilt. Wir möchten allerdings unseren Bereich im EG haben, daher ist eine andere Aufteilung nicht wirklich möglich. Oder habt Ihr andere Ideen? Wir haben bislang jedoch keine bessere Lösung gefunden. Auch der Berater des Bauunternehmens konnte uns keine Ideen liefern. 🙁
Baut ihr mit Keller? Sonst wird der Hauswirtschaftsraum kaum ausreichen. Die ganze Heiztechnik, Strom und Co müssen ja auch irgendwo rein.Nein, es wird ohne Keller gebaut. In der Tat wird es knapp, daher auch der geplante Ausbau des Dachgeschosses. Geplant ist ein Gäste-/Arbeitszimmer, ein Hobbyraum und Abstellfläche für unseren Krempel. Die ersten Jahre werden sich die Jungs ein Zimmer teilen und das zweite Kinderzimmer wird das vorläufige Arbeitszimmer. So ist es angedacht. Da wir für unseren Bungalow ein (versetztes) Pultdach geplant haben, wird somit nur die höhere Nordseite, sprich alles außer Eltern und WZ ausgebaut. Dies wären ca. 70m² Zusatzfläche, die wir in Eigenarbeit ausbauen werden.
Ähnliche Themen