ᐅ Grundrissplanung Stadtvilla 145
Erstellt am: 08.03.23 13:04
I
icarus12308.03.23 13:04Hallo liebe Forummitglieder.
Ich bin schon länger stiller Mitleser und möchte nun die Chance ergreifen, einige Tipps und Ratschläge abzustauben. Wir sind momentan bei der Planung unseres Häuschens und möchten gerne unsere ersten Entwürfe mit euch teilen.
Wir sind generell völlig frei in der Planung. und möchten ein funktionales Heim für 4 Personen.
Wichtig sind uns Kücheninsel, Kamin, Ebenerdige Dusche.
Wir würden uns über Tipps und Anregungen freuen, da wir noch nie ein Haus geplant geschweige denn gebaut haben.
Lieben Dank im Voraus.
Bebauungsplan/Einschränkungen
Größe des Grundstücks 774qm
Hang nein
Grundflächenzahl 0,25
Geschossflächenzahl
Baufenster, Baulinie und -grenze 12 m breit
Randbebauung: nein
Anzahl Stellplatz: 2
Geschossigkeit: 2
Dachform: Walmdach
Stilrichtung: Stadtvilla
Ausrichtung: Gartenterrasse Süd/Westen
Maximale Höhen/Begrenzungen 8,5m First
Knickschutzstreifen beachten inklusive Knick 6,8m
Anforderungen der Bauherren
Stilrichtung, Dachform, Gebäudetyp: mediterran
Stadtvilla 2 Vollgeschosse
Anzahl der Personen, Alter : 4 Personen, 28,32,3,1
Raumbedarf im EG, OG
Büro: Homeoffice teilweise
offene Küche, Kochinsel ja
Anzahl Essplätze 6
Kamin: ja
Garage: ja
Hausentwurf
Von wem stammt die Planung: GU
Was gefällt besonders? Warum?
Was gefällt nicht? Bad OG noch nicht final, Fallleitung ärgerlich.
Persönliches Preislimit fürs Haus, inkl Ausstattung:Festpreis mit Puffer vorhanden
favorisierte Heiztechnik: LWWP
Wenn Ihr verzichten müsst, auf welche Details/Ausbauten
-könnt Ihr verzichten: auf vieles außer unten
-könnt Ihr nicht verzichten: Kamin, Kücheninsel, ebenerdige Dusche
Warum ist der Entwurf so geworden, wie er jetzt ist?
Entwurf durch Planer GU nach Skizze.






Ich bin schon länger stiller Mitleser und möchte nun die Chance ergreifen, einige Tipps und Ratschläge abzustauben. Wir sind momentan bei der Planung unseres Häuschens und möchten gerne unsere ersten Entwürfe mit euch teilen.
Wir sind generell völlig frei in der Planung. und möchten ein funktionales Heim für 4 Personen.
Wichtig sind uns Kücheninsel, Kamin, Ebenerdige Dusche.
Wir würden uns über Tipps und Anregungen freuen, da wir noch nie ein Haus geplant geschweige denn gebaut haben.
Lieben Dank im Voraus.
Bebauungsplan/Einschränkungen
Größe des Grundstücks 774qm
Hang nein
Grundflächenzahl 0,25
Geschossflächenzahl
Baufenster, Baulinie und -grenze 12 m breit
Randbebauung: nein
Anzahl Stellplatz: 2
Geschossigkeit: 2
Dachform: Walmdach
Stilrichtung: Stadtvilla
Ausrichtung: Gartenterrasse Süd/Westen
Maximale Höhen/Begrenzungen 8,5m First
Knickschutzstreifen beachten inklusive Knick 6,8m
Anforderungen der Bauherren
Stilrichtung, Dachform, Gebäudetyp: mediterran
Stadtvilla 2 Vollgeschosse
Anzahl der Personen, Alter : 4 Personen, 28,32,3,1
Raumbedarf im EG, OG
Büro: Homeoffice teilweise
offene Küche, Kochinsel ja
Anzahl Essplätze 6
Kamin: ja
Garage: ja
Hausentwurf
Von wem stammt die Planung: GU
Was gefällt besonders? Warum?
Was gefällt nicht? Bad OG noch nicht final, Fallleitung ärgerlich.
Persönliches Preislimit fürs Haus, inkl Ausstattung:Festpreis mit Puffer vorhanden
favorisierte Heiztechnik: LWWP
Wenn Ihr verzichten müsst, auf welche Details/Ausbauten
-könnt Ihr verzichten: auf vieles außer unten
-könnt Ihr nicht verzichten: Kamin, Kücheninsel, ebenerdige Dusche
Warum ist der Entwurf so geworden, wie er jetzt ist?
Entwurf durch Planer GU nach Skizze.
I
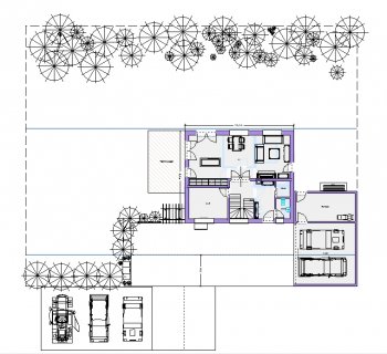
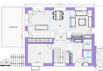
icarus12308.03.23 13:33Die Treppe ist da massiv ungünstig platziert, weil sie oben den großen Flur bedingt.
Ich würde sie weiter planoben schieben, ggf. mit Gäste-WC tauschen.
Oben ist die 5m² Arbeitsrumpelkammer sehr irritierend. Das werdet ihr bereuen, da kaum nutzbar.
Für den Flur unten würde ich schonmal Tanzstunden buchen.
Ich würde sie weiter planoben schieben, ggf. mit Gäste-WC tauschen.
Oben ist die 5m² Arbeitsrumpelkammer sehr irritierend. Das werdet ihr bereuen, da kaum nutzbar.
Für den Flur unten würde ich schonmal Tanzstunden buchen.
I
icarus12308.03.23 13:55Hallo SoL.
Danke für die schnelle Rückmeldung.
Unser Schlafzimmer ist momentan mit ca. 15 qm geplant. Wir wollten dort vllt. noch eine kleine Leichtbauwand einziehen für einen begehbaren Kleiderschrank. Die Arbeitskammer soll eigentlich nur im Bedarfsfall genutzt werden, da spontanes Mobiles Arbeiten für uns beide möglich ist und einer sich zurückziehen könnte. Die ist aber in der Tat recht klein. Alternativen sind uns aber nicht eingefallen(vllt. doch ins Schlafzimmer integrieren). Die Kinderzimmer sollten für uns um die 13 qm behalten.
Der Flur und Treppenbereich mit den Bädern bereitet uns auch Kopfzerbrechen, nur wissen wir nicht, wie wir hier groß was ändern könnten. Der WZ/EZ/Küche Bereich gefällt uns nämlich so sehr gut...
Danke für die schnelle Rückmeldung.
Unser Schlafzimmer ist momentan mit ca. 15 qm geplant. Wir wollten dort vllt. noch eine kleine Leichtbauwand einziehen für einen begehbaren Kleiderschrank. Die Arbeitskammer soll eigentlich nur im Bedarfsfall genutzt werden, da spontanes Mobiles Arbeiten für uns beide möglich ist und einer sich zurückziehen könnte. Die ist aber in der Tat recht klein. Alternativen sind uns aber nicht eingefallen(vllt. doch ins Schlafzimmer integrieren). Die Kinderzimmer sollten für uns um die 13 qm behalten.
Der Flur und Treppenbereich mit den Bädern bereitet uns auch Kopfzerbrechen, nur wissen wir nicht, wie wir hier groß was ändern könnten. Der WZ/EZ/Küche Bereich gefällt uns nämlich so sehr gut...
icarus123 schrieb:
Der WZ/EZ/Küche Bereich gefällt uns nämlich so sehr gut...Wie wollt ihr das denn möblieren, so wie im Entwurf mit dem esstisch neben dem Sofa? Ich würde bei so einem Grundriss ja erwarten, dass der Esstisch in den freien Bereich linksoben kommt. Der ist aber in diesem Entwurf zu klein für einen Esstisch.
I
icarus12308.03.23 14:36Wir wollten den Esstisch eigentlich so belassen. Die Fläche vor der Kücheninsel soll den Kindern zum Spielen dienen, wenn wir kochen und wir fanden es schön den Bereich frei zu lassen, da wir den Laufweg durch die Schiebeterrassentür auf unsere Terrasse wohl recht häufig nutzen werden.
Ähnliche Themen