W
Mein Konto
Hausbau - Ratgeber
Bauherrenhilfe
- Bauherrenhilfe vor Vertragsabschluss
-- Warum einen unabhängigen Baubetreuer?
-- Vertragsgrundlagen
-- Bausumme
-- Zahlungsplan zur Kostenkontrolle
-- Pflichten des Bauherren vor Vertragsabschluss
-- Unterlagen beim Hausbau vor Vertragsabschluss
- Bauherrenhilfe nach Vertragsabschluss
-- Bauantrag bei Behörden
-- Bau-Genehmigungsverfahren bei Baubehörden
-- Bauspezifische Versicherungen
-- Bauzeitenplan
-- Baubeginn - die Letzten Pflichten der Bauherrschaft
- Bauherrenhilfe während der Bauzeit
- Gewährleistungsansprüche
- Bauabnahme
Baufinanzierung
- Baufinanzierung - Allgemeine Fragen
- Kreditarten
- Kredit-Konditionen
- Bausparen
- Staatliche Förderungen
- Verkehrswert
- Haushaltsrechnung und Bonität
Hausbau Planung
- Haustypen
- Hausbau Vorbereitungsarbeiten
- Das Baugrundstück
- Baugrund beim Hausbau
- Baurecht
- Gebäudeschutz
- Erdarbeiten und Wasserhaltung
- Stützmauern
- Einfriedung
- Untergeschoss
- Kanalisation
- Tragende Elemente
- Nichttragende Innenwände
- Fundation / Fundament
- Deckenkonstruktionen
- Dächer
- Kaminanlagen
- Treppen Rampen Leitern
- Dachbeläge und Spengler
- Fenster
- Sonnen und Wetterschutz
- Aussenputze
- Einbauten, Küchen, Türen
- Bodenbeläge und Unterlagsböden
- Parkett
- Gips, Wand, Decke
Haustechnik und Energie
- Heiztechnik
- Lüftung und Klimatechnik
- Sanitärtechnik
- Elektrotechnik
- Erneuerbare Energie
Whirlpools / Jacuzzi
Hausbau Magazin
- Baufinanzierung trotz Krise?
- Das Blockhaus
- Moderne Dämmstoffe im Vergleich
- Erker Vor- und Nachteile
- Glasflächen beim Hausbau
- Günstig ein Haus Bauen
- Mediterraner Hausbaustil
- Mehrgenerationenhaus
- Moderne Architektur
- Gartengestaltung leicht gemacht
- Traditioneller Ziegelbau
- Villa als höchster Traum
- Im Eigenheim Ruhestand geniessen
- Altbau sanieren
- Kauf einer Holzgarage
- Immobilienmakler
- Arbeitshandschuhe für den Winter
- Zuhause verschönern
- Outdoor-Plissees
- Schlafzimmer planen
- Terrassenüberdachung
- Wohngebäudeversicherung
- Zaunarten und Eigenschaften
- Hauseingang gestalten
- Der perfekte Grundriss
- Sparsamer heizen im Altbau
- Einfamilienhaus smart finanzieren
- Planung einer PV-Anlage
- Neues Haus
- Immobilienfinanzierung
- Installation einer Photovoltaikanlage
- Asbest erkennen und entfernen
- Sauna im Fokus - Wellness zuhause
- Erfolgreich vermieten
- Die perfekte Winterbekleidung
- Das Niedrigenergiehaus
- Der April und seine Stürme
- Architektonische Vielfalt
- Ökologisch und nachhaltig bauen
- Das perfekte Schlafzimmer
- Nachhaltige Energieversorgung
- Zukunftsorientiert bauen
- Nachhaltigkeit beim Hausbau
- Tiny Houses
- Wärmepumpen als nachhaltige Heizvariante
- Maßgeschneiderten Kleiderschrank
- Der richtige Baukredit
- Ratgeber für erfolgreichen Hausbau
- Haus als Altersvorsorge
Do-it-yourself Anleitungen
- Verlegeanleitung für Bodenbeläge und Parkett
- Bodenbeläge und Parkett reinigen und pflegen
- Malerarbeiten am Haus
- Garten Tipps
- Umzug und Reinigung

ᐅ Grundrissplanung Stadtvilla 145


Erstellt am: 08.03.23 13:04

icarus123 08.03.23 13:04
Hallo liebe Forummitglieder.

Ich bin schon länger stiller Mitleser und möchte nun die Chance ergreifen, einige Tipps und Ratschläge abzustauben. Wir sind momentan bei der Planung unseres Häuschens und möchten gerne unsere ersten Entwürfe mit euch teilen.

Wir sind generell völlig frei in der Planung. und möchten ein funktionales Heim für 4 Personen.
Wichtig sind uns Kücheninsel, Kamin, Ebenerdige Dusche.

Wir würden uns über Tipps und Anregungen freuen, da wir noch nie ein Haus geplant geschweige denn gebaut haben.

Lieben Dank im Voraus.

Bebauungsplan/Einschränkungen
Größe des Grundstücks 774qm
Hang nein
Grundflächenzahl 0,25
Geschossflächenzahl
Baufenster, Baulinie und -grenze 12 m breit
Randbebauung: nein
Anzahl Stellplatz: 2
Geschossigkeit: 2
: Walmdach
Stilrichtung: Stadtvilla
Ausrichtung: Gartenterrasse Süd/Westen
Maximale Höhen/Begrenzungen 8,5m First
Knickschutzstreifen beachten inklusive Knick 6,8m

Anforderungen der Bauherren
Stilrichtung, Dachform, Gebäudetyp: mediterran
Stadtvilla 2 Vollgeschosse
Anzahl der Personen, Alter : 4 Personen, 28,32,3,1
Raumbedarf im EG, OG
Büro: Homeoffice teilweise
offene , Kochinsel ja
Anzahl Essplätze 6
Kamin: ja
Garage: ja

Hausentwurf
Von wem stammt die Planung: GU
Was gefällt besonders? Warum?
Was gefällt nicht? Bad OG noch nicht final, Fallleitung ärgerlich.
Persönliches Preislimit fürs Haus, inkl Ausstattung:Festpreis mit Puffer vorhanden
favorisierte Heiztechnik: LWWP

Wenn Ihr verzichten müsst, auf welche Details/Ausbauten
-könnt Ihr verzichten: auf vieles außer unten
-könnt Ihr nicht verzichten: Kamin, Kücheninsel, ebenerdige Dusche

Warum ist der Entwurf so geworden, wie er jetzt ist?

Entwurf durch Planer GU nach Skizze.


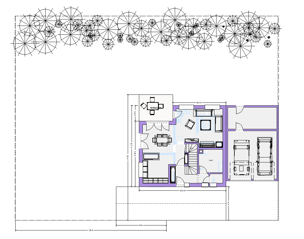
Zweistöckiges Haus mit Garage links, zwei Fensterfronten und zwei Personen vor dem Eingang


Detaillierter Grundriss eines Hauses mit Küche, Wohn-/Essbereich, Diele, WC und Treppen.


Grundriss eines Hauses: Schlafzimmer, zwei Kinderzimmer, Arbeitszimmer, Bad, Flur und Treppe.


Schnitt A-A durch ein zweigeschossiges Haus; Querschnitt mit Treppe, Dachkonstruktion und Höhenangaben.


Grundriss einer Garage mit Abstellraum, Türen und Maßangaben.


Lageplan eines Grundstücks mit Umfassungsmauern, Zufahrten und Bauflächen

icarus123 08.03.23 13:33
Eine Alternative für das Bad hatten wir uns schon überlegt. Wenn man die Treppe spiegelt könnte die Dusche in den Flur reinragen. Ich habe versucht das mal darzustellen, bin darin aber nicht besonders geschickt.


Badezimmer-Grundriss mit Badewanne, Waschbecken und Toilette, Maße in cm.

SoL 08.03.23 13:39
Die Treppe ist da massiv ungünstig platziert, weil sie oben den großen Flur bedingt.
Ich würde sie weiter planoben schieben, ggf. mit Gäste-WC tauschen.
Oben ist die 5m² Arbeitsrumpelkammer sehr irritierend. Das werdet ihr bereuen, da kaum nutzbar.
Für den Flur unten würde ich schonmal Tanzstunden buchen.

icarus123 08.03.23 13:55
Hallo SoL.
Danke für die schnelle Rückmeldung.
Unser Schlafzimmer ist momentan mit ca. 15 qm geplant. Wir wollten dort vllt. noch eine kleine Leichtbauwand einziehen für einen begehbaren Kleiderschrank. Die Arbeitskammer soll eigentlich nur im Bedarfsfall genutzt werden, da spontanes Mobiles Arbeiten für uns beide möglich ist und einer sich zurückziehen könnte. Die ist aber in der Tat recht klein. Alternativen sind uns aber nicht eingefallen(vllt. doch ins Schlafzimmer integrieren). Die Kinderzimmer sollten für uns um die 13 qm behalten.

Der Flur und Treppenbereich mit den Bädern bereitet uns auch Kopfzerbrechen, nur wissen wir nicht, wie wir hier groß was ändern könnten. Der WZ/EZ/Küche Bereich gefällt uns nämlich so sehr gut...

Pacmansh 08.03.23 14:03
icarus123 schrieb:

Der WZ/EZ/Küche Bereich gefällt uns nämlich so sehr gut...

Wie wollt ihr das denn möblieren, so wie im Entwurf mit dem Esstisch neben dem Sofa? Ich würde bei so einem Grundriss ja erwarten, dass der Esstisch in den freien Bereich linksoben kommt. Der ist aber in diesem Entwurf zu klein für einen Esstisch.

icarus123 08.03.23 14:36
Wir wollten den Esstisch eigentlich so belassen. Die Fläche vor der Kücheninsel soll den Kindern zum Spielen dienen, wenn wir kochen und wir fanden es schön den Bereich frei zu lassen, da wir den Laufweg durch die Schiebeterrassentür auf unsere Terrasse wohl recht häufig nutzen werden.
entwurffluresstischkücheninselkaminduschestadtvillatreppeschlafzimmer