Planung unseres Einfamilienhaus - Was meint ihr zum Entwurf?

4,30 Stern(e) 3 Votes
Zuletzt aktualisiert 18.11.2025
Sie befinden sich auf der Seite 6 der Diskussion zum Thema: Planung unseres Einfamilienhaus - Was meint ihr zum Entwurf?
>> Zum 1. Beitrag <<

H

Hausbau Re

Zu der Dusche möchte ich nur sagen das sie eine Abmauerung bekommt die sogar reicht um sich hinzusetzen. Dazu weiss ich nicht warum der duschkopf unter der schräge ein Problem sein soll.da wo der hinkommt müsste eine Höhe von 2.20 locker sein.
 
kbt09

kbt09

Na ja, es ist ja vor allem auch der Weg in die Küche, die Kinderzimmer usw.

Weg in die Küche morgens .. und fast alles davon auch, um jedes Schulkind zur Tür zu bringen. Man kann da aus der Küche auch nicht mal schnell zur Treppe hochrufen, dass nun endlich Frühstückszeit ist usw.

Sofa mit dem Rücken zum Fenster, aber immer schön zum Gang hin.


Grundriss eines Hauses: Garage, Wohnen, Küche, Büro, HWR; grün markierter Bereich um Abstellraum.




-------------------------------------------------------
Z. B. Kinderzimmer 2 aus deiner Schnittzeichnung:

Schnitt durch Dachkonstruktion mit Maßen und statischen Elementen

erkennst du was ich meine? In aller Regel öffnet man eine Tür ja nicht ganz, um dann durchzugehen, sondern geht schon leicht schräg durch .. und da landet man hier an der Dachschräge. Denn das Gelbe ist die Tür zum Kinderzimmer.

-----------------------
OG ... allein die Hochkommsituation:

Grundriss eines Obergeschosses: Eltern-Schlafzimmer, zwei Kinderzimmer, Ankleide, Bad, Flur.


eher eng und dunkel.

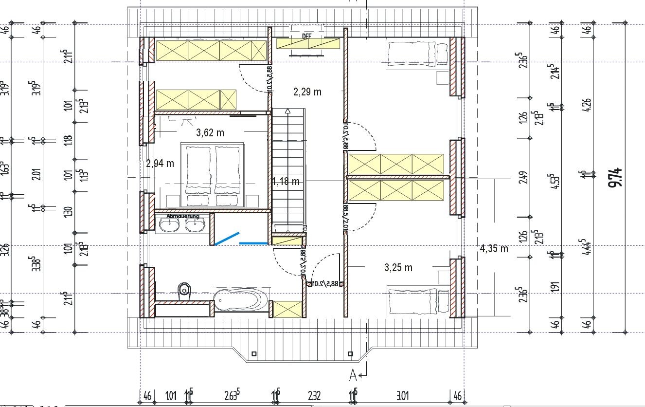
Dafür hier:

Grundriss des Obergeschosses mit Schlafzimmern, Bad, Treppe und Möbeln.


freier Raum, das Südfenster. Planunten im Norden dann der Abstellbereich für Etagen-Staubsauger und -wischer.

Stauraum im Bad für Handtücher, Klopapier etc. und eine richtig große Dusche ohne Dachschräge.

Weiterer zusätzlicher Stauraum im Flur, z. B. Bettwäsche in den Kommoden unter dem Dachfenster. Ok, der Ankleidebereich hat durch die Dachschräge planoben jetzt etwas weniger Stauraum als in deiner letzten Variante, dafür eben zusätzlichen praktisch verteilten Stauraum.

Außerdem überdeckt dein OG 2 Antrittstufen der von unten kommenden Treppe. Das ist leider im Schnitt nicht enthalten, könnte aber die Kopffreiheit auf der Treppe einschränken, insbesondere beim Runtergehen.
 
H

Hausbau Re

Deine Planung ist nicht schlecht nur habe ich ein Problem das unsere tv Möbel die alle 3 zusammen 3,26m in Anspruch nehmen nicht anders hinpassen.
Dazu im Bad gefällt mir nicht das der Waschtisch hinten in der ecke steht und kein Platz für schränke daneben ist,aber Hauptsache eine Riesen dusche die zwar schön ist aber wir auch mit weniger klarkommen.
Das mit dem Süd Doppelflügelfenster gebe ich dir recht das es schöner wäre aber es würde im Kinderzimmer Platz wegnehmen wo die eh nicht groß sind,dazu im Schlafzimmer uns den Platz für eine Kommode wegnehmen für Bettwäsche usw. die wir brauchen.
Dazu brauchen wir 5m in der Ankleide mit 2,34m Höhe, somit wäre die andere ankleide zu klein obwohl die Art mir gefallen hat wie es geplant ist.

Zu der hoch komm Situation kann ich nur sagen mehr gibt der Grundriss mit der unbedingt gewollten Graden Treppe nicht her.
Da wir die Zimmer nicht verkleinern wollen nur um im Flur mehr Platz zu haben verzichten wir auf dieses Fenster.
Das mit deiner antrittsstufe muss ich mit meinem Architekten besprechen was er dazu sagt.
 
M

matte

Letzten Endes musst du das selber wissen, vor allem musst du bzw. ihr auch selber dort wohnen. Aber allein die Zuganssituation zu den Kinderzimmern würde mich dazu bringen, den Grundriss definitiv nicht so haben zu wollen!

Vergleich (Geschätzte Werte)

Grundfläche (Nicht Wohnfläche) Kinderzimmer bei deinem Entwurf ca. 14,8m².
Bei kbt09´s Entwurf ca. 13,3m².

das Sind erst mal ca. 1,5m² weniger, was nicht ohne ist.

Schaut man sich die Pläne jedoch genauer an, werden bei deinem Entwurf ziemlich genau diese 1,5m² schon allein für den Eingang verbraten, um überhaupt in den Raum zu kommen.

Also. 3m², welche man bei kbt´s Entwurf sinnvoller einsetzen kann, um zb. den Flur heller zu machen, oder andere Dinge.

Ich verstehe deine Situation, das man sich iwann festfährt und merkt es nicht einmal. Das ging wohl jedem hier im Forum schon mal so.
Die Kunst ist es aber dann, wenn man schon so ne Steilvorlage von jemanden vorgelegt bekommt wie du von kbt09 (Respekt dafür!), dass man dann wenigstens mal versucht, seinen Grundriss objektiv zu hinterfragen.

Ich war auch schon in der Situation und wir machen seit geschlagenen 6 Monaten nichts anders als zu planen. Jedoch bin ich heilfroh, dass wir nicht gleich die erstbesten Lösungen gewählt haben!

Nur ein gut gemeinter Rat...
 
F

Fenix2k

Ich war auch schon in der Situation und wir machen seit geschlagenen 6 Monaten nichts anders als zu planen. Jedoch bin ich heilfroh, dass wir nicht gleich die erstbesten Lösungen gewählt haben!

Nur ein gut gemeinter Rat...
Volle Zustimmung. Wir haben auch ca. 6 Monate mit der Grundrissplanung verbracht und haben teilweise radikal neu angesetzt. (Küche verlegt, Treppe verschoben, etc...). Und wir sind jetzt froh, dass wir nicht den erstbesten Entwurf genommen haben
 
Jochen104

Jochen104

Als ich deine Pläne gesehen habe dacht ich im ersten Moment => Papierkorb.

Mit den Änderungen von @kbt09 ist aber noch etwas vernünftiges heraus gekommen.

Deine Planung ist nicht schlecht nur habe ich ein Problem das unsere tv Möbel die alle 3 zusammen 3,26m in Anspruch nehmen nicht anders hinpassen.
Wenn ich den Plan von @kbt09 richtig lese, hast du 3,51m dafür Platz. Passt als. Ansonsten lieber neue TV-Möbel kaufen als deshalb das Haus zu vermurksen.

Dazu im Bad gefällt mir nicht das der Waschtisch hinten in der ecke steht und kein Platz für schränke daneben ist,aber Hauptsache eine Riesen dusche die zwar schön ist aber wir auch mit weniger klarkommen.
Dafür hast du dort aber auch natürliches Licht am Waschtisch. Und wenn du dich einmal an so eine riesige Dusche gewöhnt hast, willst du nichts anderes mehr

Dazu brauchen wir 5m in der Ankleide mit 2,34m Höhe, somit wäre die andere ankleide zu klein obwohl die Art mir gefallen hat wie es geplant ist.
Da hilft nur aufräumen. Und einen Teil dort hin verstauen, wo er hin gehört. Der überarbeitete Grundriss bietet dafür auch Möglichkeiten.

Zu der hoch komm Situation kann ich nur sagen mehr gibt der Grundriss mit der unbedingt gewollten Graden Treppe nicht her.
Da wir die Zimmer nicht verkleinern wollen nur um im Flur mehr Platz zu haben verzichten wir auf dieses Fenster.
Dann solltest du diese "unbedingt gewollte gerade Treppe" noch mal überdenken. Wir wollten auch unbedingt eine gerade Treppe. Wir hatten aber auch die Hausgröße dazu. Bevor ich eine schöne gerade Treppe zwischen eine Überbauung und eine schräge Wand, auf die ich gerade Wegs zulaufe, quetsche, lasse ich das lieber.

Das mit deiner antrittsstufe muss ich mit meinem Architekten besprechen was er dazu sagt.
Der wird dir sagen, dass das problemlos geht. Aber ein angenehmes freies Gefühl auf einer Treppe ist anders
 
Zuletzt aktualisiert 18.11.2025
Im Forum Grundrissplanung / Grundstücksplanung gibt es 2536 Themen mit insgesamt 87961 Beiträgen


Ähnliche Themen zu Planung unseres Einfamilienhaus - Was meint ihr zum Entwurf?
Nr.ErgebnisBeiträge
1Entwurf EFH, 2 Vollgeschosse, Satteldach, kein Keller, Doppelgarage - Seite 331
2OG Stadtville optimieren. Fenster Bodentief - Seite 13104
3Grundrissfrage, Treppe, Fenster, Ausrichtung 12
4Einfamilienhaus ~ 150qm für 5 Köpfe - Seite 14168
5Einfamilienhaus, ~160m², Bauhausstil; Erster Entwurf nach unseren Wünschen - Seite 3420
6Neubau Einfamilienhaus ca.220qm, 2. Entwurf Stadtvilla - Seite 459
7Entwurf Grundriss: Planung Erdgeschoss - Seite 227
8 2 Vollgeschosse, Durchgang Garage, Hauswirtschaftsraum unter Treppe 25
9Grundriss erster Entwurf - Meinungen erwünscht - Seite 321
10Hausbau 2.0 - erster Grundriss-Entwurf 155
11Grundriss Einfamilienhaus 110m² - EG + OG - erster Entwurf Einteilung Räume - Seite 16153
12Treppe im Flur, Grundriss steht eigentlich schon :o( - Seite 320
13Umbau Kinderzimmer - Fenster in zwei Fenster aufteilen? 20
14Entwurf - alle Richtungen bei Neubau vom Einfamilienhaus 91
15Grundrissfrage, Garage, Treppe 33
16Einfamilienhaus als Reihenmittelhaus an Hanglage - Entwurf - Seite 318
17Grundriss-Entwurf Stadtvilla mit Doppelgarage - Seite 238
18Haus-Entwurf Einfamilienhaus - Zukünftig als Zweifamilienhaus trennbar - Seite 572
19Dusche auf Podest und Schubfach 13
20Erster Entwurf des Grundrisses für 150m2 Haus 31

Oben