Grundrissentwurf für 220m² Einfamilienhaus

4,40 Stern(e) 7 Votes
Zuletzt aktualisiert 21.11.2025
Sie befinden sich auf der Seite 4 der Diskussion zum Thema: Grundrissentwurf für 220m² Einfamilienhaus
>> Zum 1. Beitrag <<

M

Maria16

Hab das Rohr tatsächlich übersehen- hab immer nach was größerem gesucht. ops:

Unterhaltet euch mal mit eurem Planer. so einfach sehe ich immer noch nicht, wie im bestehenden Baukörper z.b. der Flur breiter werden soll, ohne dass der Platz im Elternbereich oder Kinderzimmer fehlt.

Drück euch jedenfalls die Daumen, dass ihr bald was passendes findet!
 
R

R.Hotzenplotz

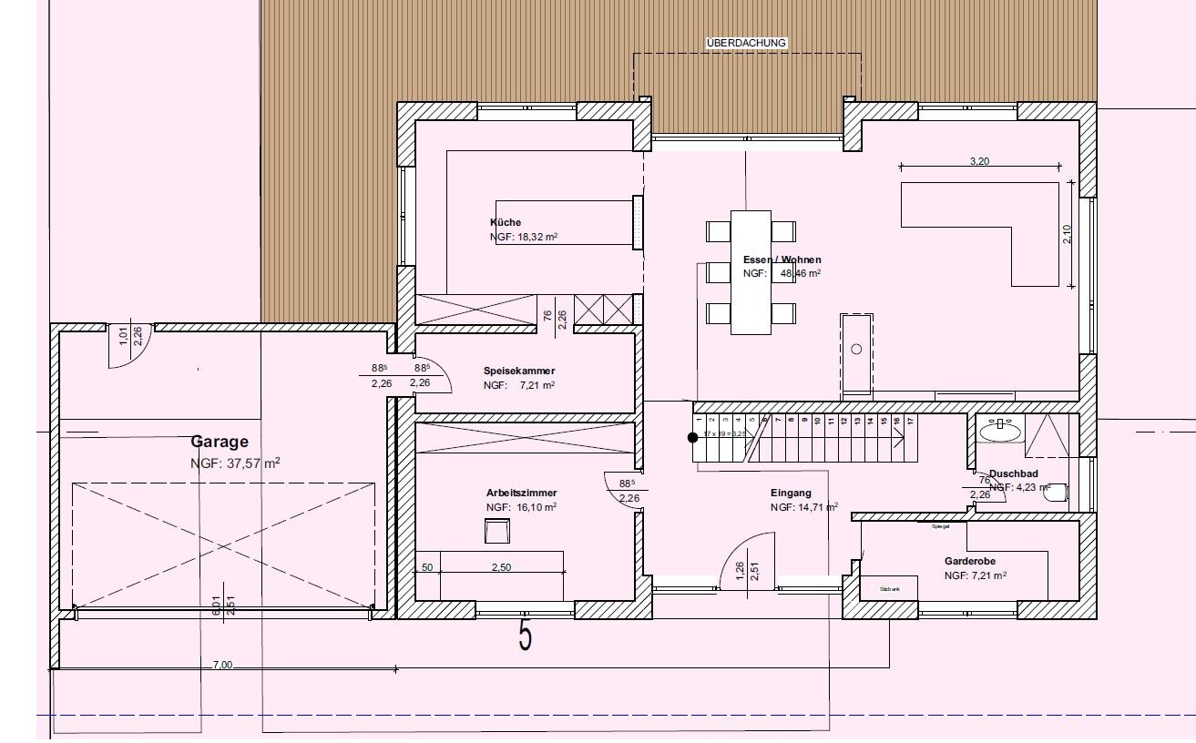
So sah es aus mit Arbeitszimmer zur Straße hin. Küche / Wohnen ist hier logischer angeordnet. Aber wenn man so viel im Arbeitszimmer sitzt, guckt man doch lieber in den Garten als auf die vorbei laufenden Leute (die einem wiederum halt auch rein schauen, wenn man da sitzt.

Grundriss eines Hauses: Garage, Küche, Speisekammer, Ess-/Wohnen, Eingang, Duschbad, Garderobe.
 
11ant

11ant

Irgendwie habe ich das Gefühl, die Treppe ist für viele dieser Punkte ein Problem.
Legte man oben die Treppe auf die andere Flurseite (was ich für das OG günstiger fände), läge sie im EG wohnzimmerseits der Mittelwand. Dieses "Z" im Schnitt ist nicht ohne Tücke, gerade kleine Änderungen werden da schwierig.

- durch eine mögliche andere Treppenlösung könnte das Haus vielleicht entweder etwas kürzer werden
Mir scheint das Haus einen Meter mehr Breite zu "vertragen": einen halben vor und einen halben hinter der Treppe.

Bist Du dem Link aus meinem Beitrag #4 mal gefolgt ? - ich finde die Ähnlichkeiten wirklich sehr geeignet, Inspirationen zu übernehmen.
 
Y

ypg

Find ich besser.
Würde allerdings auch hier die Insel einkürzen und WC/Garderobe etwas anders anordnen, ggf tauschen.
Ich finde auch das alte OG besser, aber den Wäscheraum vom Flur aus begehbar machen.


Gruß, Yvonne
 
R

R.Hotzenplotz

Legte man oben die Treppe auf die andere Flurseite (was ich für das OG günstiger fände), läge sie im EG wohnzimmerseits der Mittelwand. Dieses "Z" im Schnitt ist nicht ohne Tücke, gerade kleine Änderungen werden da schwierig.
Was meinst du mit Z?

Die Treppe oben auf der anderen Flurseite wäre wirklich eine gute Lösung für das OG.

Unten wäre es allerdings glaube ich ein Problem. Wir wollten aufgrund unseres Großbild TV und der Surroundlautsprecher, die noch HINTER der Couch zum stehen kommen sollen, eigentlich 6,40m zwischen der Wand, an der das TV hängt bis zur Wand vor der die Couch steht. Haben in unserer Mietwohnung schon 6,20.m Distanz. Ich bin irgendwie doch sehr verdutzt, dass in einem 220m² Haus nun offenbar nur 5,69m möglich sind. Und ich sehe da auch nicht wirklich viel Spielraum mehr. Die Treppe auf der Wohnzimmerseite würde das Problem verschärfen bzw. Stellmöglichkeiten für Wohnzimmerschränke, -Möbel nehmen. Und ich weiß auch nicht, ob es so toll ist, von der Couch oder dem Esstisch immer auf die Treppe zu schauen.


Mir scheint das Haus einen Meter mehr Breite zu "vertragen": einen halben vor und einen halben hinter der Treppe.
Keine Frage. Aber 220m² ist unser Limit. Da müssen wir finanziell alles geben. Mehr geht nicht. Denn die Ausstattung soll auch wertig sein. Mir bringen 10m² mehr nichts, wenn ich später keine vernünftige Technik oder keinen ordentlichen Bodenbelag mehr bezahlen kann. Und für vier Personen muss das einfach reichen.


Bist Du dem Link aus meinem Beitrag #4 mal gefolgt ? - ich finde die Ähnlichkeiten wirklich sehr geeignet, Inspirationen zu übernehmen.
Das Haus hat ja noch mal fast 100m² mehr Fläche. So ein Wohnzimmer wäre natürlich toll. Aber ich finde für unsere Rahmenbedingungen keinen Ansatz, hier etwas zu übertragen.Mir gefällts gut; keine Frage.


Ich kann jetzt noch mal genaue weitere Maße vom Architekten erfragen und dann muss man weitersehen. Deutliche Vergrößerungen sind aber nicht drin.

Wäre eine halb gewendete Treppe in einer Ecke des Hauses vielleicht eine Lösung, das ein oder andere Problem zu umgehen? Fange aber ungern mit dieser Idee noch mal von vorne an, wenn da nicht sehr gute Erfolgschancen bestehen. Habe aber langsam das Gefühl, so eine geradlinige Treppe ist eher für größere Häuser geeignet als für unseres. Oder liege ich da falsch?


Würdest du in Kauf nehmen, dann nicht privat an deinem Arbeitsplatz zu sitzen? Ich finde das furchtbar, wenn die Leute dir reingucken. In der Küche geht das noch. Aber da wo ich am Schreibtisch sitze? Da sträubt sich mir alles. So logisch dieser Option rein vom Grundriss her auch ist.
 
Zuletzt aktualisiert 21.11.2025
Im Forum Grundrissplanung / Grundstücksplanung gibt es 2535 Themen mit insgesamt 87980 Beiträgen


Ähnliche Themen zu Grundrissentwurf für 220m² Einfamilienhaus
Nr.ErgebnisBeiträge
1Probleme bei der aufteilung Küche, Essen , Wohnen - Seite 216
2Bau einer ca. 190 qm Stadtvilla in Hessen (Wetteraukreis) - Seite 1071
3Grundrissfrage, Treppe, Fenster, Ausrichtung 12
4Esstisch in einer kleinen Küche - Seite 449
5Treppe - Sind die Treppenmaße 2.00x2.00m in Ordnung? - Seite 668
6Grobe Schnitzer im Grundriss? Küche zu klein? - Seite 639
7Stadtvilla mit gerader Treppe, offene moderne Bauweise, 140m² 18
8REH - Grundrissplanung - Küche zu klein 30
9Schrank unter der Treppe oder kleiner Abstellraum - Seite 211
10Grundriss-Änderung Einfamilienhaus 150 m² aufgrund von Treppe 36
11Grundriss EG Wohnen / Küche - Trennwand 19
12Wohin mit der Treppe? Dachausbau Walmdachbungalow - Seite 219
13 2 Vollgeschosse, Durchgang Garage, Hauswirtschaftsraum unter Treppe 25
14Stufen zwischen Küche/Esszimmer und Wohnzimmer 23
15Planung Wohnraum & Küche eines Doppelhaushälfte in Nürnberg 13
16Grundrissplanung Wohnzimmer-Küche 18
17Bestandshaus umbauen - Mehr Platz für Küche und Bad - Ideen? - Seite 220
18Grundriss, Ideen zur räumlichen Trennung innerhalb der Küche 23
19Treppe im Flur, Grundriss steht eigentlich schon :o( 20
20Was ist bei einer Treppe beachten/Unterschie Wendeluing 22

Oben