ᐅ Grundriss Einfamilienhaus 136m² mit Garage & Keller
Erstellt am: 12.10.24 21:50
Hallo zusammen,
wir sind schon seit längerem in der Planungsphase für uns Eigenheim.
Da der Grundriss größtenteils von uns selbst entworfen wurde, sind wir um jede konstruktive Kritik dankbar. Die Pläne wurden von einem Planer übernommen und für gut befunden.
Natürlich interessiert uns auch was euch besonders gut gefällt.
Wichtig / Warum ist der Entwurf so geworden, wie er jetzt ist?
Ich möchte euch darüber informieren wie es zu diesem Grundriss gekommen ist bzw. welche grundlegende Entscheidung wir getroffen haben.
Ich bin unendlich dankbar, dass ich dieses Grundstück (844m²) geerbt habe, was uns den Traum vom Eigenheim ermöglicht.
Aufgrund der hohen Grundstückspreise (Marktwert Grundstück >1Mio €) haben wir uns dazu entschieden, wenn möglich nur die Hälfte des Grundstücks zu bebauen, um in weiter Zukunft einem unseren Kinder die Möglichkeit bieten zu können, auf der zweiten Grundstücksfläche ein Haus zu bauen.
Dennoch wollten wir für unser Haus nicht all zu Viel Kompromisse eingehen, da das zweite Haus ja nicht fix kommen muss (Wer weiss ob die Kids überhaupt mal neben uns wohnen möchten)
--> Unser Haus ist deshalb nach Westen (und Süden) ausgerichtet, sodass ein zweites Haus auch nach Westen ausgerichtet werden könnte.
--> Es handelt sich noch nicht um finale Pläne. Kleinere Änderungen wie z.B. Anordnung & Größe der Fenster, die Badplanung und allgemeine Details sind noch offen. Der Pool wird nicht umgesetzt!
Bebauungsplan/Einschränkungen
Größe des Grundstücks: 844 m²
Hang: nein
Baunutzungszahl: 50
Anzahl Stellplatz: 1x Garage, 2x Freifläche
Geschossigkeit: 2
Dachform: Satteldach 22°
Ausrichtung: West (+Süd)
weitere Vorgaben: Vorgaben seitens der Stadt: Satteldach traufständig zur Straße, Baunutzungszahl: 50, "Stellplätze ins Gebäude integrieren", Baumbestand erhalten
Anforderungen der Bauherren
Stilrichtung, Dachform, Gebäudetyp: Klassisch + modern, Satteldach
Keller, Geschosse: 2 Geschosse + Teilunterkellert
Anzahl der Personen, Alter: 2 Erwachsene + 2 Kinder (1 & 2 Jahre alt)
Raumbedarf im EG: Küche inkl Speisekammer + Essbereich + teilweise abgetrennter Wohnbereich; Gäste-WC; Gang + Garderobe; Büro wäre auch im EG möglich
Raumbedarf im OG: Eltern-Schlafzimmer mit Ankleide, Badezimmer (mit WC), 2x Kinderzimmer, Büro / Gästezimmer
Raumbedarf Keller: Technikraum, Waschraum, Abstellraum, Hobbyraum
Büro: Familiennutzung & Homeoffice (ca. 1x pro Woche)
Schlafgäste pro Jahr: 0 - 3
offene oder geschlossene Architektur: geschlossen, Küche + Kochinsel & Esstisch offen
konservativ oder moderne Bauweise: klassich, modern
Anzahl Essplätze: 8, auf 10 erweiterbar
Kamin: Ja
Musik/Stereowand: nein
Balkon, Dachterrasse: Ja aber kein muss
Garage, Carport: Garage + 1x Abstellplatz für Fahrräder ect.
Nutzgarten, Treibhaus: noch offen
Hausentwurf
Von wem stammt die Planung: Selbstentwurf, vom Planer übernommen
Was gefällt besonders? Warum?: Optik (Gemauerte Balkonbrüstung), praktisch (kurze Wege), Küche + Insel + Esstisch parallel
Was gefällt nicht? Warum?: Nichts, aber noch unsicher bzgl. Fenster Südseitig (größer), Anordnung Wohnwand + Kamin
Preisschätzung laut Architekt/Planer: GU: 850k € Bauunternehmer + Bauleiter: 750k € (inkl. Nebenkosten wie z.B. Pilotierung, Anschlussgebühren, Aushub usw.)
Persönliches Preislimit fürs Haus, inkl. Ausstattung: 800k €
favorisierte Heiztechnik: Photovoltaik und Luftwärmepumpe
Wenn Ihr verzichten müsst, auf welche Details/Ausbauten
-könnt Ihr verzichten: Balkon
-könnt Ihr nicht verzichten: Rest







wir sind schon seit längerem in der Planungsphase für uns Eigenheim.
Da der Grundriss größtenteils von uns selbst entworfen wurde, sind wir um jede konstruktive Kritik dankbar. Die Pläne wurden von einem Planer übernommen und für gut befunden.
Natürlich interessiert uns auch was euch besonders gut gefällt.
Wichtig / Warum ist der Entwurf so geworden, wie er jetzt ist?
Ich möchte euch darüber informieren wie es zu diesem Grundriss gekommen ist bzw. welche grundlegende Entscheidung wir getroffen haben.
Ich bin unendlich dankbar, dass ich dieses Grundstück (844m²) geerbt habe, was uns den Traum vom Eigenheim ermöglicht.
Aufgrund der hohen Grundstückspreise (Marktwert Grundstück >1Mio €) haben wir uns dazu entschieden, wenn möglich nur die Hälfte des Grundstücks zu bebauen, um in weiter Zukunft einem unseren Kinder die Möglichkeit bieten zu können, auf der zweiten Grundstücksfläche ein Haus zu bauen.
Dennoch wollten wir für unser Haus nicht all zu Viel Kompromisse eingehen, da das zweite Haus ja nicht fix kommen muss (Wer weiss ob die Kids überhaupt mal neben uns wohnen möchten)
--> Unser Haus ist deshalb nach Westen (und Süden) ausgerichtet, sodass ein zweites Haus auch nach Westen ausgerichtet werden könnte.
--> Es handelt sich noch nicht um finale Pläne. Kleinere Änderungen wie z.B. Anordnung & Größe der Fenster, die Badplanung und allgemeine Details sind noch offen. Der Pool wird nicht umgesetzt!
Bebauungsplan/Einschränkungen
Größe des Grundstücks: 844 m²
Hang: nein
Baunutzungszahl: 50
Anzahl Stellplatz: 1x Garage, 2x Freifläche
Geschossigkeit: 2
Dachform: Satteldach 22°
Ausrichtung: West (+Süd)
weitere Vorgaben: Vorgaben seitens der Stadt: Satteldach traufständig zur Straße, Baunutzungszahl: 50, "Stellplätze ins Gebäude integrieren", Baumbestand erhalten
Anforderungen der Bauherren
Stilrichtung, Dachform, Gebäudetyp: Klassisch + modern, Satteldach
Keller, Geschosse: 2 Geschosse + Teilunterkellert
Anzahl der Personen, Alter: 2 Erwachsene + 2 Kinder (1 & 2 Jahre alt)
Raumbedarf im EG: Küche inkl Speisekammer + Essbereich + teilweise abgetrennter Wohnbereich; Gäste-WC; Gang + Garderobe; Büro wäre auch im EG möglich
Raumbedarf im OG: Eltern-Schlafzimmer mit Ankleide, Badezimmer (mit WC), 2x Kinderzimmer, Büro / Gästezimmer
Raumbedarf Keller: Technikraum, Waschraum, Abstellraum, Hobbyraum
Büro: Familiennutzung & Homeoffice (ca. 1x pro Woche)
Schlafgäste pro Jahr: 0 - 3
offene oder geschlossene Architektur: geschlossen, Küche + Kochinsel & Esstisch offen
konservativ oder moderne Bauweise: klassich, modern
Anzahl Essplätze: 8, auf 10 erweiterbar
Kamin: Ja
Musik/Stereowand: nein
Balkon, Dachterrasse: Ja aber kein muss
Garage, Carport: Garage + 1x Abstellplatz für Fahrräder ect.
Nutzgarten, Treibhaus: noch offen
Hausentwurf
Von wem stammt die Planung: Selbstentwurf, vom Planer übernommen
Was gefällt besonders? Warum?: Optik (Gemauerte Balkonbrüstung), praktisch (kurze Wege), Küche + Insel + Esstisch parallel
Was gefällt nicht? Warum?: Nichts, aber noch unsicher bzgl. Fenster Südseitig (größer), Anordnung Wohnwand + Kamin
Preisschätzung laut Architekt/Planer: GU: 850k € Bauunternehmer + Bauleiter: 750k € (inkl. Nebenkosten wie z.B. Pilotierung, Anschlussgebühren, Aushub usw.)
Persönliches Preislimit fürs Haus, inkl. Ausstattung: 800k €
favorisierte Heiztechnik: Photovoltaik und Luftwärmepumpe
Wenn Ihr verzichten müsst, auf welche Details/Ausbauten
-könnt Ihr verzichten: Balkon
-könnt Ihr nicht verzichten: Rest
Wo baut Ihr denn Im Ausland?
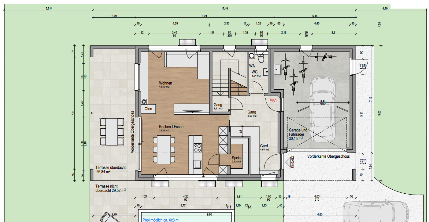
Man darf sich nichts vormachen: es geht um 136qm plus Nutzkeller. Da darf man vom Grundsatz auch nicht meckern, wenn Räume teils nur Breiten haben, die eher in Reihenhäusern vorzufinden sind (Kinderzimmer und Büro mit 2,50/2,60?)
Auch der Allraum strotzt nicht mit Größe, wenn es um den Essbereich und der Küche geht.
Denn da hinkt einiges, was sich im Alltag sehr bemerkbar machen wird: nicht zugängliche Terrassentür und Fenster, sowie eine Küche, die keine erwähnenswerte Arbeitsfläche hat. Die Küche ist dadurch kaum brauchbar, TK im Ofen ist machbar. Vorbereiten einer kalten Vesperplatte ist kaum möglich. Lüften beeinträchtigt die Nutzung, Speisetür darf nicht aufstehen.
Ich gehe mal rückwärts: der Zugang zum Allraum misst unter 80cm, da kommen so max. 75cm Türbreite raus. Das ist Nadelöhr. Wer kann, macht hier eher 130 plus über eine Doppeltür, damit man überhaupt mit Einkäufen den Raum betreten kann.
Die Kammer unter der Treppe wirkt sehr störend und müsste in meinen Augen weg. Die Garderobe macht auf den ersten Blick einen pfiffigen Eindruck, allerdings hemmt die schmale Raumbreite die Aktionsfläche hinter der Eingangstür und vor den Schränken.
Wenn man sich nicht mehr leisten kann, weil das Budget nicht mehr hergibt, dann muss man halt mit den Ansprüchen etwas haushalten, so ist es normal.
Allerdings soll das Haus ja so 800000€ kosten, denn die Dachterrassen, die übergroße Garage und der Keller sind ja eingepreist. Normaler Standard würde so inkl. Keller bei 500000 plus Garage plus Nebenkosten liegen.
Eure Raumwünsche würden sich funktionell eher bei 160qm wiederfinden.
Bevor ich diese teure Dachterrasse/Balkon baue, die ja den Nachteil hat, dass Kinder- und Schlafzimmer ihre Privatsphäre verlieren, würde ich das Geld lieber in schön geschnittene Räume investieren.
Grundsätzlich würde ich dem Waschtisch mehr Tageslicht gönnen und das Haus zusätzlich zum Süden öffnen. Die Auffahrt nimmt sehr viel Gartenfläche, die würde ich etwas weiter nach planrechts setzen.
Ein griffiger Flur von 2,50 x 3 Meter oder ähnlich hat mehr Wert.
Ich würde wohl die Speis weglassen (Gemüseanbau scheint ja eh nicht geplant) und die Küche querlegen, so dass sie genügend Fläche bekommt und der Esstisch etwas von der Terrassentür abgerückt werden kann.
Man darf sich nichts vormachen: es geht um 136qm plus Nutzkeller. Da darf man vom Grundsatz auch nicht meckern, wenn Räume teils nur Breiten haben, die eher in Reihenhäusern vorzufinden sind (Kinderzimmer und Büro mit 2,50/2,60?)
Auch der Allraum strotzt nicht mit Größe, wenn es um den Essbereich und der Küche geht.
Denn da hinkt einiges, was sich im Alltag sehr bemerkbar machen wird: nicht zugängliche Terrassentür und Fenster, sowie eine Küche, die keine erwähnenswerte Arbeitsfläche hat. Die Küche ist dadurch kaum brauchbar, TK im Ofen ist machbar. Vorbereiten einer kalten Vesperplatte ist kaum möglich. Lüften beeinträchtigt die Nutzung, Speisetür darf nicht aufstehen.
Ich gehe mal rückwärts: der Zugang zum Allraum misst unter 80cm, da kommen so max. 75cm Türbreite raus. Das ist Nadelöhr. Wer kann, macht hier eher 130 plus über eine Doppeltür, damit man überhaupt mit Einkäufen den Raum betreten kann.
Die Kammer unter der Treppe wirkt sehr störend und müsste in meinen Augen weg. Die Garderobe macht auf den ersten Blick einen pfiffigen Eindruck, allerdings hemmt die schmale Raumbreite die Aktionsfläche hinter der Eingangstür und vor den Schränken.
Wenn man sich nicht mehr leisten kann, weil das Budget nicht mehr hergibt, dann muss man halt mit den Ansprüchen etwas haushalten, so ist es normal.
Allerdings soll das Haus ja so 800000€ kosten, denn die Dachterrassen, die übergroße Garage und der Keller sind ja eingepreist. Normaler Standard würde so inkl. Keller bei 500000 plus Garage plus Nebenkosten liegen.
Eure Raumwünsche würden sich funktionell eher bei 160qm wiederfinden.
Bevor ich diese teure Dachterrasse/Balkon baue, die ja den Nachteil hat, dass Kinder- und Schlafzimmer ihre Privatsphäre verlieren, würde ich das Geld lieber in schön geschnittene Räume investieren.
Grundsätzlich würde ich dem Waschtisch mehr Tageslicht gönnen und das Haus zusätzlich zum Süden öffnen. Die Auffahrt nimmt sehr viel Gartenfläche, die würde ich etwas weiter nach planrechts setzen.
Ein griffiger Flur von 2,50 x 3 Meter oder ähnlich hat mehr Wert.
Ich würde wohl die Speis weglassen (Gemüseanbau scheint ja eh nicht geplant) und die Küche querlegen, so dass sie genügend Fläche bekommt und der Esstisch etwas von der Terrassentür abgerückt werden kann.
Danke für dein umfangreiches Feedback!
Leider sind die Baukosten hier relativ hoch. Die angegeben Baukosten beziehen sich auf normalen Baustandard – kein Luxus. Ein weiterer GU bei dem wir waren lag Preislich bei 950k € ohne Balkon, gehobener Standard.
Beim Erstellen der Pläne haben wir versucht mit möglichst wenig m² auszukommen. Größer skalieren geht immer, ist vermutlich hier und da empfehlenswert – da gebe ich dir Recht.
Der Rest ist Feintuning. Hier sind noch Abstimmungen mit Ofenbauer & Küchenbauer notwendig
Vielen Dank nochmal und LG

- Bauort ist Vorarlberg / Österreich
- Anbei nochmal den EG Plan
Leider sind die Baukosten hier relativ hoch. Die angegeben Baukosten beziehen sich auf normalen Baustandard – kein Luxus. Ein weiterer GU bei dem wir waren lag Preislich bei 950k € ohne Balkon, gehobener Standard.
Beim Erstellen der Pläne haben wir versucht mit möglichst wenig m² auszukommen. Größer skalieren geht immer, ist vermutlich hier und da empfehlenswert – da gebe ich dir Recht.
- Kinderzimmer ca. 14 m² finde ich aber o.K.
- Büro ist für uns auch ausreichend groß – man sitzt ja nur am PC
- Allraum könnte unserer Meinung auch ein bisschen größer ausfallen
- Zugang zum Allraum werden wir nach Möglichkeit etwas verbreitern. Hier ist eine Schiebetür vorgesehen wodurch die gesamte Breite nutzbar ist
- Küche: Hier ist in der „Schrankwand“ eine Nische als zusätzliche Arbeitsfläche vorgesehen. Insel könnte auch verlängert werden, was den Raum jedoch kleiner machen würde
- Kammer unter Treppe: Eventuell sollte die Türe hier in die andere Richtung gehen
- Mehr Tageslicht Waschtisch: Genau das haben wir uns auch gedacht. Da gibt es sicher eine bessere Lösung. Auch mit einem großen anstatt kleinen Fenster
- Gang / Garderobe: Eventuell gibt es hier eine bessere Anordnung der Möbel oder Speis. Grundsätzlich ist der Raum ja groß genug
- Auffahrt: Mit der Garage kann nicht weiter nach rechts gerückt werden (Abstandsnachsicht). Die Zufahrt ist jetzt in Verlängerung zur Garage – müsste dann außermittig verschoben werden.
Der Rest ist Feintuning. Hier sind noch Abstimmungen mit Ofenbauer & Küchenbauer notwendig
Vielen Dank nochmal und LG
- Kammer unter der Treppe im EG ist doch gar keine Kammer ... das ist doch der Zugang zur Treppe in den Keller - oder?
- Speisekammer sollte der Zugang ausserhalb der Küche sein, sonst bringt eine Arbeitsfläche wenig in der Hochschrankwand. Und so ein "möbelversteckter" Speisekammerndurchgang ist neben Platzverschwendung auch teuer.
Sofia__ schrieb:
Zugang zum Allraum werden wir nach Möglichkeit etwas verbreitern. Hier ist eine Schiebetür vorgesehen wodurch die gesamte Breite nutzbar istDas täuscht oft, eine Schiebetür muss auch etwas in den Durchgangsrahmen reinstehen, damit man etwas zum Greifen hat um sie wieder zuzuziehen. Und eine Zarge wird ebenfalls gebraucht.- Wohnbereich ... ihr solltet mal ein wenig schieben, evtl. an den Fenstern noch etwas ändern. Ich würde kein TV-Möbel als Trennung zwischen den Räumen stellen, sondern den Bereich so offen wie möglich halten. Also, Sofa als L mit der langen Seite planrechts im Wohnraum, und planoben kurze Seite, TV dann eher in die Ecke planoben links.
- Der Eingang liegt jetzt zwar schön unter dem Dach, würde trotzdem überlegen, ihn in den Süden eher links im Flur zu legen, den Durchgang in die Garage zu sparen. Dann kann die gesamte rechte Seite im Flur Garderoben- und sonstigen Stauraum (Etagenstaubsauger, Wischer usw.) bieten.
- Die Speisekammer würde ich eher auflösen, ihr habt einen Keller. Das kommt dann der Küche zugute. Vielleicht kann man dann doch eine schöne Lösung finden, den Eingang rechts zu lassen .. unter dem Garagenvorbau.
kbt09 schrieb:
Kammer unter der Treppe im EG ist doch gar keine Kammer ... das ist doch der Zugang zur Treppe in den Keller - oder?Da hast Du recht. Der Vorflur der Treppe ist wohl dem geschuldet, dass die Kellertreppe so von der Diele zu erreichen ist. Ich kenne alte Häuser, da hing dann auch noch der Putzlappen und Besen an der Wand griffbereit. Problem ist hierbei, dass man sich eine Ecke/Drehung vor der Kelletreppe einbaut, die es schwer macht, mal eine Leiter oder anderes sperriges Gut nach oben und unten zu tragen.Sofia__ schrieb:
Leider sind die Baukosten hier relativ hoch. Die angegeben Baukosten beziehen sich auf normalen Baustandard – kein Luxus.Aber genau dann lässt man Preistreiber in der Planung außen vor: die überdachten Dachterrassen kosten ja im Verhältnis zu Wohnraum viel zu viel. Da muss das EG nach oben hin zusätzlich gedämmt werden und der Boden der Terrasse wiederum gegen Feuchtigkeit. Dann kommen überall zusätzliche Ecken dazu, die Gründe für Baumängel sein können.Und wer soll die denn überhaupt nutzen, wenn doch Garten da ist?
Sofia__ schrieb:
Küche: Hier ist in der „Schrankwand“ eine Nische als zusätzliche Arbeitsfläche vorgesehen.Eine Nische? Wer arbeitet in einer Nische? In einer Nische stellt man etwas ab. Man arbeitet auch nicht in einer Speis: eine Speis ist ein Abstellraum, nicht mehr und weniger.Die Küche ist leider nicht durchdacht und zu klein. Mal mit zwei Backblechen zu hantieren, abzustellen und nebenher Kekse zu produzieren, sehe ich hier nicht. Aber das habe ich schon gesagt. Bei einem Einfamilienhaus erwarte ich persönlich mindestens einen Meter vollständige und freie Arbeitsfläche.
Sofia__ schrieb:
Insel könnte auch verlängert werden, was den Raum jedoch kleiner machen würdeEher weniger. Der Raum wird übervoll. Der Ansatz ist nicht durchdacht.Sofia__ schrieb:
Grundsätzlich ist der Raum ja groß genugGrundsätzlich habt ihr dem Chillbereich recht viele QM zugedacht. Eine Trennung durch den Kamin und blockierende Möbel verhindern die Vergrößerung des Esstisches für 10 Personen. 40qm sind nicht wenig, aber sie sind hier völlig falsch aufgeteilt.Sofia__ schrieb:
Uns ist in erster Linie wichtig ob etwas gegen das Gesamtkonzept spricht.
Der Rest ist Feintuning.Ich sehe aus dem Grund (Küche, Flur) überhaupt noch gar nicht die Phase Feintuning. Die Treppe ist sehr dominant, und ob sie dort aufgehoben ist, wo sie jetzt ist, ob der Allraum inklusive Speisfläche ausreichend ist, sehe ich auch nicht. Ggf sind die Hausmaße vom Grundsatz zu überdenken.
Sofia__ schrieb:
Hier sind noch Abstimmungen mit Ofenbauer & Küchenbauer notwendigDie Phase der Inneneinrichtung-Gewerke sehe ich auch noch nicht.kbt09 schrieb:
Der Eingang liegt jetzt zwar schön unter dem Dach, würde trotzdem überlegen, ihn in den Süden eher links im Flur zu legen, den Durchgang in die Garage zu sparen. Dann kann die gesamte rechte Seite im Flur Garderoben- und sonstigen Stauraum (Etagenstaubsauger, Wischer usw.) bieten.Hab ich heute morgen auch gedacht: den Flur vom Süden erreichbar, planrechts die Garderobe usw, dann hat auch die Küche mehr Platz. Aber im Prinzip schmerzen dennoch so einige Sachen, sodass hier zwar von einem Anfangsentwurf ausgegangen werden kann, der aber halt nur der Anfang einer Planungsstrecke sein sollte. ggf auch nur deshalb, um alles neu zu überdenken.Ähnliche Themen