ᐅ Einfamilienhaus mit 135 qm Wohnfläche plus KG mit integrierter Garage/Büro
Erstellt am: 24.10.20 01:53
D
DaniMartinezD
DaniMartinez24.10.20 01:53Hallo in die Runde ,
wir stehen auch in den Planungen und würden euch gerne unseren Grundriss vorstellen:
Bebauungsplan/Einschränkungen
Größe des Grundstücks: 557 qm
Hang: Ja (Nord-Süd-Gefälle ca. 3,20m)
Grundflächenzahl: 0,4
Geschossflächenzahl: 0,5
Baufenster, Baulinie und -grenze: 3 Meter zum Nachbargrundstück
Randbebauung:
Anzahl Stellplatz: 1 Garage, 1 Stellplatz in der Einfahrt
Geschossigkeit: 1,5 Geschosse
Dachform: Sattel-, Walm-, Krüppelwalmdach
Stilrichtung: eher modern
Ausrichtung: südwestlich
Maximale Höhen/Begrenzungen: TH 6,20m , FH 11m
weitere Vorgaben: Stadtvilla nicht erlaubt
Anforderungen der Bauherren
Stilrichtung, Dachform, Gebäudetyp: Satteldach
Keller, Geschosse: 1,5 Geschosse + Keller
Anzahl der Personen, Alter: aktuell 2 Erwachsene (37+35) , 1Kind (3 jahre) und demnächst noch ein weiteres
Raumbedarf im EG, OG: zusammen knapp 135 qm
Büro: Familiennutzung oder Homeoffice? Homeoffice
Schlafgäste pro Jahr: wenige
offene oder geschlossene Architektur: offen
konservativ oder moderne Bauweise: modern
offene Küche, Kochinsel: offene Küche, Kochinsel kein muss
Anzahl Essplätze: 6-8
Kamin: nein
Musik/Stereowand:
Balkon, Dachterrasse: Balkon auf dem Auszug der Garage
Garage, Carport: Garage im keller integriert
Nutzgarten, Treibhaus: nein
weitere Wünsche/Besonderheiten/Tagesablauf, gern auch Begründungen, warum dieses oder das nicht sein soll
Hausentwurf
Von wem stammt die Planung: befreundete Innenarchitektin
-Planer eines Bauunternehmens: nein
-Architekt: nein
-Do-it-Yourself: nein
Was gefällt besonders? Warum?: der offene Wohn-Ess-Bereich mit südlicher Ausrichtung und die Sitzfensterbank im Essbereich sowie das Büro mit Tageslicht
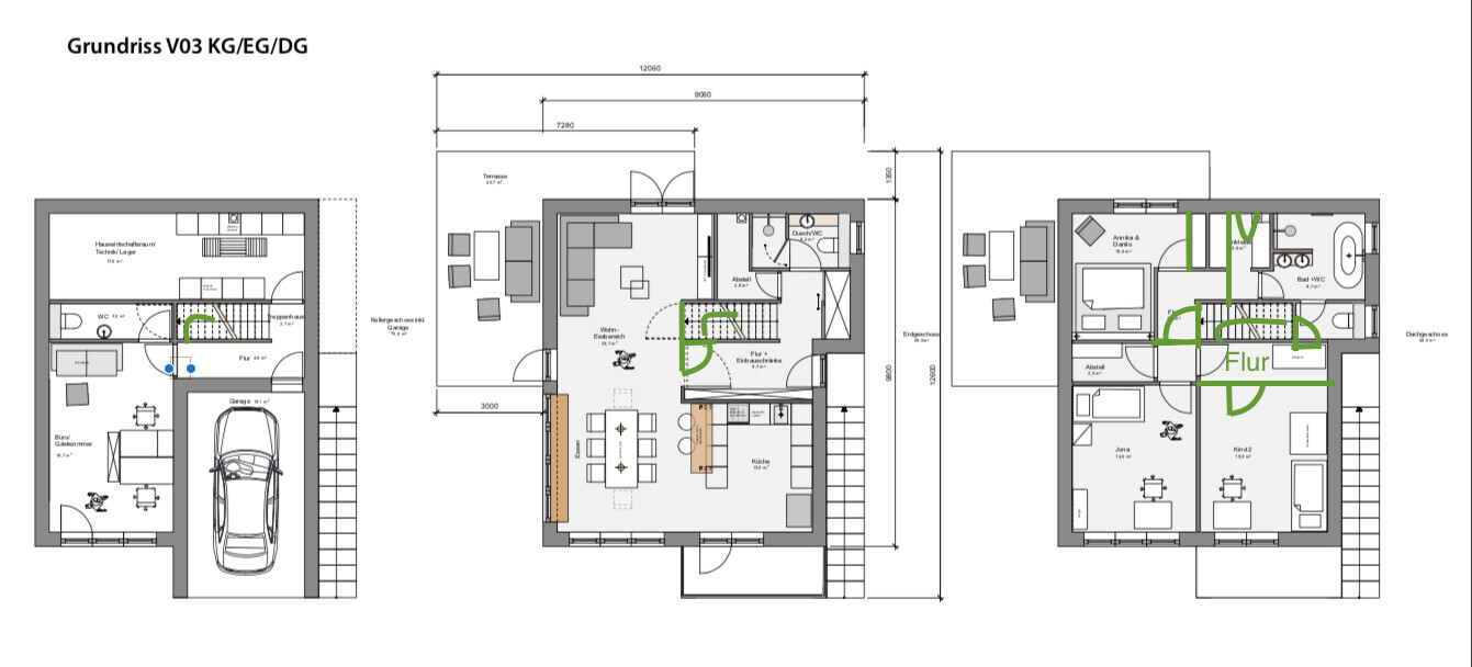
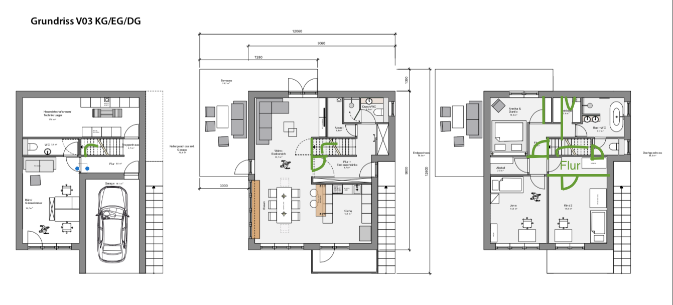
Was gefällt nicht? Warum? Die Treppe haben wir ändern lassen, da diese nicht passte (zu klein) ...habe den neuen Entwurf mit den grünen Linien eingezeichnet, da er noch nicht vorliegt
Preisschätzung lt Architekt/Planer: laut Planungsbüro: ca. 386.000€ -> ohne Grundstück (78.000€), Außenanlagen und Küche (Kostenaufstellung könnte ich einstellen, wenn erlaubt?)
Persönliches Preislimit fürs Haus, inkl Ausstattung: ohne Nebenkosten und Grundstück: 400.000 €
favorisierte Heiztechnik: Geothermie (ist vorgegeben durch die Gemeinde), Photovoltaikanlage wäre wünschenswert
Wenn Ihr verzichten müsst, auf welche Details/Ausbauten
-könnt Ihr verzichten: Balkon über der Garage, Garage im Keller
-könnt Ihr nicht verzichten: Büro
Warum ist der Entwurf so geworden, wie er jetzt ist? ZB
Wir wollen möglichst Platzeffizient bauen und haben versucht Flurflächen möglichst gering zu halten. Aufgrund der Hanglage gen Süden mit 3,20m Gefälle haben wir uns für einen Keller mit intergrierter Garage und Büro entschlossen, da meine Frau selbstständig ist und von zu Hause aus arbeitet.
Was ist die wichtigste/grundlegende Frage zum Grundriss in 130 Zeichen zusammengefasst?
Wie würdet Ihr den Hang bearbeiten? Garage mit ins KG oder doch lieber Carport neben dem Haus? Und wie gefällt die Raumaufteilung?
Leider konnte ich die vorhandenen pdf.Dateien nicht einfügen! Daher erstmal nur diese schlechteren Bildschirmfotos!! Wenn mir jemand sagt wie ich pdf.Dateien einfügen kann, wäre ich dankbar!!




wir stehen auch in den Planungen und würden euch gerne unseren Grundriss vorstellen:
Bebauungsplan/Einschränkungen
Größe des Grundstücks: 557 qm
Hang: Ja (Nord-Süd-Gefälle ca. 3,20m)
Grundflächenzahl: 0,4
Geschossflächenzahl: 0,5
Baufenster, Baulinie und -grenze: 3 Meter zum Nachbargrundstück
Randbebauung:
Anzahl Stellplatz: 1 Garage, 1 Stellplatz in der Einfahrt
Geschossigkeit: 1,5 Geschosse
Dachform: Sattel-, Walm-, Krüppelwalmdach
Stilrichtung: eher modern
Ausrichtung: südwestlich
Maximale Höhen/Begrenzungen: TH 6,20m , FH 11m
weitere Vorgaben: Stadtvilla nicht erlaubt
Anforderungen der Bauherren
Stilrichtung, Dachform, Gebäudetyp: Satteldach
Keller, Geschosse: 1,5 Geschosse + Keller
Anzahl der Personen, Alter: aktuell 2 Erwachsene (37+35) , 1Kind (3 jahre) und demnächst noch ein weiteres
Raumbedarf im EG, OG: zusammen knapp 135 qm
Büro: Familiennutzung oder Homeoffice? Homeoffice
Schlafgäste pro Jahr: wenige
offene oder geschlossene Architektur: offen
konservativ oder moderne Bauweise: modern
offene Küche, Kochinsel: offene Küche, Kochinsel kein muss
Anzahl Essplätze: 6-8
Kamin: nein
Musik/Stereowand:
Balkon, Dachterrasse: Balkon auf dem Auszug der Garage
Garage, Carport: Garage im keller integriert
Nutzgarten, Treibhaus: nein
weitere Wünsche/Besonderheiten/Tagesablauf, gern auch Begründungen, warum dieses oder das nicht sein soll
Hausentwurf
Von wem stammt die Planung: befreundete Innenarchitektin
-Planer eines Bauunternehmens: nein
-Architekt: nein
-Do-it-Yourself: nein
Was gefällt besonders? Warum?: der offene Wohn-Ess-Bereich mit südlicher Ausrichtung und die Sitzfensterbank im Essbereich sowie das Büro mit Tageslicht
Was gefällt nicht? Warum? Die Treppe haben wir ändern lassen, da diese nicht passte (zu klein) ...habe den neuen Entwurf mit den grünen Linien eingezeichnet, da er noch nicht vorliegt
Preisschätzung lt Architekt/Planer: laut Planungsbüro: ca. 386.000€ -> ohne Grundstück (78.000€), Außenanlagen und Küche (Kostenaufstellung könnte ich einstellen, wenn erlaubt?)
Persönliches Preislimit fürs Haus, inkl Ausstattung: ohne Nebenkosten und Grundstück: 400.000 €
favorisierte Heiztechnik: Geothermie (ist vorgegeben durch die Gemeinde), Photovoltaikanlage wäre wünschenswert
Wenn Ihr verzichten müsst, auf welche Details/Ausbauten
-könnt Ihr verzichten: Balkon über der Garage, Garage im Keller
-könnt Ihr nicht verzichten: Büro
Warum ist der Entwurf so geworden, wie er jetzt ist? ZB
Wir wollen möglichst Platzeffizient bauen und haben versucht Flurflächen möglichst gering zu halten. Aufgrund der Hanglage gen Süden mit 3,20m Gefälle haben wir uns für einen Keller mit intergrierter Garage und Büro entschlossen, da meine Frau selbstständig ist und von zu Hause aus arbeitet.
Was ist die wichtigste/grundlegende Frage zum Grundriss in 130 Zeichen zusammengefasst?
Wie würdet Ihr den Hang bearbeiten? Garage mit ins KG oder doch lieber Carport neben dem Haus? Und wie gefällt die Raumaufteilung?
Leider konnte ich die vorhandenen pdf.Dateien nicht einfügen! Daher erstmal nur diese schlechteren Bildschirmfotos!! Wenn mir jemand sagt wie ich pdf.Dateien einfügen kann, wäre ich dankbar!!
Ein paar Maße mehr währen nicht schlecht.
Garage raus und das UG mitgenutzt. Ihr plant ernsthaft ein Schlafzimmer bei dem einer von euch immer klettern muß? Das alleine währe ein Grund für eine Neuplanung.
Küche gehört zur Terrasse. Es ist praktischer. Man plant auch innen nicht grundlos den Essplatz in Küchennähe
Garage raus und das UG mitgenutzt. Ihr plant ernsthaft ein Schlafzimmer bei dem einer von euch immer klettern muß? Das alleine währe ein Grund für eine Neuplanung.
Küche gehört zur Terrasse. Es ist praktischer. Man plant auch innen nicht grundlos den Essplatz in Küchennähe
haydee schrieb:
Ein paar Maße mehr währen nicht schlecht.
Garage raus und das UG mitgenutzt. Ihr plant ernsthaft ein Schlafzimmer bei dem einer von euch immer klettern muß? Das alleine währe ein Grund für eine Neuplanung.
Küche gehört zur Terrasse. Es ist praktischer. Man plant auch innen nicht grundlos den Essplatz in KüchennäheDas Schlafzimmer ist der Brüller. Geht gar nicht! Sowas findet mein 8jähriger toll als Betthölle386k€? Was ist da alles drin? Setzt mal bitte Die Kostenaufstellung rein.
Ich komme ehrlich gesagt mit den Grünen Linien nicht so ganz klar. Hast du oben zum WC von beiden Seiten eine Tür geplant? Das würde ich lassen und stattdessen ein kleines Waschbecken reinnehmen. Ansonsten finde ich hier das separate WC gut gelöst.
Schlafzimmer finde ich auch nicht gut. Zudem würde ich auf die ankleide verzichten. Je weniger Platz, desto schwieriger werden solche kleinen Zusatzräume. Ggf. auch die Abstellkammer oben raus, wenn ihr ohnehin einen Keller habt.
Schlafzimmer finde ich auch nicht gut. Zudem würde ich auf die ankleide verzichten. Je weniger Platz, desto schwieriger werden solche kleinen Zusatzräume. Ggf. auch die Abstellkammer oben raus, wenn ihr ohnehin einen Keller habt.
und noch was... und spätestens da würde ich mich von der Innenarchitektin trennen.
Keine der Innenwände ist ne tragende Wand. Damit funktioniert die Küche mit der Spüle samt Entwässerung nicht Und alles wird nochmal kleiner und enger, wenn man das anpasst. Vieles geht nicht. Waschbecken zu klein, Installationsebenen nicht bedacht. Kein Schornstein, keinen Platz für die Verrohung der Kontrollierte-Wohnraumlüftung, falls gewünscht. Wenn man das korrigiert, werden die Räume samt Türenaufschlägen nicht mehr funktionieren. Das zieht sich so durch, korrigierst Du eins funktioniert das andere nicht menr.
Keine der Innenwände ist ne tragende Wand. Damit funktioniert die Küche mit der Spüle samt Entwässerung nicht Und alles wird nochmal kleiner und enger, wenn man das anpasst. Vieles geht nicht. Waschbecken zu klein, Installationsebenen nicht bedacht. Kein Schornstein, keinen Platz für die Verrohung der Kontrollierte-Wohnraumlüftung, falls gewünscht. Wenn man das korrigiert, werden die Räume samt Türenaufschlägen nicht mehr funktionieren. Das zieht sich so durch, korrigierst Du eins funktioniert das andere nicht menr.
Ähnliche Themen