Hallo zusammen, wir planen den Bau einer Stadtvilla mit zwei Vollgeschossen und möchten gerne unseren aktuellen Entwurf einstellen.
Im Moment ist der Entwurf noch etwas groß, sprich soll noch etwas verkleinert werden.
Let's discuss!
Bebauungsplan/Einschränkungen
Größe des Grundstücks: 910qm
Hang: Ja
weitere Vorgaben: Bau nach §34 Baugesetzbuch. 2 Vollgeschosse und Zeltdach stehen unmittelbar in Nachbarschaft.
Anforderungen der Bauherren
Stilrichtung, Dachform, Gebäudetyp: modern, Zelt- oder Walmdach, Stadtvilla
Keller, Geschosse kein Keller, 2 Vollgeschosse
Anzahl der Personen, Alter 2 Erwachsene (geplant 2 Kinder), 30
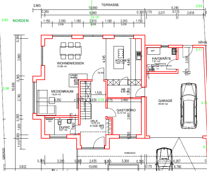
Raumbedarf im EG, OG 87 qm pro Geschosse
Büro: Familiennutzung oder Homeoffice? Ja, jeweils 2 Tage Homeoffice pro Woche.
Schlafgäste pro Jahr eher selten
offene oder geschlossene Architektur offen
konservativ oder moderne Bauweise modern
offene Küche, Kochinsel Offene Küche mit Insel; insgesamt offener Wohn-Essbereich
Anzahl Essplätze 6
Kamin Ja, aber klein.
Musik/Stereowand Nein.
Balkon, Dachterrasse Nein.
Garage, Carport Doppelgarage mit Technikraum.
Nutzgarten, Treibhaus Nein.
weitere Wünsche/Besonderheiten/Tagesablauf:
Direkter Zugang von Garage in Küche über "Speisekammer".
Grenzbebauung der Garage ist mit Nachbar geklärt.
Hausentwurf
Von wem stammt die Planung:
-Architekt
Was gefällt besonders? offener Wohn-Essbereich, lange "Küchenfront", Hauswirtschaftsraum im Obergeschoss, Luftraum, Vorbau.
Was gefällt nicht? Warum? Die Größe soll generell noch geschrumpft werden, voraussichtlich von aktuell 183qm auf 175qm.
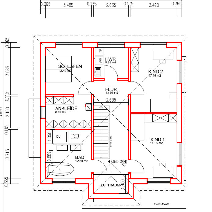
Das Obergeschoss gefällt uns noch nicht ganz so gut, das Bad ist bei der Hausgröße vergleichsweise klein, die Kinderzimmer dafür relativ groß.
Auch sind wir am überlegen, das Elternzimmer und Bad näher aneinander zu legen.
Sobald wir die Zeit gefunden haben, werden wir hierzu noch eine eigene Idee hochladen.
Preisschätzung lt Architekt/Planer: steht noch aus, wir kalkulieren mit 550 TEUR, ohne Baunebenkosten und Garage.
Persönliches Preislimit fürs Haus, inkl Ausstattung: 675 TEUR.
favorisierte Heiztechnik: Solewärmepumpe.
Wenn Ihr verzichten müsst, auf welche Details/Ausbauten
-könnt Ihr verzichten: Luftraum, Büro unten kleiner.
-könnt Ihr nicht verzichten: Büro unten, Hauswirtschaftsraum oben, Gästebad EG mit Dusche, Speisekammer.
Warum ist der Entwurf so geworden, wie er jetzt ist? ZB
Entwurf vom Architekten nach unseren groben Vorgaben (Raumprogramm und ungefähre Größen). In der Form und Ausgestaltung war er frei.
Entsprechende/Welche Wünsche wurden vom Architekten umgesetzt? Grundsätzlich einmal alle, es handelt sich noch um den ersten Rohentwurf.
Themen wie Platzierung der Fenster und Türen waren (noch) nicht Thema.
Was ist die wichtigste/grundlegende Frage zum Grundriss in 130 Zeichen zusammengefasst?
An welcher Stelle kann man nach eurer Meinung noch Wohnfläche sinnvoll (!) sparen?
An welcher Stelle sind Räume zu eng/sperrig? Würdet ihr das Obergeschoss anders aufteilen?


Im Moment ist der Entwurf noch etwas groß, sprich soll noch etwas verkleinert werden.
Let's discuss!
Bebauungsplan/Einschränkungen
Größe des Grundstücks: 910qm
Hang: Ja
weitere Vorgaben: Bau nach §34 Baugesetzbuch. 2 Vollgeschosse und Zeltdach stehen unmittelbar in Nachbarschaft.
Anforderungen der Bauherren
Stilrichtung, Dachform, Gebäudetyp: modern, Zelt- oder Walmdach, Stadtvilla
Keller, Geschosse kein Keller, 2 Vollgeschosse
Anzahl der Personen, Alter 2 Erwachsene (geplant 2 Kinder), 30
Raumbedarf im EG, OG 87 qm pro Geschosse
Büro: Familiennutzung oder Homeoffice? Ja, jeweils 2 Tage Homeoffice pro Woche.
Schlafgäste pro Jahr eher selten
offene oder geschlossene Architektur offen
konservativ oder moderne Bauweise modern
offene Küche, Kochinsel Offene Küche mit Insel; insgesamt offener Wohn-Essbereich
Anzahl Essplätze 6
Kamin Ja, aber klein.
Musik/Stereowand Nein.
Balkon, Dachterrasse Nein.
Garage, Carport Doppelgarage mit Technikraum.
Nutzgarten, Treibhaus Nein.
weitere Wünsche/Besonderheiten/Tagesablauf:
Direkter Zugang von Garage in Küche über "Speisekammer".
Grenzbebauung der Garage ist mit Nachbar geklärt.
Hausentwurf
Von wem stammt die Planung:
-Architekt
Was gefällt besonders? offener Wohn-Essbereich, lange "Küchenfront", Hauswirtschaftsraum im Obergeschoss, Luftraum, Vorbau.
Was gefällt nicht? Warum? Die Größe soll generell noch geschrumpft werden, voraussichtlich von aktuell 183qm auf 175qm.
Das Obergeschoss gefällt uns noch nicht ganz so gut, das Bad ist bei der Hausgröße vergleichsweise klein, die Kinderzimmer dafür relativ groß.
Auch sind wir am überlegen, das Elternzimmer und Bad näher aneinander zu legen.
Sobald wir die Zeit gefunden haben, werden wir hierzu noch eine eigene Idee hochladen.
Preisschätzung lt Architekt/Planer: steht noch aus, wir kalkulieren mit 550 TEUR, ohne Baunebenkosten und Garage.
Persönliches Preislimit fürs Haus, inkl Ausstattung: 675 TEUR.
favorisierte Heiztechnik: Solewärmepumpe.
Wenn Ihr verzichten müsst, auf welche Details/Ausbauten
-könnt Ihr verzichten: Luftraum, Büro unten kleiner.
-könnt Ihr nicht verzichten: Büro unten, Hauswirtschaftsraum oben, Gästebad EG mit Dusche, Speisekammer.
Warum ist der Entwurf so geworden, wie er jetzt ist? ZB
Entwurf vom Architekten nach unseren groben Vorgaben (Raumprogramm und ungefähre Größen). In der Form und Ausgestaltung war er frei.
Entsprechende/Welche Wünsche wurden vom Architekten umgesetzt? Grundsätzlich einmal alle, es handelt sich noch um den ersten Rohentwurf.
Themen wie Platzierung der Fenster und Türen waren (noch) nicht Thema.
Was ist die wichtigste/grundlegende Frage zum Grundriss in 130 Zeichen zusammengefasst?
An welcher Stelle kann man nach eurer Meinung noch Wohnfläche sinnvoll (!) sparen?
An welcher Stelle sind Räume zu eng/sperrig? Würdet ihr das Obergeschoss anders aufteilen?
Jackil26 schrieb:
Im Moment ist der Entwurf noch etwas groß, sprich soll noch etwas verkleinert werden. [...] Entwurf vom Architekten nach unseren groben Vorgaben (Raumprogramm und ungefähre Größen). In der Form und Ausgestaltung war er frei.Und nun habt Ihr überraschend erfahren, daß Euer Lottoschein erfolglos war ?Jackil26 schrieb:
es handelt sich noch um den ersten Rohentwurf.Dann ist es kein Architekt, denn hier ist offenbar kein Vorentwurf zu sehen, sondern schon etwas weiter Fortgeschrittenes.https://www.instagram.com/11antgmxde/
https://www.linkedin.com/company/bauen-jetzt/
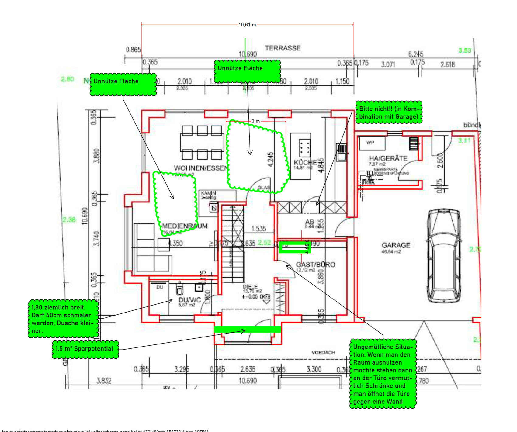
Ich finde den Grundriss gar nicht so schlecht. Ich glaube aber, dass einiges an Grundfläche eingespart werden kann, weil tendenziell eher großzügig geplant wurde.
Auf den ersten Blick fallen mir die großen unnützen Flächen im Wohn/Essbereich auf. Die kann man aber leider nicht so ohne Weiteres verschwinden lassen ohne größere Anpassungen.
Das Duschbad darf ein wenig Schmäler werden, ohne zu schmal zu wirken.
Den Windfang im Eingang etwas einkürzen spart ganz leicht Fläche.
Und die gerade Treppe kostet halt auch Fläche...
Ganz Grundsätzlich noch:
Die Idee mit dem Durchgang Garage->Speisekammer->Küche fand ich ganz nett, bis ich den Plan gesehen habe. Das ist mir dann doch etwas zu spielerisch. Also wenn das kein Geheimeingang werden soll, an dem die zukünftigen Kinder ihren Spaß haben sollen, dann würde ich das anders gestalten.
Die Situation im Büro finde ich ungeschickt gelöst. Allgemein wäre der eine oder andere unnütze Quadratmeter hier besser aufgehoben. Da ist der Platz mehr wert.

Auf den ersten Blick fallen mir die großen unnützen Flächen im Wohn/Essbereich auf. Die kann man aber leider nicht so ohne Weiteres verschwinden lassen ohne größere Anpassungen.
Das Duschbad darf ein wenig Schmäler werden, ohne zu schmal zu wirken.
Den Windfang im Eingang etwas einkürzen spart ganz leicht Fläche.
Und die gerade Treppe kostet halt auch Fläche...
Ganz Grundsätzlich noch:
Die Idee mit dem Durchgang Garage->Speisekammer->Küche fand ich ganz nett, bis ich den Plan gesehen habe. Das ist mir dann doch etwas zu spielerisch. Also wenn das kein Geheimeingang werden soll, an dem die zukünftigen Kinder ihren Spaß haben sollen, dann würde ich das anders gestalten.
Die Situation im Büro finde ich ungeschickt gelöst. Allgemein wäre der eine oder andere unnütze Quadratmeter hier besser aufgehoben. Da ist der Platz mehr wert.
Der Eingang Garage - Speisekammer ist unnötig und sinnlos. Mit dreckigen Stiefeln möchte ich nicht durch die Speisekammer stapfen.
Habt Ihr einen Dachboden? Ich habe die Dachbodenluke nicht gefunden. Falls nein: Wo ist Euer Stauraum?
Im Eingangsberech fehlt mir persönlich Platz für eine Sitzgelegenheit mit Kind. Kind anziehen in Matschanzug, Schneeanzug, etc. wird dann auf dem Boden stattfinden.
Durch dem abgetrennten HAR entfällt leider auch die Möglichkeit einer Schmutzschleuse ins Haus für dreckige Matschepampe Kinder. Schade!
Generell sehr verspielt mit vielen Vorsprüngen und Ecken, also wenn ihr einsparen wollt, ist da jede Menge Potenzial, siehe auch den Post über mir.
Viele Grüße
Habt Ihr einen Dachboden? Ich habe die Dachbodenluke nicht gefunden. Falls nein: Wo ist Euer Stauraum?
Im Eingangsberech fehlt mir persönlich Platz für eine Sitzgelegenheit mit Kind. Kind anziehen in Matschanzug, Schneeanzug, etc. wird dann auf dem Boden stattfinden.
Durch dem abgetrennten HAR entfällt leider auch die Möglichkeit einer Schmutzschleuse ins Haus für dreckige Matschepampe Kinder. Schade!
Generell sehr verspielt mit vielen Vorsprüngen und Ecken, also wenn ihr einsparen wollt, ist da jede Menge Potenzial, siehe auch den Post über mir.
Viele Grüße
11ant schrieb:
Und nun habt Ihr überraschend erfahren, daß Euer Lottoschein erfolglos war ?
Wir haben auch vor Beginn der Planung kein Lotto gespielt.
Dann ist es kein Architekt, denn hier ist offenbar kein Vorentwurf zu sehen, sondern schon etwas weiter Fortgeschrittenes.Wie gesagt handelt es sich um einen Architekten und den ersten Entwurf in dieser Form. Natürlich gab es vorher auch mal ein paar handschriftliche Skizzen.
Büro:
Man könnte sicher auch die Tür höher setzen Richtung Speisekammer und den Anschlag ändern. So "verschwindet" Schrank hinter der Tür.
Dachboden:
Gibt es.
Ankleide:
Die Überlegung war die Ankleidenische noch etwas zu vergrößern und so ein wenig Sitzgelegenheit zu schaffen. Sollte bei 1,6-1,8 Breite wohl auch passen.
Wohnbereich:
Wie man die grünen Bereiche noch etwas kleiner bekommt, müssten wir dann mal schauen. Schonmal danke für den Hinweis.
Speisekammer:
Gedacht ist der Raum in der Tat eher als Speisekammer statt Schmutzschleuse. Für letztere müsste das Büro wohl verkleinert werden, was aber auch nur bedingt eine Lösung ist. Man könnte natürlich auch etwas von der Küche abzweigen.
Schonmal danke für die Ideen.
Wie prägt sich denn der Hang aus? Norden planlinks oben? Ein genauer Lageplan wäre mal interessant. Eine typische Abendsonne SüdWEST scheint eher nicht möglich.
Der Luftraum ist hier für meinen Geschmack wirklich absolut verzichtbar, ist hier eher nur ein Geräuschübertragungskanal von EG ins OG. Der Zugang zur Garage .. ich finde diese Zugänge ja meist eh verzichtbar. Der versteckte Hochschrankwand-Zugang ist dann ja auch eher teuer und kostet nützlicheren Hochschrankplatz in der Küche. Zugang Speisekammer könnte auch vom Flur sein oder durch andere Planung der Küche.
Zugang Allraum Wohnen, da würde ich entweder eine Schiebetür planen oder die Tür in den Flur anschlagen lassen. So steht eine offene Tür irgendwie blöd im Raum.
Ich sehe auch die Erker als Einsparfaktor.
Ansonsten gefällt mir der Plan ganz gut, die vielen freien Flächen, die @SoL gesehen hat, sehe ich auch.
Der Luftraum ist hier für meinen Geschmack wirklich absolut verzichtbar, ist hier eher nur ein Geräuschübertragungskanal von EG ins OG. Der Zugang zur Garage .. ich finde diese Zugänge ja meist eh verzichtbar. Der versteckte Hochschrankwand-Zugang ist dann ja auch eher teuer und kostet nützlicheren Hochschrankplatz in der Küche. Zugang Speisekammer könnte auch vom Flur sein oder durch andere Planung der Küche.
Zugang Allraum Wohnen, da würde ich entweder eine Schiebetür planen oder die Tür in den Flur anschlagen lassen. So steht eine offene Tür irgendwie blöd im Raum.
Ich sehe auch die Erker als Einsparfaktor.
Ansonsten gefällt mir der Plan ganz gut, die vielen freien Flächen, die @SoL gesehen hat, sehe ich auch.
Ähnliche Themen