ᐅ Grundriss Einfamilienhaus mit Garage
Erstellt am: 26.07.15 11:58
Hallo zusammen,
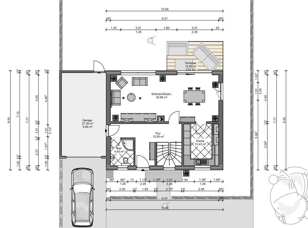
wir planen gerade den Neubau unseres Einfamilienhaus. Die angehängten Grundrisse gefallen uns sehr gut und entsprechen auch insgesamt genau unseren Vorstellungen. Was mir momentan noch ein bisschen Bauchschmerzen bzw. Kopfzerbrechen bereitet ist die Tiefe des Wohn- / Esszimmers. Dies ist in der aktuellen Planung 4 Meter tief. Wie ist eure Einschätzung, wird der Raum dadurch zu Schlauchförmig? Mir fällt allerdings auch keine bessere Lösung ein, wie wir es anders gestalten könnten. An die Außenmaße des Hauses sind wir gebunden, mehr ist nicht möglich, auch kein Erker.
Bebauungsplan/Einschränkungen
Größe des Grundstücks: 433 qm
Hang: Nein
Grundflächenzahl: 0,35
Geschossflächenzahl: 0,7
Baufenster, Baulinie und -grenze: siehe Anhang
Anzahl Stellplatz: 1 Garage
Geschossigkeit: 2 Vollgeschosse
Dachform: Satteldach
Anforderungen der Bauherren
Keller, Geschosse: Keller, 2 Vollgeschosse, DG als Ausbaureserve
Anzahl der Personen, Alter: 2 Personen (35, 32)
Büro: Familiennutzung oder Homeoffice?: Privat, sehr selten Homeoffice
Schlafgäste pro Jahr: keine
offene oder geschlossene Architektur: geschlossen
konservativ oder moderne Bauweise: konservativ
offene Küche, Kochinsel: geschlossene Küche
Anzahl Essplätze
Kamin: Nein
Musik/Stereowand: normale Fernsehwand
Balkon, Dachterrasse: Nein
Garage, Carport: Garage
Nutzgarten, Treibhaus: Freizeitgarten
Hausentwurf
Von wem stammt die Planung: Do-it-Yourself
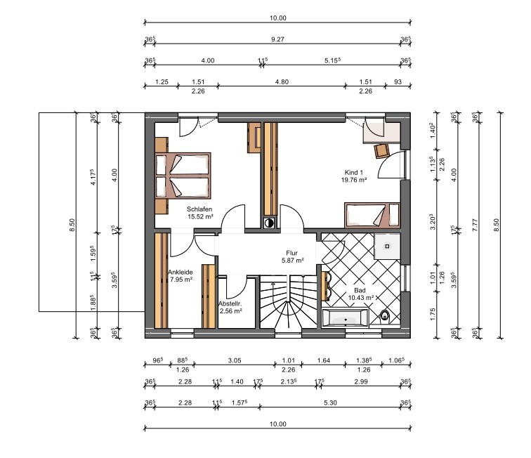
Was gefällt besonders?: Zugang Flur Garage, große Schiebetür im Esszimmer, Ankleide OG, großzügiges Kinderzimmer
Was gefällt nicht?: momentan noch Unschlüssig über die 4 Meter Tiefe im Wohnzimmer
Preisschätzung lt Architekt/Planer: 320 TEuro
favorisierte Heiztechnik: Luftwärmepumpe










wir planen gerade den Neubau unseres Einfamilienhaus. Die angehängten Grundrisse gefallen uns sehr gut und entsprechen auch insgesamt genau unseren Vorstellungen. Was mir momentan noch ein bisschen Bauchschmerzen bzw. Kopfzerbrechen bereitet ist die Tiefe des Wohn- / Esszimmers. Dies ist in der aktuellen Planung 4 Meter tief. Wie ist eure Einschätzung, wird der Raum dadurch zu Schlauchförmig? Mir fällt allerdings auch keine bessere Lösung ein, wie wir es anders gestalten könnten. An die Außenmaße des Hauses sind wir gebunden, mehr ist nicht möglich, auch kein Erker.
Bebauungsplan/Einschränkungen
Größe des Grundstücks: 433 qm
Hang: Nein
Grundflächenzahl: 0,35
Geschossflächenzahl: 0,7
Baufenster, Baulinie und -grenze: siehe Anhang
Anzahl Stellplatz: 1 Garage
Geschossigkeit: 2 Vollgeschosse
Dachform: Satteldach
Anforderungen der Bauherren
Keller, Geschosse: Keller, 2 Vollgeschosse, DG als Ausbaureserve
Anzahl der Personen, Alter: 2 Personen (35, 32)
Büro: Familiennutzung oder Homeoffice?: Privat, sehr selten Homeoffice
Schlafgäste pro Jahr: keine
offene oder geschlossene Architektur: geschlossen
konservativ oder moderne Bauweise: konservativ
offene Küche, Kochinsel: geschlossene Küche
Anzahl Essplätze
Kamin: Nein
Musik/Stereowand: normale Fernsehwand
Balkon, Dachterrasse: Nein
Garage, Carport: Garage
Nutzgarten, Treibhaus: Freizeitgarten
Hausentwurf
Von wem stammt die Planung: Do-it-Yourself
Was gefällt besonders?: Zugang Flur Garage, große Schiebetür im Esszimmer, Ankleide OG, großzügiges Kinderzimmer
Was gefällt nicht?: momentan noch Unschlüssig über die 4 Meter Tiefe im Wohnzimmer
Preisschätzung lt Architekt/Planer: 320 TEuro
favorisierte Heiztechnik: Luftwärmepumpe
Wegen der Küche sind wir noch am überlegen, eine zusätzliche Tür Richtung Flur vorzusehen, dies würde allerdings zu Lasten der Küchenschränke gehen. Das würden wir dann im Zuge der Küchenplanung entscheiden.
Auf die Abstellmöglichkeit im EG haben wir aus Platzgründen verzichtet. In der Küche wollen wir einige Hochschränke haben für Dinge die man immer wieder braucht. Staubsauger im Keller und Bügeln im Büro.
Auf die Abstellmöglichkeit im EG haben wir aus Platzgründen verzichtet. In der Küche wollen wir einige Hochschränke haben für Dinge die man immer wieder braucht. Staubsauger im Keller und Bügeln im Büro.
Moin Moin
Mal ein DIY Entwurf der meiner Meinung nach was taugt. Glückwunsch.
Ein paar kleine Anmerkungen über die es lohnt sich Gedanken zu machen:
Wird der Durchgang Garage - Flur wirklich genutzt?
Ich habe das im letztem Haus nur seltenst genutzt und vermisse das im Jetzigen nicht und ist im Zukünftigen daher nicht vorgesehen.
Bei Verzicht ließe sich der Eingangsbereich etwas besser gestalten und eine Garderobe besser planen.
Ist die Dusche im EG, so ohne Schlafraum wirklich notwendig?
Am Schornstein entlang ließe sich hervorragend eine Zentralstaubsaugeranlage planen.
Olli
Mal ein DIY Entwurf der meiner Meinung nach was taugt. Glückwunsch.
Ein paar kleine Anmerkungen über die es lohnt sich Gedanken zu machen:
Wird der Durchgang Garage - Flur wirklich genutzt?
Ich habe das im letztem Haus nur seltenst genutzt und vermisse das im Jetzigen nicht und ist im Zukünftigen daher nicht vorgesehen.
Bei Verzicht ließe sich der Eingangsbereich etwas besser gestalten und eine Garderobe besser planen.
Ist die Dusche im EG, so ohne Schlafraum wirklich notwendig?
Am Schornstein entlang ließe sich hervorragend eine Zentralstaubsaugeranlage planen.
Olli
@wrobel
Vielen Dank!
Zum Durchgang zur Garage hatten wir folgende Überlegungen:
- Einkäufe bei schlechtem Wetter direkt vom Auto in den Keller / Küche bringen
- direkter Zugang vom Garten zur Dusche / WC ohne durch das Wohnzimmer zu müssen
- in der Garage am Fahrrad schrauben und direkt ins Haus können
- Mülleimer sollen auch in der Garage untergebracht werden
Zur Dusche im EG direkt nach der Gartenarbeit duschen bzw. wenn wir mit den Fahrrädern unterwegs waren und auch kein Dusch-Stau. Noch sind wir zu zweit, wenn wir zu dritt sind ist eine Ausweichmöglichkeit wahrscheinlich auch nicht verkehrt.
Wie würdest du den Eingangsbereich umgestalten? Könntest du mir das kurz beschreiben? Den Durchgang zur Garage wegfallen lassen und dadurch einen breiteren Eingangsbereich haben für eine größere Garderobe?
Wie gesagt, wir sind für alles offen.
Ach so, der innenliegende Kamin wird nicht realisiert, der ist noch aus alten Planungen in den Grundrissen drin.
Vielen Dank!
Zum Durchgang zur Garage hatten wir folgende Überlegungen:
- Einkäufe bei schlechtem Wetter direkt vom Auto in den Keller / Küche bringen
- direkter Zugang vom Garten zur Dusche / WC ohne durch das Wohnzimmer zu müssen
- in der Garage am Fahrrad schrauben und direkt ins Haus können
- Mülleimer sollen auch in der Garage untergebracht werden
Zur Dusche im EG direkt nach der Gartenarbeit duschen bzw. wenn wir mit den Fahrrädern unterwegs waren und auch kein Dusch-Stau. Noch sind wir zu zweit, wenn wir zu dritt sind ist eine Ausweichmöglichkeit wahrscheinlich auch nicht verkehrt.
Wie würdest du den Eingangsbereich umgestalten? Könntest du mir das kurz beschreiben? Den Durchgang zur Garage wegfallen lassen und dadurch einen breiteren Eingangsbereich haben für eine größere Garderobe?
Wie gesagt, wir sind für alles offen.
Ach so, der innenliegende Kamin wird nicht realisiert, der ist noch aus alten Planungen in den Grundrissen drin.
Ähnliche Themen