ᐅ Einfamilienhaus Bauhausstil/Flachdach, 2 Vollgeschosse + Keller
Erstellt am: 01.03.21 15:41
L
LheemanBebauungsplan/Einschränkungen
-Kein Bebauungsplan. Bebauung nach 34 Baugesetzbuch
- Grundstücksgröße 700qm
Anforderungen der Bauherren
Stilrichtung: Bauhaus
Dachform: Flachdach
Gebäudetyp: Einfamilienhaus
Keller: Ja
Geschosse: 2 Vollgeschosse
Anzahl der Personen, Alter: Aktuell 2 (31 und 33 Jahre) + später 1 Kind
Raumbedarf im EG, OG: mindestens 180qm Wohnfläche
Büro: Familiennutzung oder Homeoffice?: Beides
Schlafgäste pro Jahr: 0
offene oder geschlossene Architektur: offen
konservativ oder moderne Bauweise: modern
offene Küche, Kochinsel: beides
Anzahl Essplätze: mindestens 6
Kamin: Ja
Musik/Stereowand: Heimkino soll nachrüstbar sein (Dolby Atmos)
Balkon, Dachterrasse: nicht erforderlich
Garage, Carport: Doppelgarage
Nutzgarten, Treibhaus: nein
weitere Wünsche/Besonderheiten:
- Photovoltaikanlage mit Speicher
- Keller soll zum Heimkino umgebaut werden können
- Erhöhte Deckenhöhe im EG. Nutzhöhe von 2,8 Metern (2,55m im DG)
-Lüftungsanlage
-EG Altersgerecht nutzbar
- Zugang zur Terrasse vom Essbereich über eine vollständig faltbare Schiebetür um den Essbereich in den Garten zu erweitern.
- Grundstück grenzt im Süden an eine Durchgangsstrasse
Hausentwurf
Von wem stammt die Planung:
-Architekt
Preisschätzung lt Architekt/Planer:
586.000 € ohne Keller (70.000 € für Keller), Grundstück ist extra
Persönliches Preislimit fürs Haus, inkl Ausstattung:
600.000 €
favorisierte Heiztechnik:
Luft-Wasser-Wärmepumpe mit Fußbodenheizung in allen Geschossen
Wenn Ihr verzichten müsst, auf welche Details/Ausbauten
-könnt Ihr verzichten:
-Keller
-Luftraum mit Gallerie
-könnt Ihr nicht verzichten:
-erhöhte Deckenhöhe
Warum ist der Entwurf so geworden, wie er jetzt ist?
Wir wollten ein modernes Haus dass insbesondere im Alter oder bei einer Behinderung weiter genutzt werden kann. Wir haben daher ein großes Büro/Gästezimmer im EG geplant, dass später als Schlafzimmer umfunktioniert werden kann. Das Bad im EG ist aus diesem Grund mit einer bodentiefen Dusche ausgestattet. Der Ausgang zur Terrasse wird ebenerdig gestaltet, damit man auch mit einem Rollstuhl rausfahren kann. Ursprünglich war das Haus ohne Keller geplant, daher vergrößerte Stellfläche im Hauswirtschaftsraum und in der Garage. Die Technik wird in den Keller verlagert. Die Stellflächen oben behalten wir trotz Keller, damit man im Alter Zugang zu diesen hat. In den Keller wird man ggf. nicht mehr kommen können im Alter.
Was ist die wichtigste/grundlegende Frage zum Grundriss in 130 Zeichen zusammengefasst?
Vorweg: Meine Frau und ich sind sehr zufrieden mit dem Entwurf unseres Architekten. Wir würden uns gleichwohl über ein Feedback von außen freuen. Wir stehen sowohl positiver als auch negativer Kritik offen gegenüber, solange diese sachlich erfolgt. Vielleicht hat der ein oder andere ja noch sinnvolle Verbesserungsvorschläge.
Da wir einen Kamin haben werden und wir mit Holz unbegrenzt und kostenfrei versorgt werden hat vielleicht auch noch jemand eine Idee wo und wie das Holz gut gelagert werden könnte.







-Kein Bebauungsplan. Bebauung nach 34 Baugesetzbuch
- Grundstücksgröße 700qm
Anforderungen der Bauherren
Stilrichtung: Bauhaus
Dachform: Flachdach
Gebäudetyp: Einfamilienhaus
Keller: Ja
Geschosse: 2 Vollgeschosse
Anzahl der Personen, Alter: Aktuell 2 (31 und 33 Jahre) + später 1 Kind
Raumbedarf im EG, OG: mindestens 180qm Wohnfläche
Büro: Familiennutzung oder Homeoffice?: Beides
Schlafgäste pro Jahr: 0
offene oder geschlossene Architektur: offen
konservativ oder moderne Bauweise: modern
offene Küche, Kochinsel: beides
Anzahl Essplätze: mindestens 6
Kamin: Ja
Musik/Stereowand: Heimkino soll nachrüstbar sein (Dolby Atmos)
Balkon, Dachterrasse: nicht erforderlich
Garage, Carport: Doppelgarage
Nutzgarten, Treibhaus: nein
weitere Wünsche/Besonderheiten:
- Photovoltaikanlage mit Speicher
- Keller soll zum Heimkino umgebaut werden können
- Erhöhte Deckenhöhe im EG. Nutzhöhe von 2,8 Metern (2,55m im DG)
-Lüftungsanlage
-EG Altersgerecht nutzbar
- Zugang zur Terrasse vom Essbereich über eine vollständig faltbare Schiebetür um den Essbereich in den Garten zu erweitern.
- Grundstück grenzt im Süden an eine Durchgangsstrasse
Hausentwurf
Von wem stammt die Planung:
-Architekt
Preisschätzung lt Architekt/Planer:
586.000 € ohne Keller (70.000 € für Keller), Grundstück ist extra
Persönliches Preislimit fürs Haus, inkl Ausstattung:
600.000 €
favorisierte Heiztechnik:
Luft-Wasser-Wärmepumpe mit Fußbodenheizung in allen Geschossen
Wenn Ihr verzichten müsst, auf welche Details/Ausbauten
-könnt Ihr verzichten:
-Keller
-Luftraum mit Gallerie
-könnt Ihr nicht verzichten:
-erhöhte Deckenhöhe
Warum ist der Entwurf so geworden, wie er jetzt ist?
Wir wollten ein modernes Haus dass insbesondere im Alter oder bei einer Behinderung weiter genutzt werden kann. Wir haben daher ein großes Büro/Gästezimmer im EG geplant, dass später als Schlafzimmer umfunktioniert werden kann. Das Bad im EG ist aus diesem Grund mit einer bodentiefen Dusche ausgestattet. Der Ausgang zur Terrasse wird ebenerdig gestaltet, damit man auch mit einem Rollstuhl rausfahren kann. Ursprünglich war das Haus ohne Keller geplant, daher vergrößerte Stellfläche im Hauswirtschaftsraum und in der Garage. Die Technik wird in den Keller verlagert. Die Stellflächen oben behalten wir trotz Keller, damit man im Alter Zugang zu diesen hat. In den Keller wird man ggf. nicht mehr kommen können im Alter.
Was ist die wichtigste/grundlegende Frage zum Grundriss in 130 Zeichen zusammengefasst?
Vorweg: Meine Frau und ich sind sehr zufrieden mit dem Entwurf unseres Architekten. Wir würden uns gleichwohl über ein Feedback von außen freuen. Wir stehen sowohl positiver als auch negativer Kritik offen gegenüber, solange diese sachlich erfolgt. Vielleicht hat der ein oder andere ja noch sinnvolle Verbesserungsvorschläge.
Da wir einen Kamin haben werden und wir mit Holz unbegrenzt und kostenfrei versorgt werden hat vielleicht auch noch jemand eine Idee wo und wie das Holz gut gelagert werden könnte.
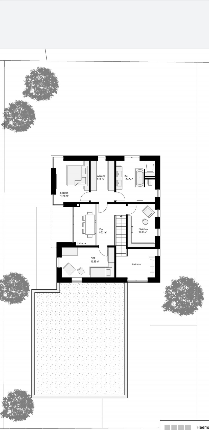
Wenn du im Alter nicht mehr die Treppen bewältigen kannst kommst du mit dem Bad unten nicht zurecht.
Es gibt Treppenlifte die Leben auf allen Ebenen möglich macht. Wenn das nicht mehr hilft, ist die Frage ob ihr überhaupt noch in dem Haus leben wollt/könnt
Budget etwas knapp ihr liegt ja jetzt schon drüber.
Welches Bad benutzt das Kind?
Bitte nochmal alles mit Maßen einstellen
Es gibt Treppenlifte die Leben auf allen Ebenen möglich macht. Wenn das nicht mehr hilft, ist die Frage ob ihr überhaupt noch in dem Haus leben wollt/könnt
Budget etwas knapp ihr liegt ja jetzt schon drüber.
Welches Bad benutzt das Kind?
Bitte nochmal alles mit Maßen einstellen
W
Wugler197801.03.21 16:08Wieviel Raum zum rangieren habt ihr vor der Garage? Wir haben auch so gebaut und brauchten jetzt 8,0 Meter Fläche um mit dem Auto in die Garage fahren zu können.
Ibdk14 schrieb:
Auf den ersten Blick sieht das schick aus. Einen zweiten werf ich später drauf. Deshalb nur eine Frage: welches Bad nutzt das Kind?Geplant ist dass das Kind in jungen Jahren mit ins Elternbadezimmer geht und dann als Jugendlicher das Bad unten nutzen soll. Wir hatten zunächst ein eigenes Kinderbad geplant, halten bei nur einem geplanten Kind 3 Badezimmer jedoch für übertrieben.
haydee schrieb:
Wenn du im Alter nicht mehr die Treppen bewältigen kannst kommst du mit dem Bad unten nicht zurecht.
Es gibt Treppenlifte die Leben auf allen Ebenen möglich macht. Wenn das nicht mehr hilft, ist die Frage ob ihr überhaupt noch in dem Haus leben wollt/könnt
Budget etwas knapp ihr liegt ja jetzt schon drüber.
Welches Bad benutzt das Kind?
Bitte nochmal alles mit Maßen einstellenZum Bad: siehe oben
Zum Budget: wir haben sehr viel Eigenkapital und wollten durch das Budget lediglich Sorge tragen dass der Architekt nicht größenwahnsinnig wird. Der Keller ist netterweise ein Geschenk der Schwiegereltern, so dass uns dafür keine Kosten entstehen.
Gut Optik ist natürlich Geschmackssache, aber was ich sagen kann: Die Kostenschätzung von dem Architekten könnte wenn überhaupt nur für den billigsten Fleck in Deutschland richtig sein. Sollte es Richtung Süden gehen, dann fehlt eine schöne Summe. Garten und Küche etc. noch extra ist eh klar. Aber das ist ja mittlerweile oft so.
Ähnliche Themen