ᐅ Holzdecke und Teilisolierung für Keller mit Garage
Erstellt am: 20.01.21 17:54
S
Schwabe2320.01.21 17:54Hallo zusammen,
wir planen ein Passivhaus in Holzständerbauweise mit einem Architekten. Das Haus wird unterkellert, wobei ein Teil des Kellers eine Garage sein wird. Wir wollen einfach so wenig wie möglich Fläche verbrauchen da uns der Garten sehr wichtig ist. Die restlichen beiden Zimmer des Kellers sollen als Abstellraum, sowie eine kleine Werkstatt genutzt werden. Ggf. auch Technik. Beheizt werden soll im Keller allenfalls temporär. Über der Tiefgarage liegt die Küche. Wir haben nun diverse Möglichkeiten diskutiert und die Garage stellt uns da immer wieder vor Probleme da natürlich beim Öffnen des Tores ein Schwall kalte Luft ins Haus kommen wird. Vorschlag des Architekten wäre nun den Keller aus der thermischen Hülle zu nehmen und eine isolierte Holzdecke auf den Keller zu setzen um Wärmebrücken zu verhindern. Die Decke ist weitestgehend aus dem Erdreich raus und müsste nur auf einer Strecke von ca. 5m mittels Schacht vom Erdreich getrennt werden. Die Garage würde dann überhaupt nicht, die hinteren Nutzräume nur an den Außenwänden isoliert werden. Die Innenwand zur Garage hin natürlich auch. Natürlich müssen die Betonwände entsprechend armiert werden um die Erdlast abzufangen.
Alternative wäre eine klassische Betondecke zu machen und die thermische Hülle um den Keller herum zu legen, dann aber die Garage von innen zu dämmen damit wir in der Küche keine kalten Füße bekommen.
Habt Ihr Erfahrungen mit Holzdecke im leicht isolierten Keller? Was haltet Ihr von diesem Ansatz? Ich habe Bedenken, dass sich auf Grund der unterschiedlichen Klimazonen ggf. Schimmel entwickeln könnte.
Vielen Dank vorab für eure Hilfe

wir planen ein Passivhaus in Holzständerbauweise mit einem Architekten. Das Haus wird unterkellert, wobei ein Teil des Kellers eine Garage sein wird. Wir wollen einfach so wenig wie möglich Fläche verbrauchen da uns der Garten sehr wichtig ist. Die restlichen beiden Zimmer des Kellers sollen als Abstellraum, sowie eine kleine Werkstatt genutzt werden. Ggf. auch Technik. Beheizt werden soll im Keller allenfalls temporär. Über der Tiefgarage liegt die Küche. Wir haben nun diverse Möglichkeiten diskutiert und die Garage stellt uns da immer wieder vor Probleme da natürlich beim Öffnen des Tores ein Schwall kalte Luft ins Haus kommen wird. Vorschlag des Architekten wäre nun den Keller aus der thermischen Hülle zu nehmen und eine isolierte Holzdecke auf den Keller zu setzen um Wärmebrücken zu verhindern. Die Decke ist weitestgehend aus dem Erdreich raus und müsste nur auf einer Strecke von ca. 5m mittels Schacht vom Erdreich getrennt werden. Die Garage würde dann überhaupt nicht, die hinteren Nutzräume nur an den Außenwänden isoliert werden. Die Innenwand zur Garage hin natürlich auch. Natürlich müssen die Betonwände entsprechend armiert werden um die Erdlast abzufangen.
Alternative wäre eine klassische Betondecke zu machen und die thermische Hülle um den Keller herum zu legen, dann aber die Garage von innen zu dämmen damit wir in der Küche keine kalten Füße bekommen.
Habt Ihr Erfahrungen mit Holzdecke im leicht isolierten Keller? Was haltet Ihr von diesem Ansatz? Ich habe Bedenken, dass sich auf Grund der unterschiedlichen Klimazonen ggf. Schimmel entwickeln könnte.
Vielen Dank vorab für eure Hilfe
Schwabe23 schrieb:
Vielen Dank vorab für eure HilfeÖhm, ... geben und nehmen: von so einem interessanten Haus willst Du uns nur die Einfahrt zeigen ???https://www.instagram.com/11antgmxde/
https://www.linkedin.com/company/bauen-jetzt/
S
Schwabe2321.01.21 23:09Ich dachte aufm Bau sollte man keine Vorkasse leisten 🙂
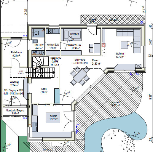
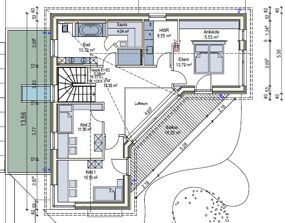
Hier mal noch ein paar Ansichten. Am Haus und am Grundriss feilen wir noch, da wir nach der Kostenberechnung leider deutlich über Budget landen. Wird auf jeder Seite noch gut 1m gekürzt. Zudem wird der Windfang deutlich kleiner ausfallen.




Hoffe bezüglich Kellerisolierung kann mir jemand helfen, unser Architekt bräuchte dazu eine Entscheidung. Er schwärmt von der Holzdeckenlösung aber mir ist das bei einem Keller irgendwie nicht geheuer.
Liebe Grüße
Hier mal noch ein paar Ansichten. Am Haus und am Grundriss feilen wir noch, da wir nach der Kostenberechnung leider deutlich über Budget landen. Wird auf jeder Seite noch gut 1m gekürzt. Zudem wird der Windfang deutlich kleiner ausfallen.
- Das Haus holt mit dieser Gestaltung das Maximum an sonniger Gartenfläche aus dem Grundstück. Wir wollen auch das Grün des Gartens und den Teich quasi mit in den Wohnraum einbinden. Das wird natürlich zu Anfang den klassischen Präsentiertellereffekt haben, wenn das aber ein bisschen eingewachsen ist, stellen wir uns das schön vor. Insbesondere mit dem Sitzfenster im Wohnzimmer.
- Das Haus ist einfach auch mal was anderes. Wir wollten nicht den nächsten weißen Würfel ins Wohngebiet setzen.
- Wir isolieren uns etwas von den Nachbarn weiter unten die auf der Garage eine Dachterrasse haben (hat der Vorbesitzer des Grundstücks so genehmigt)
- Wir haben eine optimale Ausrichtung für Photovoltaik und im Winter gute solare Gewinne
- Wir waren immer zwischen offenem Wohnraum und separaten Räumen (Küche/Essen/Wohnen) hin und her gerissen. Jetzt sehen wir einen guten Mittelweg dafür. Es ist alles offen aber doch irgendwie getrennt mit Ecken die nicht direkt von überall einsehbar sind.
- Im OG haben wir bei klaren Bedingungen Alpensicht
- Im EG ist eine kleine Einliegerwohnung untergebracht in der Mutter oder Vater mal gepflegt werden könnte.
Hoffe bezüglich Kellerisolierung kann mir jemand helfen, unser Architekt bräuchte dazu eine Entscheidung. Er schwärmt von der Holzdeckenlösung aber mir ist das bei einem Keller irgendwie nicht geheuer.
Liebe Grüße
W
WilderSueden22.01.21 20:12Beim Thema Decke kann ich dir nicht helfen aber das mit der Einliegerwohnung scheint mir ungünstig gelöst. Im Prinzip hat die ja nur ein Bett zum schlafen. Wenn man als pflegebedürftige Person noch aus dem Bett kommt muss man immer ums Haus laufen um Anschluss zu finden. Und wenn man nicht mehr aus dem Bett kommt will man nicht so isoliert sein.
S
Schwabe2322.01.21 20:20Da hast du sicherlich Recht. Da es ein Kfw 40 Plus Haus wird, muss diese zweite Wohneinheit allerdings gewisse Mindestanforderungen erfüllen um die Förderung zu erhalten. Vielleicht wird da eines Tages noch eine Türe zur Hauptwohnung gesetzt wenn der „Mieter“ damit einverstanden ist ...
W
WilderSueden22.01.21 20:59Mit einer weiteren Tür zerstörst du dir den Grundriss der Einliegerwohnung noch mehr. Ob man eine Pseudo-Wohneinheit für höhere Förderung baut ist eure Entscheidung, da will ich nicht moralisieren. Aber denkt drüber nach dass ihr für einmalige 30 000€ dann immer diesen komischen Trakt im Haus habt der für niemand schön zu wohnen ist und entsprechend auch kaum benutzt werden wird. Gleichzeitig zwingt der euch zum Beispiel jedes Mal wenn ihr vom Wohnzimmer auf die Toilette wollt eine Treppe zu nehmen. Wenn ihr die Tür setzt, kommt ihr zwar im EG auf eine Toilette aber die hat nicht mal ein Fenster, außer zum Abstellraum. Wirklich schön ist das nicht
Ähnliche Themen