Grundrissentwurf für 220m² Einfamilienhaus

4,40 Stern(e) 7 Votes
Zuletzt aktualisiert 05.10.2025
Sie befinden sich auf der Seite 3 der Diskussion zum Thema: Grundrissentwurf für 220m² Einfamilienhaus
>> Zum 1. Beitrag <<

R

R.Hotzenplotz

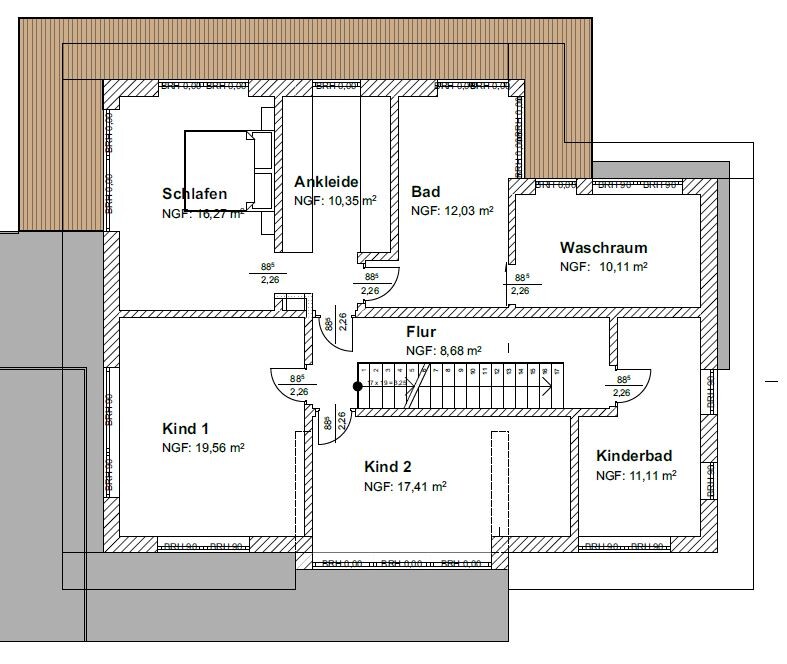
Das ist ist ein vorheriger OG Grundriss. Die Abfolge Bad / Waschen finde ich hier nach einer Nacht drüber schlafen besser. Vom Schlafzimmer an der Ankleide UND dem Waschraum vorbei ins Bad ist doch komisch.


Ansonsten habe ich von dem hier Geschriebenen auch einige Eindrücke mitgenommen, die vermutlich nicht so gut passen und wozu ich dem Architekten etwas mit auf den Weg geben möchte. Die Frage ist nur wie und mit welcher Wunschformulierung?

In Summe sind für mich folgende Punkte relevant:

- Garderobe wirkt wie ein Schlauch; wie breit ist sie genau und ist es eine Alternativ, sie vielleicht offen zu gestalten? Wandern Richtung Garage wird sie nicht. Meine Frau möchte es so lassen wie es ist und ich habe dafür an anderen Stellen meine Wünsche umsetzen dürfen.

- hilft es dem Grundriss weiter, auf die durchgängige Treppe zu verzichten und zugunsten einfacherer Grundrisse eine Über Eck Lösung an einer etwas weniger exponierten Stelle zu planen?

- Könnte es irgendeinen Sinn machen, die Speisekammer rechts etwas zu kürzen, um dadurch irgendwie einen großzügigeren Durchgang zum Wohnzimmer zu erhalten? Der Durchgang zur Küche käme dann weiter nach links (Küche ist ohnehin zu groß)

- durch eine mögliche andere Treppenlösung könnte das Haus vielleicht entweder etwas kürzer werden (vorne!), mit dem Ziel, die Küche auf ein angemessenes Maß zurück zu führen. Alternativ zur Kürzung könnte man die gewonnene Fläche wir das zu kurz erscheinende Wohnzimmer einsetzten (auch da grübele ich noch, ob die 5,69 evtl. reichen..... wir wollen halt gerne Surroundlautsprecher einsetzen und die sollen hinter und nicht neben der Couch stehen.

OG:
- Tür vom Flur zum Elternbereich sollte nach außen nicht nach innen aufgehen; wirkt für mich unnötig umständlich, ansonsten ins Schlafzimmer zu gelangen

- der Flur ist vermutlich echt zu schmal. ich schätze ihn auf etwa einen Meter, ebenso wie die Treppe, die wir auch eher 10cm breiter sehen, den Flur schon deutlich breiter. hier hat er 1,40 m und das ist komfortabel ohne pompös zu sein.

- ebenfalls habe ich noch gefunden, dass mich die Wanne in der Ecke zwischen drei Wänden doch sehr stört. passt gar nicht zu einem so großen Haus. Würde sich ja erledigen, wenn man Waschen / Baden tauscht aber die Ecke bleibt trotzdem und ein größeres Kinderbad hilft auch keinem......

- der Hinweis mit dem "Schlauch" im Kinderzimmer war auch gut. Aber auch da sehe ich keine wirkliche Lösung ohne einen mehr oder weniger neuen Entwurf mit neuer Treppenausrichtung

Irgendwie habe ich das Gefühl, die Treppe ist für viele dieser Punkte ein Problem.


Tue mich schwer, da heran zu gehen. Möchte jetzt auch nicht noch 3-4 Planungen machen lassen. Ich sollte daher schon möglichst konkret beschreiben, welche Alternative bzw. welche Anpassungen durchzuführen sind.


Wenn dahin gehend jemand noch Input hat, freue ich mich!
Ansonsten werde ich wohl nur das Nötigste irgendwie anpassen lassen. Das wäre die Flurbreite, der Badezimmer-Tausch und möglicherweise die Garderobensituation.

Grundriss DG: Schlafen, Ankleide, Bad, Waschraum, Flur, Kind 1, Kind 2, Kinderbad.
 
Y

ypg

Jetzt in gross und in Ruhe

Aktuell ist der digitale Architektenentwurf.
Du hast ein PDF und ein JPG eingestellt - es sind verschiedene. Die Speis ist mal hier und mal dort.

Deine Handskizze gefällt mir auch besser. Das mag daran liegen, dass ich a) keine Grossinseln mag, die an einer Wand sind. Diese sind unpraktisch und lassen nicht die Insel umkreisen. Zumal es bei Dir so ist, dass man eher durch den Flur geht, als die Küche an sich benutzt, da der Weg ums Inselchen zu lang wird. b) Bei ü20qm sind die Wege auch nicht mehr beim Kochen ergonomisch, sondern nur zu lang.

Ansonsten finde ich die restlichen Räume jetzt nicht grossartig überzogen gross. Und 3 Meter als schmalster Abstand in einem Kinderzimmer auch nicht zu schmal. Das Zimmer ist nicht 3 x 4 und auch nicht 2,40 breit (wie früher gern genommen). Es ist ein anständiges Zimmer, wo sogar an der Wand hinter der Tür eine anständige Regalwand oder Schrank Platz hat... Schrank wird wohl mit 60er Tiefe schwierig?! <- würd ich mal hinterfragen, denn auch Jugendschränke sind so tief

Bei der Küchenplanung kann man darauf achten, dass die Insel um 90 Grad gedreht wird, damit man beim Eintreten darauf schauen darf und rumgehen kann
 
R

R.Hotzenplotz

Jetzt in gross und in Ruhe



Du hast ein PDF und ein JPG eingestellt - es sind verschiedene. Die Speis ist mal hier und mal dort.

Upps. Die PDF in meinem ersten Posting ist falsch, da überholt. Küche und Speisekammer haben wir getauscht, da bei der ersten Datei die Riesen Küche arg wenig Licht bekommt durch das eine kleine Fenster. Ich denke, diese Option ging gar nicht auch wenn die Anbindung ans Wohnzimmer besser war.
 
R

R.Hotzenplotz

Ich bin Maria noch eine Antwort schuldig.

Wir haben uns bisher noch keine Gedanken an eine Alternative zu einem Holzkamin gemacht. Es steht auch noch nicht 100% fest, dass einer rein kommt. Meine Frau ist eher dagegen, da sie vermutet, wir nutzen den wenig, da wir die Pflege scheuen werden.
 
Zuletzt aktualisiert 05.10.2025
Im Forum Grundrissplanung / Grundstücksplanung gibt es 2510 Themen mit insgesamt 87166 Beiträgen


Ähnliche Themen zu Grundrissentwurf für 220m² Einfamilienhaus
Nr.ErgebnisBeiträge
1Wie findet ihr diesen Grundriss? - Seite 211
2 2 Vollgeschosse, Durchgang Garage, Hauswirtschaftsraum unter Treppe 25
3Grundriss: Planung Türen Wohnraum + Speisekammer 17
4Meinungen zum Grundriss EG 10
5Eure Meinung zum Grundriss für das EG 28
6Feedback zu Grundriss Einfamilienhaus erwünscht 18
7Grundriss ca. 170 m² Einfamilienhaus, ohne Keller mit Carport - Seite 889
8Grundriss für 150qm Einfamilienhaus mit Wohnzimmer nach Norden 21
9Treppe im Wohnzimmer als Hype - Pro & Contra? - Seite 426
10Treppe im Flur, Grundriss steht eigentlich schon :o( - Seite 320
11Vorplanung mit dem Architekten - eigener Grundriss sinnvoll? 18
12Grundriss Einfamilienhaus. Bitte um Feedback bzw Ideen :-) - Seite 325
13Grundriss Stadtvilla / Feedback Statik, Anordnung - Seite 228
14Meinungen f. Grundriss Einfamilienhaus ca. 160qm - Seite 429
15Anregung - Kritik Grundriss Einfamilienhaus 320qm 29
16Wie findet ihr unseren Grundriss??? 21
17Bungalow mit 140qm und Garage im Grundriss 13
18Gestaltung Grundriss. Was sind eure Meinungen / Vorschläge? 15
19Wohnzimmer Grundrissplanungs-Ideen? - Seite 239
20Grundriss - Eure Meinungen, Ideen und Vorschläge 31

Oben