Stadtvilla mit gerader Treppe, offene moderne Bauweise, 140m²

4,00 Stern(e) 8 Votes
S

saddi

Hallo zusammen,

wir haben vor kurzem mit Glück ein passendes Grundstück für uns gefunden, auf dem wir unseren Traum vom Eigenheim erfüllen können.
Dafür sind wir den Kompromiss eingegangen, etwas weiter aus der Stadt zu gehen, um ein freistehendes Einfamilienhaus im Wendehammer in einem Neubaugebiet bauen zu können.

Den Notarvertrag für Grundstück haben wir vergangene Woche unterschrieben. Die Finanzierung ist auch schon geklärt. Wir haben uns auch schon für einen Fertighausanbieter entschieden (Luxhaus), mit dem wir schon die ersten Planungen besprochen haben.
Der nächste Schritt war demnach mit unserer Architektin den passenden Grundriss zu finden, um dann den Bauantrag zu stellen. Unsere Architektin hat unsere Ideen sehr gut umgesetzt und wir sind mit dem Grundriss wirklich zufrieden. Dennoch sind uns die Meinungen von anderen Bauherren sehr wichtig.

Und dafür würden wir gerne Eure Meinung hören

Anbei die wichtigsten Eckdaten:

Das Grundstück ist 416m2 groß. Wir möchten gerne ein Haus ohne Keller im Stadtvilla Stil bauen. EG ca. 71m², OG ca. 66m².
Das Haus wird am Ende eine Wendehammers mit freiem Süd-West Blick aufs Feld stehen. Der Hauseingang ist „seitlich“.
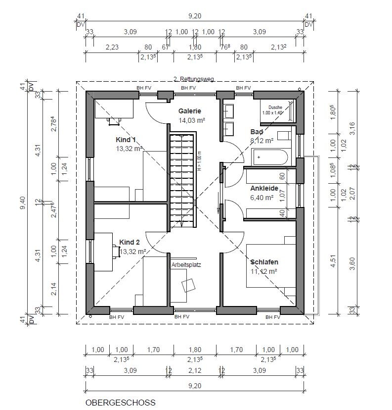
Sehr wichtig sind uns eine gerade Treppe, eine Galerie im OG sowie ein großer Ess- und Wohnbereich mit Kochinsel. Da wir gerne und viel kochen, soll die Küche der Mittelpunkt des Hauses werden.
Zur Zeit sind wir noch zu zweit, planen aber in den nächsten 1-2 Jahren uns zu vergrößern (Wunsch sind 2 gesunde Kinder).

Bei der momentanen Planung sind wir schon im Budgetlimit, weshalb keine großartigen (teuren) Änderungen möglich sind. Eigentlich entspricht der momentane Grundriss auch sehr unseren Wünschen, aber trotzdem ist man sich bei so einem großen Projekt immer etwas unsicher, ob man alles bedacht hat.

Was uns ein wenig Kopfzerbrechen bereitet:
  • Zu wenig Abstellmöglichkeiten? Vorräte sollen in den Raum unter die Treppe, gleiches gilt für einige Küchengeräte (Mixer, Eismaschine, usw.). Getränkekisten und Haushaltsgeräte (Staubsauger, Putzsachen) würden wir dann auch in den Vorratsraum sowie Hauswirtschaftsraum stellen. Sachen, die nur zeitweise gebraucht werden (Weihnachten, Karneval, Koffer, usw.) sollen auf den kleinen Speicher. Zu optimistisch geplant?

  • Breite vom Flur im EG ausreichend? Laut Plan wird dieser wohl ca. 90-100cm breit sein. Da wir gerne ein offenes Konzept haben und die Küche schon halb im Flur beginnt, sollte das eigentlich passen?

  • Gerne hätten wir eine etwas größere Garderobe. Zurzeit würde die kleine reichen. Mit Kindern oder vielen Gästen wird es eng. Wobei wir dafür im Arbeitszimmer ggfl. einen kleinen Schrank stellen werden, auf dem man zurückgreifen könnte. Für den Alltag sollte die geplante Garderobe aber reichen?!

  • Im OG werden wir voraussichtlich die Durchgangstür von Ankleide zu Bad streichen. Dadurch könnte man in der Ankleide an der größeren Seite auch komplett einen 3 Meter Schrank aufstellen. Auf der anderen Seite soll dann eher eine kleine kommode hinkommen, damit es nicht ganz so eingeengt ist.

  • Das Bad im OG ist relativ klein, quasi Mindestgröße. Wir sind auch nicht die großen Wellness Typen. Unsere jetzige Badewanne in der Mietwohnung haben wir in 6 Jahren nur 2 mal genutzt. An sich würden wir auch auf eine Badewanne verzichten, mit Blick auf die hoffentlich zukünftige Kinder werde wir diese aber auf jeden Fall benötigen und auch mit einplanen.
Sonst sind wir im Großen und Ganzen sehr zufrieden. Wir wissen, dass wir durch die gerade Treppe und Galerie oben einiges an Möglichkeiten wegnehmen. Aber das ist uns sehr wichtig und wir möchten das auch unbedingt behalten. Unser Budget ist mit der derzeitigen Planung auch ausgereizt bzw. höher wollen wir nicht gehen.

Aber vielleicht hat der ein oder andere von Euch noch ein paar nützliche Idee, Anregungen oder aber auch konstruktive Kritik. Wir sind da sehr offen und freuen uns auf Eure Hilfe

Lieben Dank schon mal!

Modernes, zweigeschossiges weißes Haus mit Terrasse, Gartenmöbeln und drei Personen im Garten.


Moderne weiße zweigeschossige Villa mit Carport, Garten, Zaun und zwei Personen davor.


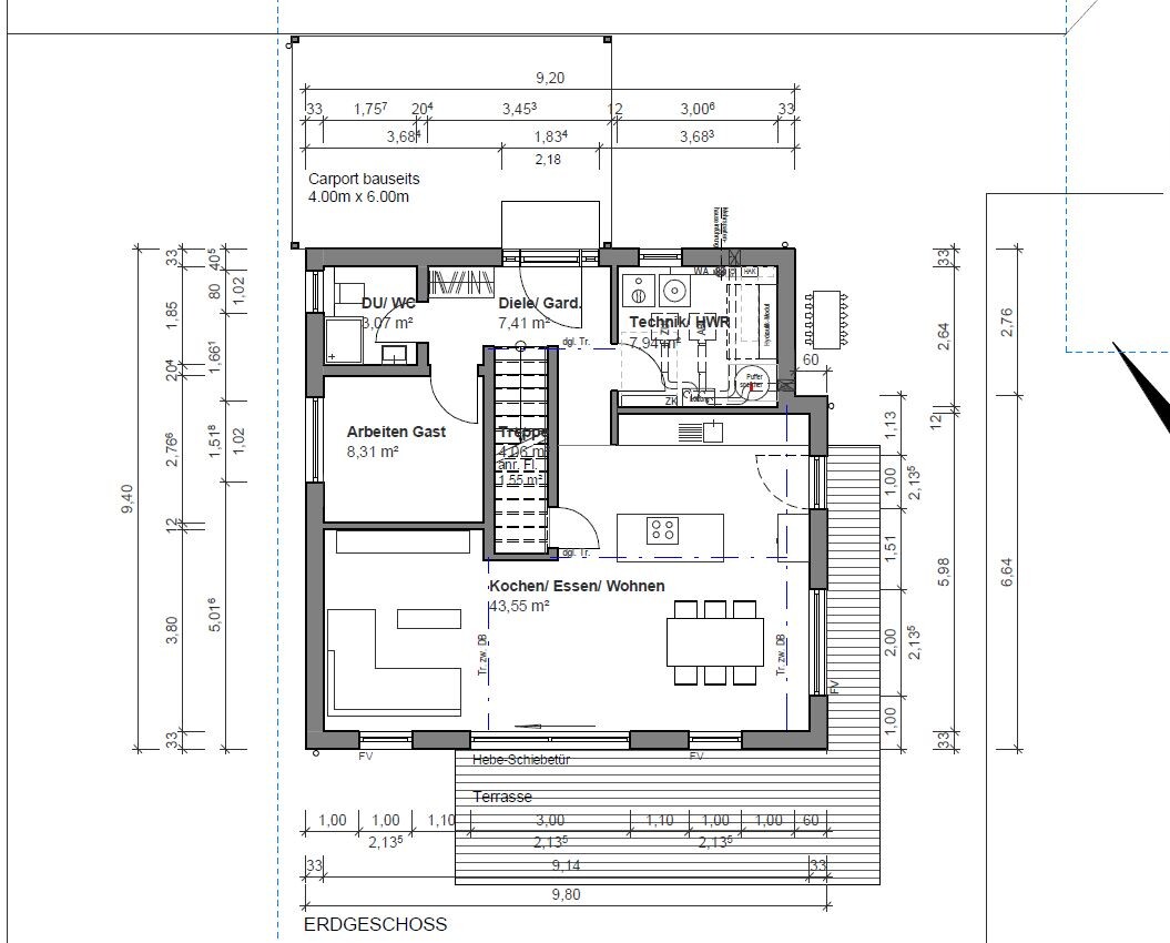
Grundriss Erdgeschoss: Küche/Essen/Wohnen, Arbeits-/Gästezimmer, Diele, Technik, Terrasse, Carport.


Obergeschoss Grundriss: Galerie, Kind 1, Kind 2, Schlafen, Ankleide, Bad, Arbeitsplatz.
 
S

saddi

Anbei noch der Fragebogen:

Bebauungsplan/Einschränkungen
Größe des Grundstücks: 416m² (fast quadratisch)
Hang: nein, ebenes Grundstück
Grundflächenzahl: -
Geschossflächenzahl: -
Baufenster, Baulinie und -grenze
Randbebauung:
Anzahl Stellplatz: 2
Geschossigkeit: 2-geschossig
Dachform: frei wählbar
Stilrichtung: frei wählbar
Ausrichtung: frei wählbar
Maximale Höhen/Begrenzungen: Max. 8 Meter Höhe
weitere Vorgaben

Anforderungen der Bauherren
Stilrichtung, Dachform, Gebäudetyp: Stadtvilla, Walm- oder Satteldach
Keller, Geschosse: 2-geschossig ohne Keller
Anzahl der Personen, Alter: 2 Erwachsene (31, 29) und hoffentlich in naher Zukunft 2 Kinder
Raumbedarf im EG, OG: 4 Schlafzimmer + 1 Arbeitszimmer, 2 Bäder (beide Dusche), großer Wohn/Essbereich mit offener Küche.
Büro: Familiennutzung oder Homeoffice? Beides, Büro soll auch als Gästezimmer dienen
Schlafgäste pro Jahr: 4-5
offene oder geschlossene Architektur: offen
konservativ oder moderne Bauweise: modern
offene Küche, Kochinsel: ja, offene Wohnküche mit (halb-) Insel
Anzahl Essplätze: 4-6
Kamin: leider nein (Budget)
Musik/Stereowand: nein, wird über Sonos geregelt
Balkon, Dachterrasse: nein
Garage, Carport: am liebsten Garage, wird aber aus Budgetgründen wohl ein Carport. Aber erst 1-2- Jahre nach Einzug
Nutzgarten, Treibhaus: vielleicht kleiner Nutzgarten für Kräuter an Küche
weitere Wünsche/Besonderheiten/Tagesablauf, gern auch Begründungen, warum dieses oder das nicht sein soll:
Ankleide für Schlafzimmer.
Dusche im Gäste-Bad.
Speisekammer wäre super, aber momentan platztechnisch nicht drin.

Hausentwurf
Von wem stammt die Planung:
-Planer eines Bauunternehmens
-Architekt
Was gefällt besonders? Warum?
Offener Wohn-Ess Bereich mit vielen Fenstern.
Küche soll Mittelpunkt sein, da wir viel Kochen und oftmals auch mit Freunden (später mit unseren Kiddies )
Gerade Treppe ist für uns ein Muss und gefällt uns sehr.
Galerie im OG mit Blicke aufs Feld.
Fensteranordnung im gesamten Haus sehr harmonisch

Was gefällt nicht? Warum?
Flur, weil wir nicht wissen, ob der vielleicht zu eng/klein ist
Größe des Badezimmers. Wir sind keine Menschen, die sich lange im Bad aufhalten, weswegen wir auch kein großes Bad brauchen. Wissen aber nicht, ob 8m² zu klein sind.
Zu wenig Abstellraum?

Preisschätzung lt Architekt/Planer: ca. 320.000€. einige Mehrkosten sind schon im Preis enthalten (Raffstores im EG, Seitenteil Eingangstür, mehr Steckdosen, Regendusche, etc.)
Persönliches Preislimit fürs Haus, inkl Ausstattung: 320.000€, passt also ganz gut
favorisierte Heiztechnik: Luft-Wasser-Wärmepumpe

Wenn Ihr verzichten müsst, auf welche Details/Ausbauten
-könnt Ihr verzichten:
Tür von Ankleide zu Badezimmer
Walmdach nicht zwingend, kann auch ein Satteldach sein. Hier spielt eher das Budget eine Rolle
-könnt Ihr nicht verzichten:
Gerade Treppe
Galerie OG
Großes, offenes WZ mit Kochinsel
Gästezimmer/Büro
Ankleide
Dusche im Gäste-WC

Warum ist der Entwurf so geworden, wie er jetzt ist? ZB
Entwurf von Architektin nach unseren Wünschen:
Eigentlich sind all unsere Wünsche erfüllt wurden.
Was macht ihn in Euren Augen besonders gut oder schlecht?
Sehr offen finden wir super.
Fensteranordnung sehr harmonisch und optisch ansprechend.
Durch die gerade Treppe und Galerie geht einiges an Wohnraum verloren.

Was ist die wichtigste/grundlegende Frage zum Grundriss in 130 Zeichen zusammengefasst?

Das Haus entspricht eigentlich unsere Wünschen.
Sind die Größen der Zimmer realistisch? Offene Küche und Treppenhaus wegen Essensgerüche bzw. Lautstärke empfehlenswert?
Haben wir zu naiv (Platzverhältnisse) geplant?
 
M

Maria16

Hallo!
Auf den ersten Blick schaut das Haus sehr hübsch aus! Auf den zweiten und dritten stell ich mir aber die Frage, ob einige Maße nicht zu beengt sind:

Zwischen den kleiderschränken in der Ankleide bleibt nur etwa ein Meter Platz. Viele finden das zu wenig.
Aufm Klo im OG sitzt man sehr eingezwängt zwischen Duschwand und Wanne. Soll das eine gemauerte Wand werden? Bei einem Meter Dusche (Innenbreite) bleibt für Wanne und WC nicht mehr viel übrig. :-(
Aus der Dusche wird es übrigens gerne mal vorne rausspritzen, falls dort keine Tür hinkommt.
Ehrlich gesagt finde ich, dass dem Bad die zwei Türen Schäden und würde bei der Hausgröße auf eine Ankleide eher verzichten (stattdessen den Platz Bad und Schlafzimmer zuschlagen).

Auch in Gäste-WC wird's eng. Bei der gezeigten Anordnung dürfte eine nach außen öffnende Duschtür nicht mehr aufgehen bzw. gegen das Waschbecken schlagen.

Warum gibt es auf der Galerie einen Arbeitsplatz und unten ein Büro? Für Gäste dürfte letzteres etwas klein sein (zeichnet euch selber mal maßstabsgetreu Möbel ein).
Eine Kinderzimmertür unmittelbar neben der Treppe halten manche Leute für gefährlich. Ich selber bin trotz Schlafwandeln nie runtergefallen, fände es mit so wenig Abstand aber auch nicht so toll. Wenn der obere Arbeiteplatz weg kann, könnte man die Türe noch etwas Abrücken.

Die vielen bodentiefen Fenster werden euch Stellplatz kosten. Außer euch stören Möbel davor nicht...
Leider hab ich keinen Nordpfeil gesehen, Kind 1 könnte evtl. etwas dunkel werden.

Interessant finde ich, dass in der Visualisierung der Gartentisch gleich aufm Rasen steht. Nähe zur Küche finde ich super, aber vermutlich landet der Tisch dann doch eher auf der befestigten Terrasse.

Bei der Haustür wird's vermutlich mit dem Treppengeländer sehr eng, wenn man nicht die Treppe rauf oder zur Garderobe will, sondern direkt Richtung Küche durchgehen will.

Die Küche und Essplatz solltet ihr euch auch mal mit Meterstab auslegen, wie viel Platz da jeweils verbleibt. Die Insel schaut mit z. B. nur recht schmal aus, ich vermute aber, dass ihr euch da eine schöne, tiefe Arbeitsfläche vorgestellt habt?

Hm, jetzt ist es viel viel Text von mir geworden. Auch wenn ich einige Dinge sehr eng finde, gefällt mir der Grundriss irgendwie doch sehr gut.

Edit: Tipp von mir ist bei Bedenken zum Platz, wirklich alles mit dem Meterstab auszumessen. Wie breit ist ein Tisch, wie viel Platz braucht es mit Stühlen usw. Und auch gerne noch mal durch Musterhäuser gehen und dort Räume ausmessen, die vergleichbare Maße haben könnten. In einem Raum stehen hilft oft beim besseren Vorstellen.
 
kaho674

kaho674

Erstmal möchte ich sagen, ich find den Grundriss eigentlich gut gelungen. Die brennenden Fragen hast Du schon selbst gut erkannt. Für 2 Personen passt es, ab 3 wird's eng. Und mit Bobbycar und Kinderwagen seh ich schwarz.

Der Technikraum ist jetzt schon voll. Garderobe und Entree sind viel zu winzig. Das wird ein lebenlanges Gedrängel im Flur - wohin mit alle den Sachen und Schuhen, Taschen, Schlüsseln, Handschuhen, Mützen und Menschen, die sich da knäulen?

Am Ende landet alles in dem kleinen Arbeitsraum - da wette ich mein Haus darauf.

Wär es meins, gäbe es keinen Gästeraum, dafür einen großzügigen Eingangsbereich mit Garderobe und schlichtem WC - der Hausgröße angemessen. Arbeitsplatz ist ja oben noch einer.
 
O

Otus11

OG Ankleide:
2 x Türen zum Schlafzimmer und Bad streichen, statt derer nur 1 x zum Flur.
Schafft in der (schmalen) Ankleide Platz für 2 x 1m Wandschrank (ggf. als Lager für Putzeimer & Co). Im Bad ergibt sich dadurch auch hinter der Tür Platz für Handtuch-Heizkörper.

Wo wird Wäsche gewaschen und (wie) getrocknet?
 
H

haydee

Der Grundriss sieht gut aus. Anmerkungen wo es hackt habt ihr schon einige bekommen.

Zeichnet bitte überall eure richtigen Möbel oder die Wunschmöbel ein.

Garderobe/Eingang finde ich zu klein bzw. nicht gut gelöst. Ihr kommt zur Türe rein und steht fast auf der Treppe.
Stellt euch mal vor ihr kommt mit einem Korb voller Einkäufe oder einer Getränkekiste, müßt mit dem Fuß oder Ellbogen die Türe zu bekommen um weiter zu laufen. Geht sicherlich, im eigenen Haus hätte man es doch gerne bequemer. Ebenfalls lauft ihr immer durch den Schmutzbereich - der mit Kindern zwangsläufig schmutziger wird.
Dazu kommen noch mehr Schuhe, Kinderwagen, MaxiCosi, Wickeltasche etc.

Haustechnik/Hauswirtschaft wird sehr eng, zumal ihr den noch als Abstellraum teilweise nutzen wollt. Unsere Luft-Wasser-Wärmepumpe hat eine Stellfläsche von fast 2 Quadratmeter, der Sicherungskasten ist 1,4 m auf 1,2 m und braucht glaube ich 1,4 m Abstand zur gegenüberliegenden Wand. Egal an diese Wand geht kein Regal. Wäschetrocker, Waschmaschine und der Wäscheberg brauchen ebenfalls Platz. Und Wäsche wird mit Kindern mehr, sehr viel mehr.

Im Bad fehlt auch Platz für einen Schrank. Bei 2 Personen mehr braucht ihr irgendwann den doppelten Platz. Bei Kinderwunsch: es paßt keine Babybadewanne und kein Wickeltisch rein höchstens über die Badewanne. Das ist wirklich nur eine Anmerkung gefühlt wickelt und badet jeder seine Babies anders.
 
Zuletzt aktualisiert 17.11.2025
Im Forum Grundrissplanung / Grundstücksplanung gibt es 2535 Themen mit insgesamt 87923 Beiträgen


Ähnliche Themen zu Stadtvilla mit gerader Treppe, offene moderne Bauweise, 140m²
Nr.ErgebnisBeiträge
1Grundriss Einfamilienhaus 170qm Tipps und meinungen 21
2Planung Gäste-WC im Neubau - Wie groß muss es sein? (DIN?) - Seite 14107
3Grundriss Stadtvilla mit Walmdach ca. 170 qm 61
4alternativer Grundriss Bungalow 140m² 84
5Grundriss Familienhaus in Randlage mit freien Sicht - Seite 22153
6Anregungen zum Grundriss Einfamilienhaus ca. 175 qm, Satteldachhaus - Seite 12167
7Grundriss - Auf der Suche nach Tipps und Ideen von Experten 11
8Grundriss Meinungen Einfamilienhaus 140qm 2 Vollgeschosse - Seite 492
9Grundriss - Anregungen & Kritik erwünscht! 26
10Außenwand verschieben im Grundriss? 33
11Einfamilienhaus für 4 Personen - Meinungen - Seite 18250
12Gäste-WC (1,65qm) und Bad (4,88qm) Sanierung 21
13Grundrissplanung Einfamilienhaus 164qm / 2 Vollgeschosse Optimierung 67
14Fenster / Türen / Garderobe 13
15Meinungen f. Grundriss Einfamilienhaus ca. 160qm - Seite 229
16Ideen zum Grundriss und evtl. noch Tipps? 45
17Grundriss Einfamilienhaus mit Doppelgarage 15
18Grundriss in optimierter Form - eure Meinung ist gefragt! 10
19Unser Grundriss-Eure Meinung 32
20Grundriss Stadtvilla 160 qm, ohne Keller - Eure Meinungen dazu? 167

Oben