Winterkind
Hallo ihr Häuslebauer,
irgendwie habe ich mich schon lange auf diesen Moment gefreut. Der Grundriss steht zu 90 % und ich darf ihn hier zeigen. Auf eure Meinungen bin ich wirklich gespannt. Man tüftelt ja irgendwie immer nur selber daran rum. In unserem Freundeskreis gibt es kaum Häuslebauer, daher legen wir doch Wert auf das Feedback hier im Forum. Danke vorab!
Bebauungsplan/Einschränkungen
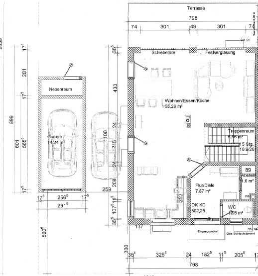
Gefordert werden zwei Garagenstellplätze. Die andere Doppelhaushälfte steht schon.
Größe des Grundstücks
383 m²
Lage
kein Hang, ruhige Neubausiedlung
Geschossigkeit
2,5
Dachform
Satteldach
Anforderungen der Bauherren
Stilrichtung, Dachform, Gebäudetyp
offen, modern, Doppelhaushälfte
Keller, Geschosse
KG, EG, OG, DG
Anzahl der Personen, Alter
3 Personen
35, 31 Jahre mit Baby
Raumbedarf im EG, OG
EG: WZ, Esszimmer, offene Küche, Abstellraum, Gäste-WC
OG: Schlafzimmer, 2 Kinderzimmer, Bad
Schlafgäste pro Jahr
öfters über einen längeren Zeitraum, da Familie weit weg wohnt
Architektur
+ helle Räumlichkeiten mit viel Licht, Ausblick auf ein unbebautes Feld
+ moderne, schlichte Bauweise
+ offene Küche mit Kochinsel
Kamin
nein
Musik/Stereowand
nein
Balkon, Dachterrasse
nein
Garage
Einzelgarage mit Carport mit Nebenraum für Geräte und Fahrräder. Baubeschreibung verlangt zwei Stellplätze/Garagen
Nutzgarten, Treibhaus
nein
weitere Wünsche/Besonderheiten/Tagesablauf
KFW 55, Fußbodenheizung, Luft-Wärme-Pumpe
Kamin wird noch aus dem Grundriss entfernt.
Hausentwurf
Von wem stammt die Planung?
Bauingenieur
Was gefällt nicht?
- Garage: Verlangt werden zwei Garagen. Wir haben einen Tiguan und finden, dass die Garage zu klein ist. Eine Doppelgarage wäre zu schade, da sie den Tageslichteinfall ins Wohnzimmer verhindert. Daher entschieden wir uns für eine Garage mit Carport. Andere Ideen?
- Unklar sind die Fenster in der Küche. Wir überlegen alternativ ein Eckfenster zu machen oder es so zu belassen, aber rechts zwischen Kochinsel und Küchenzeile das Fenster bodenlang zu machen. Haken: Einblicke von Außen (Spaziergänger etc)
- DG: einen offenen Raum oder lieber zwei Räume: Gästezimmer und Büro?!
Anmerkung: Die Türen im OG habe ich mit meinen bescheidenen Photoshopkenntnissen etwas verändert (Winkel). Da wir dies so dem Zeichner als Änderungswunsch geben wollen. Die genauen Winkel etc. sind ungefähr gesetzt. Ich hoffe, man versteht, was gemeint ist.
Wir sind auf euer Feedback sehr gespannt
ICH DANKE EUCH!
.
irgendwie habe ich mich schon lange auf diesen Moment gefreut. Der Grundriss steht zu 90 % und ich darf ihn hier zeigen. Auf eure Meinungen bin ich wirklich gespannt. Man tüftelt ja irgendwie immer nur selber daran rum. In unserem Freundeskreis gibt es kaum Häuslebauer, daher legen wir doch Wert auf das Feedback hier im Forum. Danke vorab!
Bebauungsplan/Einschränkungen
Gefordert werden zwei Garagenstellplätze. Die andere Doppelhaushälfte steht schon.
Größe des Grundstücks
383 m²
Lage
kein Hang, ruhige Neubausiedlung
Geschossigkeit
2,5
Dachform
Satteldach
Anforderungen der Bauherren
Stilrichtung, Dachform, Gebäudetyp
offen, modern, Doppelhaushälfte
Keller, Geschosse
KG, EG, OG, DG
Anzahl der Personen, Alter
3 Personen
35, 31 Jahre mit Baby
Raumbedarf im EG, OG
EG: WZ, Esszimmer, offene Küche, Abstellraum, Gäste-WC
OG: Schlafzimmer, 2 Kinderzimmer, Bad
Schlafgäste pro Jahr
öfters über einen längeren Zeitraum, da Familie weit weg wohnt
Architektur
+ helle Räumlichkeiten mit viel Licht, Ausblick auf ein unbebautes Feld
+ moderne, schlichte Bauweise
+ offene Küche mit Kochinsel
Kamin
nein
Musik/Stereowand
nein
Balkon, Dachterrasse
nein
Garage
Einzelgarage mit Carport mit Nebenraum für Geräte und Fahrräder. Baubeschreibung verlangt zwei Stellplätze/Garagen
Nutzgarten, Treibhaus
nein
weitere Wünsche/Besonderheiten/Tagesablauf
KFW 55, Fußbodenheizung, Luft-Wärme-Pumpe
Kamin wird noch aus dem Grundriss entfernt.
Hausentwurf
Von wem stammt die Planung?
Bauingenieur
Was gefällt nicht?
- Garage: Verlangt werden zwei Garagen. Wir haben einen Tiguan und finden, dass die Garage zu klein ist. Eine Doppelgarage wäre zu schade, da sie den Tageslichteinfall ins Wohnzimmer verhindert. Daher entschieden wir uns für eine Garage mit Carport. Andere Ideen?
- Unklar sind die Fenster in der Küche. Wir überlegen alternativ ein Eckfenster zu machen oder es so zu belassen, aber rechts zwischen Kochinsel und Küchenzeile das Fenster bodenlang zu machen. Haken: Einblicke von Außen (Spaziergänger etc)
- DG: einen offenen Raum oder lieber zwei Räume: Gästezimmer und Büro?!
Anmerkung: Die Türen im OG habe ich mit meinen bescheidenen Photoshopkenntnissen etwas verändert (Winkel). Da wir dies so dem Zeichner als Änderungswunsch geben wollen. Die genauen Winkel etc. sind ungefähr gesetzt. Ich hoffe, man versteht, was gemeint ist.
Wir sind auf euer Feedback sehr gespannt
ICH DANKE EUCH!
.
Zuletzt bearbeitet: