Hausbau - Ratgeber
Bauherrenhilfe
- Bauherrenhilfe vor Vertragsabschluss
-- Warum einen unabhängigen Baubetreuer?
-- Vertragsgrundlagen
-- Bausumme
-- Zahlungsplan zur Kostenkontrolle
-- Pflichten des Bauherren vor Vertragsabschluss
-- Unterlagen beim Hausbau vor Vertragsabschluss
- Bauherrenhilfe nach Vertragsabschluss
-- Bauantrag bei Behörden
-- Bau-Genehmigungsverfahren bei Baubehörden
-- Bauspezifische Versicherungen
-- Bauzeitenplan
-- Baubeginn - die Letzten Pflichten der Bauherrschaft
- Bauherrenhilfe während der Bauzeit
- Gewährleistungsansprüche
- Bauabnahme
Baufinanzierung
- Baufinanzierung - Allgemeine Fragen
- Kreditarten
- Kredit-Konditionen
- Bausparen
- Staatliche Förderungen
- Verkehrswert
- Haushaltsrechnung und Bonität
Hausbau Planung
- Haustypen
- Hausbau Vorbereitungsarbeiten
- Das Baugrundstück
- Baugrund beim Hausbau
- Baurecht
- Gebäudeschutz
- Erdarbeiten und Wasserhaltung
- Stützmauern
- Einfriedung
- Untergeschoss
- Kanalisation
- Tragende Elemente
- Nichttragende Innenwände
- Fundation / Fundament
- Deckenkonstruktionen
- Dächer
- Kaminanlagen
- Treppen Rampen Leitern
- Dachbeläge und Spengler
- Fenster
- Sonnen und Wetterschutz
- Aussenputze
- Einbauten, Küchen, Türen
- Bodenbeläge und Unterlagsböden
- Parkett
- Gips, Wand, Decke
Haustechnik und Energie
- Heiztechnik
- Lüftung und Klimatechnik
- Sanitärtechnik
- Elektrotechnik
- Erneuerbare Energie
Whirlpools / Jacuzzi
Hausbau Magazin
- Baufinanzierung trotz Krise?
- Das Blockhaus
- Moderne Dämmstoffe im Vergleich
- Erker Vor- und Nachteile
- Glasflächen beim Hausbau
- Günstig ein Haus Bauen
- Mediterraner Hausbaustil
- Mehrgenerationenhaus
- Moderne Architektur
- Gartengestaltung leicht gemacht
- Traditioneller Ziegelbau
- Villa als höchster Traum
- Im Eigenheim Ruhestand geniessen
- Altbau sanieren
- Kauf einer Holzgarage
- Immobilienmakler
- Arbeitshandschuhe für den Winter
- Zuhause verschönern
- Outdoor-Plissees
- Schlafzimmer planen
- Terrassenüberdachung
- Wohngebäudeversicherung
- Zaunarten und Eigenschaften
- Hauseingang gestalten
- Der perfekte Grundriss
- Sparsamer heizen im Altbau
- Einfamilienhaus smart finanzieren
- Planung einer PV-Anlage
- Neues Haus
- Immobilienfinanzierung
- Installation einer Photovoltaikanlage
- Asbest erkennen und entfernen
- Sauna im Fokus - Wellness zuhause
- Erfolgreich vermieten
- Die perfekte Winterbekleidung
- Das Niedrigenergiehaus
- Der April und seine Stürme
- Architektonische Vielfalt
- Ökologisch und nachhaltig bauen
- Das perfekte Schlafzimmer
- Nachhaltige Energieversorgung
- Zukunftsorientiert bauen
- Nachhaltigkeit beim Hausbau
- Tiny Houses
- Wärmepumpen als nachhaltige Heizvariante
- Maßgeschneiderten Kleiderschrank
- Der richtige Baukredit
- Ratgeber für erfolgreichen Hausbau
- Haus als Altersvorsorge
Do-it-yourself Anleitungen
- Verlegeanleitung für Bodenbeläge und Parkett
- Bodenbeläge und Parkett reinigen und pflegen
- Malerarbeiten am Haus
- Garten Tipps
- Umzug und Reinigung

ᐅ Erster Grundriss Einfamilienhaus - Eure Ideen auch zum Grundstück


Erstellt am: 11.01.19 21:48

M
MRN2018
11.01.19 21:48
Hallo zusammen,

wir befinden uns noch relativ am Anfang und hoffen euch im Anschluss alles wichtige aufgeführt zu haben. Wir hoffen auf eure Ideen, gerade auch wie man am besten das Haus inkl. Garage oder Carport (aktuell aus Kostengründen noch offen) auf dem Grundstück platziert um möglichst wenig Platz für Einfahrt/Hof zu benötigen. Das Haus kann unter Berücksichtigung der normalen 3 Meter Begrenzung frei auf dem Grundstück platziert werden. Wir waren schon bei ein paar GU und haben bisher einen Vorschlag erhalten. Dieser hat uns so noch nicht wirklich zugesagt und wurde von uns angepasst. Unsere grobe Idee haben wir euch als Bild angehängt. Fenster haben wir erst einmal nicht berücksichtigt. Von Seiten der GU kommen bisher irgendwie kaum Vorschläge auch was die grundsätzliche Platzierung angeht. Wir würden gerne zu den weiteren Gesprächen mit entsprechend genaueren Vorstellungen des Grundrisses gehen und hoffen auf ein paar Anregungen von Euch.

Bebauungsplan/Einschränkungen
Größe des Grundstücks: 1040 qm
Hang: 3 Meter ansteigend über die komplette Grundstücksfläche
Grundflächenzahl: 0,4
Geschossflächenzahl: 0,5
Baufenster, Baulinie und -grenze:
Randbebauung: Garage oder Carport
Anzahl Stellplatz: 2
Geschossigkeit: 1,5
Dachform: Satteldach
Stilrichtung: modern
Ausrichtung
Maximale Höhen/Begrenzungen
weitere Vorgaben

Anforderungen der Bauherren
Stilrichtung, Dachform, Gebäudetyp: Satteldach
Keller, Geschosse: mit Keller und 1,5 - 2 (je nachdem was Sinn macht)
Anzahl der Personen, Alter: 2 Erwachsene, 1 Baby
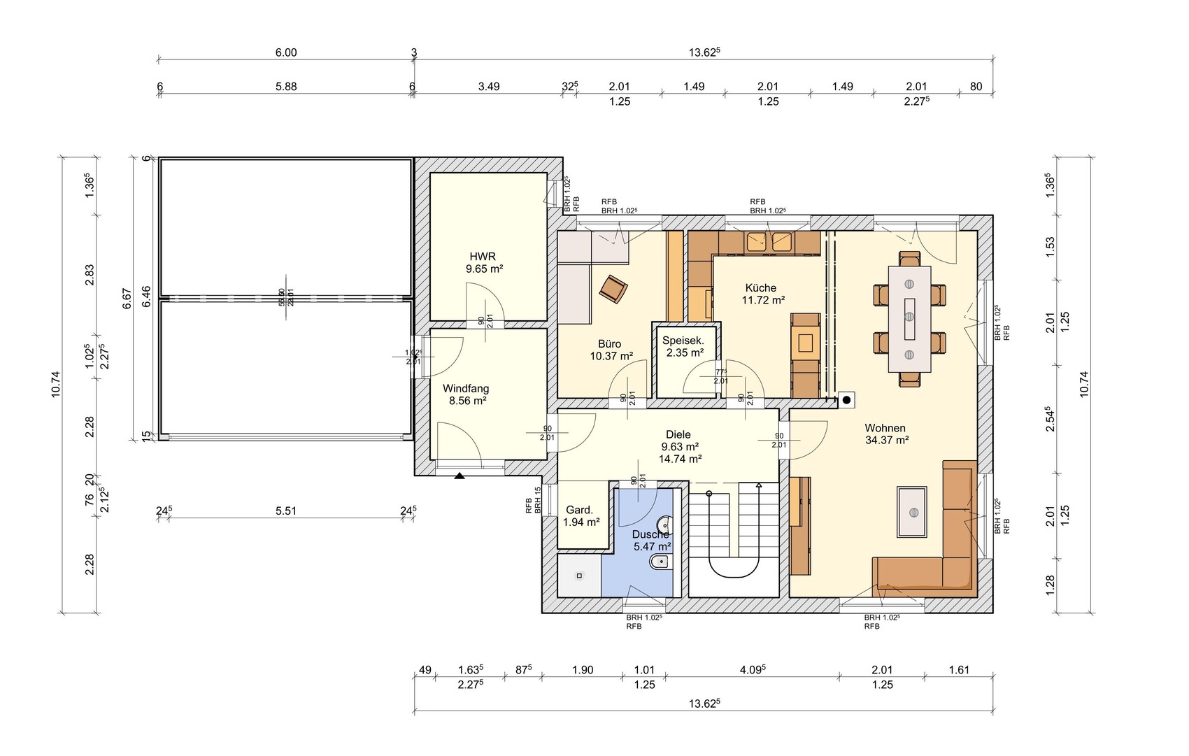
Raumbedarf: EG: Wohn- Essbereich, Küche mit Speis, Arbeitszimmer, Gästebad, Abstellraum unter Treppe
OG: 2 Kinderzimmer, Bad, Schlafzimmer mit Ankleide
Büro: Familiennutzung oder Homeoffice? Homeoffice
Schlafgäste pro Jahr: nicht relevant
offene oder geschlossene Architektur: eher offen
konservativ oder moderne Bauweise: modern
offene Küche, Kochinsel: Kochinsel
Anzahl Essplätze: 6
Kamin: ja
Musik/Stereowand: nein
Balkon, Dachterrasse: nein
Garage, Carport : Wunsch: Doppelgarage mit Geräteraum - am allerliebsten mit direktem Zugang ins Haus. Wird aber vermutlich auf Grund der Grundstücksform schwierig werden?Aus Kostengründen ist aber auch ein Carport mit anschliessendem Geräteraum denkbar.
Nutzgarten, Treibhaus: beides
weitere Wünsche/Besonderheiten/Tagesablauf, gern auch Begründungen, warum dieses oder das nicht sein soll: Kamin als „Abtrennung“ zwischen Ess- und Wohnbereich

Hausentwurf
Von wem stammt die Planung: von uns selbst und GU
Was gefällt besonders? Warum?
EG: Küchenbereich ist vom Wohnzimmer nicht einsehbar, Trennung Wohn-/Essbereich durch Kamin, relativ großzügiges Wohnzimmer, Dusche im Gästebad nicht direkt von der Türe einsehbar. Helles Arbeitszimmer. Treppe als Podesttreppe und nicht direkt neben der Haustüre.
OG: gleich große Kinderzimmer, T-Lösung im Bad, von der Tür im Schlafzimmer ist nicht direkt die Ankleide einsehbar.
Was gefällt nicht? Warum? Diele ist wenig einfallsreich und man kann bei offener Zimmertüre von der Haustüre direkt in den Wohnbereich schauen. Allgemein ist der Grundriss irgendwie gefühlt noch nicht ganz rund.

Preisschätzung lt Architekt/Planer: -
Persönliches Preislimit fürs Haus, inkl Ausstattung: 350.000
favorisierte Heiztechnik: luftwärmepumpe

Wenn Ihr verzichten müsst, auf welche Details/Ausbauten
-könnt Ihr verzichten: * Keller (dafür müsste aber im EG noch ein entsprechender Technikraum untergebracht werden. Hier ist die Idee irgendwie die Garage direkt anzubauen und den Technikraum inkl. Windfang zwischen Garage und Haus zu legen.
*Doppelgarage dafür Carport (jeweils mit Geräteraum)
-könnt Ihr nicht verzichten:

So, wir hoffen wir haben nun an alles gedacht und sind schon ganz gespannt .
Viele Grüße aus der Rhön

Grundriss eines Hauses: linke Seite Küche, Wohnbereich, Arbeitszimmer; rechte Seite Kind-Zimmer, Bad.


Baugebiets-Lageplan: rechteckige Gebäude, Straßenraster, Kreisverkehr, roter X markiert.


Luftaufnahme eines Wohngebiets mit roten Dächern links, Feld rechts, rotes X markiert.
H
haydee
11.01.19 22:49
Wie hoch ist den der Höhenunterschied im Baufenster?
Die 3 Meter sind bestimmt nicht linear.

Bei Hanglage mußt du entweder teuer auffüllen oder du baust mit UG. Das UG kann vollwertiger Wohnraum sein. Dann baust du oben auf den „Keller“ quasi einen Bungalow. Je nachdem wo der Garten ist ist dann im UG z.b Kochen, Essen, Wohnen und oben dann die Schlafräume. (So ist es bei uns auch)

Wie fällt der Hang? Von der Straße fallend oder steigend?
Wo ist die Terrasse geplant?

Ist euer Budget inkl. Baunebenkosten?

Währe schön wenn euer Plan bemaßt wäre.
Zeichne maßstabsgetreu eure Wunschmöblierung ein. Vollständig in allen Räumen.

Zum EG
Die Speisekammer ist so klein, dass noch Nichtmal der Gefrierschrank reinpasst. Würde die Rausnehmen und der Küche zwei Schränke mehr geben.

Garderobe sehr klein.

Zum OG
Bad zu schmal für das T.
Fehlt die Badewanne oder die Waschbecken?

Ankleide Eigentlich zu klein. Es geht ein ca. 4 Meter Schrank rein, am Besten mit Schiebetüren, da die Tiefe fehlt.

Bei welchem GU seit ihr?
Wann wollt ihr Bauen?
Seit grobe Richtung NES oder?
B
boxandroof
12.01.19 01:31
Unser EG ist fast identisch. Technik+Gästebad haben wir da wo Euer Gästebad ist: Treppe und Flur zentraler, Essbereich schmaler.

Speisekammer: unter einer geschlossenen Treppe gegenüber Küche wäre ausreichend Platz für Getränke und Lebensmittel.

Waschmaschine und Trockner?
W
Wickie
12.01.19 06:41
Da fallen mir die gleichen Punkte auf:
Garderobe zu winzig, die Speisekammer macht in der Größe keinen Sinn.
Das Bad ist zu klein für eine T-Lösung und hier würde mir auch definitiv eine Badewanne fehlen (auch mal an später denken und Kinder baden doch auch gerne).

Gefangene Ankleide im Schlafzimmer würde ich so auch nicht machen. Versucht, einen getrennten Zugang vom Flur hinzubekommen. Auch, wenn man sich aktuell nicht gestört fühlt dadurch. Das kann sich ändern (Aufsteh- oder Schlafenszeiten).
M
MRN2018
12.01.19 09:05
Vielen Dank für die ausführliche Antwort.

haydee schrieb:
Wie hoch ist den der Höhenunterschied im Baufenster?
Die 3 Meter sind bestimmt nicht linear.
Bei Hanglage mußt du entweder teuer auffüllen oder du baust mit UG. Das UG kann vollwertiger Wohnraum sein. Dann baust du oben auf den „Keller“ quasi einen Bungalow. Je nachdem wo der Garten ist ist dann im UG z.b Kochen, Essen, Wohnen und oben dann die Schlafräume. (So ist es bei uns auch)

Wie fällt der Hang? Von der Straße fallend oder steigend?
Wo ist die Terrasse geplant?

Das Baugebiet wird erst bis Mai erschlossen, deshalb haben wir leider noch keine genaueren Informationen.

Der tiefste Punkt ist links unten direkt am Kreisel, der höchste rechts oben (also von der Straße aus steigend). Über die gesamte Grundstücksfläche sehen die 3 Meter nun nicht nach extremer Hanglage aus.

Grundsätzlich ist unsere Idee einen Keller zu bauen und diesen vorne heraus nicht komplett einzugraben - so bekommt man z.B. im Hobbyraum trotzdem noch Tageslicht und spart Aushub. Mit dem Aushub der anfällt könnte man dann die restliche Grundstücksfläche evtl. einigermaßen ausgleichen.

Die Terrasse ist Richtung Süden geplant.
haydee schrieb:

Ist euer Budget inkl. Baunebenkosten?

Ja inkl. Baunebenkosten, ohne Grundstück.
Bei diesem Budget und den aktuellen Mondpreisen ist schlüsselfertig natürlich nicht möglich.
Wir überlegen uns evtl. einen geschlossenen Rohbau hinstellen zu lassen und den Rest teilweise selbst umzusetzen (Böden, Streichen, Innentüren).
haydee schrieb:

Währe schön wenn euer Plan bemaßt wäre.
Zeichne maßstabsgetreu eure Wunschmöblierung ein. Vollständig in allen Räumen.

Den "Plan" haben wir selbst gezeichnet, ist also eher eine Skizze. Sobald mal ein endgültiger Plan steht kommen wir gerne auf dich zurück
haydee schrieb:

Zum EG
Die Speisekammer ist so klein, dass noch Nichtmal der Gefrierschrank reinpasst. Würde die Rausnehmen und der Küche zwei Schränke mehr geben.

Der Gefrierschrank ist nicht für die Speis vorgesehen. Die soll nur als Stauraum für Lebensmittel dienen.
haydee schrieb:

Garderobe sehr klein.

Wir waren uns mit dem Bereich der Diele noch nicht ganz sicher, da wir nicht wissen was die Treppe dann wirklich an Platz beansprucht und wie wir den Platz ideal verteilen können.
haydee schrieb:

Zum OG
Bad zu schmal für das T.
Fehlt die Badewanne oder die Waschbecken?

Wir haben uns gegen die Badewanne entschieden und uns diese Entscheidung auch gut überlegt
haydee schrieb:

Ankleide Eigentlich zu klein. Es geht ein ca. 4 Meter Schrank rein, am Besten mit Schiebetüren, da die Tiefe fehlt.

Mal schauen ob wir hier oder da noch ein bisschen Platz herausholen können. Wichtig ist das die Kinderzimmer groß genug sind, notfalls muss das Ankleidezimmer dann komplette gegen einen Schrank getauscht werden.
haydee schrieb:

Bei welchem GU seit ihr?
Wann wollt ihr Bauen?
Seit grobe Richtung NES oder?

Nach Erschließung des Bauplatzes im Mai so schnell wie möglich.
Ja, bauen ganz in der Nähe von NES.

Hauptproblem ist noch Suche nach einem geeigneten GU.
Wir hatten schon einige Beratungsgespräche, vor allem bei den großen Fertighausanbietern hatte bisher noch keiner die Motivation wirklich exakt auf unsere Wünsche einzugehen (80% waren nur darauf aus herauszubekommen was unsere maximal machbare Monatsrate wäre und danach unser Haus zu planen).

Bei den guten Anbietern (in unserem Fall massiv) hat man mittlerweile teilweise Wartezeiten von 1 Jahr und mehr.

Deswegen unter anderem auch der Gedanke das wir einzelne Gewerke selbst vergeben - auch wenn nicht aus der Baubranche kommt hat man in 1 Jahr viel Zeit selbst zu planen und nebenbei das Budget relativ schmal zu halten.
F
face26
12.01.19 10:48
Ohne den Grundriss genau angeschaut zu haben, mache ich mir mehr Sorgen um Euer Budget als um den Grundriss.

Wie viel Quadratmeter sind das? 150?

150 Quadratmeter + Keller, inklusive Baunebenkosten und inklusive Ausstattung? Also Küche usw? In Bayern für 350.000? Inklusive so Späßen wie Kamin? Hanggrundstück?
Da seh ich schwarz...vielleicht hat @Zaba12 da noch einen Kommentar dazu. Vielleicht eine andere Ecke in Bayern aber wenn ich’s richtig im Kopf habe kleiner gebaut, weniger Hang, keine großen Spielereien und deutlich über eurem Budget!
doppelgaragegrundstücksflächekellercarportküchetreppehanglagegästebadankleidekamin