Grundriss-Planung und Platzierung - Einfamilienhaus ca. 200qm auf 900qm Grundstück

4,90 Stern(e) 12 Votes
Zuletzt aktualisiert 22.11.2025
Sie befinden sich auf der Seite 2 der Diskussion zum Thema: Grundriss-Planung und Platzierung - Einfamilienhaus ca. 200qm auf 900qm Grundstück
>> Zum 1. Beitrag <<

S

Samantheus

Vielen Dank für eure Antworten.

Ist denn ein 2-Geschosser erlaubt? Nach der Grundflächenzahl/Geschossflächenzahl Angabe würde ich eher tippen, nein.

Wieviel Qm sind es denn zusammen? Und wo ist Süden (das hab ich bestimmt überlesen)
Laut Bebauungsplan tatsächlich nicht, der ist aber mehrere Jahrzehnte alt und die neueren Häuser im Gebiet sind auch mit 2 Vollgeschossen. Wir waren mit der Skizze schon beim Bauamt und der Mitarbeiter meinte, dass die Ausnahmegenehmigung aus seiner Sicht durchgehen sollte. EG und OG sind ca. 208qm. Der Garten geht zum Südwesten (siehe letztes Bild).

Ich wuerde das Ganze 1 m Richtung Strasse schieben. Der Strassenlaerm ist wegen dem 1 m der gleiche.

Sind auf der Straßenseite keine Laermschutzfenster vorgesehen?
Danke für den Tipp, da werde ich das Unternehmen mal fragen was es diesbezüglich gibt und wie der Aufpreis wäre. Aktuell ist normale 3-fach Verglasung vorgesehen. Wir wollen an der Straße eine hohe Hecke pflanzen und zusätzlich eher wenig Fenster auf der Straßenseite, sodass wir die Hoffnung haben dass dadurch auch wenig Lärm reinkommt.

Aktuell ist das Haus 5m von der Straße weg und die Garage 6m (1m versetzt). Meinst du alles komplett noch 1m Richtung Straße? Also Haus 4m und Garage 5m? Wir wollen gerne die Stellplätze vor der Garage auch als Stellplatz nutzen und haben daher Angst, dass es dann ggf. etwas zu eng wird.

700k doch wohl hoffentlich nur für das Haus inkl. der Integrierten Doppelgarage, oder?
Das ist die Schätzung für Haus und Garage in Schlüsselfertig in KFW 55 Massivbauweise mit Keller. Inklusive aller Innenarbeiten wie Bodenbeläge und Malerarbeiten. Exklusive Grundstück, Außenanlagen, Photovoltaik oder sonstige Sonderwünsche. Inwiefern kommt euch der Betrag komisch vor? Wir hatten Kontakt mit 3 Bauunternehmen, die Schätzungen gingen alle in eine ähnliche Richtung.

Zum bodentiefen Fenster im Schlafzimmer:
Wir haben aktuell auch ein bodentiefes im Schlafzimmer mit Außenrollo und drinnen einem Vorhang. Diese Kombi finden wir eigentlich schön und kommen gut damit klar. Allerdings haben wir aktuell auch keine Nachbarn vor dem Schlafzimmer sondern einen schönen Weitblick. Die Überlegung geht auch dahin ob es von der Außenfassade komisch aussieht wenn man sonst im OG keine bodentiefen Fenster hat und dann nur im Schlafzimmer eben welche mit französischem Balkon.
 
DaSch17

DaSch17

Das ist die Schätzung für Haus und Garage in Schlüsselfertig in KfW 55 Massivbauweise mit Keller. Inklusive aller Innenarbeiten wie Bodenbeläge und Malerarbeiten. Exklusive Grundstück, Außenanlagen, Photovoltaik oder sonstige Sonderwünsche. Inwiefern kommt euch der Betrag komisch vor? Wir hatten Kontakt mit 3 Bauunternehmen, die Schätzungen gingen alle in eine ähnliche Richtung.
Ok. Dann passt's! Wir hatten befürchtet, dass es sich um das All-In-Budget handelt (also inkl. Baunebenkosten + Grundstück + Außenanlage).

Rechne mal mit 2.650 EUR pro m² zzgl. 40 TEUR für die Doppelgarage und 80 TEUR für den Keller. Dann landest Du bei 650 TEUR und hast noch 50 TEUR für Sonderwünsche und sonstige Annehmlichkeiten.
 
hanghaus2000

hanghaus2000

Aktuell ist das Haus 5m von der Straße weg und die Garage 6m (1m versetzt). Meinst du alles komplett noch 1m Richtung Straße? Also Haus 4m und Garage 5m? Wir wollen gerne die Stellplätze vor der Garage auch als Stellplatz nutzen und haben daher Angst, dass es dann ggf. etwas zu eng wird.
Ich meinte doch das Ganze. Fuer mich sind die minimal geforderten 5 m OK. Wenn Ihr aber Fahrzeuge habt die 5 m lang sind dann eben lieber 6 m.
 
S

Samantheus

Hallo zusammen,

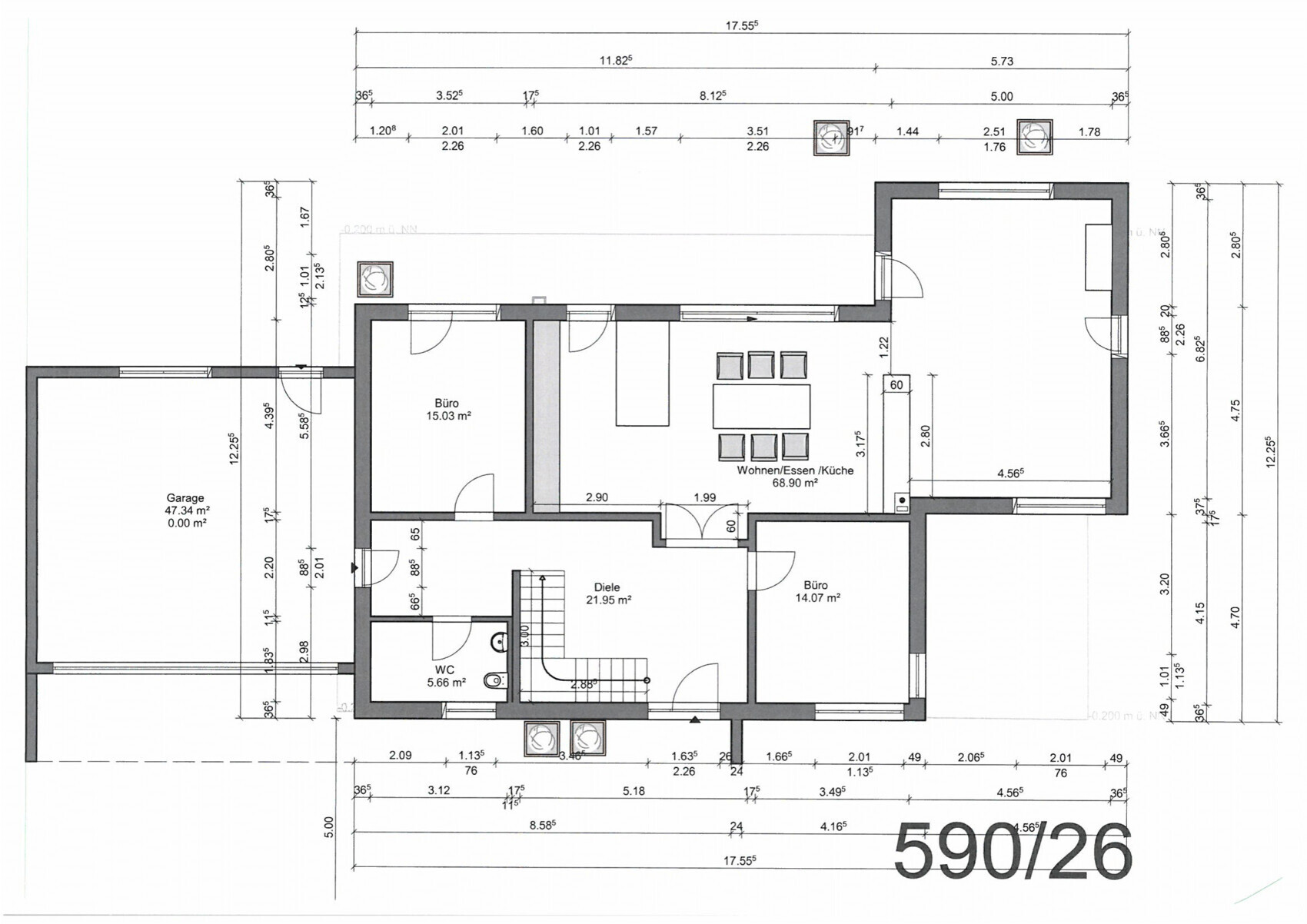
mittlerweile geht die Planung bei uns in die finale Phase, die Eingabeplanung befindet sich gerade in der Erstellung. Wir haben noch ein paar Detailanpassungen am Grundriss vorgenommen, darum habe ich unten noch mal die aktuelle Planung angehängt. Die Garage haben wir jetzt 6m von der Straße entfernt und das Haus 5.20m. Das WC im EG bietet jetzt Platz das später ggf. eine Dusche nachgerüstet werden kann, vorher kann ein Besenschrank rein. Die Fenster wurden noch mal etwas feinjustiert.

Insbesondere bei ein paar Punkten würde uns noch euer Feedback interessieren:
  1. Deckenhöhe: Wir haben aktuell ein Rohbaumaß von 2,625m im EG eingeplant. Aufgrund des relativ großen Koch/Ess/Wohn-Raums sind wir am überlegen ob wir eine Erhöhung auf 2,75m machen sollten. Die Zusatzkosten für Mauerreihe und Erhöhung der Fenster / Türen um ebenso 12.5cm würde ca. 9k EUR kosten. Haltet ihr das bei dem Grundriss für sinnvoll? Oder lieber das Geld sparen und besser in anderes investieren?
  2. Ofen: Die eingezogene Wand zwischen Wohn und Essbereich (ggf. nicht Deckenhoch, sondern nur halbhoch) soll ein bisschen als Raumteiler fungieren und mit einem Kamin enden. Der Ofenbauer hat uns bei einem Holzkamin einen Tunnelkamin mit 2 Scheiben empfohlen, und wenn wir auf 3 Scheiben gehen wollen lieber zu einem Gaskamin geraten (3 Scheiben Holzkamin hätte zu hohe Leistung für die Raumgröße, oder man muss sehr viel reinigen weil man zu wenig schürt). Ein Gasanschluss liegt am Haus an, daher tendieren wir aktuell dazu (ist auch nicht so arbeitsintensiv). Seht ihr hier irgendwelche Probleme? Was wäre euer Tipp?
  3. Klimatisierung: Die Rückseite (Garten) geht Richtung SüdWest, Jalousien bzw. Rollos sind vorgesehen. Da das Büro zum Garten jedoch in Dauernutzung ist mit viel technischem Gerät was eine starke Hitze erzeugt, soll dieser Raum auf alle Fälle klimatisiert werden. Wir sind am überlegen ob wir in dem Zuge gleich den Wohn/Ess/Koch Raum, den Elternschlafraum oder auch die Kinderzimmer gleich mit klimatisieren. Würdet ihr dazu raten das gleich mitzumachen, da es dann leichter zu planen und potenziell günstiger ist? Oder lieber erstmal nur das must-have (Büro) und schauen wie die Hitze Entwicklung ist und dann ggf. nachrüsten? Was denkt ihr wieviel teurer ca. eine Nachrüstung wäre im Vergleich zu gleich mitmachen? Aktuell haben wir noch keine Angebote vorliegen.
  4. Photovoltaik: Das Südwestdach möchten wir gerne mit Photovoltaik bestücken. Durch viele technische Geräte, Luft-Wasser-Wärmepumpe, Klimatisierung und zukünftig potenziell E-Auto ist der Stromverbrauch eher hoch, aber aktuell natürlich sehr schwer zu schätzen. Wir haben ein Angebot für eine ca. 10.5kWp Anlage für ca. 15k EUR ohne Stromspeicher und ca. 24k EUR mit 13.5kWh Stromspeicher. Würdet ihr den Speicher mitnehmen? Oder lieber noch warten bis die Technologie weiter ist und dann ggf. nachrüsten?

Fällt euch ansonsten noch etwas auf was ihr kritisch hinterfragen oder ändern würdet?

Vielen Dank vorab!

Viele Grüße
Sam


Außenansicht:

Moderne 3D-Renderung eines weißen, zweigeschossigen Hauses mit Garten und Bäumen.

Modernes zweigeschossiges weißes Wohnhaus mit großen Fenstern, Terrasse und grünem Garten.



Grundrisse:

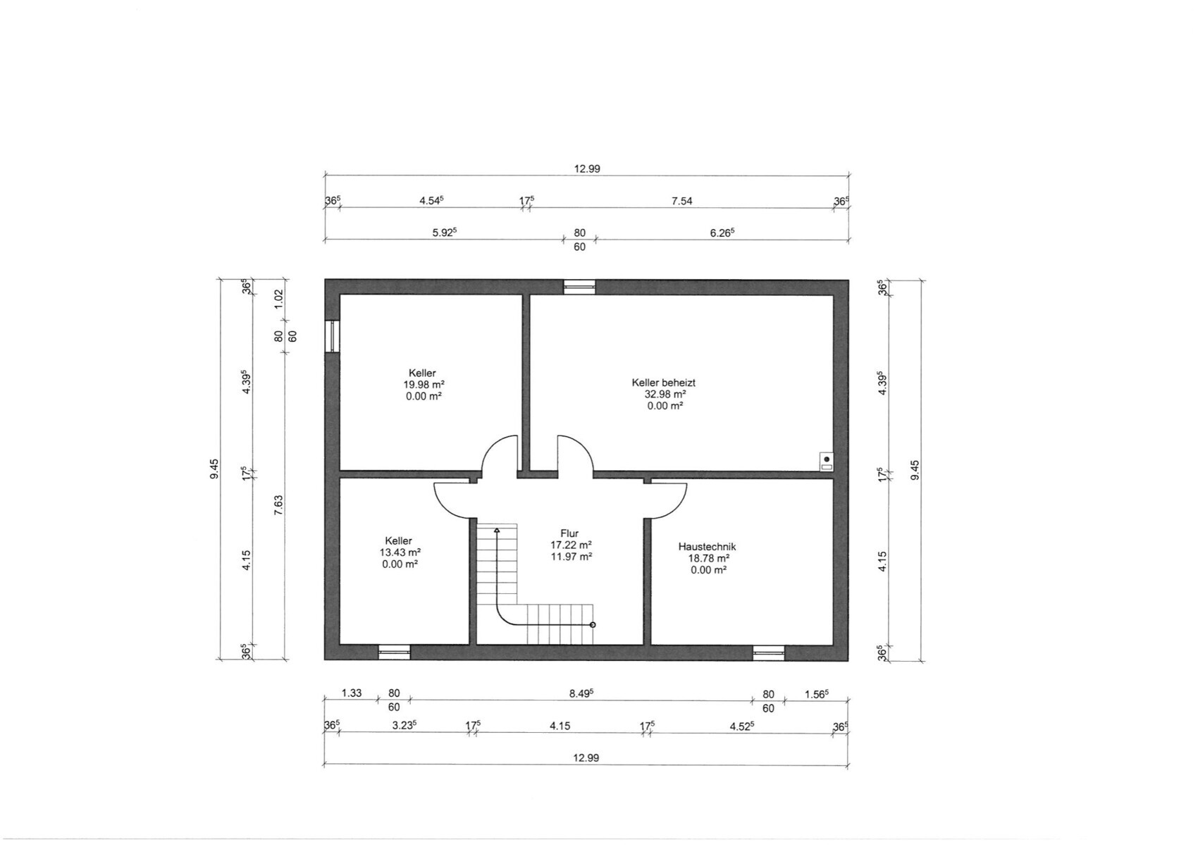
Grundriss Kellergeschoss mit drei Kellerräumen, Flur, Haustechnik und Treppe.

2D-Grundriss eines Hauses mit Garage, Büro, Wohnen, Essen und Küche

Grundriss eines Hauses: zwei Kinderzimmer, Schlafen/Ankleide, zwei Bäder, Flur, HWR und Treppe.
 
kbt09

kbt09

Das WC im Elternbad über der überschnittenen Treppe soll wie funktionieren?

262 cm Rohbauhöhe wird welche Fertigraumhöhe? 250 cm?

Im EG ganz schön großer Dielenbereich.
 
S

Samantheus

Das WC im Elternbad über der überschnittenen Treppe soll wie funktionieren?

262 cm Rohbauhöhe wird welche Fertigraumhöhe? 250 cm?

Im EG ganz schön großer Dielenbereich.
WC: Das soll laut Planer kein Problem sein, die Überschneidung in der Zeichnung liegt wohl nur an dem Programm. In echt soll da einfach ganz normal die Wand verlaufen.

Fertighöhe: Etwas geringer, 247-248 rum würde ich rechnen.

Diele: Ja, stimmt. Darum haben wir schon den Eingang zum Wohnraum etwas in den Dielenbereich reingezogen. Hast du vielleicht noch eine gute Idee?
 
Zuletzt aktualisiert 22.11.2025
Im Forum Grundrissplanung / Grundstücksplanung gibt es 2535 Themen mit insgesamt 87982 Beiträgen


Ähnliche Themen zu Grundriss-Planung und Platzierung - Einfamilienhaus ca. 200qm auf 900qm Grundstück
Nr.ErgebnisBeiträge
1Einfamilienhaus ohne Keller - Diskussion Grundriss 19
2Grundriss Einfamilienhaus ~165m² plus Keller - Seite 6165
3Grundriss Einfamilienhaus 2 Stockwerke ohne Keller 11
4Grundriss Einfamilienhaus ca. 190qm mit Keller auf Millimeterpapier 78
5Grundriss kleiner Nordhang Einfamilienhaus 170m2 20
6Grundriss Einfamilienhaus mit Keller 19
7Grundriss Einfamilienhaus 2 Vollgeschosse +Keller ca. 130m² Wohnfläche 30
8Grundriss-Entwurf: Einfamilienhaus mit Keller; 560qm Grundstück - Seite 365
9Grundriss, Hausanordnung EFW 150m2, Keller + Einliegerwohnung - Feedback erwünscht - Seite 967
10Erster Grundriss Einfamilienhaus - Eure Ideen auch zum Grundstück - Seite 333
11Einfamilienhaus 150m2 Grundriss + Planung auf dem Grundstück 24
12Grundriss Einfamilienhaus 133qm Grundstück 850qm - Seite 216
13Bebauung Grundstück - Keller ja oder nein? 75
14Grundriss Einfamilienhaus 155m², ohne Keller, 3 Kinderzimmer, 1 Büro 38
15Grundrissoptimierung Einfamilienhaus mit Keller auf kleinem Grundstück - Seite 3178
16Grundriss Einfamilienhaus mit Keller und Garage 50
17Grundriss zu Einfamilienhaus erwünscht (versetztes Pultdach) 14
18Grundriss im Villenstil - Seite 221
19Meinungen zu unserem Grundriss? 19
20Grundrissplanung Bungalow mit Keller an leichter Hanglage - Seite 226

Oben