Grundrissvorschläge - Was geht was fällt durch?

5,00 Stern(e) 5 Votes
Zuletzt aktualisiert 20.11.2025
Sie befinden sich auf der Seite 46 der Diskussion zum Thema: Grundrissvorschläge - Was geht was fällt durch?
>> Zum 1. Beitrag <<

11ant

11ant

Die Intention des Beitrags liegt darin, zu sehen ob jemand noch gravierende Fehler oder Mängel findet..
Groß verändert würde nichts, das stimmt..
Das wäre nett gewesen Deinem Auferstehungsbeitrag voranzustellen.

Ist nur bis jetzt keinem aufgefallen, dass das zu knapp ist mit dem Fenster..
Da bin nun ich zu faul zurückzublättern, aber das wurde bestimmt auch schon´mal angesprochen.

Es wird schon eine Lösung geben..
Ich sehe darin kein Drama, solange es kein King Size Schrank werden soll.

In Würdigung der im Verlauf der Threadgeschichte schon durchgekauten Details sage ich "Bau das jetzt so", mehr als 95 % "perfekt" wird es nun nicht mehr, aber das paßt schon. Wir haben diverses besprochen, die Unterschiede zum Urentwurf zeigen daß die Diskussion auch etwas gebracht hat, und prinzessinnenperfekt muß es m.E auch nicht werden.
 
E

Ev-Marie86

Ich hab mit das ganze jetzt noch mal durchgelesen.. Das war ursprünglich.. Und auf das Fenster hat nachher niemand mehr geachtet.. Wir hatten da dran eigentlich nichts mehr verschoben..

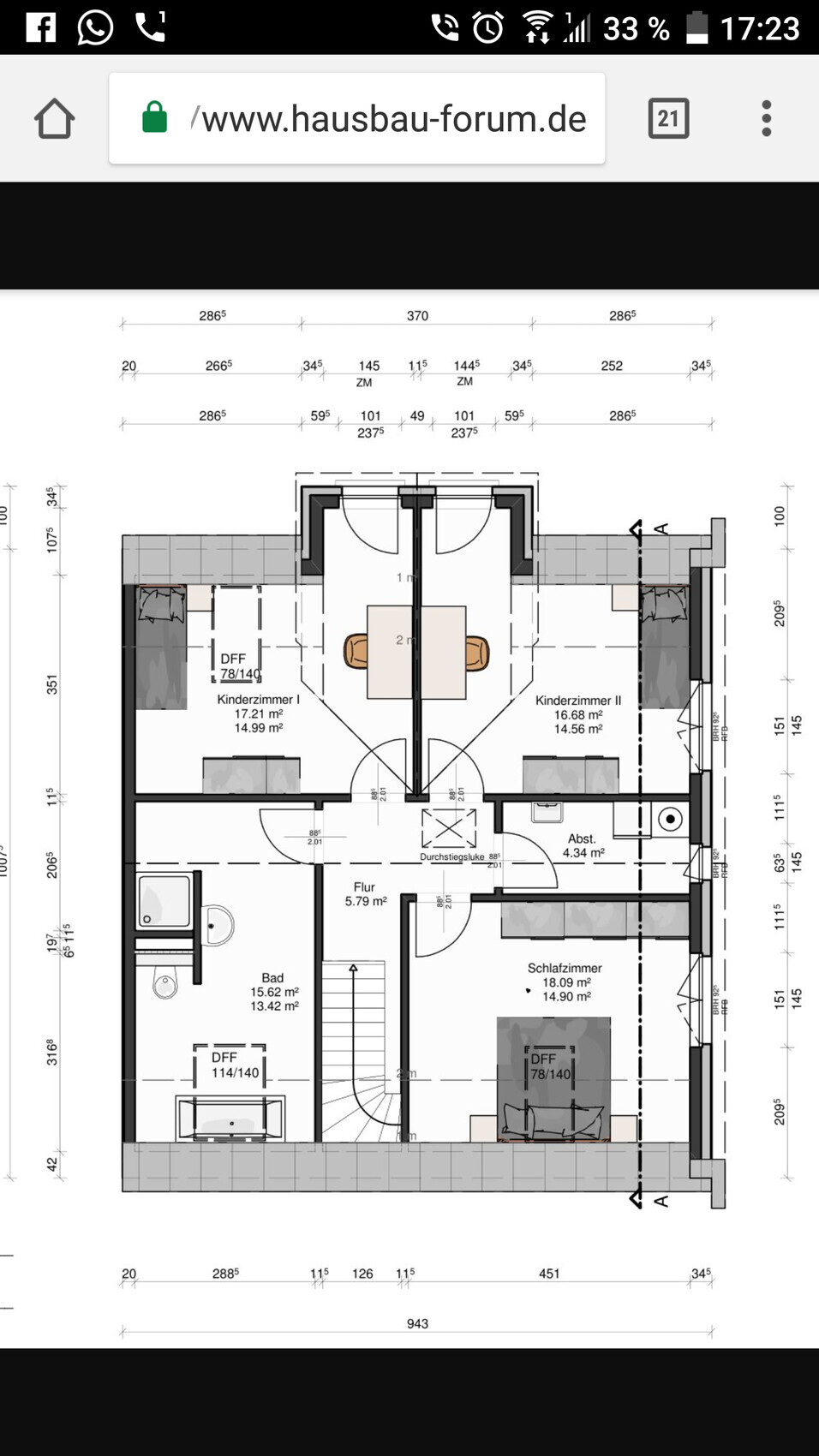
Grundriss eines Hauses (Obergeschoss): Flur, Bad, Schlafzimmer, zwei Kinderzimmer, Abstellraum.
 
kaho674

kaho674

Weil die gerade Mauern und die Decke am Donnerstag kommt.. Aber ich Versuch das mal.. Noch steht das OG nicht.. Meint ihr das geht ohne Probleme?! Aber da sollen auch Rollladen hin.. Weiß nicht ob das so einfach ist?!
Also was so ein Maurer ist, der ist doch nicht doof. Fenster verschieben x cm weiter rechts oder links, das ist dem völlig schnurz. Plan vor die Nase halten, einzeichnen, neue Maße dran, Außenansicht noch mal begutachten, Elektrik im Auge behalten, noch mal mit Bauleiter sprechen, los geht's.
Na und die Rollläden wandern mit, das ist doch klar.

Neuen Plan am besten auf der Baustelle irgendwo hinkleben in 3facher Ausführung.
 
E

Ev-Marie86

Ja das Problem wird sein, dass es wegen des giebels und der Nähe zum Dach nicht zu verschieben ist..
 
kbt09

kbt09

...und, es wäre aufgefallen, wenn du die Räume möbliert dargestellt hättest. Es ist ja auch jetzt gleich aufgefallen.
Man könnte das Schlafzimmerfenster auch einfach schmaler machen.
 
Zuletzt aktualisiert 20.11.2025
Im Forum Grundrissplanung / Grundstücksplanung gibt es 2535 Themen mit insgesamt 87978 Beiträgen


Ähnliche Themen zu Grundrissvorschläge - Was geht was fällt durch?
Nr.ErgebnisBeiträge
1Einbruchsichere Fenster? - Seite 233
2Innenraum Gestaltung - Fenster 14
3Aufpreis für farbige Fenster realistisch? - Seite 319
4Gutachter Mängelfeststellung, Feststellung Einbau Fenster 10
5Riesiges Problem mit dem Kondenswasser am Fenster - Seite 334
6Trefz Fenster Preise und Erfahrungen? 14
7Fenster, Vorbaurollladen, Außenputz 10
8Rundes Fenster - unzufrieden mit Innenlaibung 16
9Welche Rollläden bei verschlossenem Fenster, nur Verglasung? 13
10 Küchenplanung mit tiefen Fenster - Seite 643
11Fenster im Neubau: Dreifachverglasung mit Grünstich? - Seite 321
12Grundrissfrage, Treppe, Fenster, Ausrichtung 12
13Welche Fenster und Türen empfehlenswert? 21
14Bodengleiche Dusche mit Fenster in der Nähe 13
15Grundriss Einfamilienhaus geplant, Fenster gefallen uns 43
16Mindestbreite bei 2flügeliges Fenster/Terrassentür? 48
17Richtig Trocknen / Fenster kippen? 24
18Sichere Fenster/Haustüre für Randlage 34
19Finaler Grundriss-Entwurf - bis auf die Fenster - Seite 535
20Fenster / Türen / Garderobe 13

Oben