Grundrissvorschläge - Was geht was fällt durch?

5,00 Stern(e) 5 Votes
Zuletzt aktualisiert 23.11.2025
Sie befinden sich auf der Seite 8 der Diskussion zum Thema: Grundrissvorschläge - Was geht was fällt durch?
>> Zum 1. Beitrag <<

M

MIA_SAN_MIA__

Hast du vielleicht ne Außenansicht und ne Ansicht auf dem Grundstück? Würde das mit dem Erker gerne verstehen
 
11ant

11ant

Ich würde Küche und Gästezimmer drehen und den Esstisch am Erker platzieren
Ich finde die Position der Couch trotzdem nicht glücklich. Ich würde da den Esstisch hinstellen, wenn ich schon den Erker habe.
Mir wäre das ja auch sympathisch, aber das ist Geschmackssache, also subjektiv. Objektiv ökonomisch hingegen ist, wenn die Küche mit allem Rohregedöns an der Seite von Anschlussraum, WC und Bad ist.

Waschmaschine sollte sowieso nach oben... und das mit der spiebetür se ich genauso...
Meine Oma selig hätte jetzt gesagt: "Du bist verrückt, mein Kind". Platz zum Verschenken sehe ich in diesem Haus nicht, schon gar nicht die Kaiserloge im Giebel an die Waschmaschine. An der benachbarten Wand wird das Kind später sein Bett stehen haben, und die Ankleide an dieser Stelle kann man dann wohl brauchen.

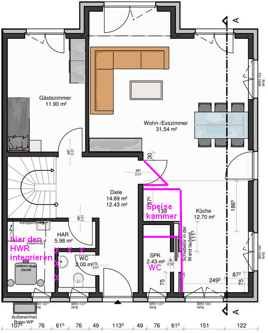
Das ist jetzt die Frage... ob man eine Speis gut in die Küche integrieren kann... ich kann mir das nicht vorstellen... und wie gesagt diese Option mit ich packe alles in den Hauswirtschaftsraum... finde ich schrecklich... ich packe keine Lebensmittel zur Heizung... no way
"Integrieren" meint hier wohl "durch einen Küchenschrank ersetzen" ? - nein, die (separate) Speisekammer an der Nordseite ist genau richtig. Ich bleibe bei meinem alten Vorschlag

Grundriss eines Hauses: Wohn-/Esszimmer, Küche mit Speisekammer, Gästezimmer, Diele, WC.

mit der Abweichung, darin die Positionen von Speisekammer und WC zu tauschen, also die Speisekammer direkt an die Außenwand zu tun.

Du weißt schon das bei Fußbodenheizung trotzdem überall warm wird?
In Räumen wo keine ist, wird sie auch nicht warm.

Waschtisch und Toilette tauschen -> Toilette unters Dachfenster, Wandstummel weg
Unterschreibe ich, mit Ausnahme von "Toilette unters Dachfenster" - außer es ist als Sitzpinkelargument ausdrücklich gewünscht

Ich würde auch die Wanne gerne da wegdrehen, so daß man gerade daraus aufstehen kann (die Kopfhöhe in Wannenmitte dürfte da etwa bei Einssechzig liegen).
 
Zuletzt bearbeitet:
J

j.bautsch

danke 11ant, so meinte ich das mit dem integrieren. nicht Wände schieben sondern eine vernünftige stauraumplanung machen und so viele schränke planen das alles unterkommt auch getränke Kisten und Geräte. denn dann gilt auch hier: Tür zu und fertig
 
Zuletzt aktualisiert 23.11.2025
Im Forum Grundrissplanung / Grundstücksplanung gibt es 2535 Themen mit insgesamt 87993 Beiträgen


Ähnliche Themen zu Grundrissvorschläge - Was geht was fällt durch?
Nr.ErgebnisBeiträge
1Speisekammer: Heizschleife bei Kontrollierte-Wohnraumlüftung sinnvoll? 14
2Versteckter Durchgang in Speisekammer - Erfahrungen gesucht 28
3Speisekammer vs. größere Küche vs. Hauswirtschaftsraum 13
4Grundriss: Planung Türen Wohnraum + Speisekammer 17
5Grundriss: Speisekammer oder größere Küche? Erfahrungen? 14
6Grundriss mit Speisekammer innenliegend - Was beachten? 14

Oben