Grundrissoptimierung Stadtvilla + Aufschüttüberlegung

4,70 Stern(e) 21 Votes
Zuletzt aktualisiert 20.11.2025
Sie befinden sich auf der Seite 136 der Diskussion zum Thema: Grundrissoptimierung Stadtvilla + Aufschüttüberlegung
>> Zum 1. Beitrag <<

Status
Für weitere Antworten geschlossen.
A

Alessandro

Nee das liegt daran, dass der Wohnbereich den Kinderbereich vorgibt. Wir wollen großen Wohnbereich. Deswegen haben die Kinder quasi Glück. Ich mag auch quadratische Räume, die direkt vom Flur abgehen ohne Nischen in Zimmern.
Planoben mit planunten will ich nicht tauschen, da die Kinderzimmer dann im Süden liegen.
1. Was hat der Wohn/Essbereich mit den Kinderzimmern Zutun? Wegen der Statik dürfte das keine Rolle spielen
2. Die Kinderzimmer liegen doch bei deiner jetzigen Planung im Süden oder? Je nachdem wie alt deine Kinder sind, können die auch mal bei geöffnetem Fenster schlafen während ihr unten auf der Terrasse noch Party macht, wenn du die Raumaufteilung änderst.
 
kaho674

kaho674

Meine Bedenken bei diesem Grundriss:
Ist das ganze Haus eine riesenplatzverschwendung? Braucht man 18 oder 19qm Schlafzimmer, brauchen die Kinder so große Zimmer? Oder sollte man sich das gönnen, wenn das Budget stimmt?
Wieso kannst Du nichts selbst bewerten? Hast Du noch nie ein Zimmer bewohnt? Falls Du derzeit in einem Zelt wohnst, dann Besuch doch mal jemand, der eine Wohnung oder ein Haus hat und miss dort die Zimmergrößen nach, die Dir gefallen für Kinder, Betten, Wohnräume usw. Musterhäuser bieten diesen Service auch.
Ansonsten ja, man kann auch wesentlich kleiner bauen und wohnen. 20m² für ein Kinderzimmer find ich sehr reichlich. Andere werden mit der Hälfte groß. Zudem sind sie schlecht nutzbar, da nahezu quadratisch. In der Mitte des Raumes wird ein großes dickes Nichts sein. Und ja, wer es sich leisten kann, baut trotzdem so groß und stellt in die Mitte eine Kletterburg oder Eisenbahnanlage.
Denkt ihr ein Grundriss mit einer gerade verlaufenen Treppe ab Eingang tut mehr was für uns?
Nein. Gehuppt wie gesprungen.
Auf jeden Fall müssen wir zum Ende kommen. Der GU schießt uns bald wie 11ant schon sagte auf den Mond.
Wenn ich das recht betrachte, ist das nicht nahezu der Ausgangsentwurf, den Ihr noch vor dem hier präsentierten in #1 hattet? 135 Seiten Irrfahrt, um wieder am Ausgangspunkt zu landen? Und meines Wissens habt Ihr immer noch nicht über die Ansichten gesprochen.

Nur mal so nebenbei gefragt: Die Öffnungen im EG nach planrechts, sind das alles Terrassentüren? Oder sind das nur Fenster? Denn wo Terrassentüren sind, da sollte man auch ne Terrasse haben. Wenn die rings ums Haus geht - das kostet auch was.
 
T

tumaa

@chrisw81 und @11ant haben recht.

Wir sind extrem sprunghaft. Und es ist hier eine Anleitung zum Unglücklichsein. Ja.
Ich kann doch aber nichts bauen, wenn das Bauchgefühl nicht stimmt und ich es selbst nicht gut finde. Wir haben uns verrannt und einen Architekten, der nur gezeichnet hat. Aber innovativen Input gab es keinen oder Rückfragen, wenn wir geplant haben, was nicht geht. Vielleicht erwarten wir auch zu viel.

Das hier ist jetzt unsere neueste Version. Habt ihr Verbesserungsvorschläge?
Die Dusche unten haben wir, da uns der Platz für eine Riesengarderobe irgendwie zu schade ist. Aber irgendwie muss man den Platz ja nutzen, wenn man eine breite Küche haben will. Die dusche wird schon hin und wieder genutzt werden. Ob Riesen Garderobe oder dritte Dusche. Ich finde man braucht beides eigentlich nicht. Bessere Lösung hab ich keine. Der Mann besteht auf Elternbad.

Wir haben die Ankleide weggenommen. Indem man das Fenster da so lässt, kann man oder ein zukünftiger Käufer immer noch eine Trockenwand ziehen, wenn eine Garderobe sein muss. Wir brauchen sie nicht sind wir zum Ergebnis gekommen. So haben wir genug Platz fürs Bett und für einen Laptop Tisch im Schlafzimmer. Wobei ich nicht weiß ob es komisch ist sich einen Arbeitsplatz im Schlafzimmer einzurichten.

Meine Bedenken bei diesem Grundriss:
Ist das ganze Haus eine riesenplatzverschwendung? Braucht man 18 oder 19qm Schlafzimmer, brauchen die Kinder so große Zimmer? Oder sollte man sich das gönnen, wenn das Budget stimmt?

Und findet ihr das mit den 2 Seitenelementen am Eingang wirkt fehlgeplant? Weil ein Element nicht richtig in den Flur, sondern gegen 20cm Wand und etwas in die Garderobe scheint?

Denkt ihr ein Grundriss mit einer gerade verlaufenen Treppe ab Eingang tut mehr was für uns?

Auf jeden Fall müssen wir zum Ende kommen. Der GU schießt uns bald wie 11ant schon sagte auf den Mond.

wow .....136 Seiten für einen Grundriss

Meine Meinung dazu: ich verstehe bis heute nicht, warum man 2 Türen für ein "offenes Konzept" wählt ?! Die 2 Schritte mehr sind doch völlig zumutbar.

EG:
Ich würde eine Tür für den Wohn-/Ess und Kochbereich nehmen, die Insel würde ich etwas höher schieben, dadurch könntest du wieder Platz für die Garderobe gewinnen.

OG:
Ich würde das Elternbad streichen und daraus ein Arbeitszimmer planen, falls ihr unbedingt eins benötigt, außerdem habt ja doch noch im EG das Gäste-Wc.


Ich finde dennoch den Grundriss gut.
 
S

Shiny86

Wie kommst du zu dieser Vorgabe?
Nach Heimkinofaustregel
Ich meinte wohlfühlabstand. Ich weiß nicht genau wie groß unser Fernseher Ist, eher klein. Trotzdem will ich mindestens 4m. Ich will ja eine wohnlandschaft hinstellen, da sind ja schon die Schenkel oft über 2m lang und mit Leuten gemütlich zusammensitzen. Meine Eltern haben 3,6m bis zur TV Wand, das ist uns zu wenig.

. Was hat der Wohn/Essbereich mit den Kinderzimmern Zutun?
Sorry, ich meinte es anders. Die Treppe gibt es vor. Und da wir Wohnzimmer und Esszimmer groß haben wollen, sind die Kinderzimmer groß.
Für uns passt aber das Verhältnis. Unser Schlafzimmer ist ja auch groß und wir halten uns im Wohnbereich meistens auf.

Die Öffnungen im EG nach planrechts, sind das alles Terrassentüren? Oder sind das nur Fenster
Terrassentüren. Wir klären noch wie es mit dem Austreten ist. Terrasse wird da nicht sein. Höchstens ein Weg. Optisch gefallen uns halbhohe nicht, da wir ja so viele Bodentiefe im Süden haben wollen.

ich verstehe bis heute nicht, warum man 2 Türen für ein "offenes Konzept" wählt ?! Die 2 Schritte mehr sind doch völlig zumutbar.
Wir finden 2 Zugänge praktisch.wir wollen es offen probieren und uns die Option offen lassen notfalls Türen nachzurüsten.

Ich habe entschieden noch Fenstermaße anzupassen. Bei den Kindern und im Elternschlafzimmer zb. Damit im Haus alle Fenster 101/132 Und 201/132 bzw. 201/220 sind. Dann zieht sich ein Konzept durch. Und dann müssen die Kinder zu den Seiten kein 2-flügliges kriegen. Ein 101/132 reicht, wenn die im Süden ein 201/220 kriegen. Ist auch besser für den Stellplatz.

In der Küche ist aber eine 113/220 Tür. Es wird da keine Terrasse geben. Aber die Tür wird zum Müll rausbringen genutzt werden.
Würdet ihr die Tür so groß lassen oder reicht auch eine 101/220 Tür?
 
S

Shiny86

Wir haben im Zeltdach in der Nordansicht ein Dachflächenfenster welches wir zum Lüften wollten. Im Dachgeschoss haben wir nur etwas Stellfläche.
Ist es nachteilig das Fenster nach Ost oder West zu verlegen? Wegen der Sonneneinstrahlung Vielleicht?

Schlafzimmer haben wir jetzt 3,5m lang Rohbaumaß. Es wäre natürlich toll 3,5m Pax Schränke stellen zu können. Was müsste man dafür wohl für ein Rohbaumaß haben?

Wer noch Bock hat, kann sich ja mal die neuen Grundrisspläne anschauen. Vielleicht findet ihr noch etwas, was ich nicht bedacht habe. Das Westfenster im Essbereich werden wir auf 176/220 vergrößern. Dieses 101/220 wirkt da glaub ich nicht.

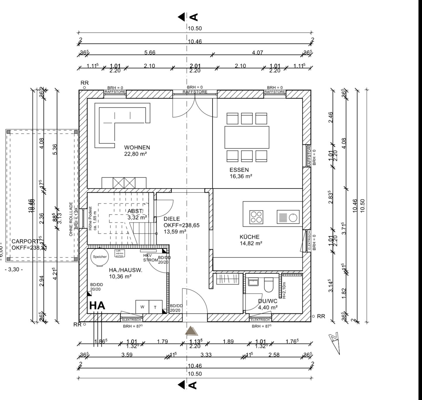
Grundriss eines Einfamilienhauses: Wohnen, Essen, Küche, Diele, DU/WC, HA, Abstellraum, Carport.


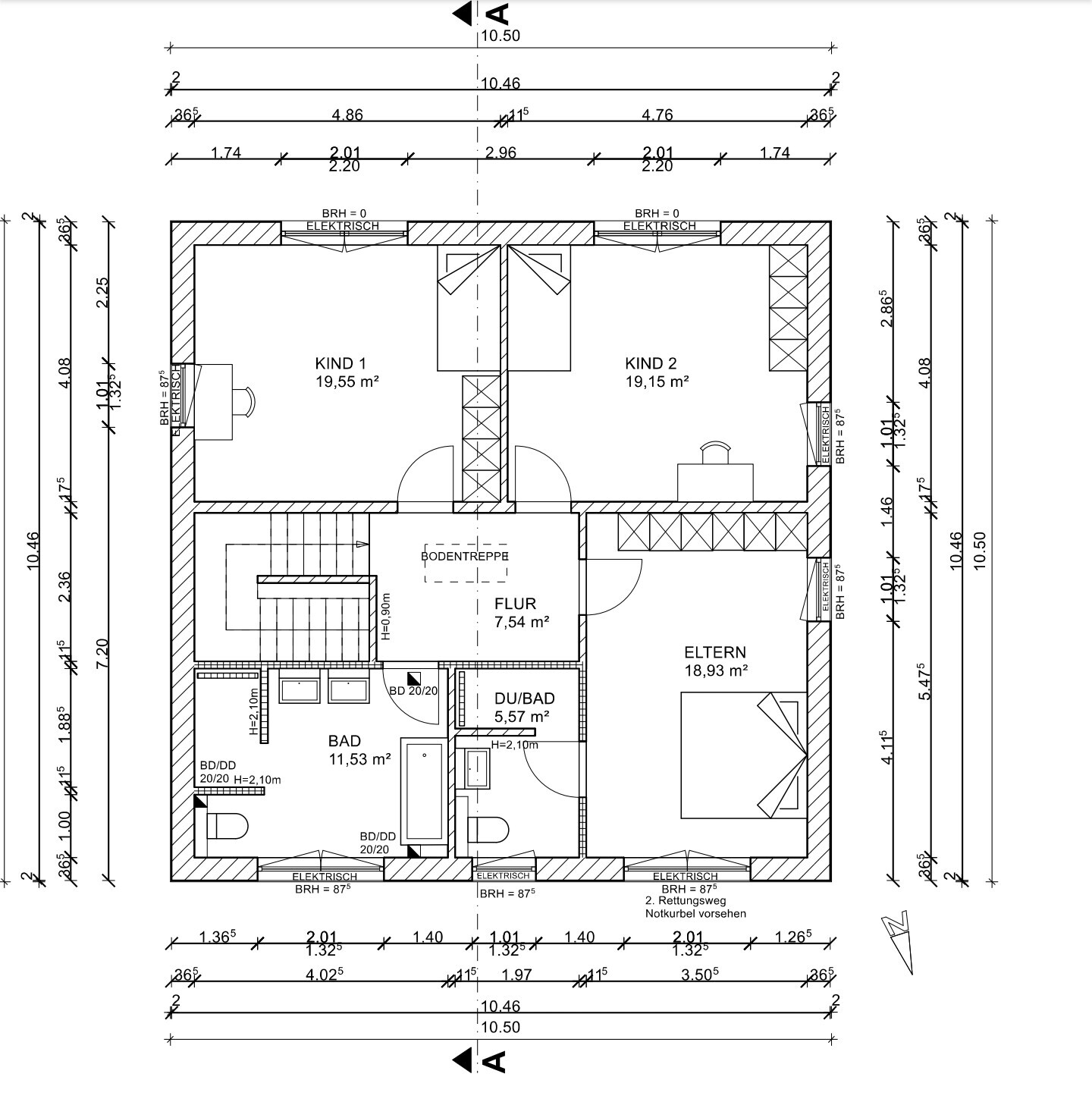
Grundriss eines Stockwerks mit Elternzimmer, zwei Kinderzimmern, Flur, Bad und Duschebad.
 
Status
Für weitere Antworten geschlossen.
Zuletzt aktualisiert 20.11.2025
Im Forum Grundrissplanung / Grundstücksplanung gibt es 2535 Themen mit insgesamt 87977 Beiträgen


Ähnliche Themen zu Grundrissoptimierung Stadtvilla + Aufschüttüberlegung
Nr.ErgebnisBeiträge
1Größe vom Schlafzimmer und Kinderzimmer - Seite 338
2Kinderzimmer und Schlafzimmer - Welche Größe ist zu empfehlen? - Seite 856
3Unser Grundriss, Wohn-Essbereich - Eure Meinung - Seite 216
4Umbau Kinderzimmer - Fenster in zwei Fenster aufteilen? 20
5Fenster Brüstungshöhe 130 im Schlafzimmer / Arbeitszimmer? - Seite 493
6Schallschutztür Schlafzimmer / Kinderzimmer 23
7Bungalow 135qm: Grundriss + Fenster - Seite 2104
8 Küchenplanung mit tiefen Fenster - Seite 643
9Grundriss Einfamilienhaus geplant, Fenster gefallen uns - Seite 343
10Grundrissplanung Einfamilienhaus (Stadtvilla) ca.140m² (3 Kinderzimmer) - Seite 242
11Keine Fußbodenheizung im Schlafzimmer? - Seite 322
12OG Stadtville optimieren. Fenster Bodentief - Seite 13104
13Kinderzimmer Richtung Norden - eure Meinung? - Seite 213
14 Ratschläge und Tipps zu Hausgrundriss (Einfamilienhaus 1,5 Geschosse) - Seite 853
15Mindestbreite bei 2flügeliges Fenster/Terrassentür? 48
16Mehrkosten Anthrazit für Fenster, Haustür und Garagentor? 21
17Bodentiefe Fenster - Warum bodentiefe Fenster? Vor- Nachteile? - Seite 7112
18Öffnungsmöglichkeit der Fenster mit Kontrollierte-Wohnraumlüftung - Ideen zur Planung 60
19Terrassentür ungleich Fenster, oder? - Seite 221
20Hilfe bei der Anordnung der Fenster benötigt! 32

Oben