Grundriss eines Einfamilienhauses, Feedback

4,40 Stern(e) 9 Votes
Zuletzt aktualisiert 10.01.2026
Sie befinden sich auf der Seite 26 der Diskussion zum Thema: Grundriss eines Einfamilienhauses, Feedback
>> Zum 1. Beitrag <<

M

motorradsilke

Von deren Elektriker reguliert das dann die Versicherung des Herstellers, aber ein "Subunternehmer des Auftraggebers (!) als Erfüllungsgehilfe des Auftragnehmers" wird rechtlich noch ohne Beispiel sein.
Wenn die Firma den Auftrag so annimmt, dass TE die Elektrik planen kann anstatt des eigenen Elektrikers (wird ja schriftlich festgelegt sein), wird sie auch dafür gerade stehen müssen, wenn was schief geht.
 
G

Ganneff

Von deren Elektriker reguliert das dann die Versicherung des Herstellers, aber ein "Subunternehmer des Auftraggebers (!) als Erfüllungsgehilfe des Auftragnehmers" wird rechtlich noch ohne Beispiel sein.
Wenn die Firma den Auftrag so annimmt, dass TE die Elektrik planen kann anstatt des eigenen Elektrikers (wird ja schriftlich festgelegt sein), wird sie auch dafür gerade stehen müssen, wenn was schief geht.
Also ich seh das so:
Wenn ich Schrott in der Planung liefer und die das nach meiner Planung durchführen - dann ist das mein Problem und ich muss zusehen wie ich es löse.

Wenn ich was abliefere und die das falsch durchführen (alle/einige Löcher falsch gebohrt oder so) - dann ist das deren Problem und die müssen zusehen wie die das lösen.

Wenn der von mir beauftragte Elektriker Müll baut, dann ist das mein Problem (welches ich vertraglich mit diesem vorher geregelt haben kann).

Und spätere Gewährleistung (in der Zeit in der die gilt) - wenn eine Komponente im Eimer ist, die von denen kommt und in deren Verantwortung liegt - dann ist es deren Problem. Wenn es in meiner Verantwortung liegt dann ist es meines (oder meines Elektrikers, wieder Vertragsfrage mit dem).

Und ja, ich bin alt genug, ich weiß das das manchmal im Detail zwischen zwei Komponenten klemmen kann. Dann müssen halt beide Seiten flexibel nach einer für alle Seiten tragbaren Lösung schauen, wenn das auftritt.
 
wiltshire

wiltshire

Und ja, ich bin alt genug, ich weiß das das manchmal im Detail zwischen zwei Komponenten klemmen kann. Dann müssen halt beide Seiten flexibel nach einer für alle Seiten tragbaren Lösung schauen, wenn das auftritt.
Alles gut. Es ist ja nur eine Risikoabschätzung, bei der man aus jeweils guten Gründen zu unterschiedlichen Ergebnissen kommen kann. Natürlich kann das auch funktionieren.
 
G

Ganneff

Zu den Erdarbeiten die du noch hattest, siehe oben frag ich Anfang der Woche an. Ja, sind um die 110cm.
Dazu kam heute Angebot zurück. Natürlich mit Positionen die am Ende vom tatsächlichen Geschehen vor Ort abhängen, wie beim Fundament ja auch, aber eine Zielgrösse weiss ich nun. Sind Brutto 12k€. D.h. mit Fundament zusammen hab ich im Bereich knapp unter 50k€ Kosten da. Ein Keller dürfte nochmal ordentlich mehr kosten. (Aber aus Interesse wieviel Unterschied hab ich den Fundament/Sockelwandbauer mal nach einer groben Schätzung gefragt. Die machen auch Keller, sollte mir also eine Richtschnur geben können ohne allzu viel verschwendetem Aufwand).
(Mit dem angepassten Plänen hier im Anschluss wird es eher 14k€, oder so schätz ich, da ja die Garage noch weiter rausragt und entsprechend mehr Unterbau braucht.)

Ansonsten gabs neue Pläne. Ich hab schon ein paar Anmerkungen dazu, bin gespannt was von euch noch kommt.

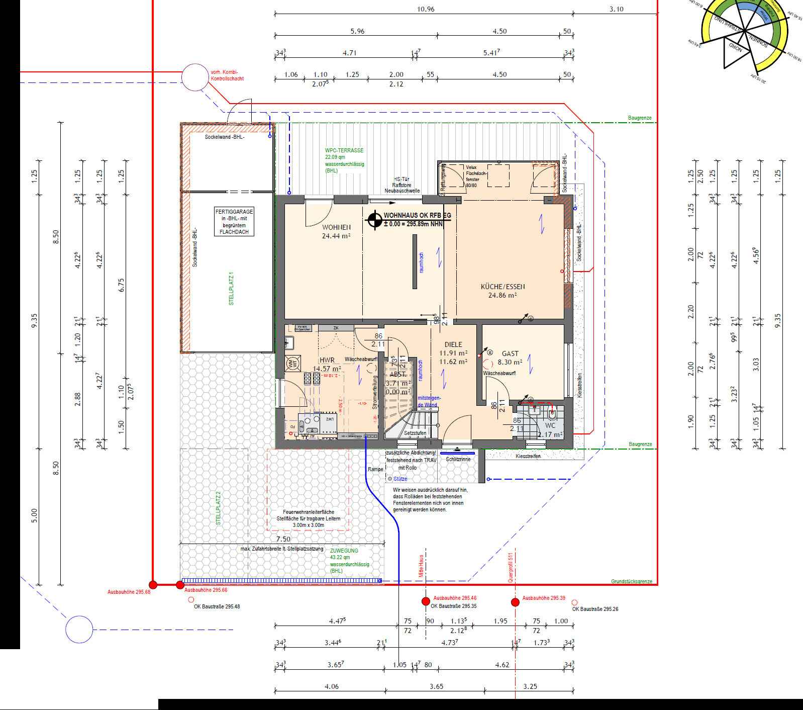
Grundriss eines Wohnhauses: Wohnzimmer, Küche/Essen, Diele, Gästezimmer, HWR, Bad, Terrasse.


Das EG. Der Wintergarten ist auf 4,50x.1,25m gekommen. Einen mit komplett Glas haben die nicht im Angebot, daher die eingezeichnete Möglichkeit von Flachdachfenstern, wenn ich darauf bestehen sollte. Sie raten aber von ab, Verschattung und Kosten sprechen dagegen. Sagt uns auch nicht zu.
Wenn der Wintergarten nicht zusagt, kann ich dort auch Erker hinhaben, wird günstiger - aber auch bedeutend weniger Fensterfläche. Dem Wunsch von viel Licht widerspricht das natürlich, weswegen erstmal der Wintergarten gezeichnet ist.

Mir selber fallen da erstmal die (meines Empfinden nach) grossen Wandstücke auf, die da reinragen. Ich vermute die werden für die Statik benötigt, aber ein Punkt den ich nachfragen werde, ob das anders geht (oder ob anders dann gleich Erker nach sich zieht). Laienhaft würde ich hoffen ein großer Stahlträger darüber tuts auch. Was meint Ihr zu denen?

Das Gästezimmer hat derzeit ein viel zu kleines Fenster geplant, nur 72 hoch. Gleiche Höhe wie in der Küche - yay, Symmetrie. Die ist mir aber recht wurscht, da sollte ein 125er rein um genug Licht in dem Zimmer zu haben. Das in der Küche ist ja nur so klein, damit wir eine ordentliche Spüle drunter kriegen.
Der dort gezeichnete Wäscheschacht ist Hinweis von denen - wir hatten einen eingeplant und den nicht mit verschoben in unseren Wünschen. Der würde dort rauskommen. Da das nicht allzu viel Sinn macht findet man den noch als Hinweis, aber ein neuer Vorschlag ist links im Hauswirtschaftsraum schon gezeichnet. Der hat aber Nachteile im OG, da der Platz dafür dann im Kinderzimmer hängt. Platzmässig von der Menge her zwar ok, aber die Ecke macht es quasi unmöglich da vernünftig ein Bett oder einen Schrank hinzuplanen. Werden wir vmtl. also ganz weglassen. Nettes Feature, aber nicht lebensnotwendig. Wäschesäcke in die Bäder, und beim Maschinenanstellen dann schleppen...

Der Hauswirtschaftsraum/Technikraum ist nun schön gross und hat eine Tür nach draußen geplant. Wobei ich hier noch gern die Anordnung Waschmaschine/Wäschetrockner und Waschbecken tauschen würde. Die Tür hat nach draußen eine Schwelle/Höhenunterschied, aber das müsste (denke ich) ohne irgendeinen Vorbau da passen.

Ich frag mich ob man die rückwärtige Garagentür evtl. an die Wand Richtung Terrasse umziehen will?

Grundriss eines Hauses mit Eltern-, Kinder- und Arbeitszimmer, Flur, Bad, Dusche/WC.


Hier im OG sieht man den möglichen Wäscheschacht im Kinderzimmer. Sagt uns da nicht zu. Aber von den Massen mit dem Hauswirtschaftsraum unten drunter gibts so nun keinen guten Platz mehr -> Weg gehts. Also wird rechts die Flurwand, wo der bisher sass, wieder gerade.

Im Arbeitszimmer ist das Fenster nun nach links in die Ecke gewandert. Hat etwas den Nachteil das ich nun die Wandecke nicht mehr als Einbauregal nutzen kann, andererseits passt Schreibtisch und Co dort auch gut, und Regal halt an Wand zu Schlafzimmer. Durch das Fensterschieben hat man zum einen die Ausrichtung mit der Tür drunter aber auch weil es sonst mit dem Wintergarten drunter halt keinen Platz hat für bodentief.
Das zweite Kinderzimmer hat nun auch bodentiefes Fenster, da untendrunter der nun verschobene Wintergarten nicht mehr blockiert.

Dementsprechend sehen die Außenansichten nun angepasst aus.

Außenansicht eines modernen Hauses mit Garage links, begrüntem Flachdach und PV vorgesehen.

Modernes Wohnhaus mit begrüntem Flachdach, PV geplant, große Fensterfronten.

Seitenansicht eines Einfamilienhauses mit Geländeprofil, Sockelwand und Dach

Moderne zweistöckige Hausfassade mit großen Fenstern und Terrasse
 
Zuletzt aktualisiert 10.01.2026
Im Forum Grundrissplanung / Grundstücksplanung gibt es 2565 Themen mit insgesamt 88792 Beiträgen


Ähnliche Themen zu Grundriss eines Einfamilienhauses, Feedback
Nr.ErgebnisBeiträge
1Grundriss Einfamilienhaus ohne Keller, 3 Kinderzimmer und Büro 18
2Grundriss Einfamilienhaus mit Keller - Eure Meinungen bitte - Seite 316
3Grundrissfrage, Treppe, Fenster, Ausrichtung 12
4Entwurf Einfamilienhaus mit 3 Kinderzimmer, Keller und Grenzbebauung 32
5Erker in der Küche - Umsetzungsvorschläge 47
6Kleinstmögliches Fenster für Lüftung Hauswirtschaftsraum 22
7Umbau Kinderzimmer - Fenster in zwei Fenster aufteilen? 20
8Speisekammer vs. größere Küche vs. Hauswirtschaftsraum 13
9Grundriss Einfamilienhaus 155m², ohne Keller, 3 Kinderzimmer, 1 Büro 38
10Grundriss Einfamilienhaus ca. 200qm mit Keller - Hinterbebauung 20
11Bewertung Keller / Siedlungshäuschen Bayern - Seite 253
12Grundriss Einfamilienhaus, ca. 200qm ohne Keller - Einschätzung - Seite 19172
13Einfamilienhaus Grundriss mit Keller, Version 2 23
14Grundrissplanung Stadtvilla Neubau mit Keller - Seite 336
15Bungalow 135qm: Grundriss + Fenster - Seite 10104
16Grundrissentwurf Stadtvilla mit Keller Verbesserungsvorschlag? - Seite 577
17OG Stadtville optimieren. Fenster Bodentief - Seite 13104
18Grundriss Einfamilienhaus ca. 200qm Doppelgarage Keller - Seite 232
19Finanzierung Hausbauangebot 138qm Einfamilienhaus 2 Vollgeschosse + Keller - Seite 232
20Erstentwurf Nolte Küche - Meinungen und Verbesserungsvorschläge - Seite 430

Oben